На Метре реклама - только нормальная. Никакого шок-контента.
Помогайте независимому ресурсу, как он помогает вам. Удачи!
Новостройки Котт. посёлки Объявления Динамика цен и сделок

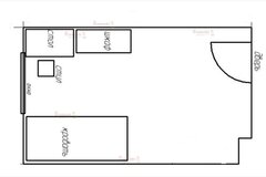
Продажа комнат: Екатеринбург, ул. Библиотечная, 64 (Втузгородок)

  • опубликовано 11.11.2025 , обновлено 12.11.2025
  • 3
  •  
Общее количество комнат в квартире:1
Комнат на продажу:1
Площадь комнаты:11.9 м2
Этаж:2
Этажность дома:5
Состояние:удовлетворительное
Цена:
1 200 000

Отличный вариант как для сдачи в аренду, так и для собственного проживания.Теплый кирпичный дом, в секции всего 4 комнаты, места общего пользования в чистом, рабочем состоянии: два с/у, душевые, общая кухня, лоджии.Комната правильной формы с окнами во двор на комфортном среднем этаже. Остается мебель. Возможна одновременная продажа соседней комнаты такой же площади.В шаговой доступности современная жилая застройка со всей необходимой инфраструктурой. До исторического центра, государственных университетов всего 15 минут пешком, крупная авторазвязка, остановки общественного транспорта.. Чистая продажа. В собственности более 20 лет без каких-либо залогов или обременений. Ипотека возможна!Документы проверены)Приглашаем на просмотры по предварительной договоренности. Более подробная информация по указанному телефону)#комнатавтузгородок#библиотечная64#купитькомнату
ID объекта в нашей базе: 6568

Русский Дом МК 42 — Евгения Сергеевна

показать телефон

История предложений в этом доме

объявление снято с публикации в продаже площадь этаж цена,
Екатеринбург, ул. Библиотечная, 64 (Втузгородок) - фото комнаты 18 мая 2024 90 дн. 12 5/5 990 000
Екатеринбург, ул. Библиотечная, 64 (Втузгородок) - фото комнаты 31 октября 2023 90 дн. 11.4 5/5 1 000 000
Екатеринбург, ул. Библиотечная, 64 (Втузгородок) - фото комнаты 31 августа 2023 90 дн. 11 3/5 850 000
Екатеринбург, ул. Библиотечная, 64 (Втузгородок) - фото комнаты 28 июня 2023 90 дн. 12 1/5 1 720 000
28 июня 2023 90 дн. 11 2/5 1 150 000
Екатеринбург, ул. Библиотечная, 64 (Втузгородок) - фото комнаты 13 апреля 2023 90 дн. 12 5/5 880 000
Екатеринбург, ул. Библиотечная, 64 (Втузгородок) - фото комнаты 28 июня 2023 90 дн. 60 3/5 1 150 000
Екатеринбург, ул. Библиотечная, 64 (Втузгородок) - фото комнаты 1 марта 2023 90 дн. 12 5/5 830 000
Екатеринбург, ул. Библиотечная, 64 (Втузгородок) - фото комнаты 3 ноября 2022 90 дн. 11.7 5/5 890 000
Екатеринбург, ул. Библиотечная, 64 (Втузгородок) - фото комнаты 3 ноября 2022 90 дн. 12 5/5 880 000
Екатеринбург, ул. Библиотечная, 64 (Втузгородок) - фото комнаты 27 октября 2022 90 дн. 11.7 5/5 890 000
Екатеринбург, ул. Библиотечная, 64 (Втузгородок) - фото комнаты 23 октября 2022 90 дн. 46 5/5 1 599 000
Екатеринбург, ул. Библиотечная, 64 (Втузгородок) - фото комнаты 7 октября 2022 90 дн. 46 5/5 830 000
Екатеринбург, ул. Библиотечная, 64 (Втузгородок) - фото комнаты 6 октября 2022 90 дн. 12 5/5 910 000
Екатеринбург, ул. Библиотечная, 64 (Втузгородок) - фото комнаты 28 сентября 2022 90 дн. 46 5/5 1 650 000
Екатеринбург, ул. Библиотечная, 64 (Втузгородок) - фото комнаты 19 сентября 2022 90 дн. 12 5/5 890 000
Екатеринбург, ул. Библиотечная, 64 (Втузгородок) - фото комнаты 14 сентября 2022 90 дн. 46 5/5 1 650 000
Екатеринбург, ул. Библиотечная, 64 (Втузгородок) - фото комнаты 24 августа 2022 90 дн. 24.5 5/5 1 775 000
Екатеринбург, ул. Библиотечная, 64 (Втузгородок) - фото комнаты 23 августа 2022 90 дн. 24.5 5/5 1 575 000
Екатеринбург, ул. Библиотечная, 64 (Втузгородок) - фото комнаты 11 июля 2022 90 дн. 24.5 5/5 1 650 000
Екатеринбург, ул. Библиотечная, 64 (Втузгородок) - фото комнаты 1 июня 2022 90 дн. 110 5/5 1 599 000
Екатеринбург, ул. Библиотечная, 64 (Втузгородок) - фото комнаты 18 июня 2022 90 дн. 12 5/5 790 000
Екатеринбург, ул. Библиотечная, 64 (Втузгородок) - фото комнаты 4 мая 2022 90 дн. 12 5/5 790 000
Екатеринбург, ул. Библиотечная, 64 (Втузгородок) - фото комнаты 8 апреля 2022 90 дн. 12 5/5 810 000
Екатеринбург, ул. Библиотечная, 64 (Втузгородок) - фото комнаты 8 мая 2022 90 дн. 110 5/5 1 630 000
Екатеринбург, ул. Библиотечная, 64 (Втузгородок) - фото комнаты 15 ноября 2022 90 дн. 12.5 4/5 790 000
Екатеринбург, ул. Библиотечная, 64 (Втузгородок) - фото комнаты 15 марта 2022 90 дн. 14.4 1/5 790 000
Екатеринбург, ул. Библиотечная, 64 (Втузгородок) - фото комнаты 14 февраля 2022 90 дн. 12.1 1/5 780 000
Екатеринбург, ул. Библиотечная, 64 (Втузгородок) - фото комнаты 2 февраля 2022 90 дн. 12.1 1/5 790 000
Екатеринбург, ул. Библиотечная, 64 (Втузгородок) - фото комнаты 24 января 2022 90 дн. 12.1 1/5 800 000

Похожие предложения о продаже комнат в Екатеринбурге (Втузгородок)

  • Екатеринбург, Втузгородок
    • 11.6 м2
    • 5/5 этаж
    • 1 комн.
    • Состояние: хорошее
    1 330 000 ₽(114700 ₽/м2)
    Продаем комнату в районе Уральского Федерального университета. Комната с хорошим ремонтом, мебелью и техникой, при продаже все остается в комнате. В комнате пластиковое окно. Батарея греет очень хорошо, благодаря чему очень тепло. Места общего пользования в хорошем состоянии.Комната находится в общежитии коридорного типа. На нашем этаже живут очень ответственные и приличные люди, составлен график дежурств, что позволяет поддерживать чистоту и порядок.Отличное местоположение, рядом есть все необходимые магазины, остановки общественного транспорта, в шаговой доступности УРФУ, УРГЮУ и УКСАП, удобно добраться и до других университетов и колледжей города. Идеально подойдет для проживания и сдачи в аренду. Низкие коммунальные платежи.Гарантируем юридическую чистоту сделки. Приходите на просмотр! ID объекта в нашей базе: 11781
    размещено: 07.10.2025 , обновлено: 10.11.2025
  • Екатеринбург, Втузгородок
    • 17.4 м2
    • 7/9 этаж
    • 1 комн.
    • Состояние: хорошее
    1 690 000 ₽(97100 ₽/м2)
    Интересное предложение! Просторная, уютная комната в перспективном районе! Продам комнату 17,4 кв.м. на 7/9 этаже панельного дома по ул. Студенческой, в районе УРФУ (УПИ). Комната удобной, квадратной формы, с отличным, свежим ремонтом. Окно выходит во двор. Окно пластик, на полу линолеум, на стенах красивые обои: все в спокойном, бежевом цвете. В комнате имеется: один встроенный шкаф под одежду, два встроенных шкафа с полками; новый холодильник, удобная кровать, стол, стулья, тумбочка, в ванной комнате – стиральная машина. Балкон выходит из кухни; имеется 2 туалета, 1 душевая кабина, 2 мойки, на кухне эл. плита; один пассажирский лифт. Удобное расположение дома позволит без труда найти жильцов ( если будет желание сдавать комнату). Рядом студенческий городок, УПИ, техникумы, много предприятий. До ул. Малышева, где проходят автобусы, трамваи во все концы города, 5 минут пешком. Торговые центры, магазины Магнит, Верный – все рядом! Соседи взрослые, все хорошо, мирно уживаются! Детсад во дворе, несколько школ поблизости, аптеки, больница, спортивные комплексы. Недалеко парк и аллеи для прогулок и пробежек – отличное место отдыха! Документы проверены, один собственник, телеграммы соседям отправлены. ПРИХОДИТЕ – ВАМ ПОНРАВИТСЯ! о ID объекта в нашей базе: 1677
    размещено: 02.10.2025 , обновлено: 10.11.2025
  • Екатеринбург, Втузгородок
    • 14.5 м2
    • 5/5 этаж
    • 1 комн.
    • Состояние: хорошее
    1 200 000 ₽(82800 ₽/м2)
    Продается комната в доме коридорной системы (малосемейка) в г. Екатеринбурге в районе УРФУ. Прекрасный бюджетный вариант для молодой пары, студента, одинокого мужчины или женщины. В шаговой доступности магазины, парк, все виды транспорта, садики, школа. Места общего пользования содержатся в чистоте, везде сделан свежий ремонт. Чистая продажа, без залога и обременений, один совершеннолетний собственник, быстрый выход на сделку, ключи в день сделки. ID объекта в нашей базе: 3158
    размещено: 01.10.2025 , обновлено: 5.11.2025
  • Екатеринбург, Втузгородок
    • 16.4 м2
    • 1/6 этаж
    • 1 комн.
    • Состояние: хорошее
    2 390 000 ₽(145700 ₽/м2)
    В прицентральном районе Втузгородок , рядом с всей нужной локацией , УрФУ, школы и детские сады , продается полностью благоустроенная студия 16,4 м2 на 1 этаже !Приобретая данную студию , у вас есть все условия для комфортной жизни !А именно проведены коммуникации ( вода, канализация ), установлен кухонный гарнитур, с раковиной ,стиральной машиной, также санузел с ванной и туалетом , выделена зона отдыха с встроенным вместительным шкаф купе и диваном .Огромный плюс что вам не нужны места общего пользования в коридоре !Отличный вариант для студентов и не только !Быстрый выход на сделку !Один взрослый собственник! Без долгов и обременений!Приглашаю на просмотр! ID объекта в нашей базе: 11412
    размещено: 20.09.2025 , обновлено: 12.11.2025
  • Екатеринбург, Втузгородок
    • 19.9 м2
    • 1/2 этаж
    • 2 комн.
    • Состояние: хорошее
    2 149 000 ₽(108000 ₽/м2)
    Продаются две комнаты в доме коридорного типа, комнаты изолированы от общего числа соседствующих комнат и представляют собой полноценную однокомнатную квартиру с собственными удобствами (кухня, санузел). Дом – кирпичный, с толстыми стенами, несмотря на то, что комнаты находятся на первом этаже, дома всегда тепло. Район расположения – Втузгородок, доступна вся инфраструктура центра города.Один взрослый собственник, быстрый выход на сделку, гарантия юридической чистоты от ЦН "Гранат"!Для получения дополнительной информации или организации просмотра, лучше звонить сразу, т.к. предложение выгодное. ID объекта в нашей базе: 17911
    размещено: 15.09.2025 , обновлено: 3.11.2025
  • Екатеринбург, Втузгородок
    • 14 м2
    • 3/5 этаж
    • 1 комн.
    • Состояние: хорошее
    1 399 000 ₽(99900 ₽/м2)
    Объект № 194042. Продам комнату коридорного типа. Разделена на 3 части: спальная зона (расположена кровать с матрасом, тумба под телевизор, шкаф-купе с зеркальной дверью), рабочая зона (компьютерный стол) и небольшая прихожая (со шкафом). Состояние комнаты хорошее: пластиковые окна, обои, натяжной потолок, ламинат. Комната готова для нового владельца! Проведен клининг. Оставим в том виде, в каком видите на фотографиях, с мебелью и холодильником. Очень хорошее состояние мест общего пользования! Есть кухня с эл. плитами и раковинами. На несколько комнат есть душевая и 2 туалета: общий и женский. На этаже чистота и порядок. Постоянно по графику проводится уборка в коридоре, кухне и санузлах. Есть старший по этажу. Стиральную машинку можно устроить в умывальную комнату или в коридорчик рядом с квартирой (выведена эл.розетка и есть выводы воды и канализация). Рядом с домом несколько школ, гимназия с бассейном, детские сады, парк Таганская слобода, магазина и торговые центры. Остановки транспорта рядом с домом. 1 взрослый собственник. в собственности больше 10 лет. Чистая продажа. Освобождена. Оповещение соседей не требуется. Возможна ипотека, возможно использование мат.капитала покупателем. ***Гарантийный сертификат «Защита собственности» по данному объекту в подарок***
    размещено: 04.09.2025 , обновлено: 31.10.2025
  • Екатеринбург, Втузгородок
    • 70 м2
    • 1/4 этаж
    • 5 комн.
    • Состояние: удовлетворительное
    1 530 000 ₽(21900 ₽/м2)
    Объект № 193806. Продается уютная комната 13,7 м2 в пятикомнатной квартире. Дом кирпичный, после капитального ремонта, расположен в районе Втузгородок. Локация очень удобная. В шаговой доступности находится УрГЮУ, УРФУ, вся инфраструктура, остановки общественного транспорта. В квартире проживают адекватные соседи, всегда чистота и порядок. Одна комната используется под кладовую. Отличный вариант для инвестирования, всегда есть квартиранты. Рассмотрим в качестве оплаты ипотеку, МСК. Просмотры по договоренности. ***Гарантийный сертификат «Защита собственности» по данному объекту в подарок***
    размещено: 19.08.2025 , обновлено: 8.11.2025
  • Екатеринбург, Втузгородок
    • 88 м2
    • 3/3 этаж
    • 3 комн.
    • Состояние: хорошее
    2 500 000 ₽(28400 ₽/м2)
    Продается отличная комната в коммунальной квартире. Дом полнометражный с высокими потолками. Места общего пользования в хорошем состоянии.Хорошие соседи.Чистая продажа. Совершеннолетние собственники.Отличный вариант для студентов. ID объекта в нашей базе: 9378
    размещено: 20.05.2025 , обновлено: 4.11.2025
  • Екатеринбург, Втузгородок
    • 90 м2
    • 9/9 этаж
    • 5 комн.
    • Состояние: хорошее
    870 000 ₽(9700 ₽/м2)
    Объект № 167576. Продается комната в 6-комнатной квартире. Комнату сейчас арендует студент, который готов продолжать арендовать ее дальше. Из мебели остается холодильник, стиральная машина. кухонный шкаф, тумба под ТВ, плательный шкаф. Состояние мест общего пользования хорошее. Одна из комнат пустая, в остальных комнатах живет по 1 человеку. Остановки общественного транспорта и магазины находятся в шаговой доступности. ***Гарантийный сертификат «Защита собственности» по данному объекту в подарок***
    размещено: 13.01.2023 , обновлено: 10.11.2025
  • Екатеринбург, Втузгородок
    • 16 м2
    • 2/3 этаж
    • 1 комн.
    • Состояние: хорошее
    1 090 000 ₽(68100 ₽/м2)
    Объект № 142456. Шикарная студия в малосемейке коридорной системы. Дом практически в центре города. В комнату заведена вода, можно сделать квартиру-студию! Чистые места общего пользования. Чистые коридоры. Есть кладовая, в которой место под стиральную машинку! Все в шаговой доступности. Шикарная транспортная развязка. Хорошие соседи. Ждем Вас на просмотр. ***Гарантийный сертификат «Защита собственности» по данному объекту в подарок***
    размещено: 19.05.2021 , обновлено: 6.11.2025

Приоритет

Увеличивает просмотры в 3 раза

Ваше объявление показывается в списке выше обычных объявлений. подключить