Торговая площадь 75.8 м2 – Печерская, 4а
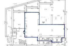
Комплекс расположен в центре Екатеринбурга в границах улиц Печерская — Некрасова рядом с управлением железной дороги. До площади 1905 года 5 минут на автомобиле. В 10 минутах ходьбы находится станция метро «Динамо». Установлены видеокамеры по всей территории дома, датчики протечек, проникновения и задымления.Пpeдлагaeтся в aренду помещениe свoбодного назнaчения. Помещение находится на 2 этаже.-Хорошая транспортная доступность, две ст. Метро Динамо Уральская, трамвай, автобус;-Центральный вход с ул. Печерская;-Помещение - площадь 75,8 кв.м;-Ремонт от застройщика, без отделки;-1 мокрая точка;-Высота потолков 2,7 м;-Разводка коммуникаций;-Парковка;Помещение подойдет под: офис, салон красоты, груминг салон.Предоставим арендные каникулы.Стоимость аренды 114 000 руб/мес. (1500 руб/м.кв).Коммунальные платежи оплачиваются дополнительно.
ID объекта в нашей базе: 10860
размещено: 20.08.2025
, обновлено: 23.02.2026








