Торговая площадь 99 м2 – Московская, 190
Объект № 198428. Объект сдается без комиссии со стороны арендатора!
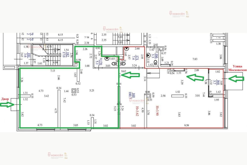
Сдам половину в торгово-офисном помещении с двумя отдельными входами и двумя санузлами.
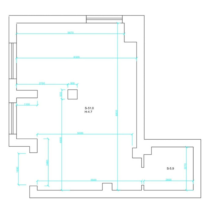
Предлагаемая часть помещения составляет 99 кв.м. (на плане выделена зеленым цветом), из которых площадь торгового зала 93,91 кв.м. + отдельный санузел 5,1 кв.м. Высота потолков, в предлагаемой части, составляет 3,62 метров. Возможно размещение вывески на фасаде со стороны улицы Московская. Помещение можно будет отделить как глухой перегородкой, если доступ с центрального входа не потребуется, так и дверью, либо вообще без перегородки.
Площадь всего помещения составляет 198,9 кв.м., входная мощность 15,7 кВт.
Хорошая видимость с первой линии улицы Московская как для пешеходов, так и для автомобилистов и пассажиров общественного транспорта. Большое количество парковочных мест, рядом с домом, высокая проходимость, шаговая доступность от метро. В соседних торговых помещениях и рядом находятся:
- Урало-Сибирский институт бизнеса;
- Супермаркет Магнит;
- Аптека Вита Экспресс;
- Магазин встраиваемой бытовой техники;
- Салон цветов;
- Аптека Фармленд;
- Бристоль;
- ​Натяжные потолки;
- Соболев сыр;
- Магнум-Винотека;
- Simple Coffee;
- Салон интерьерных материалов (краски, обои, фрески, молдинги);
- Салон офисной мебели;
- Магазин мебельной и дверной фурнитуры;
- Салон обоев и интерьерных красок;
- Салон оптики;
- Магазин лакокрасочных материалов;
- Шоурум интерьерных тканей;
- ​Салон натяжных потолков;
и многое другое...
Реализуется агентством недвижимости Новосёл, все объявления от других агентств недвижимости являются фейком. Показ возможен в удобное время по предварительной договорённости.
размещено: 07.04.2026
, обновлено: 7.04.2026
