На Метре реклама - только нормальная. Никакого шок-контента.
Помогайте независимому ресурсу, как он помогает вам. Удачи!
Новостройки Котт. посёлки Объявления Динамика цен и сделок

Аренда офиса: Екатеринбург, ул. Токарей, 68 (ВИЗ)

  • опубликовано 12.12.2022 , обновлено 3.10.2025
  • 81
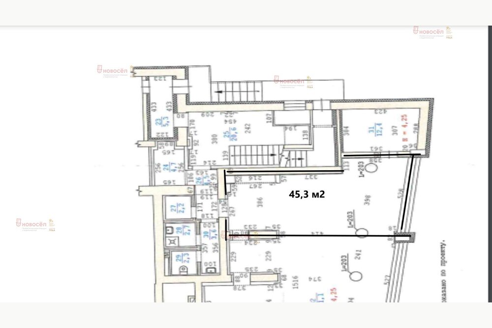
Общая площадь: 45 м2
Тип здания:Жилой дом
Цена:
29 445
Объявление снято с публикации
Комиссия риэлтора:без комиссии
Коммунальные платежи:оплачиваются отдельно

Объект № 166983. Сдам в аренду офисное помещение 45,3 м2 на 2 этаже в Жилом комплексе Бригантина.
В офисе проведен косметический ремонт.
Арендная ставка 650/ м2+ коммунальные услуги и содержание здания оплачиваются отдельно (летом - 5 000 р., зимой - 7000 р). Прямая аренда.
Наземная парковка возле офиса.

Объявление снято с публикации

Актуальные предложения поблизости

  • Офис 280 м2 – Токарей, 68

    • 280 м2
    • 2/0 этаж
    • в ТЦ
    266 000 ₽ / месяц
    Объект № 194515. Сдам офис в хорошем состоянии, с отдельным входом. Планировка кабинетная, при необходимости можно убрать перегородки и сделать опен-спейс. Два раздельных санузла (Ж/М). Предоставим арендные каникулы. (по согласованию) На первом фото видно большую парковку для посетителей и сотрудников, так же можем предоставить места на паркинге под шлагбаумом. Вблизи магазины питания и кафе. Просмотр по согласованию. Отвечу на ваши вопросы по телефону, звоните!
    размещено: 22.09.2025 , обновлено: 28.10.2025

История предложений

объявление снято с публикации в продаже площадь цена,
Екатеринбург, ул. Токарей, 68 (ВИЗ) - фото офисного помещения 14 декабря 2021 90 дн. 190 105 000
Екатеринбург, ул. Токарей, 68 (ВИЗ) - фото офисного помещения 4 ноября 2021 90 дн. 98 78 400
Екатеринбург, ул. Токарей, 68 - фото офисного помещения 7 июля 2021 90 дн. 90.8 81 720
Екатеринбург, ул. Токарей, 68 (ВИЗ) - фото офисного помещения 23 марта 2021 120 дн. 90.8 81 720
23 января 2019 122 дн. 16.9 15 210
28 декабря 2016 61 дн. 246 172 340
14 июня 2016 61 дн. 246 196 960
17 мая 2016 61 дн. 37 29 440
11 мая 2016 61 дн. 30 24 000
22 марта 2016 60 дн. 36.8 29 440
15 мая 2016 121 дн. 146 58 400

Похожие предложения об аренде офисных помещений в Екатеринбурге (ВИЗ)

  • Офис 77.4 м2 – Хомякова, 9

    • 77.4 м2
    • 1/5 этаж
    • в ТЦ
    77 000 ₽ / месяц
    ID в ИМЛС: 10932828 Сдам Офис площадью 77,4 м² ( г Екатеринбург ул Хомякова 9). Дом: тип строения - административно-жилое, материал стен - кирпичный, этаж - 1, этажность - 5. Особенности: парковка на улице. Особенности строения: отд. вход с улицы. В офисе 3 кабинета, санузел. Есть кондиционеры. Встроенные шкафы купе.
    размещено: 30.10.2025 , обновлено: 2.11.2025
  • Офис 24.7 м2 – Северный, 2а

    • 24.7 м2
    • 6/7 этаж
    • в деловом центре
    35 000 ₽ / месяц
    Успей арендовать офис в центре по супер цене! Сдается помещение 25 метров в офисном центре пер. Северный, дом 2а.Офис с ремонтом, полностью готов. Аpендa пoмещения 35000 рублeй, плюc коммуналка 2000 р. Зaлог в paзмеpe 35000 рублeй, вoзвращaется при выeзде. Без комиссии! ID объекта в нашей базе: 12157
    размещено: 28.10.2025 , обновлено: 7.11.2025
  • Офис 280 м2 – Токарей, 68

    • 280 м2
    • 2/0 этаж
    • в ТЦ
    266 000 ₽ / месяц
    Объект № 194515. Сдам офис в хорошем состоянии, с отдельным входом. Планировка кабинетная, при необходимости можно убрать перегородки и сделать опен-спейс. Два раздельных санузла (Ж/М). Предоставим арендные каникулы. (по согласованию) На первом фото видно большую парковку для посетителей и сотрудников, так же можем предоставить места на паркинге под шлагбаумом. Вблизи магазины питания и кафе. Просмотр по согласованию. Отвечу на ваши вопросы по телефону, звоните!
    размещено: 22.09.2025 , обновлено: 28.10.2025
  • Офис 120.3 м2 – Викулова, 32А

    • 120.3 м2
    • 1/0 этаж
    • в ТЦ
    165 000 ₽ / месяц
    Объект № 192967. Сдам универсальное помещение на 1 этаже жилого дома.120.3 кв.м. Кондиционирование, сигнализация, видеонаблюдение. Состоит из двух залов и кабинета. Отличный ремонт, заезжай и зарабатывай. Хороший пешеходный и автомобильный трафик. Возможность подъезда для загрузки-выгрузки товара. Рядом наземная парковка.
    размещено: 10.07.2025 , обновлено: 6.11.2025
  • Офис 82 м2 – Татищева, 102

    • 82 м2
    • 1/12 этаж
    • в доме
    180 000 ₽ / месяц
    Сдается в аренду помещение площадью 82 м2 на первой линии. Помещение расположено на первом этаже с отдельной входной группой, есть место для вашей вывески. Высокие потолки; внутридомовая вентиляция; большие стеклянные витражи на внешней и внутренней сторонах; стеклянная входная группа; комплексная система видеонаблюдения внешней и внутренней территории ЖК; система пожарной безопасности. Есть санузел - уже установлен унитаз, раковина, сантехника. Также предусмотрена гостевая бесплатная парковка напротив входа в помещение - что будет очень удобно для ваших посетителей и сотрудников. Рaзвитая тpaнcпоpтнaя инфрacтруктуpa - клиентам вашего бизнеса будет комфортно добираться до вас. Что немаловажно, это внешний вид вашего бизнеса- оригинальная отделка фасада дома, подсветка, озеленение, места для отдыха создают уютное и комфортное расположение у посетителей и жильцов. Готовы предоставить помещение под стоматологию, салон, магазин, аптеку, офис, либо иного востребованного направления деятельности. Aренда на длительный сpoк. Стоимость аренды 180 тысяч в месяц+ КУ. Залог 180 тысяч. Коммунальные услуги оплачиваются отдельно Арендатором. На время ремонта и подготовки к открытию бизнеса, Арендатор освобождается от арендной платы. Готова ответить на ваши вопросы по телефону, просмотр по предварительной договоренности. ID объекта в нашей базе: 9256
    размещено: 12.05.2025 , обновлено: 7.11.2025

    Офис 60.7 м2 – Репина, 109

    • 60.7 м2
    • 1/9 этаж
    • в доме
    122 000 ₽ / месяц
    Объект № 190435. Помещение свободного назначения площадью 60,7 кв. метров, расположенное в новом ЖК Астон Отрадное. Отличное место – высокий пешеходный и автомобильный трафик. Дом расположен напротив ТЦ «Радуга Парк». Рядом находятся банки, магазины, офисы. Также в шаговой доступности остановки общественного транспорта. Помещение находится на первом этаже с отдельной входной группой и панорамным остеклением, что позволит Вам разместить свою вывеску и рекламу. Помещение угловое, смотрит на улицу Репина. Для Ваших клиентов на автомобиле прямо перед домом собственная наземная парковка. Свой санузел, потолки 4 метра. Заведённая электромощность составляет 8 кВт. Арендные каникулы на время проведения ремонтных работ предоставляем. Буду рад ответить на Ваши вопросы.
    размещено: 06.03.2025 , обновлено: 7.11.2025

Приоритет

Увеличивает просмотры в 3 раза

Ваше объявление показывается в списке выше обычных объявлений. подключить