На Метре реклама - только нормальная. Никакого шок-контента.
Помогайте независимому ресурсу, как он помогает вам. Удачи!
Новостройки Котт. посёлки Объявления Динамика цен и сделок

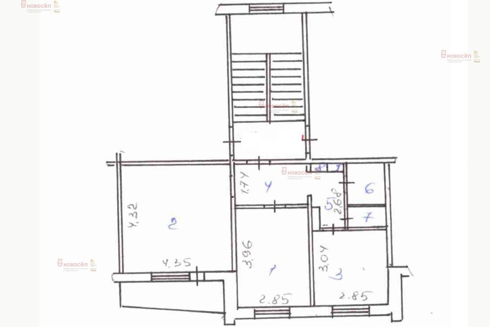
Продажа квартиры: г. Ревда, ул. Чехова, 43 (городской округ Ревда)

  • опубликовано 1.03.2021 , обновлено 16.09.2025
  • 28
Кадастровый номер:66:18/01:01:148:43:50
Рынок:вторичный
Срок сдачи: 1982 года
Количество комнат:2
Общая площадь:50 м2
Жилая площадь:30 м2
Площадь кухни:9 м2
Этаж/Этажность дома:4 / 5
Санузел:раздельный
Отделка:евроремонт
Год постройки:1982
Состояние:хорошее
Цена:
1 890 000
Объявление снято с публикации
Коммунальные платежи:оплачиваются отдельно
Ипотека:возможна

Объект № 138222. Продам квартиру улучшенной планировки. Район школы № 2, Еланский парк. Четвертый этаж в пятиэтажном доме. В хорошем состоянии. Окна пластик, балкон остеклен. Входная сейф- дверь, межкомнатные двери.
Остается шкаф-купе в прихожей. Ванная в кафеле. Счетчики на воду и электроэнергию.
Вся инфраструктура в шаговой доступности. Рассмотрим различные сертификаты. Помощь в оформлении ипотеки, для данной квартиры, совершенно бесплатно. Возможен обмен на 3-х комнатную квартиру, кроме первого этажа. ***Гарантийный сертификат «Защита собственности» по данному объекту в подарок***

Объявление снято с публикации

Ипотечный калькулятор

лет
%
Сумма кредита
1890000 ₽
Платеж
22 540 ₽

Актуальные предложения в этом доме

  • 2-к квартира, Чехова, 43

    • 50.2 м2
    • 1/5 этаж
    • Состояние:
    3 100 000 ₽ (61800 ₽/м2)
    Объект № 197197. Представьте, Вы заходите в светлую, просторную квартиру площадью 50,2 кв.м, где каждая деталь создана для комфорта. Здесь хватит места для семьи, гостей и ваших самых смелых дизайнерских идей! Что вас порадует: кухня 9 кв.м - настоящая мечта хозяйки. Раздельный санузел и ванная комната в кафеле - практично. Просторный коридор и удобные раздельные комнаты - ничего не будет мешать. Большая остеклённая лоджия - место для утреннего кофе или зимнего сада. Высокий первый этаж - удобно и безопасно. Квартира в отличном состоянии: новые радиаторы, заменены трубы и счётчики воды, линолеум на полу и надёжная сейф‑дверь на входе. Рядом вся необходимая инфраструктура: детские сады, школа № 2, магазины, кафе, храм, парки и даже пруд! А для владельцев собак есть специальная площадка - всё в шаговой доступности. Важные детали: собственник - взрослый, квартира без обременений, готовы к быстрой сделке, ключи в день сделки. Звоните, покажем в удобное время! ***Гарантийный сертификат «Защита собственности» по данному объекту в подарок***
    размещено: 12.02.2026 , обновлено: 13.02.2026

История предложений в этом доме

объявление снято с публикации в продаже комнат площадь этаж цена,
г. Ревда, ул. Чехова, 43 (городской округ Ревда) - фото квартиры 13 февраля 2025 90 дн. 2 53 2/5 3 150 000
г. Ревда, ул. Чехова, 43 (городской округ Ревда) - фото квартиры 22 апреля 2023 90 дн. 4 76.5 3/5 2 950 000
г. Ревда, ул. Чехова, 43 (городской округ Ревда) - фото квартиры 3 декабря 2022 90 дн. 3 64.7 4/5 2 550 000
г. Ревда, ул. Чехова, 43 (городской округ Ревда) - фото квартиры 18 мая 2022 90 дн. 2 53 2/5 2 320 000
г. Ревда, ул. Чехова, 43 (городской округ Ревда) - фото квартиры 10 июня 2022 90 дн. 2 50.4 1/5 2 050 000
г. Ревда, ул. Чехова, 43 (городской округ Ревда) - фото квартиры 10 ноября 2021 90 дн. 2 52.5 1/5 1 650 000
г. Ревда, ул. Чехова, 43 (городской округ Ревда) - фото квартиры 13 января 2022 90 дн. 4 77 3/5 2 750 000

Похожие предложения о продаже квартир в г. Ревда

  • 2-к квартира, Кирзавод, 12

    • 45 м2
    • 1/2 этаж
    • Состояние: хорошее
    2 400 000 ₽ (53300 ₽/м2)
    Продам двухкомнатную квартиру в центре Кирзавода. Всë в шаговой доступности- новая школа, детский сад с бассейном, спорт комплекс со стадионом, клуб- с кружками для детей, магазины, даже свой пляж. Автобусная остановка рядом. В квартире поменяны стеклопакеты, в одной комнате натяжной потолок, радиаторы отопления и ламинат. Самое главное документы готовы. Чистая продажа. ID объекта в нашей базе: 495
    размещено: 09.12.2024 , обновлено: 1.02.2026
  • 2-к квартира, Карла Либкнехта, 41

    • 41 м2
    • 1/4 этаж
    • Состояние: хорошее
    2 370 000 ₽ (57800 ₽/м2)
    Объект № 186024. Продам уютную двухкомнатную квартиру в спальном районе города Ревды. Квартира в хорошем состоянии, комнаты раздельные, в одной из комнат два окна, благодаря чему она светлая. Пластиковые окна, сейф-дверь, натяжные потолки, на полу ламинат, в санузле кафель. Кухонный гарнитур остаётся в подарок Покупателю. Рядом с домом есть всё необходимое для комфортного проживания: шк №29, Еврогимназия, дет.сады, остановки транспорта, различные магазины. Рассмотрим ипотеку и мат.капитал, поможем с оформлением. Показы возможны по предварительной договорённости. Звоните! ***Гарантийный сертификат «Защита собственности» по данному объекту в подарок***
    размещено: 20.08.2024 , обновлено: 8.02.2026

Новостройки г. Ревда

Приоритет

Увеличивает просмотры в 3 раза

Ваше объявление показывается в списке выше обычных объявлений. подключить