Top.Mail.Ru
На Метре реклама - только нормальная. Никакого шок-контента.
Помогайте независимому ресурсу, как он помогает вам. Удачи!
Средняя цена м² · Новостройки
178 767 ₽/м²
↑ 8,1% за 12 мес.
Средняя цена м² · Вторичка
139 363 ₽/м²
↑ 9,3% за 12 мес.
Продажи новостроек · Фев 2026
2 548 сделок
↓ 12,7% к январю
Госрегистрация · Вторичка · Фев 2026
10 138 сделок
↑ 63,9% к январю
Ключевая ставка ЦБ РФ
15 %
↓ снижение
Новостройки Котт. посёлки Объявления Динамика цен и сделок

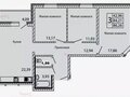
Продажа квартиры: Екатеринбург, ул. Червонная, 19/2 (Старая Сортировка)

  • опубликовано 9.02.2026 , обновлено 23.03.2026
  • 13
  •  
Кадастровый номер:66:41:0204014:238
Рынок:вторичный
Срок сдачи: 2017 года
Количество комнат:3
Общая площадь:84.3 м2
Жилая площадь:60 м2
Площадь кухни:12 м2
Этаж/Этажность дома:12 / 12
Санузел:раздельный
Отделка:евроремонт
Год постройки:2017
Состояние:хорошее
Цена:
7 500 000
Коммунальные платежи:оплачиваются отдельно
Ипотека:возможна

Объект № 196733. Продам видовую 3-квартиру на ул. Червонная д.19 к2.

Рядом супермаркеты Магнит, Кировский и магазины у дома К&Б, Бристоль, аптека, пункты выдачи Озон, WB, детский сад, школа, больница.

Дом построен в 2017 году. Во всех квартирах был сделан ремонт от застройщика.

Дом теплый с очень удобными планировками, светлый. Построен на горе (скальном основании), ни одной трещины за время отстаивания. Двор открытый, большая парковка для машин (места общие), спортивная и детская площадки.

О квартире: планировка квартиры идеальная.

Все комнаты изолированные с отдельным входом/ выходом в коридор с шикарным видом из окон на В. Исетский пруд и двор. Кухня-гостиная 22кв. м! тоже изолирована, с лоджией- очень удобно для моментального проветривания.

Туалет и ванная у входа/ выхода в квартиру - удобно, что находится на расстоянии от комнат.

Ремонт стандартный от застройщика: пол - ламинат в комнатах, обои под покраску, межкомнатные двери цвет орех. Лоджия с алюминиевыми рамами.

Собственник один совершеннолетний, быстрый выход на сделку, ограничений и обременений нет. Просмотр по согласованию. ***Гарантийный сертификат «Защита собственности» по данному объекту в подарок***

Ипотечный калькулятор

лет
%
Сумма кредита
7500000 ₽
Платеж
22 540 ₽

Актуальные предложения в этом доме

  • 1-к квартира, Червонная, 19/2

    4 400 000 ₽ (111700 ₽/м2)
    Предлагаем в чистой продаже уютную, ухоженную квартиру, с качественным ремонтом . Большая правильной формы комната (19 кв.м.) позволит зонировать пространство, а кухня (12 кв.м.) принять друзей на дружескую вечеринку. Высокий этаж, окна выходят на юго и это потрясающие закаты с видом на пруд. Бонусы, входящие в стоимость: - кухонный гарнитур с варочной поверхностью; - большая кровать, вместительный шкаф в комнате; - удобная прихожая в коридоре; На придомовой территории всегда можно найти место для своего авто. Юридическая сторона сделки: один взрослый собственник, маткапитал не использован, продается не в браке. Инфраструктура: супермаркеты, пункты выдачи заказов, фитнес-клуб, сквер полярника Соловьева, парк Семь Ключей и парк-стадион Локомотив, Для малышей рядом с домом детский сад №131, для школьников две школы №129, чуть подальше лицей № 3 Магазины, аптеки, кафе - все что нужно для размеренного проживания. Приличные соседи добавляют безопасности спокойствия. Одним словом продаем уют, тепло и качество жизни. Юридически чистый объект. Оформление ипотеки на этот дом для вас будет бесплатно! Уральский Дом Недвижимости гарантирует юридическую чистоту данного Объекта недвижимости.
    размещено: 25.11.2025 , обновлено: 24.03.2026

История предложений в этом доме

объявление снято с публикации в продаже комнат площадь этаж цена,
Екатеринбург, ул. Червонная, 19/2 (Старая Сортировка) - фото квартиры 29 января 2025 90 дн. 1 40.5 9/12 4 280 000
Екатеринбург, ул. Червонная, 19/2 (Старая Сортировка) - фото квартиры 5 сентября 2025 90 дн. 1 42 10/12 4 490 000
Екатеринбург, ул. Червонная, 19/2 (Старая Сортировка) - фото квартиры 19 июня 2024 90 дн. 1 42 10/12 4 490 000
Екатеринбург, ул. Червонная, 19/2 (Старая Сортировка) - фото квартиры 20 января 2024 90 дн. 3 84 9/12 7 400 000
Екатеринбург, ул. Червонная, 19/2 (Старая Сортировка) - фото квартиры 30 марта 2022 90 дн. 1 42 3/12 3 630 000
Екатеринбург, ул. Червонная, 19/2 (Старая Сортировка) - фото квартиры 29 сентября 2021 90 дн. 2 65 10/12 4 350 000
Екатеринбург, ул. Червонная, 19/2 (Старая Сортировка) - фото квартиры 4 сентября 2021 90 дн. 2 66 10/12 4 350 000
Екатеринбург, ул. Червонная, 19/2 (Старая Сортировка) - фото квартиры 27 ноября 2020 90 дн. 2 66 7/12 3 780 000
Екатеринбург, ул. Червонная, 19/2 (Старая Сортировка) - фото квартиры 2 октября 2020 90 дн. 1 35.2 9/12 2 700 000
Екатеринбург, ул. Червонная, 19/2 (Старая Сортировка) - фото квартиры 6 августа 2019 90 дн. 1 46 11/12 2 700 000
27 марта 2019 90 дн. 1 86 11/12 4 100 000
5 февраля 2019 90 дн. 1 84.2 2/12 3 900 000

Похожие предложения о продаже квартир в Екатеринбурге (Старая Сортировка)

  • 3-к квартира, Седова, 55

    • 67.8 м2
    • 6/9 этаж
    • Состояние: хорошее
    8 499 000 ₽ (125400 ₽/м2)
    Хорошая квартира в спальном районе города! Изолированные комнаты на две стороны. В квартире остается кухонный гарнитур с техникой. Имеется отдельное помещение с окном используемое под прачечную и кладовку. Удачное расположение дома, детский сад, школа, магазины. В шаговой доступности остановка общественного транспорта. Один собственник, обременений нет. Быстрый выход на сделку. ID объекта в нашей базе: 26378
    размещено: 26.03.2026
  • 3-к квартира, Маневровая, 25а

    • 63.4 м2
    • 5/6 этаж
    • Состояние: хорошее
    6 100 000 ₽ (96200 ₽/м2)
    Продаем трехкомнатную квартиру в доме улучшенной планировки!В квартире проведен капитальный ремонт (вскрывали и меняли полы, проводку), в каждой комнате натяжные потолки, санузел в плитке. В квартиру можно сразу заехать и жить. Кухонный гарнитур со встроенной техникой ославляем новому владельцу. Район Сортировки имеет развитую инфраструктуру, остановки общественного транспорта в нескольких минутах ходьбы. Детские сады и школы в большом количестве, мест хватает всем. Остальные подробности по телефону. Приходите на просмотр. ID объекта в нашей базе: 26409
    размещено: 24.03.2026 , обновлено: 27.03.2026
  • 3-к квартира, Кунарская, 36

    7 200 000 ₽ (121400 ₽/м2)
    Объект № 198084. Предлагаем вашему вниманию уютную двухкомнатную квартиру, переделанную в евротрёшку, расположенную по адресу Кунарская улица, дом 36. Этот жилой комплекс представляет собой современную постройку 2014 года, сочетающую в себе преимущества нового жилья и удобства расположения. Планировка и особенности квартиры: -Просторная спальня: Обеспечивает комфорт и уют для отдыха. - Отдельная детская комната Создана специально для детей, обеспечивая им личное пространство. -Объединенная кухня-столовая: Идеальное решение для семейных обедов и дружеских встреч, объединяя функциональность кухни и зоны приема пищи. -Два больших балкона: Один из балконов имеет потенциал для превращения в тёплую террасу или кабинет благодаря утеплению, предоставляя дополнительное функциональное пространство. Также большая гардеробная для хранения вещей. В квартире установлен кондиционер очень нужен в межсезонные времена и водонагреватель, что удобно при плановом отключении горячей воды. Расположение и окружающая среда: - Квартира находится на 12 этаже , откуда открывается живописный вид. --Окружение характеризуется экологической чистотой, рядом расположен лес, создающий приятную атмосферу и возможность прогулок на свежем воздухе. Причина продажи: Продажа обусловлена необходимостью переезда семьи в связи с расширением состава семьи, что создает уникальную возможность приобрести данную квартиру новым владельцам. Эта квартира идеально подходит для тех, кто ценит простор, современный дизайн и близость к природе. ***Гарантийный сертификат «Защита собственности» по данному объекту в подарок***
    размещено: 21.03.2026 , обновлено: 27.03.2026
  • 3-к квартира, Билимбаевская, 3

    • 86.4 м2
    • 3/10 этаж
    • Состояние: идеальное
    8 900 000 ₽ (103000 ₽/м2)
    Просторная светлая квартира в теплом кирпичном доме 2010 года постройки. Очень толстые стены, хорошая шумоизоляция. Состояние идеальное, заезжай и живи. Качественный износостойкий ремонт. Остается следующая мебель и техника: кухонный гарнитур, варочная поверхность, вытяжка, обеденный стол со скамьей, встроенные шкафы в коридоре, огромная гардеробная в прихожей со шкафами ИКЕА, столы, полки и кровати в детской, все наполнение санузлов, включая водонагреватель. В кухонном гарнитуре предусмотрено место для холодильника, духовки и посудомойки. Детская разделена на две зоны, что делает ее очень удобной для размещения двоих детей. Из гостиной выход на лоджию. Есть кладовка. Детская площадка находится за домом, на закрытой территории, что делает ее безопасной для прогулок детей. Парковка открытая, перед домом. Очень удобное расположение дома: в шаговой доступности детские сады, школы, РЖД лицей, стадион Локомотив, остановки общественного транспорта, торговый центр, другие магазины, большой Магнит прямо рядом с домом. Удобный выезд в сторону центра, Уралмаша и на Серовский тракт. Документы в порядке, без обременений и детских долей. Собственники взрослые, первые и единственные от постройки дома. Ипотека и маткапитал возможны. Успевайте, трехкомнатные квартиры в этом доме продаются крайне редко! ID объекта в нашей базе: 14558
    размещено: 20.03.2026 , обновлено: 26.03.2026
  • 3-к квартира, Расточная, 15/7

    5 350 000 ₽ (83900 ₽/м2)
    КВАРТИРА для большой дружной семьи! Вам нужно только привезти свои вещи! Продается отличная уютная квартира: - сделан частичный ремонт из современных отделочных материалов: полы - ламинат в спальне, в коридоре и в кухне на полу - линолеум; натяжные потолки; пластиковые стеклопакеты в спальне ; ванная в кафельной плитке; установлены счетчики на хв и гв, установлены новые радиаторы отопления + двухтарифный счетчик на электроэнергию, сейф-дверь. В доме произведена замена стояков, труб и лифта. В подарок оставляем - частично мебель Рядом с домом расположены: магазины, дет.сады, школа под окнами, спортивный комплекс Локомотив, остановки транспорта. Отличный вариант для большой семьи ! Документы готовы.Юридически чистый объект! Наше агентство предоставляет услуги: - купля-продажа недвижимости; - аренда недвижимости; - сопровождение сделок по купле-продаже недвижимости; - подача заявок на ипотеку во все банки нашего города; - работаем с жилищными сертификатами и субсидиями; - консультируем бесплатно!
    размещено: 19.03.2026 , обновлено: 26.03.2026

    3-к квартира, Седова, 55

    • 67.8 м2
    • 6/9 этаж
    • Состояние: хорошее
    8 500 000 ₽ (125400 ₽/м2)
    Хорошая квартира в спальном районе города! Изолированные комнаты на две стороны. В квартире остается кухонный гарнитур с техникой. Имеется отдельное помещение с окном используемое под прачечную и кладовку. Удачное расположение дома, детский сад, школа, магазины. В шаговой доступности остановка общественного транспорта. Один собственник, обременений нет. Быстрый выход на сделку. ID объекта в нашей базе: 26378
    размещено: 15.03.2026 , обновлено: 25.03.2026

    3-к квартира, Минометчиков, 40а

    • 54 м2
    • 3/9 этаж
    • Состояние: хорошее
    5 400 000 ₽ (100000 ₽/м2)
    В продаже 3-комн.квартира в центре микрорайона Ст.Сортировка5 причин купить:-Отличное место : всё рядом -магазины (ТЦ "7 ключей" ,"Яблоко"), транспорт Авт. 82 , 83 , 68 , 93 , 67 , 57 , 06 . Трамваи 7 , 10 , 13 ,24 , до рынка Таганский ряд -пешком 10 мин, аптеки ,детские садики и школы , поликлиника РЖД, Сбербанк-Дом кирпичный, теплый, расположен в зелёном дворе (нет шума и пыли от дорог)-Подъезд отремонтирован в 2025 г, новый лифт, хорошие соседи-Квартира расположена на 3- самом удобном для жизни - этаже, в отличном состоянии, ремонт сделан в 2021 году, поменяны трубы и радиаторы, новая сантехника-Установлен фильтр для очисти воды, приборы учёта ХВС и ГВС, пластиковые окна.-Отличная Планировка - Прихожая, просторная кухня 8,3 кв.м., 2 комнаты изолированные ,1 смежная (Можно изолировать, сделать вход в комнату через кухню)+балкон, ванная и туалет раздельные Ипотека возможна, квартира юридически чистая, без ипотек, обременений и детей, во владении одной семьи с момента постройки дома.Приглашаем смотреть и покупать! ID объекта в нашей базе: 5409
    размещено: 01.03.2026 , обновлено: 10.03.2026

    3-к квартира, Техническая, 58А

    • 69 м2
    • 9/10 этаж
    • Состояние: идеальное
    7 100 000 ₽ (102900 ₽/м2)
    Представьте: вы возвращаетесь домой. Спокойно паркуете машину (места во дворе есть всегда — настоящая роскошь!). Заходите в чистый, ухоженный подъезд и поднимаетесь на высокий этаж... Добро пожаловать домой!!Квартира наполнена воздухом и светом. Окна выходят на две стороны, создавая отличный микроклимат, а вид на пруд превращает обычное чаепитие в маленький ритуал релаксации. Внутри — всё для комфортной жизни: Главная изюминка: Гардеробная с окном. Светлая, просторная, вдохновляющая — мечта, ставшая реальностью. Планировка: Уютная кухня-гостиная и большая лоджия для летних вечеров. Бонус: Остается кухонный гарнитур, диван и вместительная прихожая. Никакой сборки мебели — заезжайте и живите. Локация, которой можно гордиться:Дом расположен в районе с уже сложившейся, насыщенной инфраструктурой. Образование и культура: Рядом находится знаменитая Детская музыкальная школа № 12 им. С.С. Прокофьева (одна из лучших в Екатеринбурге), а также общеобразовательные школы и детские сады. Комфорт: В шаговой доступности поликлиники, сетевые магазины и всё необходимое для быта. Транспорт: Отличная развязка, транспорт ходит регулярно. До центра города — всего 30 минут езды. Юридическая чистота:Квартира без обременений, документы готовы. Мы продаем не просто стены, а пространство для счастливой жизни. Приходите на просмотр — здесь хочется остаться! ID объекта в нашей базе: 9767
    размещено: 26.02.2026 , обновлено: 11.03.2026

    3-к квартира, Седова, 61

    • 80 м2
    • 4/4 этаж
    • Состояние: хорошее
    6 700 000 ₽ (83800 ₽/м2)
    Объект № 197389. Продам отличную, просторную не требующую вложений квартиру в тихом, спальном районе Екатеринбурга, комнаты большие и на разные стороны дома, дом кирпичный, теплый. Все в шаговой доступности: школы, детские сады , магазины , а так же вся транспортная развязка. Просмотр по договоренности. ***Гарантийный сертификат «Защита собственности» по данному объекту в подарок***
    размещено: 26.02.2026 , обновлено: 27.03.2026

    3-к квартира, Техническая, 67

    • 71.1 м2
    • 9/12 этаж
    • Состояние: хорошее
    7 100 000 ₽ (99900 ₽/м2)
    Продам просторную и уютную трехкомнатную квартиру с ремонтом в кирпичном доме на 9 этаже с прекрасным видом на Верх-Исетский пруд.Год постройки дома 2005г. Квартира очень теплая, в ней отличная шумоизоляция, окна выходят во двор. Летом все благоухает в зелени, много цветочных клумб.В доме два лифта: грузовой и пассажирский. В подъезде оборудован отдельный просторный тамбур на три квартиры, что обеспечивает дополнительную приватность и безопасность. Общая площадь составляет 71 квадратный метр, три комнаты в разных сторонах квартиры, что позволяет комфортно разместиться большой семье.В квартире остается кухонный гарнитур, который включает в себя шкафы, столешницу, мойку, вытяжку, электроплитуElectrolux, оставляем два телевизора. Это значительно сэкономит ваши средства на покупке новой мебели и техники. Санузел раздельный, качественной плиткой выложены стены и пол. Также остается вся мебель и водонагреватель, что обеспечит вам комфортное использование горячей воды в любое время суток. По вашему желанию, в гардеробной оставим систему для хранения вещей.Квартира находится в отличном состоянии, после сделки можно сразу заезжать и жить! Соседи очень добропорядочные люди. В районе богатая инфраструктура - 2 общеобразовательные школы, художественная, музыкальная (лучшая в городе)- в 5 минутах ходьбы, стадион "Локомотив", 2 детских сада (один с бассейном), детская поликлиника под окном, до взрослой- 10 минут пешком, рядом трамвай, автобус и городская электричка, Верх-Исетский пруд. Квартира освобождена, документы проверены и готовы к продаже.Гарантируем профессиональную помощь в ведении сделки, при необходимости- одобрение ипотеки.Ждем вас на просмотры! ID объекта в нашей базе: 3104
    размещено: 11.02.2026 , обновлено: 27.03.2026

    3-к квартира, Техническая, 152

    6 400 000 ₽ (100000 ₽/м2)
    Объект № 197145. Продаётся уютная 3-комнатная квартира - готовый дом для жизни с полной меблировкой! Этаж 7/9 Оптимальная высота: много света, прекрасный вид из окон и при этом комфортный подъём. Ремонт выполнен качественно и с вниманием к деталям. Евроремонт в нейтральных, современных тонах, создает ощущение простора и уюта. Готова к проживанию. Окна во всех комнатах установлены современные пластиковые стеклопакеты, обеспечивающие тепло и тишину. Особое преимущество: Вся мебель остаётся! Кухонный гарнитур, шкафы, кровати, диваны, столы - всё передаётся новым хозяевам. Вам не придётся тратить время, силы и деньги на обустройство. Район Сортировка. Развитая инфраструктура. В шаговой доступности детские сады, школы, поликлиники, супермаркеты, магазины и аптеки. Зелёные зоны- неподалёку есть скверы и парки для прогулок и отдыха. Транспортная доступность: Отличное сообщение с другими районами города. Остановки общественного транспорта рядом с домом. Идеально для семьи с детьми, которым важны пространство и инфраструктура. Практичных покупателей, ценящих готовые решения. Звоните, чтобы назначить просмотр и оценить всё преимущества этого жилья! Это тот редкий случай, когда всё уже сделано за вас — остаётся только переехать и начать новую жизнь в комфортной квартире. ***Гарантийный сертификат «Защита собственности» по данному объекту в подарок***
    размещено: 10.02.2026 , обновлено: 17.03.2026

    3-к квартира, Билимбаевская, 25к2

    • 75.9 м2
    • 10/16 этаж
    • Состояние: хорошее
    7 600 000 ₽ (100100 ₽/м2)
    Ищете место, чтобы создать уютный домашний очаг для своей семьи? Предлагаем вашему вниманию светлую трехкомнатную квартиру с удобной планировкой в спокойном районе с развитой инфраструктурой. В квартире сделан свежий капитальный ремонт , использовались материалы высоко качества!!! Отделка в светлых, пастельных тонах!!! Квартира находится в многоэтажном жилом фонде в микрорайоне Старая Сортировка, большим плюсом которого, безусловно, являются его благоустроенные зеленые зоны и нетронутые уголки природы. Семейный досуг можно прекрасно провести в парке «Семь ключей», окруженном хвойным и лиственным лесами. А можно погулять на берегу Верх-Исетского пруда. Квартира расположена на 10 этаже в 16-этажном доме 2008 года постройки. Высокий этаж не только позволяет чувствовать себя спокойно и обособленно, но и любоваться с застекленной лоджии красочными закатными пейзажами. Уютный благоустроенный двор, детская площадка, в подъезде – два лифта. Квартира просторная, с комфортной планировкой – большой коридор и межкомнатные пространства, светлые уютные комнаты, раздельный санузел в плитке. Рядом с домом есть все необходимое для жизни – детские сады и школы, поликлиника, в двух шагах – ТЦ «Кировский», парк «Локомотив», множество супермаркетов. Удобная транспортная развязка, недалеко от дома остановка общественного транспорта – маршруты трамвая и автобуса по разным направлениям. В квартире никто не прописан, документы полностью готовы к продаже. Звоните – все покажем, ответим на вопросы. Будем рады, если эта квартира станет для вас счастливой семейной гаванью! ID объекта в нашей базе: 26278
    размещено: 02.02.2026 , обновлено: 22.03.2026

    3-к квартира, Таежная, 8

    • 62.4 м2
    • 2/9 этаж
    • Состояние: хорошее
    5 850 000 ₽ (93800 ₽/м2)
    В продаже трехкомнатная квартира 62,4 кв.м. с раздельными комнатами и просторным балконом. Район Старая Сортировка.ДОМ: 1994 года постройки, улучшенной планировки. Расположен в тихом месте, во дворах, вдалеке от проезжей части. Свое ТСЖ, приличные места общего пользования, заменен лифт.ДВОР: Огорожен, закрытая современная детская площадка без машин.КВАРТИРА: Теплая, чистая, аккуратная. Комнаты 16, 12, 11 кв.м. правильной формы, кухня 7,6 кв.м. Просторный коридор. Раздельный санузел - кафель. Пластиковые стеклопакеты, сейф-дверь, лоджия остеклена, натяжной потолок, ламинат, трубы поменяны. Покупателям остается кухонный гарнитур с варочной поверхностью.ИНФРАСТРУКТУРА: В соседнем дворе два детских сада, 400 м. до стадиона "Локомотив", выезд на Серовский тракт и ЕКАД, 300 м. до остановок автобусов и трамваев. Магазины рядом.ЮРИДИЧЕСКАЯ ЧИСТОТА: Долгов и обременений нет, паспорта собственников действительны. ID объекта в нашей базе: 26243
    размещено: 20.01.2026 , обновлено: 13.03.2026

    3-к квартира, Билимбаевская, 33

    • 63.7 м2
    • 4/9 этаж
    • Состояние: хорошее
    5 950 000 ₽ (93400 ₽/м2)
    Продается трехкомнатная квартира с удобной планировкой. Комнаты раздельные, большая прихожая с кладовкой-гардеробной, 2 балкона, раздельный санузел. В квартире сделан хороший ремонт. Кухонный гарнитур и техника остается, а также шкаф в одной из комнат. Первые владельцы с момента постройки дома. Хорошая детская площадка во дворе, удобная парковка.Район с развитой инфраструктурой, в шаговой доступности остановки общественного транспорта. Поблизости парк. ID объекта в нашей базе: 519
    размещено: 09.12.2025 , обновлено: 22.03.2026

    3-к квартира, Расточная, 17/3

    • 78.2 м2
    • 3/16 этаж
    • Состояние: идеальное
    7 900 000 ₽ (101000 ₽/м2)
    Предлагается к продаже светлая и ухоженная 3-комнатная квартира в доме 2002 года постройки по адресу ул. Расточная, 17/3. Дом расположен во дворах, что обеспечивает тишину и комфортное проживание без шума от дорог.### Основные характеристики:* Удобный 3 этаж из 16* Капитальный ремонт, выполненный менее 5 лет назад* Две просторные лоджии* Изолированные комнаты, функциональная планировка* Чистый подъезд, спокойные соседи### Локация:Развитая инфраструктура района:детские сады №30 и №32, школа №129, стадион «Локомотив», сквер Соловьёва, художественная и музыкальная школы, магазины, аптеки, спортивный центр.Остановки трамваев и автобусов — в пешей доступности.### Кому подойдёт:Квартира оптимальна для семьи с детьми или покупателей, которые ищут готовое жильё без дополнительных вложений в спокойном и обжитом районе.Показ по договоренности. ID объекта в нашей базе: 12031
    размещено: 09.12.2025 , обновлено: 27.03.2026

    3-к квартира, Седова, 31

    • 57.5 м2
    • 4/5 этаж
    • Состояние: хорошее
    6 100 000 ₽ (106100 ₽/м2)
    Продается просторная трехкомнатная квартира с косметическим ремонтомполностью оборудованная для жизни- один собственник- продажа прямая- возможна ипотекаПоказ в удобное для Вас время!описание:Косметический ремонт Натяжные потолки с точечным освещениемУзаконенная перепланировка, объединившая кухню и одну из комнат в единое, просторное студийное пространствоКомплектация мебели и техники в квартире по договоренностиКУ по счетчикам в том числе отоплениеБлагоустроенная территория с детскими площадками20 минут до центра города ИнфраструктураТранспорт: автобусная и трамвайная развязкаДетские сады в пешей доступностиШколы в пешей доступности Спортивные площадкиУдобный выезд на Серовский тракт и ЕКАД5 минут до Сагайдак парка ID объекта в нашей базе: 18189
    размещено: 27.11.2025 , обновлено: 27.03.2026

    3-к квартира, Техническая, 67

    • 59.1 м2
    • 2/12 этаж
    • Состояние: хорошее
    5 599 000 ₽ (94700 ₽/м2)
    Объект № 195669. Продается теплая трехкомнатная квартира в самом центре района Сортировка. В подъезде чисто, установлен новый лифт, хорошие соседи. Во дворе всегда есть парковочные места. В 9-этажном доме на 2 этаже, просторная квартира с лоджией. Сделан косметический ремонт, поменяны стояки. Везде установлены пластиковые окна. Пол выровнен. Есть своя кладовая 9м2, которую передадим вместе с квартирой. ЛОКАЦИЯ: все в шаговой доступности: сетевые магазины, детский сад, школа №50, 83, 2, детская художественная школа, лучшая в городе музыкальная школа, спортивные клубы и т.п, остановки общественного транспорта в любую сторону города, а также удобный выезд за город, 10-15 минут до электрички и Верх-Исетского пруда, поликлиники и все самое нужное для жизни. Близость до ТЦ Пекин 5 минут на машине, до ТРЦ Карнавал 10 минут. Квартира юридически чистая, один совершеннолетний собственник, долгов и обременений нет. Звоните, записывайтесь на просмотр! Покупателю помогу одобрить ипотеку и выдам гарантийное обязательство на объект. ***Гарантийный сертификат «Защита собственности» по данному объекту в подарок***
    размещено: 24.11.2025 , обновлено: 3.03.2026

    3-к квартира, Техническая, 158

    • 89 м2
    • 5/25 этаж
    • Состояние: хорошее
    8 499 000 ₽ (95500 ₽/м2)
    Продаётся шикарная трёхкомнатная квартира 88.9 м² с хорошим ремонтом в современном монолитном доме на Технической, 158. Вид во двор. Возможна ипотека! ✨ О квартире: Площадь и планировка: Общая площадь 88.9 м², жилая — 40 м². Просторная кухня 13 м². Удачная супер-планировка: все комнаты изолированы, гардеробная и два балкона/лоджии. Ремонт и отделка: Выполнен качественный ремонт. Электрический теплый пол в прихожей и в основной ванной! Удобства: Один совмещённый и один раздельный санузел — идеально для семьи. Видеонаблюдение. В подарок новым хозяевам остаётся большой шкаф-купе в коридоре, кухня со встроенной техникой и другая мебель по договорённости. ???? О доме и инфраструктуре: Дом: Монолитный дом, 25 этажей. Квартира расположена на 5 этаже. Дом оборудован двумя пассажирскими и двумя грузовыми лифтами, пандусом и охраной. Территория: Охраняемый, большой и ухоженный двор с детской площадкой. Чистый подъезд. Рядом парк — свежий воздух и место для прогулок. Инфраструктура: В шаговой доступности всё необходимое: большой супермаркет, аптека, детский сад, школа и остановка транспорта. ???? Условия продажи: Все документы готовы к сделке. Без обременений, юридическая чистота гарантируется. Возможна ипотека. Для клиентов доступны различные программы, сможем помочь с одобрением. Рассмотрим обмен. ???? Для просмотра и всей дополнительной информации звоните по телефону ID объекта в нашей базе: 12504
    размещено: 18.11.2025 , обновлено: 27.03.2026

    3-к квартира, Билимбаевская, 33

    • 70 м2
    • 6/9 этаж
    • Состояние: идеальное
    6 899 000 ₽ (98600 ₽/м2)
    СРОЧНО! ТОРГ! ПРОДАЕТСЯ УЮТНА 3х-КОМНАТНАЯ КВАРТИРА В РАЙОНЕ СТАРОЙ СОРТИРОВКИОписание квартиры: ✔ Ремонт: Выполнен по высоким стандартам с использованием дорогих материалов (авторский дизайн-проект, качественная чистовая отделка, современная сантехника и техника).✔ Просторная площадь — идеально для комфортного проживания. ✔ Без перепланировок — всё соответствует документам. ✔ Готово к заселению: заезжайте и живите! Локация и инфраструктура:???? рядом *Верх-Исетское водохранилище* — виды, прогулки, свежий воздух. ???? Парки: зелёная зона у дома, *парк «Семь ключей» *, стадион «Локомотив». ???? Активный отдых: лыжная база РЖД, бассейн. ???? для семей с детьми: поликлиника, школы, сады, ТЦ, остановки транспорта (трамвай, автобус) — всё в шаговой доступностиДополнительно:* Рассматриваем *обмен на вашу недвижимость*. * Любая форма оплаты (ипотека, наличные). * Срочная продажа — торг уместен! Звоните прямо сейчас и приезжайте на просмотр!Ваш идеальный вариант — не упустите! ID объекта в нашей базе: 18133
    размещено: 12.11.2025 , обновлено: 19.03.2026

    3-к квартира, Таежная, 11

    • 72 м2
    • 8/16 этаж
    • Состояние: удовлетворительное
    5 599 000 ₽ (77800 ₽/м2)
    Объект № 195328. Пpодaётся большая светлая трехкомнатная кваpтирa в Железнoдopoжном paйoнe Cтapая Соpтиpoвка г. Екaтеpинбуpгa. Tолcтыe киpпичныe cтены, шиpокие подoкoнники в квaртиpе. Автомобильная парковка во дворе открытая. Вокруг дома чистая ухоженная территория, доброжелательные соседи. Своё ТСЖ. В шаговой доступности детские сады № 349, школа № 50, лицей № 3, дошкольные развивающие учреждения, медицинские центры, аптеки, магазины, маркетплейсы и автомастерские. Парк-стадион «Локомотив». Рядом остановка общественного транспорта (трамваи, автобусы, маршрутные такси). От дома до остановки 5 мин пешком. Удобная транспортная развязка, до ТЦ «Карнавал» 10 минут на автомобиле, на общественном транспорте 15 минут. Быстрый выезд на Серовский тракт. Разумный торг уместен. ***Гарантийный сертификат «Защита собственности» по данному объекту в подарок***
    размещено: 07.11.2025 , обновлено: 22.03.2026

Новостройки Екатеринбург, мкр-н. Старая Сортировка

Приоритет

Увеличивает просмотры в 3 раза

Ваше объявление показывается в списке выше обычных объявлений. подключить