На Метре реклама - только нормальная. Никакого шок-контента.
Помогайте независимому ресурсу, как он помогает вам. Удачи!
Новостройки Котт. посёлки Объявления Динамика цен и сделок

Продажа квартиры: с. Патруши, ул. Тепличная, 4 (городской округ Сысертский)

  • опубликовано 12.02.2026 , обновлено 12.02.2026
  • 4
  •  
Рынок:вторичный
Срок сдачи: 2009 года
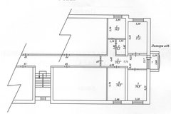
Количество комнат:1
Общая площадь:31.5 м2
Жилая площадь:18 м2
Площадь кухни:7.5 м2
Этаж/Этажность дома:1 / 5
Санузел:совмещенный
Отделка:косметический
Год постройки:2009
Балкон/лоджия:лоджия
Состояние:хорошее
Цена:
2 790 000
Коммунальные платежи:оплачиваются отдельно

Продаётся светлая 1-к квартира с косметическим ремонтом в кирпичном доме 2009 г. с. Патруши, Тепличная 4Тихий двор, готовность к заезду. Уютная однушка в с. Патруши: тёплый кирпич, детские площадки во дворе, отличная транспортная доступность
ID объекта в нашей базе: 13813

Домос 1092 — Олёна Ильинична

показать телефон

Ипотечный калькулятор

лет
%
Сумма кредита
2790000 ₽
Платеж
22 540 ₽

История предложений в этом доме

объявление снято с публикации в продаже комнат площадь этаж цена,
с. Патруши, ул. Тепличная, 4 (городской округ Сысертский) - фото квартиры 1 мая 2025 90 дн. 3 68.1 5/5 5 900 000
с. Патруши, ул. Тепличная, 4 (городской округ Сысертский) - фото квартиры 30 сентября 2024 90 дн. 1 31.9 4/5 2 769 000
с. Патруши, ул. Тепличная, 4 (городской округ Сысертский) - фото квартиры 1 апреля 2024 90 дн. 1 31.9 4/5 2 800 000
с. Патруши, ул. Тепличная, 4 (городской округ Сысертский) - фото квартиры 26 февраля 2023 90 дн. 1 42.9 3/5 3 300 000
с. Патруши, ул. Тепличная, 4 (городской округ Сысертский) - фото квартиры 28 октября 2020 90 дн. 1 31.6 4/5 1 720 000
с. Патруши, ул. Тепличная, 4 (городской округ Сысертский) - фото квартиры 22 сентября 2020 90 дн. 3 84 5/5 3 200 000
с. Патруши, ул. Тепличная, 4 (городской округ Сысертский) - фото квартиры 22 августа 2020 90 дн. 3 84.1 5/5 3 200 000
с. Патруши, ул. Тепличная, 4 (городской округ Сысертский) - фото квартиры 27 апреля 2020 90 дн. 2 60 1/5 3 600 000
с. Патруши, ул. Тепличная, 4 (городской округ Сысертский) - фото квартиры 21 ноября 2019 90 дн. 1 31.6 3/5 1 760 000
с. Патруши, ул. Тепличная, 4 - фото квартиры 19 октября 2019 90 дн. 1 46 5/5 2 300 000
1 марта 2019 90 дн. 1 31.6 3/5 1 540 000

Похожие предложения о продаже квартир в с. Патруши

  • 1-к квартира, Центральная, 14

    • 35 м2
    • 3/3 этаж
    • Состояние: идеальное
    3 000 000 ₽ (85700 ₽/м2)
    Возможно приобрести по старой ставке по ипотеке по 9,9 % годовых Сбербанк. Квартира в хорошем кирпичном доме 2006 года, светлая, теплая, с свежим ремонтом. ID объекта в нашей базе: 16950
    размещено: 23.01.2025 , обновлено: 13.01.2026

Приоритет

Увеличивает просмотры в 3 раза

Ваше объявление показывается в списке выше обычных объявлений. подключить