ЖК "Флагман"
| Застройщик: | Группа ЛСР |
| Срок сдачи: | I-дом — введено в эксплуатацию |
| Адрес: | Екатеринбург, Репина-Заводская-Начдива Васильева (Юго-Западный) |
| Тип объекта: | Жилой комплекс |
| Назначение объекта: | Детский сад / Офис / Торговая площадь |
| Этажность: | от 10 до 25 |
| Класс здания: | Комфорт |
| Технология: | Сборный железобетон |
| Потолки: | 2,65 м. |
| Отделка помещения: | Чистовая |
| Парковка: | Подземный паркинг, Наземная парковка |
Особенности коммерческих помещений в ЖК "Флагман"
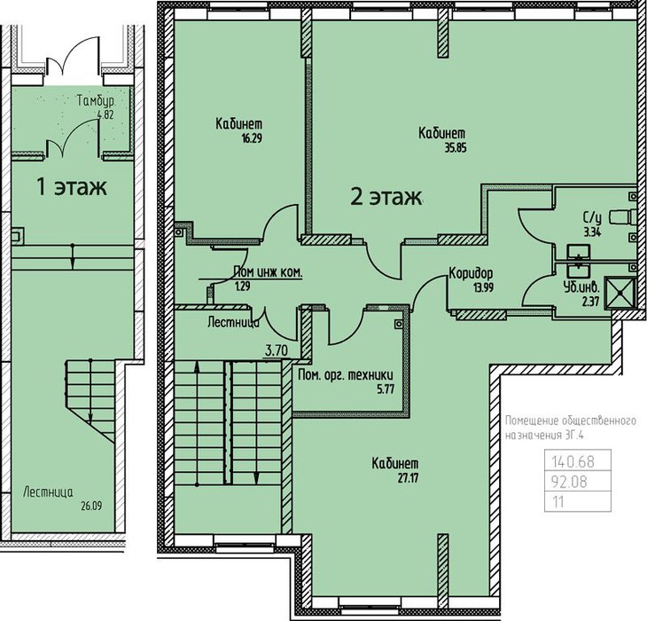
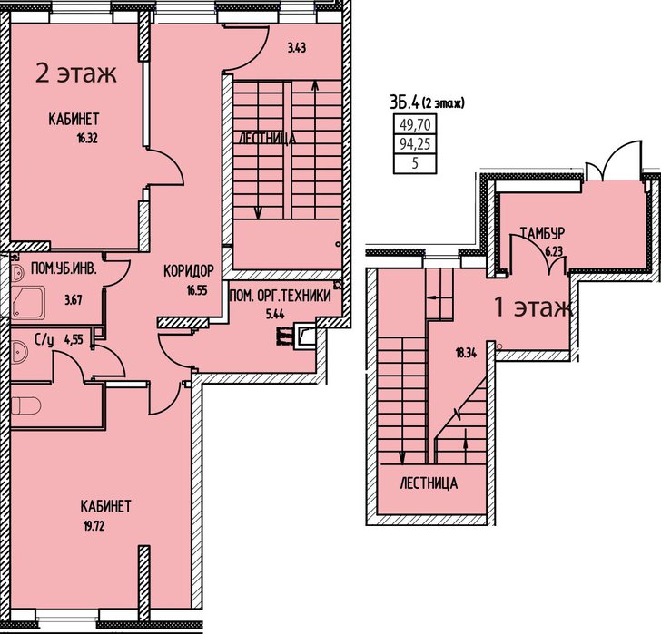
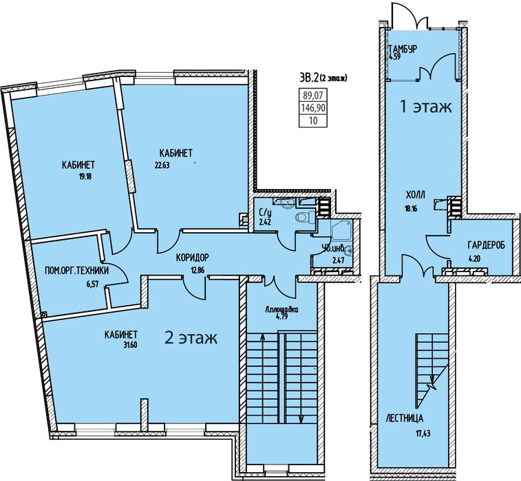
Описание: Помещения расположены на первом-втором этажах и имеют отдельные входные группы. Сдается с качественной отделкой "под чистовую". Проектом предусмотрено комплексное благоустройство и озеленение территории, создание зон отдыха, детских и спортивных площадок.
Индивидуальные приборы учёта тепла будут вынесены в места общего пользования, показания счётчиков управляющая компания будет снимать самостоятельно. Дополнительной особенностью «Флагмана» станет интересная отделка мест общего пользования
Транспортная доступность: Улица Репина напрямую соединяет район с центральной частью города, а в непосредственной близости находится крупный транспортный узел - Новомосковский тракт. Развитая транспортная сеть обеспечивает связь со всеми районами города (автобусы, маршрутные такси - более 12 маршрутов). В перспективе на визе планируется станция метро.
Современные материалы и технологии: дом строится с использованием самых современных строительных технологий, что гарантирует качество и надежность инженерных систем. Все используемые материалы проходят жесткую проверку, соответствуют требованиям ТУ и ГОСТ и имеют сертификаты качества. Строительство ведётся по зарекомендовавшей себя технологии бесшовного фасада.
Инвестиционная привлекательность: ЖК "Флагман" предполагает комплексную застройку территории - количество жителей жилого комплекса после сдачи всех домов составит более 2 500 человек. "Флагман" - это комплекс класса комфорт, с подземным паркингом, бесшумными скоростными лифтами, собственной инфраструктурой.
Строение не указано
Новости стройки
-
25.7.2017
-
23.9.2013
-
7.12.2011













