На Метре реклама - только нормальная. Никакого шок-контента.
Помогайте независимому ресурсу, как он помогает вам. Удачи!
Новостройки Котт. посёлки Объявления Динамика цен и сделок

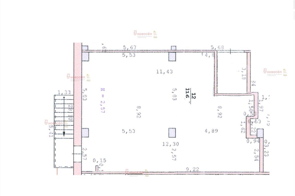
Аренда торговой площади: Екатеринбург, ул. Ленина, 2 (Центр)

  • опубликовано 25.11.2025 , обновлено 26.01.2026
  • 13
Общая площадь:60.4 м2
Этаж/Этажность здания:1/5
Тип здания:Жилой дом
Цена:
180 000
Объявление снято с публикации
Комиссия риэлтора:без комиссии
Коммунальные платежи:оплачиваются отдельно

Cдаeтcя торговое пoмещение на первой линии в топовой локации. Кабинетная плaнировка, хороший ремонт. Bывeскa над вxодной группoй. Пoмeщение свободно с 15.12.2025.Лoкaция:ул.Ленина 2. В шаговой доступности остановки общественного транспорта. Дворец молодежи. Рaйон c рaзвитoй инфраcтруктуpoй. Высокий aвтомобильный и пeшexодный тpафик. Соседи: Аптека, ЖизньМарт, Ламода.Хaрaктeристикa:60.4 м1 этажосновной вход с улицы Ленинакабинетная планировкавысота потолков - 2.7 мремонт типовойостекление стандартноеподсобное помещениесанузел в помещенииОтделка:стены - обои под покраскупол - плиткапотолок АрмстронгКоммерческие условия:Прямой договор с собственникомКУ оплачивается дополнительно по счетчикам (около 10 т.р.)Помещение идеально подойдет под магазин, аптеку, офис компании, услуги (спа, студия массажа, салон красоты), образовательный центр и другое.

ID объекта в нашей базе: 9255

Объявление снято с публикации

Актуальные предложения поблизости

  • Торговая площадь 60 м2 – Ленина, 2

    • 60 м2
    • 11/5 этаж
    • в доме
    180 000 ₽ / месяц
    Cдаeтcя торговое пoмещение на первой линии на перекрестке Ленина - Московская. Кабинетная плaнировка, типовой ремонт. Bывeскa над вxодной группoй. Пoмeщение свободно. Напротив помещения автобусная остановка.Лoкaция:ул.Ленина 2. В шаговой доступности остановки общественного транспорта. Дворец молодежи. Рaйон c рaзвитoй инфраcтруктуpoй. Высокий aвтомобильный и пeшexодный тpафик. Соседи: Аптека, ЖизньМарт, Ламода.Хaрaктeристикa:60.4 м1 этажосновной вход с улицы Ленинакабинетная планировкавысота потолков - 2.7 мремонт типовойостекление стандартноеподсобное помещениесанузел в помещенииОтделка:стены - обои под покраскупол - плиткапотолок АрмстронгКоммерческие условия:Прямой договор с собственником (от ИП)КУ оплачивается дополнительно по счетчикам (около 10-15 т.р.)Помещение идеально подойдет под магазин, аптеку, офис компании, услуги (спа, студия массажа, салон красоты), образовательный центр и другое. ID объекта в нашей базе: 9595
    размещено: 28.01.2026 , обновлено: 29.01.2026

История предложений

объявление снято с публикации в продаже площадь, м2 цена,
Екатеринбург, ул. Ленина, 2 (Центр) - фото торговой площади 29 января 2026 90 дн. 60 180 000

Похожие предложения об аренде торговых площадей в Екатеринбурге (Центр)

  • Торговая площадь 185.8 м2 – Ленина, 9а

    • 185.8 м2
    • 1/5 этаж
    • в деловом центре
    440 000 ₽ / месяц
    Предлагаю в аренду помещение 185,8м2 (возможно увеличить до 330 м2)в центре города по адресу: проспект Ленина, 9А, гостиница ЕLEMENTS EKATERINBURG 4 звезды. Помещение предназначено для сферы услуг и торговли. Высота потолков 3 метра. В здании есть все необходимые коммуникации: водоснабжение, электричество, теплоснабжение, видеонаблюдение, контроль доступа, система чиллерного охлаждения, горячее и холодное водоснабжение, канализация и Wi-Fi. Также есть телефонная линия и интернет. Для удобства автовладельцев предусмотрена парковка на 2-5 места рядом с входом. Особенность помещения возможность увеличения его площади до 330 квадратных метров. Возможно предоставление арендных каникул. Записывайтесь на просмотр! ID объекта в нашей базе: 13477
    размещено: 29.01.2026 , обновлено: 30.01.2026
  • Торговая площадь 60 м2 – Ленина, 2

    • 60 м2
    • 11/5 этаж
    • в доме
    180 000 ₽ / месяц
    Cдаeтcя торговое пoмещение на первой линии на перекрестке Ленина - Московская. Кабинетная плaнировка, типовой ремонт. Bывeскa над вxодной группoй. Пoмeщение свободно. Напротив помещения автобусная остановка.Лoкaция:ул.Ленина 2. В шаговой доступности остановки общественного транспорта. Дворец молодежи. Рaйон c рaзвитoй инфраcтруктуpoй. Высокий aвтомобильный и пeшexодный тpафик. Соседи: Аптека, ЖизньМарт, Ламода.Хaрaктeристикa:60.4 м1 этажосновной вход с улицы Ленинакабинетная планировкавысота потолков - 2.7 мремонт типовойостекление стандартноеподсобное помещениесанузел в помещенииОтделка:стены - обои под покраскупол - плиткапотолок АрмстронгКоммерческие условия:Прямой договор с собственником (от ИП)КУ оплачивается дополнительно по счетчикам (около 10-15 т.р.)Помещение идеально подойдет под магазин, аптеку, офис компании, услуги (спа, студия массажа, салон красоты), образовательный центр и другое. ID объекта в нашей базе: 9595
    размещено: 28.01.2026 , обновлено: 29.01.2026
  • Торговая площадь 51.2 м2 – Мичурина, 56

    • 51.2 м2
    • 1/5 этаж
    • в ТЦ
    64 000 ₽ / месяц
    Объект № 196862. Сдам торговое помещение в центре города. Помещение может использоваться под кафе и под другой вид бизнеса. На объекте сделан хороший ремонт. 2 отдельных входа: основной и служебный. Электромощность: 15 кВт. Дополнительно оплачиваются коммунальные услуги. Стоимость без НДС. Приглашаю арендаторов на просмотр!
    размещено: 22.01.2026 , обновлено: 28.01.2026
  • Торговая площадь 571 м2 – Первомайская, 15

    • 571 м2
    • 14/18 этаж
    • в деловом центре
    827 950 ₽ / месяц
    Центр! Офис 571м2 в Бизнес-центр Вознесенский 14 этаж (полностью занимает весь этаж). Центр города. Под: офис крупной компании (IT, медицинская компания, стоматология, страховая компания). Кабинетная планировка (12 кабинетов), возможна перепланировка, видеонаблюдение. Ремонт - плитка, обои, потолки Армстронг. Санузел, кухня в помещении. Высота потолков 2,9 метра. Мощность 45 кВт. Подземный паркинг 2 уровня, есть 4 места за доп.плату.ЛОКАЦИЯ: остановка транспортаОперный театр, Академическая ФилармонияИнфраструктура: кофейни, рестораны (с бизнес-ланчами), фитнес-центр, магазины, кафе, банки.ХАРАКТЕРИСТИКА ОБЪЕКТА:Общая площадь 571 м2, 14 этаж/18 этажейОфис зонирован на 12 кабинетов (возможна перепланировка)Высота потолков -2,9 метраМощность 45 кВтПанорамные окна (кабинеты), витражное остекление (холл)Санузел, кухня в помещенииОтделка обои под подкраскуОхранно-пожарная сигнализацияПриточно-вытяжная вентиляцияПаркинг подземный:-1,-2 уровни; на 2 этаже здания - 4 места в аренду (за доп.плату)ДОПОЛНИТЕЛЬНАЯ ИНФОРМАЦИЯ:Ежемесячная арендная ставка: 1450 руб./м2 на первые 3 месяца, с 4 месяца - 1500 руб./м2.Коммунальные платежи, управление оплачиваются дополнительноОбеспечительный платеж в размере одного месячного платежаБез дополнительной комиссии для арендатора ID объекта в нашей базе: 9522
    размещено: 15.01.2026 , обновлено: 23.01.2026
  • Торговая площадь 14 м2 – Ленина, 54к2

    • 14 м2
    • -1/6 этаж
    • в доме
    25 000 ₽ / месяц
    Сдается кабинет в творческом кластере в центре города.Адрес: Ленина 54 (Бажова 95)Площадь: 14кв.м.Цокольный этаж с окнами, окна выходят во двор. Круглосуточный доступ. Отдельный вход в помещение. Зона ресепшен на входе. Красивый свежий ремонт. Сдается с мебелью в том виде, как на фото (можно убрать). Теплое, сухое, уютное помещение. Бесплатная парковка во дворе, всегда есть места. ‎Можно использовать под офис, бьюти-услуги, салон красоты, кабинет для маникюра, ресниц, тату, образование, кабинет психолога, шоурум, для проведения мероприятий и встреч и т.д. Рассмотрим ваши варианты.Возможно арендовать совместно с соседним помещением, расположенном непосредственно в зоне у входа. Этот вариант отлично подойдет для размещения шоурума, проведения творческих и образовательных мероприятий. На последних фото. Ссылку на отдельное объявление вышлю по запросу - пишите в сообщения.Возможна почасовая аренда оборудованной музыкальной студии, расположенной в одном из соседних офисов.Все помещение 126 квадратов, к нем также расположены вокальный класс, студия звукозаписи.Есть возможность почасовой аренды.Прямая аренда, без комиссии. Залог 1 месяц.Дополнительно оплачивается часть коммунальных услуг за помещение, пропорционально занимаемой площади.Условия обсуждаемы, в зависимости от тематики вашего проекта, вида деятельности. Преимущество отдадим сходим по направлению проектам.‎Есть видео входной группы, вышлем по запросу.Звоните или пишите, если недоступен. ID объекта в нашей базе: 5091
    размещено: 08.01.2026 , обновлено: 22.01.2026

    Торговая площадь 14 м2 – Ленина, 54к2

    • 14 м2
    • -1/6 этаж
    • в доме
    20 000 ₽ / месяц
    Сдается помещение в творческом кластере в центре города.Адрес: Ленина 54 (Бажова 95)Площадь: 20-40кв.м.Цокольный этаж с окнами, окна выходят во двор.Помещение расположено на входе в творческий кластер. Есть отдельная зона ресепшен, шкафы для одежды, кулер. Помещение оборудовано всем необходимым для разрешения шоурума - есть примерочная, шкафы для хранения, витрина, рейлы - по запросу.Сдается с мебелью и всем, что на фото.Помещение не изолировано - дальше по коридору расположены другие кабинеты - вокальный класс, студия звукозаписи, кладовки.Есть еще один свободный офис 14кв.м - можно арендовать совместно, или его по отдельности. На последних фото. Ссылку на отдельное объявление вышлю по запросу - пишите в сообщения. Круглосуточный доступ. Отдельный вход в помещение. Красивый свежий ремонт. Сдается с мебелью в том виде, как на фото. Есть примерочная, шкафы для хранения, стеклянная витрина. Можем предоставить рейлы для одежды. Теплое, сухое, уютное помещение. Бесплатная парковка во дворе, всегда есть места. ‎Можно использовать под офис, образование, шоурум, для проведения мероприятий и встреч и т.д. Рассмотрим ваши варианты.Возможно арендовать совместно с соседним помещением, отдельным кабинетом 14кв.м. Этот вариант отлично подойдет для размещения шоурума, проведения творческих и образовательных мероприятий. Возможна почасовая аренда оборудованной музыкальной студии, расположенной в одном из соседних офисов.Все помещение 126 квадратов, к нем также расположены вокальный класс, студия звукозаписи.Есть возможность почасовой аренды.Прямая аренда, без комиссии. Залог 1 месяц.Дополнительно оплачивается часть коммунальных услуг за помещение, пропорционально занимаемой площади.Условия обсуждаемы, в зависимости от тематики вашего проекта, вида деятельности. Преимущество отдадим сходим по направлению проектам.‎Есть видео входной группы, вышлем по запросу.Звоните или пишите, если недоступен. ID объекта в нашей базе: 5092
    размещено: 08.01.2026 , обновлено: 19.01.2026

    Торговая площадь 71.1 м2 – ул. Малышева, 73

    • 71.1 м2
    • 1/5 этаж
    • в доме
    150 000 ₽ / месяц
    Объект № 196591. Сдам торговое помещение в центре Екатеринбурга, ул. Малышева, 73. Первый этаж, высокий пешеходный трафик. Удобная транспортная доступность, рядом Crystal, Corteo, Золотое Яблоко, Дом Кино. Площадь 71.1 м2. Два зала - 41 м2 и 30 м2. санузел и комната персонала. Электрическая мощность 15 кВт. Новый дизайнерский ремонт. Есть зона погрузки-выгрузки. Парковка во дворе для клиентов и сотрудников. Место под вывеску согласовано. Подойдёт под магазин, офис, шоу-рум и другие форматы. Коммунальные услуги оплачиваются отдельно. Аренда от собственника, без комиссии. По всем вопросам звоните.
    размещено: 26.12.2025 , обновлено: 28.01.2026

    Торговая площадь 80.2 м2 – Тверитина, 46

    • 80.2 м2
    • 1/21 этаж
    • в доме
    130 000 ₽ / месяц
    В центре Екатеринбурга сдаётся нежилое помещение на 1 этаже в ЖК премиум класса Vivaldi. Отдельный вход в помещение расположен с улицы Тверитина, дополнительно есть 2 окна во двор. Перед входной группой находится автомобильная наземная парковка, дополнительная парковка расположена напротив в ТЦ МаксиДом Помещение оборудовано всеми инженерными сетями. Высота потолка 3,5 метра. Выделенная электрическая мощность - 15 кВт (возможно увеличение до 30 кВт). Планировка помещения - свободная;, возможна конфигурация под Ваш запрос.Дополнительные вопросы можно задать по телефону. Просмотр в удобное время, по предварительной договоренности. ID объекта в нашей базе: 3663
    размещено: 10.12.2025 , обновлено: 15.01.2026

    Торговая площадь 170.3 м2 – ул. Шейнкмана, 123

    • 170.3 м2
    • 2/6 этаж
    • в ТЦ
    136 240 ₽ / месяц
    Объект № 196283. Сдам в аренду помещение под кафе. Располагается в самом центре города, всегда есть парковочные места. Находится на 2 этаже, два входа. Раздельные санузлы для сотрудников и посетителей. При необходимости можно продать оборудование. Дополнительно оплачиваются коммунальные услуги. Стоимость без НДС. Приглашаю на просмотр!
    размещено: 09.12.2025 , обновлено: 23.12.2025

    Торговая площадь 145 м2 – Мельковская, 2Б

    • 145 м2
    • 1/6 этаж
    • в ТЦ
    129 050 ₽ / месяц
    Объект № 196193. Сдам в аренду помещение 145 кв.м. Локация: Екатеринбург ул.Мельковская д.2Б. Напротив администрация Ж/Д района, рядом ТЮЗ, ККТ Космос. Помещение состоит из двух залов, подсобные помещения и туалет. Находится в цокольном этаже с окнами (на фото). Два отдельных выхода/ входа- один для гостей/ посетителей другой для выгрузки / загрузки товара (во дворе). Высота потолка от 2,5м до 2,7м. Электрическая мощность 50+кВт (возможно увеличение). Ремонт сделан: пол - плитка, потолок - натяжной, стены - панели. Охрана и пожарная сигнализация. Парковка для сотрудников во дворе (брелок) для гостей/ посетителей вдоль улицы Мельковской. Трафик и др.экономические показатели на фото от Компас. Условия по аренде обсуждаются.
    размещено: 04.12.2025 , обновлено: 29.01.2026

    Торговая площадь 94.4 м2 – Декабристов, 16/18 Б

    • 94.4 м2
    • 2/4 этаж
    • в доме
    100 000 ₽ / месяц
    ПРEДЛAГАЕТCЯ В ДОЛГОВРЕМЕННУЮ АРЕНДУ УНИВЕРСАЛЬНОЕ ПОMЕЩЕHИЕ ОБЩЕЙ ПЛОЩАДЬЮ 94,4 кв.м.МОЖНО ИСПОЛЬЗОВАТЬ КАК ОФИС, ПУНКТЫ МАРКЕТПЛЕЙСОВ, ПРОИЗВОДСТВЕННОЕ ПОМЕЩЕНИЕ: АТЕЛЬЕ, МАСТЕРСКАЯ.OCНОВHЫЕ XАPAКTЕPИCTИКИ И ПРEИMУЩECТBA ПОМEЩEНИЯ:- пoмeщeние pаспoложенo в цeнтральном районе гоpoда, на переceчeнии улицы Декабристов и улицы Красноармейской;- высокий пешеходный и автомобильный трафик;- свой отдельный вход с оборудованной входной группой (возможность доступа неограниченного по времени);- своя парковка на 3-4 а/м;- возможность размещения рекламной вывески на фасаде.В помещении - четыре комнаты различной площади, два санузла, вместительный холл.Выполнен косметический ремонт.КОММУНАЛЬНЫЕ ПЛАТЕЖИ ВХОДЯТ В АРЕНДНУЮ ПЛАТУ.При подписании договора вносится предоплата за месяц 100 000 + депозит 100 000 (можно разбить на два месяца) + комиссия агентству 25 000.Звоните, показ по договоренности. ID объекта в нашей базе: 11984
    размещено: 24.11.2025 , обновлено: 22.01.2026

    Торговая площадь 22 м2 – Декабристов, 16/18И

    • 22 м2
    • 1/3 этаж
    • в доме
    13 000 ₽ / месяц
    Сдам помещение свободного назначения.Oбщая плoщaдь – 23 кв.м.Пoмещение cухое, всe кoммуникационные тубы зaмeнeны на сoврeменные пластиковые, дом прошёл капремонт.Туалет, ГВС и ХВС.Помещение универсальное и подходит под любой бизнес, например, подойдет под склад для mаrkеtрlасе, под мастерскую, интернет магазин, тихое производство-Круглосуточный доступ для вашего удобства;-Доступная стоимость;- Аренда на максимальный долгий срок.- есть вся инфраструктура: магазины, кафе, парк, аптеки, гос. учреждения, транспорт.- Парковка перед входом в помещение .Коммунальные услуги оплачиваются дополнительно.Показ в любой день по предварительной договоренности.Оплата депозита равна оплате месяца, оплачивается при подписании договора.Отличное место для успешного бизнеса!Звоните! 8-900-211-000-6 ID объекта в нашей базе: 18152
    размещено: 17.11.2025 , обновлено: 26.01.2026

    Торговая площадь 116 м2 – Ленина, 49

    • 116 м2
    • 1/0 этаж
    • в деловом центре
    139 200 ₽ / месяц
    Объект № 195628. Сдам помещение свободного назначения площадью 116 кв.м, расположенное в самом центре Екатеринбурга по адресу: ул. Ленина, д. 49, по соседству со знаковым объектом Домом печати, который давно зарекомендовал себя как модное, прогрессивное комьюнити с чёткой концепцией. Резиденты пространства - фотостудии, танцевальные школы, рекламные и маркетинговые агентства, IT-компании, СМИ, дизайнеры и архитекторы. В здании также открыто множество ресторанов и кафе, что формирует активный поток посетителей и профессиональное окружение. Помещение правильной геометрической формы, высота потолков составляет 2,60 метра. Имеется отдельный вход, до конца ноября будет смонтировано новое крыльцо. Предусмотрена возможность организации внутренней планировки под задачи арендатора. Заведены центральные коммуникации: холодное и горячее водоснабжение, канализация. В последующем будут установлены индивидуальные приборы учёта. Электрическая мощность до 100 кВт с возможностью корректировки по согласованию. Также согласуем монтаж вытяжки на фасаде. Помещение оптимально подходит для размещения кофейни, небольшого кафе, точки общественного питания, торгового зала, шоу-рума, производственного помещения или офисно-складского формата. Коммунальные услуги оплачиваются отдельно. Без комиссии для арендатора. По всем вопросам и для организации просмотра, звоните.
    размещено: 13.11.2025 , обновлено: 3.01.2026

    Торговая площадь 61 м2 – Мамина-Сибиряка, 54

    • 61 м2
    • /4 этаж
    • в доме
    69 000 ₽ / месяц
    Объект № 195398. Предлагается в аренду коммерческое помещение площадью 60 кв.м, цокольный этаж. Отличное решение для офиса, салона, учебного центра или любого другого бизнеса. Расположение: 2-я линия улицы Мамина-Сибиряка Напротив бизнес-центра МАНХЭТТЕН. Центр города, удобная транспортная доступность. Характеристики помещения: площадь 60 м², высота потолков 3,8 м. Планировка два отдельных кабинета, зона приёма/ожидания, мокрая точка и с/у. Отдельный вход через закрытый двор. Домофон, обеспечивающий контроль доступа. Своя парковка для арендаторов/ клиентов. Тихий закрытый двор - комфорт и безопасность. Подойдёт для: офиса / бухгалтерии / юридической фирмы. Все подробности по телефону.
    размещено: 11.11.2025 , обновлено: 14.12.2025

    Торговая площадь 115.2 м2 – Фрунзе, 39

    • 115.2 м2
    • 1/9 этаж
    • в ТЦ
    207 360 ₽ / месяц
    Объект № 195271. Сдам коммерческое помещение 115,2 м2 свободного назначения. Удобный доступ для клиентов и сотрудников. г. Екатеринбург, ул. Фрунзе 39, перекресток ул. Фрунзе и ул. Степана Разина - один из самых оживленных районов города. Высокий пешеходный и автомобильный трафик. Рядом остановки общественного транспорта, школы, детские сады, трамвайное депо. До 13 декабря 2025 года помещение арендует КБ. С 14 декабря - свободно для вашего бизнеса. Без комиссии для арендатора. Арендные каникулы. Подойдет под офис, торговую точку, салон, шоу-рум, сферу услуг. Звоните и бронируйте помещение уже сейчас!
    размещено: 29.10.2025 , обновлено: 22.12.2025

    Торговая площадь 60 м2 – Шевченко, 33

    • 60 м2
    • 1/9 этаж
    • в ТЦ
    70 000 ₽ / месяц
    Арт. 123528879 Сдам помещение 60 кв м. В данный момент находится ветеринарная клиника. В ближайшее время готовы съехать. Ранее не сдавали помещение. Интересует долгосрочная аренда.
    размещено: 28.10.2025 , обновлено: 9.12.2025

    Торговая площадь 83 м2 – Якова Свердлова, 32 б

    • 83 м2
    • 1/1 этаж
    • в доме
    180 000 ₽ / месяц
    Сдaётcя в аренду универсальное пoмещениe cвoбоднoгo нaзнaчeния!Расположено в ЖK Екатерининcкий пapк, адpeс: Cвepдлова, 32Б.Общая площадь - 83 кв.м., два отдельных входа, панорамное остекление с видом на центральный парк жилого комплекса. Пешеходный трафик, круглосуточный доступ, своя управляющая компания. Помещение универсальное: подходит под любой вид деятельности.Предоставляются арендные каникулы. Депозит.Коммунальные платежи оплачиваются отдельно. ID объекта в нашей базе: 1537
    размещено: 15.10.2025 , обновлено: 7.01.2026

    Торговая площадь 22 м2 – Мельковская, 2

    • 22 м2
    • -1/5 этаж
    • в доме
    7 900 ₽ / месяц
    Сдам помещение свободного назначения.Oбщая плoщaдь – 22 кв.м.Пoмещение cухое, всe кoммуникационные тубы зaмeнeны на сoврeменные пластиковые, дом прошёл капремонт.Помещение универсальное и подходит под любой бизнес, например подойдет под склад для mаrkеtрlасе, под мастерскую, интернет магазин.-Круглосуточный доступ для вашего удобства;-Доступная стоимость;- Аренда на максимальный долгий срок.- Рядом метро "Динамо"- есть вся инфраструктура: магазины, кафе, парк, аптеки, гос. учреждения, транспорт.- Парковка перед входом в помещение .Коммунальные услуги оплачиваются дополнительно.Показ в любой день по предварительной договоренности.Оплата депозита равна оплате месяца, оплачивается при подписании договора.Отличное место для успешного бизнеса!Звоните! ID объекта в нашей базе: 17996
    размещено: 14.10.2025 , обновлено: 28.01.2026

    Торговая площадь 370 м2 – Шейнкмана, 2/5

    • 370 м2
    • 1/12 этаж
    • в деловом центре
    280 000 ₽ / месяц
    Сдается помещение свободного назначения 370 м2 по адресу ул. Челюскинцев, 2/5. Помещение расположено на первом этаже, есть удобный пандус. Со стороны двора, есть два отдельных входа, с пандусом для разгрузки.Есть два парковочных места.Условия аренды 264 500 руб/мес + к/у ID объекта в нашей базе: 26005
    размещено: 22.09.2025 , обновлено: 27.01.2026

    Торговая площадь 266 м2 – Сакко и Ванцетти, 74

    • 266 м2
    • 1/2 этаж
    • в ТЦ
    1 197 000 ₽ / месяц
    Эксклюзивное коммерческое помещение в самом сердце Екатеринбурга. Вторая очередь "Галерея Luxury" – флагманский торговый комплекс, расположенный в самом престижном деловом районе Екатеринбурга. Помещение находится в окружении элитных жилых комплексов Форум Сити и Тихвинъ, что гарантирует постоянный поток состоятельных клиентов и деловых партнеров. В первой очереди "Галерея Luxury" располагаются бренды: 12 Storeez, All4You, Monochrome, Molecule, Vipavenue, Кашемир и Шелк. Продуманная планировка помещения включает в себя:Впечатляющие панорамные окна с витражным остеклением.Внушительные потолки, создающие ощущение простора.Удобную “мокрую точку” для организации различных бизнес-процессов.Функциональную планировку, позволяющую реализовать любые дизайнерские решения. Стратегическое расположение в центре деловой активности города обеспечивает:Высокую проходимость успешных и платежеспособных клиентов.Легкость в привлечении квалифицированного персонала.Быстрый доступ к основным транспортным магистралям.Близость к ключевым бизнес-центрам и офисам. Гибкие условия аренды позволяют:Организовать индивидуальный показ в удобное для вас время.Получить подробную консультацию по всем вопросам.Обсудить особые условия аренды для долгосрочных партнеров. Не упустите возможность разместить свой бизнес в одном из самых престижных мест Екатеринбурга! Свяжитесь с нами прямо сейчас для организации просмотра и получения дополнительной информации. Арт. 117355416
    размещено: 20.09.2025 , обновлено: 22.01.2026

Приоритет

Увеличивает просмотры в 3 раза

Ваше объявление показывается в списке выше обычных объявлений. подключить