производственно-складское здание
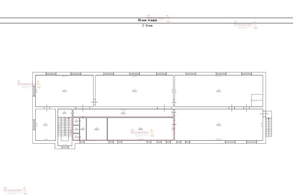
Сдаётся в аренду производственно-складское здание вблизи транспортного узла на пересечении ЕКАД и автодорогой в город Берёзовский, по адресу улица Ленина 2А, на территории продуктовой базы. Отличная развязка: ЕКАД находится всего в 1900 метрах, что удобно для логистики и въезда фур. Общая площадь здания 1100 м², кирпич, два этажа, есть работающий грузовой лифт, предусмотрена парковка на 10 машин и зона разгрузки фур, а в само здание для разгрузки может спокойно заезжать Газель.На первом этаже расположены дебаркадер, складские помещения для хранения продуктов, холодильники, горячий цех, раздевалки, помещения для персонала и кабинеты. На втором этаже — большая открытая площадь под размещение производственного оборудования, холодильных установок и фасовки, а также кабинеты, раздевалка и туалет. Два отдельных входа на второй этаж с улицы по лестницам. Коммуникации: Электричество 100 кВт, отопление, ХВС и канализация центральные, для горячей воды стоят бойлеры. Ранее площади долго сдавались под производство маринованных овощей, также возможно размещение других видов производств. Звоните, покажем в удобное время.
ID объекта в нашей базе: 5805
размещено: 23.04.2026
, обновлено: 7.05.2026








