На Метре реклама - только нормальная. Никакого шок-контента.
Помогайте независимому ресурсу, как он помогает вам. Удачи!
Новостройки Котт. посёлки Объявления Динамика цен и сделок

Аренда офиса: Екатеринбург, ул. Уральская, 3 (Пионерский)

  • опубликовано 25.05.2022 , обновлено 19.09.2025
  • 80
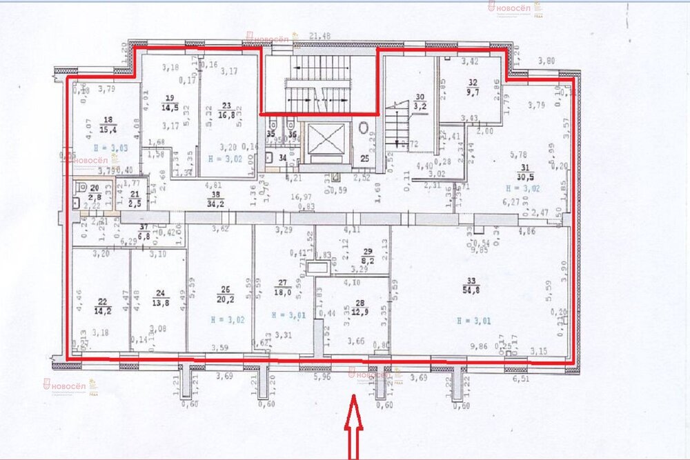
Общая площадь: 327.8 м2
Этаж/Этажность здания: 2/17
Тип здания:Торговый центр
Цена:
180 290
Объявление снято с публикации
Комиссия риэлтора:без комиссии
Коммунальные платежи:оплачиваются отдельно

Объект № 159943. Сдам офисное помещение по адресу Уральская 3. Отдельный вход. Общая площадь 327м2. В помещении хороший ремонт. В каждом кабинете есть кондиционер. У дома всегда есть свободные парковочные места. Наличие охранной и пожарной сигнализации.
Удобная транспортная развязка, остановки общественного транспорта находятся в шаговой доступности.
Приглашаю на просмотр!

Объявление снято с публикации

История предложений

объявление снято с публикации в продаже площадь цена,
Екатеринбург, ул. Уральская, 3 (Пионерский) - фото офисного помещения 21 августа 2025 90 дн. 46.8 45 000
Екатеринбург, ул. Уральская, 3 (Пионерский) - фото офисного помещения 21 апреля 2022 90 дн. 128 55 000
Екатеринбург, ул. Уральская, 3 - фото офисного помещения 11 февраля 2022 90 дн. 141 105 750
Екатеринбург, ул. Уральская, 3 - фото офисного помещения 22 января 2022 90 дн. 141 141 800
Екатеринбург, ул. Уральская, 3 - фото офисного помещения 22 октября 2021 90 дн. 327.8 213 070
Екатеринбург, ул. Уральская, 3 - фото офисного помещения 12 апреля 2022 90 дн. 128 50 000
Екатеринбург, ул. Уральская, 3 - фото офисного помещения 6 мая 2020 90 дн. 50 25 000
Екатеринбург, ул. Уральская, 3 - фото офисного помещения 6 мая 2020 90 дн. 128 51 200

Похожие предложения об аренде офисных помещений в Екатеринбурге (Пионерский)

  • Офис 22.8 м2 – Данилы Зверева, 12а

    • 22.8 м2
    • 1/2 этаж
    • в ТЦ
    19 380 ₽ / месяц
    Сдается офисное помещение на ул. Данилы Зверева Сдается современное офисное помещение в Екатеринбурге. Площадь: 27 м2 (уточняемая с учетом коридорного коэффициента). Стоимость: 850 руб./м2 в месяц. Коммунальные услуги: Включены в арендную плату. Адрес: ул. Данилы Зверева, 12а. Ключевые преимущества: Все включено: Цена "всё включено" — за коммунальные услуги доплачивать не нужно. Безопасность: Круглосуточная охрана и видеонаблюдение на территории. Удобство: Собственная парковка для вас и ваших клиентов. Доступность: Отличная транспортная доступность. Условия аренды: Минимальный срок аренды — 11 месяцев. ##7596048##
    размещено: 13.10.2025 , обновлено: 28.10.2025
  • Офис 204 м2 – Трамвайный, 2к3

    • 204 м2
    • 1/26 этаж
    • в доме
    203 500 ₽ / месяц
    Объект № 194527. Сдам помещение свободного назначения с отдельным входом. Общая площадь 204кв.м. разделена на два этажа. Несколько отдельных кабинетов различной площади, зона открытого пространства, ресепшен + несколько подсобных помещений и санузел. В помещении много естественного освещения, высокие потолки, подъезд для разгрузки на тротуаре около входной группы. Возможно размещение рекламной вывески на фасаде здания. Установлены отдельные кондиционеры, система вытяжной вентиляции, светодиодное освещение. Парковка на прилегающей территории и у ТЦ Магнит Экстра. Коммунальные платежи оплачиваются дополнительно, установлены теплосчетчики.
    размещено: 23.09.2025 , обновлено: 14.10.2025
  • Офис 1035 м2 – Смазчиков, 10

    • 1035 м2
    • 1/4 этаж
    • в ТЦ
    983 345 ₽ / месяц
    Объект № 194209. Сдам отдельностоящее 4-этажное нежилое здание с цоколем, общей площадью 1035 кв.м. Локация: м-н Пионерский, ул. Смазчиков, 10. Подойдёт под: офисный хаб, коворкинг, IT и back-office, частное образование, гостиницу. Входная группа с турникетом. Внутри готовые кабинеты с отделкой: потолки «армстронг», нейтральные стены, износостойкое напольное покрытие, рольставни/рулонные шторы на окнах. Санузлы на этажах. Цоколь: большой зал под тренинги/ фитнес/ единоборства, есть душевые и кабинеты под бьюти -услуги. Своя большая асфальтированная парковка на закрытой территории, удобный въезд под шлагбаум. Гаражные боксы на территории, удобно под служебный транспорт, хранение, склад. Наружная эвакуационная лестница. Техпомещения, в том числе венткамера. Все коммуникации. Детали и технические характеристики предоставлю по запросу, звоните.
    размещено: 08.09.2025 , обновлено: 2.11.2025
  • Офис 26.5 м2 – Данилы Зверева, 31s

    • 26.5 м2
    • 3/6 этаж
    • в ТЦ
    19 875 ₽ / месяц
    Объект № 193378. Сдам в аренду офис в Кировском районе Екатеринбурга. Помещение находится на третьем этаже, площадь 26,5 кв.м. В офисе два кабинета, есть кондиционер. Доступ контролируется, охрана работает круглосуточно. Коммунальные услуги включены. По всем интересующим вопросам отвечу по телефону!
    размещено: 28.07.2025 , обновлено: 22.10.2025
  • Офис 280 м2 – Советская, 3а

    • 280 м2
    • /2 этаж
    • в ТЦ
    175 000 ₽ / месяц
    Объект № 192990. Сдам помещение свободного назначения. Расположен на цокольном этаже отдельностоящего здания. Несколько входов-выходов, есть зона для погрузки разгрузки. Общая площадь 280 кв.м. разделена на два больших зала и несколько отдельных комнат. Установлена приточно-вытяжная вентиляция, светодиодное освещение. На фасаде возможно разместить наружную рекламу. На первом этаже находится продуктовый магазин.
    размещено: 10.07.2025 , обновлено: 25.10.2025

    Офис 328 м2 – Уральская, 57к2

    • 328 м2
    • 1/9 этаж
    • в ТЦ
    426 400 ₽ / месяц
    Объект № 190696. Сдается в аренду помещение с удобной функциональной планировкой. Для мест общего пользования отведено оптимальная площадь. Планировка кабинетная, все помещения освещаются как естественным так и искусственным светом. Выполнена чистовая отделка. Помещение будет освобождено от непрофильной мебели и техники. Собственник ИП без НДС. Показы по договоренности.
    размещено: 23.04.2025 , обновлено: 8.10.2025

    Офис 155 м2 – Учителей, 22

    • 155 м2
    • 1/10 этаж
    • в доме
    180 000 ₽ / месяц
    Сдам в аренду коммерческое помещение свободного назначения по адресу город Екатеринбург, улица Учителей, дом 22. ???? Помещение расположено в районе со сложившейся инфраструктурой и в близости к новостройкам ЖК АУРУМ ЖК ОК: Премиум ЖК Основинские кварталы Основинский парк ТРЦ «Парк Хаус» ???? Объект расположен на улице Учителей, которая имеет быстрый выезд в разные районы города, как на общественном транспорте, так и на автомобиле. Главная особенность помещения это: – расположение в шаговой доступности к объектам социальной, торговой и транспортной инфраструктуры; ???? Активный пешеходный и автомобильный трафик. Широкие возможности наружной рекламы - на фасаде здания ???? Вокруг много точек притяжения и ключевых объектов города в пешей доступности: Остановки общественного транспорта Центральная городская больница №7 с самой крупной поликлинической службой г. Екатеринбург 2 поликлиники ТРЦ «Парк Хаус» Парк «Основинский» Детские сады (более 10) с удаленностью от 2 до 10 минут ДЮСШ «СТАРТ» 3 школы Стоматологии Аптеки АЗС Автосервис и Шиномонтаж Торгово-офисные центры ???? Отдельный вход с улицы. ???? Этаж — первый. ???? Общая площадь — 149,8 кв.м. ????️ Высота потолков — 3,0 м. ???? Электрическая мощность — 10 кВт. При необходимости, есть возможность увеличения. Двухтарифная система учета электроэнергии, счетчики воды горячей и холодной. ???? Помещение имеет кабинетную планировку, что позволяет разделить использовать под различный функционал или сдать отдельными площадями в аренду (в розницу) для увеличения доходной части объекта. ????️ Приточно-вытяжная вентиляционная система. Системы холодного и горячего водоснабжения, водоотведение. ???? Рядом с объектом расположен зеленый массив — Основинский парк, где можно прогуливаться, дышать свежим воздухом, наслаждаться природой. ⚡ Данное помещение подходит для размещения медицинской лаборатории, клиники капельниц, реабилитационный центр для детей, центр дополнительного образования для детей и взрослых, пункт выдачи заказов, студии красоты, кафе, магазин, офис, арендный бизнес, стоматологический кабинет и другие направления бизнеса. ???? Арендатор уже съехал. ID объекта в нашей базе: 8701
    размещено: 28.03.2025 , обновлено: 24.09.2025

    Офис 13 м2 – Волховская, 20

    • 13 м2
    • 1/4 этаж
    • в деловом центре
    8 970 ₽ / месяц
    Объект № 181999. Сдам в аренду офисное помещение в Кировском районе. Общая площадь 13 кв.м. 1 этаж. Наличие парковки. В шаговой доступности остановки общественного транспорта. Есть возможность арендовать другие площади. На все интересующие вопросы отвечу по телефону! Без комиссии для Арендатора.
    размещено: 21.03.2024 , обновлено: 21.10.2025

    Офис 20 м2 – Волховская, 20

    • 20 м2
    • 3/4 этаж
    • в деловом центре
    15 000 ₽ / месяц
    Без комиссии. От собственника. Отличное офисное помещение. После ремонта всего здания. Открытое пространство. Окно есть. Парковка на улице свободная. Дополнительно к стоимости электроэнергия по счётчику и уборка помещения.. ID объекта в нашей базе: 3450
    размещено: 04.10.2022 , обновлено: 2.11.2025

Приоритет

Увеличивает просмотры в 3 раза

Ваше объявление показывается в списке выше обычных объявлений. подключить