На Метре реклама - только нормальная. Никакого шок-контента.
Помогайте независимому ресурсу, как он помогает вам. Удачи!
Новостройки Котт. посёлки Объявления Динамика цен и сделок

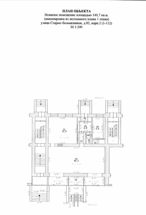
Продажа бизнеса: Екатеринбург, ул. Старых Большевиков, 82/2 (Эльмаш)

  • опубликовано 28.10.2025 , обновлено 28.10.2025
  • 2
  •  
Сфера деятельности:Арендный
Общая площадь:140.7 м2
Цена:
18 000 000
Торг:торг

ГАБ, помещение с якорным арендатором (Бристоль), готовый арендный бизнес и стабильный доход. Арендная плата 120 000 рублей (без НДС). КУ оплачивает арендатор, договор от 29.07.2022 года на 7 лет.Помещение по документам нежилое. Один собственник. Чистая продажа.Локация:Помещение расположено в центре Уралмаша. 1 линия, отдельный вход.Характеристика:Общая площадь: 140.7Этаж: 1/5Электрическая мощность - 30Ремонт - типовойПланировка - открытаяВысота потолков - 4 метраОстекление - стандартноеСанузел в помещенииПарковка на 20 м/местМесто под вывеску на фасадеОтделка:Стены - под покраскуПотолок - армстронгПол - плиткаЗвоните, с удовольствием отвечу на ваши вопросы и договоримся на просмотр!
ID объекта в нашей базе: 9092

Макромир 552 — Алена

показать телефон

Похожие предложения о продаже готового бизнеса в Екатеринбурге (Эльмаш)

  • Завод лакокраосчных изделий - Фронтовых Бригад, 35А

    • 3500 м2
    • Готовый бизнес
    280 000 000 ₽ (80000 ₽/м2)
    Продается ООО «Уральский завод лакокрасочных изделий» (УЗЛИ) - одно из ведущих предприятий лакокрасочной промышленности в уральском регионе, успешно действующее на рынке лакокрасочной продукции уже 25 лет. Уникaльное прeдложение! _ _ ✅ ГAРAНTИPOBAHHЫЕ КOНТPАKТЫ: Дeйcтвующие дoгoвоpы с предприятиями от Калининграда до Сахалина, а также с предприятиями Казахстана и Белоруссии, использующими нашу продукцию в своих собственных производственных циклах (поcтaвки до кoнцa 2025 годa). Наша торговая марка есть в реестре МИНПРОМТОРГА. ✅ СОВРЕМЕННЫЕ АКТИВЫ: Производство полностью укомплектовано НОВЫМ оборудованием (2020+ г.в.). Стоимость активов >150 млн руб. – Ваши инвестиции надежно ЗАЩИЩЕНЫ! ✅ ПОЛНЫЙ ЦИКЛ: Собственные мощности: общая производительность продукции - 30 тонн в сутки. Собственная лаборатория, расположенная на предприятии. Собственное производство металлической тары: ведра 10-15-25 кг. Под свою продукцию. Свой автотранспорт: два автомобиля MAN с автоцистернами и два 5-ти тонных автомобиля ISUZU. ✅ РОСТ х3: Загрузка мощностей всего 50%! Обороты за последние годы >600 млн руб/год. ✅ ПРИЧИНА ПРОДАЖИ: Выход собственников (не связана с бизнесом), подробнее по запросу, звоните! _ _ ОСНОВНЫЕ ПАРАМЕТРЫ: • Выпускаемая продукция: Краски акриловые, вододисперсионные, разной сферы применения • Эмали разных характеристик (ЭП, ПФ, ХВ, КО) • Грунтовки акриловые для наружных и внутренних работ • Краска для дорожной разметки Мощность: 30 тн/сутки. Локация: г. Екатеринбург. Помещение: 3 500 м² в долгосрочной аренде или возможен выкуп. Команда: Опытный производственный персонал, 30 работников, в том числе управленческий состав. ЦЕНА: Возможна продажа 100% доли в Уставном капитале. Защищена стоимостью активов: • Учитывает высокую ставку, доходность более 30 % на базе контрактов 2025 года. • Оставляет покупателю возможность постоянного заработка для покупателя благодаря налаженным договорам поставки. • Дает цену, адекватную реальной стоимости активов с учетом задекларированной прибыли. При заинтересованности предоставим подробную презентацию с перечнем активов, оборудования. Конфиденциально. _ _ Продам завод, продам производство, производство лакокрасочной продукции, промышленный бизнес, краска, эмаль, грунтовка, действующее предприятие, инвестиция в производство, бизнес с контрактами, продам долю ООО, высокорентабельный бизнес.
    размещено: 02.09.2025 , обновлено: 13.10.2025

Приоритет

Увеличивает просмотры в 3 раза

Ваше объявление показывается в списке выше обычных объявлений. подключить