На Метре реклама - только нормальная. Никакого шок-контента.
Помогайте независимому ресурсу, как он помогает вам. Удачи!
Новостройки Котт. посёлки Объявления Динамика цен и сделок

Продажа квартиры: г. Верхняя Пышма, ул. Чистова, 3 (городской округ Верхняя Пышма)

  • опубликовано 20.08.2020 , обновлено 8.03.2025
  • 78
Кадастровый номер:66:36:0102030:170
Рынок:вторичный
Срок сдачи: 1964 года
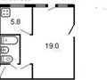
Количество комнат:1
Общая площадь:31 м2
Жилая площадь:18 м2
Площадь кухни:5 м2
Этаж/Этажность дома:1 / 5
Санузел:совмещенный
Отделка:евроремонт
Год постройки:1964
Состояние:хорошее
Цена:
2 060 000
Объявление снято с публикации
Коммунальные платежи:оплачиваются отдельно
Ипотека:возможна

Объект № 128432. Продается уютная 1 к.квартира в красивом и комфортном районе города. В пешей доступности средняя школа с углубленным изучением предметов, рядом строится современная начальная школа, магазины, детский сад, детская и взрослая поликлиники, отдел полиции.
Двор ухоженный и тихий.
В квартире останется кухонный гарнитур. Холодильник, стиральную машину оставим по согласованию. Санузел оборудован по современным стандартам. Везде натяжной потолок, пластиковые окна. Входная сейф-дверь. ***Гарантийный сертификат «Защита собственности» по данному объекту в подарок***

Объявление снято с публикации

Ипотечный калькулятор

лет
%
Сумма кредита
2060000 ₽
Платеж
22 540 ₽

Актуальные предложения в этом доме

  • 2-к квартира, Чистова, 3

    • 43.6 м2
    • 4/5 этаж
    • Состояние:
    4 500 000 ₽ (103200 ₽/м2)
    Продам светлую уютную квартиру в центре г. Верхняя Пышма. В квартире проведён капремонт в 2024 году, заменены все трубы, стоит новая сантехника и установлены новые счётчики. Полностью заменена проводка, менялась в 2021 году. Балкон застеклен в 2024 году. На окнах защита от детей.На кухне пол с подогревом, отличная газовая плита и электрическая духовка. Остается почти вся мебель и техника (включая детскую мебель) В подъезде проведен ремонт, установлены новые окна. Безопасно оставлять коляски/велосипеды. Подъезды постоянно моют, никакого мусора и посторонних запахов нет. В подъезде под лестницей предусмотрено место под хранение - можно оставить коляску или велосипед ребёнка.За состоянием подъездов и территорией двора внимательно следит главная по дому. Соседи все приличные и тихие. Дом теплый. Вам не будет холодно зимой + вы не будете слышать соседей, а соседи не будут слышать Вас. В доме проживает много семей с детьми.Оборудована небольшая детская площадка. Тихий спальный семейный район. Около дома для ваших детей два детских сада, новая 33 школа с углублённым изучением отдельных предметов, несколько детских центров. Также рядом с домом Сквер Победы, кинотеатр, Верхнепышминская центральная городская больница, аптеки и продуктовые магазины. Ипотека возможна. Звоните, все обсудим.
    размещено: 03.03.2026 , обновлено: 3.03.2026

История предложений в этом доме

объявление снято с публикации в продаже комнат площадь этаж цена,
14 сентября 2018 92 дн. 1 30 3/5 1 830 000

Похожие предложения о продаже квартир в г. Верхняя Пышма

  • 1-к квартира, Огнеупорщиков, 14

    • 21.6 м2
    • 2/5 этаж
    • Состояние: удовлетворительное
    2 600 000 ₽ (120400 ₽/м2)
    Привлекательна для жизни и как инвестиционный объект, для сдачи в аренду. Дом малосемейного типа, секция на 4 квартиры. Соседи порядочные. В квартире состояние хорошее . Окна пластиковые. Удобный второй этаж. Вся мебель и техника остаются в квартире. В шаговой доступности несколько магазинов, остановка транспорта, детский сад. Чистая продажа. Два взрослых собственника. В собственности более 20 лет. Показываем по предварительной договоренности. Ипотека возможна. Торг реальному покупателю. Записывайтесь на просмотр. ID объекта в нашей базе: 809
    размещено: 24.02.2026 , обновлено: 2.03.2026

Новостройки г. Верхняя Пышма

Приоритет

Увеличивает просмотры в 3 раза

Ваше объявление показывается в списке выше обычных объявлений. подключить