Top.Mail.Ru
На Метре реклама - только нормальная. Никакого шок-контента.
Помогайте независимому ресурсу, как он помогает вам. Удачи!
Средняя цена м² · Новостройки
177 600 ₽/м²
↑ 7,44% за 12 мес.
Средняя цена м² · Вторичка
141 328 ₽/м²
↑ 11% за 12 мес.
Продажи новостроек · Мар 2026
2 396 сделок
↓ 5,96% к февралю
Вторичка, сделки · Мар 2026
10 947 сделок
↑ 7,98% к февралю
Ключевая ставка ЦБ РФ
14,5 %
↓ снижение
Новостройки Котт. посёлки Объявления Динамика цен и сделок

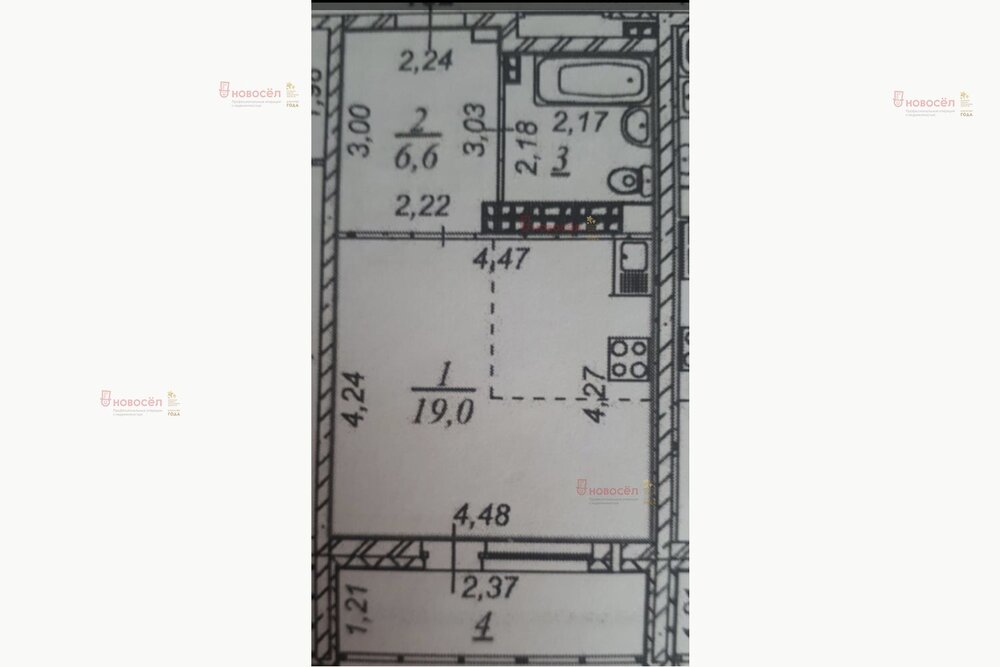
Продажа квартиры: Екатеринбург, ул. Крауля, 168/в (ВИЗ)

  • опубликовано 16.03.2022 , обновлено 15.03.2026
  • 651
Рынок:вторичный
Срок сдачи: 2019 года
Количество комнат:квартира-студия
Общая площадь:30 м2
Жилая площадь:19 м2
Площадь кухни:5 м2
Этаж/Этажность дома:13 / 14
Санузел:совмещенный
Отделка:евроремонт
Год постройки:2019
Цена:
4 750 000
Объявление снято с публикации
Коммунальные платежи:оплачиваются отдельно
Условия продажи:«чистая» продажа
Ипотека:возможна

Объект № 156666. Продается отличная студия в ЖК Янтарная долина. Удобная квадратная планировка, укомплектованная мебелью и техникой: кухонный гарнитур LORENA, встроенный холодильник, шкаф ИКЕА, стиральная машина.

Балкон в плитке, в ванной установлен теплый пол. Отличный вид из окна.
Закрытый охраняемый двор, установлено видеонаблюдение. В доступности остановки общественного транспорта, детские сады, школы, музыкальная школа, поликлиники.
Приглашаем на просмотр! ***Гарантийный сертификат «Защита собственности» по данному объекту в подарок***

Объявление снято с публикации

Ипотечный калькулятор

лет
%
Сумма кредита
4750000 ₽
Платеж
22 540 ₽

Актуальные предложения в этом доме

  • 3-к квартира, Крауля, 170

    • 64.6 м2
    • 5/23 этаж
    • Состояние:
    10 190 000 ₽ (157700 ₽/м2)
    Ищете просторное жилье для всей семьи недалеко от центра? Обратите внимание на эту трешку в прицентральном районе. Расположение удобное — набережная реки Исеть в пешей доступности. До центральных улиц города всего четверть часа на автомобиле. Район развитый, вся инфраструктура рядом. Планировка продуманная: все комнаты изолированные, что важно для комфортного проживания большой семьи. Ремонт выполнен в современном стиле с качественными материалами. Установлены два санузла — утром не придется стоять в очереди. Кухонная зона оборудована по последнему слову техники. Вся мебель и бытовая техника остаются новым владельцам — заезжайте и живите с первого дня. Отличный вариант для тех, кто ценит комфорт и не хочет тратить время на обустройство. ID объекта в нашей базе: 11685
    размещено: 02.10.2025 , обновлено: 11.05.2026

История предложений в этом доме

объявление снято с публикации в продаже комнат площадь этаж цена,
Екатеринбург, ул. Крауля, 168Б (ВИЗ) - фото квартиры 20 октября 2024 60 дн. 2 56.2 10/20 8 300 000
Екатеринбург, ул. Крауля, 170 (ВИЗ) - фото квартиры 27 декабря 2025 90 дн. 1 41 21/23 6 350 000
Екатеринбург, ул. Крауля, 170 (ВИЗ) - фото квартиры 18 ноября 2025 90 дн. 1 41 23/23 6 500 000
Екатеринбург, ул. Крауля, 170 (ВИЗ) - фото квартиры 24 января 2026 90 дн. 1 41.1 18/23 6 190 000
Екатеринбург, ул. Крауля, 170 (ВИЗ) - фото квартиры 12 ноября 2025 90 дн. 1 33 7/23 5 500 000
Екатеринбург, ул. Крауля, 168Б (ВИЗ) - фото квартиры 26 ноября 2025 90 дн. 1 39.2 11/20 6 900 000
Екатеринбург, ул. Крауля, 170 (ВИЗ) - фото квартиры 23 ноября 2025 90 дн. 2 58 1/16 8 500 000
Екатеринбург, ул. Крауля, 170 (ВИЗ) - фото квартиры 5 августа 2025 90 дн. 2 58 23/23 8 050 000
Екатеринбург, ул. Крауля, 170 (ВИЗ) - фото квартиры 22 июля 2025 90 дн. 2 58 23/23 7 800 000
Екатеринбург, ул. Крауля, 170 (ВИЗ) - фото квартиры 17 июня 2025 90 дн. 2 58 23/23 7 800 000
Екатеринбург, ул. Крауля, 170 (ВИЗ) - фото квартиры 3 июня 2025 90 дн. 2 58 23/23 7 800 000
Екатеринбург, ул. Крауля, 170 (ВИЗ) - фото квартиры 22 мая 2025 90 дн. 2 58 23/23 7 800 000
Екатеринбург, ул. Крауля, 170 (ВИЗ) - фото квартиры 9 июля 2025 90 дн. 0 31 8/14 4 893 000
Екатеринбург, ул. Крауля, 170 (ВИЗ) - фото квартиры 25 февраля 2025 90 дн. 2 55.3 14/16 7 850 000
Екатеринбург, ул. Крауля, 170 (ВИЗ) - фото квартиры 12 февраля 2025 90 дн. 2 57 23/23 8 300 000
Екатеринбург, ул. Крауля, 168Б (ВИЗ) - фото квартиры 7 июля 2025 90 дн. 2 66.7 15/20 11 600 000
Екатеринбург, ул.Крауля, 168В (ВИЗ) - фото квартиры 27 декабря 2024 90 дн. 1 30 7/13 4 700 000
Екатеринбург, ул. Крауля, 170 (ВИЗ) - фото квартиры 16 января 2025 90 дн. 2 57 23/23 8 300 000
Екатеринбург, ул. Крауля, 170 (ВИЗ) - фото квартиры 8 декабря 2024 90 дн. 2 57 23/23 7 880 000
Екатеринбург, ул. Крауля, 170 (ВИЗ) - фото квартиры 11 ноября 2024 90 дн. 2 57 23/23 8 150 000
Екатеринбург, ул. Крауля, 170 (ВИЗ) - фото квартиры 17 октября 2024 90 дн. 2 57 23/23 8 150 000
Екатеринбург, ул. Крауля, 170 (ВИЗ) - фото квартиры 9 октября 2024 90 дн. 2 57 23/23 8 150 000
Екатеринбург, ул. Крауля, 170 (ВИЗ) - фото квартиры 1 октября 2024 90 дн. 2 57 23/23 8 150 000
Екатеринбург, ул. Крауля, 170 (ВИЗ) - фото квартиры 15 сентября 2024 90 дн. 2 57 23/23 8 150 000
Екатеринбург, ул. Крауля, 168б (ВИЗ) - фото квартиры 28 августа 2024 90 дн. 1 31 11/20 5 640 000
Екатеринбург, ул. Крауля, 168б (ВИЗ) - фото квартиры 12 февраля 2025 90 дн. 1 44.3 6/17 6 600 000
Екатеринбург, ул. Крауля, 170 (ВИЗ) - фото квартиры 6 июля 2024 90 дн. 1 28 7/16 4 900 000
Екатеринбург, ул. Крауля, 170 (ВИЗ) - фото квартиры 4 июня 2024 90 дн. 3 78 5/23 9 400 000
Екатеринбург, ул. Крауля, 170 (ВИЗ) - фото квартиры 30 мая 2024 90 дн. 2 58 23/23 7 800 000
Екатеринбург, ул. Крауля, 170 (ВИЗ) - фото квартиры 15 мая 2024 90 дн. 3 78 5/23 7 700 000

Похожие предложения о продаже квартир в Екатеринбурге (ВИЗ)

  • Студия, Крауля, 168/б

    • 29 м2
    • 16/20 этаж
    • Состояние: хорошее
    5 200 000 ₽ (179300 ₽/м2)
    Объект № 197676. Продается студия 29,1 кв м в ЖК Янтарная Долина. Вас порадует функциональная планировка, в которой удобно обустроить личное пространство, а лоджия с потрясающим видом на пруд и городскую панораму, создает особое ощущение в мегаполисе. Для вашего удобства рядом расположена необходимая инфраструктура: магазины, остановки транспорта, образовательные учреждения. Ждем на просмотры. ***Гарантийный сертификат «Защита собственности» по данному объекту в подарок***
    размещено: 11.03.2026 , обновлено: 6.05.2026
  • Студия, Крауля, 107/4

    • 31 м2
    • 21/31 этаж
    5 440 000 ₽ (175500 ₽/м2)
    Объект № 197714. Продаётся уютная квартира площадью 31 квадратный метр в новом монолитном доме 2025 года постройки, расположенном в микрорайоне ВИЗ города Екатеринбурга. Квартира расположена на 21 этаже 32-этажного дома, что обеспечивает прекрасный вид из окон на двор. Внутри вас ждёт качественный дизайнерский ремонт, который подчеркнёт индивидуальность вашего жилья и создаст атмосферу комфорта и уюта. Жилая площадь составляет 17 квадратных метров, а кухня занимает 6 квадратных метров, предоставляя достаточно места для приготовления и приёма пищи. Санузел в квартире совмещённый, что является удобным решением для экономии пространства. Особое внимание заслуживает инфраструктура района: во дворе дома находятся детская и спортивная площадки, где ваши дети смогут активно проводить время и заниматься спортом. Безопасность жителей также поддерживается консьержем. Рядом с домом расположены школа, детский сад, торговый центр и фитнес-клуб, что делает расположение особенно привлекательным для семей с детьми и всех, кто ценит комфорт и удобство. Выгода при работе с ГК Новоселе: полная организационная поддержка, как продавца, так и покупателя (все бумаги за вас соберем, поможем с ипотекой, опекой), присутствие на сделке на всех этапах, юридическое сопровождение всех участников, подготовка документов и консультирование, ГК Новосел 25 лет на рынке, члены Уральской палаты недвижимости и Российской гильдии риелторов. Приобретая эту квартиру, вы выбираете современное жильё с высоким уровнем комфорта и безопасности в динамично развивающемся районе Екатеринбурга. Приглашаем вас оценить все преимущества данного предложения лично! ***Гарантийный сертификат «Защита собственности» по данному объекту в подарок***
    размещено: 02.03.2026 , обновлено: 12.05.2026
  • Студия, Викулова, 78

    • 25 м2
    • 2/25 этаж
    5 550 000 ₽ (222000 ₽/м2)
    Объект № 196802. Срочная продажа!Отличный вариант для студента, молодой пары. Подходит как для проживания лично так и для сдачи в аренду. Предлагается к продаже большая студия в ЖК Видный площадью 25,4 кв.м. (+ 4,2 кв.м. лоджия) с достойным ремонтом. Отделка: комната - ламинат 32 класса, обои под покраску. Санузел - керамогранит на полу, установлена сантехника. Установлены качественные двери. На этаже расположено 6 квартир. Изюминкой закрытого двора является небольшой искусственный водоем, зона барбекю, игровые площадки. Для удобства жителей жилого комплекса на территории расположен наземный паркинг. Из преимуществ расположения можно отметить близость к центру города, остановки общественного транспорта в шаговой доступности, торговые центры Мега и Радуга Парк, выезд на Ново-Московский тракт. ***Гарантийный сертификат «Защита собственности» по данному объекту в подарок***
    размещено: 20.01.2026 , обновлено: 6.05.2026
  • Студия, Крауля, 107/2

    • 31 м2
    • 21/31 этаж
    4 900 000 ₽ (158100 ₽/м2)
    Объект № 196173. Продаётся уютная квартира площадью 31 квадратный метр в новом монолитном доме 2025 года постройки, расположенном в микрорайоне ВИЗ. Квартира на 21 этаже 31-этажного дома, что обеспечивает прекрасный вид из окон на тихий и зелёный двор. Жилая площадь составляет 17 квадратных метров, кухня занимает 6 квадратных метров, предоставляя достаточно пространства для комфортного проживания и приготовления пищи. Санузел в квартире совмещённый, что является удобным решением для небольших помещений. Несмотря на то, что квартира требует ремонта, это открывает прекрасную возможность обустроить жильё согласно своим предпочтениям и вкусам, создавая именно тот интерьер, о котором всегда мечтали. Территория вокруг дома закрытая, что гарантирует дополнительную безопасность и комфорт. Для жителей дома предусмотрены детская и спортивная площадки прямо во дворе, а также удобная парковка. Район обладает развитой инфраструктурой: рядом находятся школа, детский сад, торговый центр, парк и фитнес-клуб, что делает проживание здесь особенно комфортным и удобным для семей с детьми и всех, кто ценит качество жизни и близость необходимых объектов инфраструктуры. Приобретая эту квартиру, вы получаете шанс стать владельцем жилья в современном доме с прекрасным потенциалом для создания идеального домашнего уголка. Выгода при работе с ГК Новосел: полная организационная поддержка продавца и покупателя (все документы за вас соберем, поможем оформить ипотеку, опеку), присутствие на сделке на всех этапах, юридическое сопровождение всех участников, подготовка документов и консультирование. ГК Новосел 25 лет на рынке, члены Уральской палаты недвижимости и Российской гильдии риелторов. ***Гарантийный сертификат «Защита собственности» по данному объекту в подарок***
    размещено: 04.12.2025 , обновлено: 12.05.2026

Новостройки Екатеринбург, мкр-н. ВИЗ

Приоритет

Увеличивает просмотры в 3 раза

Ваше объявление показывается в списке выше обычных объявлений. подключить