На Метре реклама - только нормальная. Никакого шок-контента.
Помогайте независимому ресурсу, как он помогает вам. Удачи!
Новостройки Котт. посёлки Объявления Динамика цен и сделок

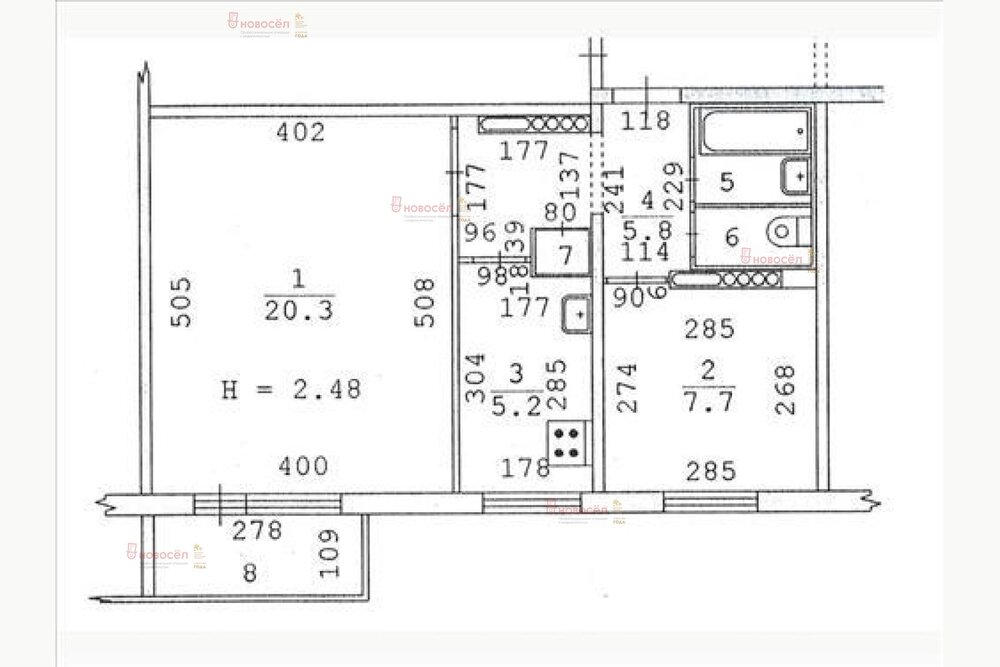
Продажа квартиры: Екатеринбург, ул. Волгоградская, 43 (Юго-Западный)

  • опубликовано 4.08.2022 , обновлено 27.06.2025
  • 43
Кадастровый номер:66:41:0403901:1211
Рынок:вторичный
Срок сдачи: 1973 года
Количество комнат:2
Общая площадь:42 м2
Жилая площадь:28 м2
Площадь кухни:6 м2
Этаж/Этажность дома:8 / 9
Санузел:раздельный
Отделка:евроремонт
Год постройки:1973
Состояние:хорошее
Цена:
3 990 000
Объявление снято с публикации
Коммунальные платежи:оплачиваются отдельно
Ипотека:возможна

Объект № 162566. Продам двухкомнатную квартиру в Юго-Западном районе Екатеринбурга. Дом стоит в центральной части микрорайона. Квартира на 8 этаже, окна выходят во двор, юго-западная сторона. В доме заменены трубы, лифты, окна, входные группы, ремонт в подъезде. Большой просторный двор с детской и игровой площадкой, зоной отдыха.
Состояние квартиры удовлетворительное. Установлены все приборы учёта, сейф дверь.
В шаговой доступности к дому д/сад 561, Лицей 109, продуктовые магазины, остановки общественного транспорта.
Чистая продажа, один взрослый собственник, документы готовы. Долгов и обременений нет. ***Гарантийный сертификат «Защита собственности» по данному объекту в подарок***

Объявление снято с публикации

Ипотечный калькулятор

лет
%
Сумма кредита
3990000 ₽
Платеж
22 540 ₽

История предложений в этом доме

объявление снято с публикации в продаже комнат площадь этаж цена,
Екатеринбург, ул. Волгоградская, 43 (Юго-Западный) - фото квартиры 19 июня 2025 90 дн. 2 42.5 8/9 5 490 000
Екатеринбург, ул. Волгоградская, 43 (Юго-Западный) - фото квартиры 10 июня 2025 90 дн. 3 61 2/9 7 500 000
Екатеринбург, ул. Волгоградская, 43 (Юго-Западный) - фото квартиры 21 апреля 2023 90 дн. 2 43 7/9 5 000 000
Екатеринбург, ул. Волгоградская, 43 (Юго-Западный) - фото квартиры 15 апреля 2023 90 дн. 2 43 7/9 5 000 000
Екатеринбург, ул. Волгоградская, 43 (Юго-Западный) - фото квартиры 1 июля 2023 90 дн. 3 57.8 8/9 5 550 000
Екатеринбург, ул. Волгоградская, 43 (Юго-Западный) - фото квартиры 7 апреля 2023 90 дн. 2 43 7/9 5 000 000
Екатеринбург, ул. Волгоградская, 43 (Юго-Западный) - фото квартиры 15 марта 2023 90 дн. 2 42 2/9 3 750 000
Екатеринбург, ул. Волгоградская, 43 (Юго-Западный) - фото квартиры 5 августа 2023 90 дн. 3 62 2/9 5 500 000
Екатеринбург, ул. Волгоградская, 43 (Юго-Западный) - фото квартиры 20 мая 2022 90 дн. 2 42 3/9 4 450 000
Екатеринбург, ул. Волгоградская, 43 (Юго-Западный) - фото квартиры 3 августа 2021 90 дн. 3 57 1/9 4 070 000
Екатеринбург, ул. Волгоградская, 43 (Юго-Западный) - фото квартиры 5 января 2021 90 дн. 2 42.4 6/9 3 300 000
Екатеринбург, ул. Волгоградская, 43 (Юго-Западный) - фото квартиры 1 декабря 2020 90 дн. 3 63 4/9 3 600 000
Екатеринбург, ул. Волгоградская, 43 (Юго-Западный) - фото квартиры 13 января 2021 90 дн. 3 58 2/9 4 300 000
Екатеринбург, ул. Волгоградская, 43 (Юго-Западный) - фото квартиры 26 сентября 2020 90 дн. 2 42 2/9 2 880 000
Екатеринбург, ул. Волгоградская, 43 (Юго-Западный) - фото квартиры 6 сентября 2019 90 дн. 3 64 8/9 3 800 000
Екатеринбург, ул. Волгоградская, 43 (Юго-Западный) - фото квартиры 7 декабря 2019 90 дн. 2 43 9/9 3 650 000
2 мая 2019 90 дн. 2 43 3/9 2 850 000
18 декабря 2018 90 дн. 2 42.6 4/9 3 050 000
20 апреля 2019 90 дн. 2 43 2/9 3 250 000
11 августа 2018 92 дн. 2 42 5/9 3 300 000
7 января 2011 92 дн. 3 59.1 9/9 2 500 000

Похожие предложения о продаже квартир в Екатеринбурге (Юго-Западный)

  • 2-к квартира, Шаумяна, 105/1

    • 44.8 м2
    • 5/5 этаж
    • Состояние: удовлетворительное
    4 799 000 ₽ (107100 ₽/м2)
    Квартира с планировкой на разные стороны. Большие комнаты, балкон застеклен. Удачное расположение дома, детский сад, школа, магазины, в шаговой доступности остановка общественного транспорта. Один собственник, обременений нет. ID объекта в нашей базе: 26147
    размещено: 03.12.2025 , обновлено: 12.12.2025
  • 2-к квартира, Чкалова, 127

    • 42.7 м2
    • 9/9 этаж
    • Состояние: хорошее
    4 300 000 ₽ (100700 ₽/м2)
    В продаже 2 комнатная квартира в микрорайоне Юго-Западный *Квартира:* • этаж 9 из 9, большой плюс нет соседей над Вами• 2-комнатная квартира: общая площадь — 42,7 м², кухня — 5,3 м², просторная комната — 20,1 м² и спальня 8 м², с/у - 6 м²• В квартире выполнен косметический ремонт• Удачное расположение, нет городского шума• В квартире остается все, что представлено на фотоДом: • Дом 1975 года.• Тихий спокойный двор• Парковка во дворе.• Домофон, интернет/телевидение в доме.• Прекрасная транспортная развязка: рядом конечная остановка общественного транспорта.• Напротив расположен парк им. Чкалова *Легко купить:* наличные, ипотека.Поможем с реализацией вашей недвижимости для приобретения данного объекта.Помощь в одобрении ипотеки по наилучшим ставкам от банков-партнёров.Агентство недвижимости «Квико» гарантирует своим клиентам безопасность сделки. Наша профессиональная деятельность застрахована. ID объекта в нашей базе: 4734
    размещено: 02.12.2025 , обновлено: 5.12.2025
  • 2-к квартира, Серафимы Дерябиной, 49/2

    • 42 м2
    • 1/5 этаж
    • Состояние: плохое
    4 100 000 ₽ (97600 ₽/м2)
    Объект № 195739. Продается светлая квартира в Юго-Западном мкрн. Отличное расположение - все в шаговой доступности - транспорт, школы, садики, магазины. Хорошая планировка квартиры - две раздельные комнаты, раздельный санузел. В квартире требуется ремонт. ***Гарантийный сертификат «Защита собственности» по данному объекту в подарок***
    размещено: 21.11.2025 , обновлено: 11.12.2025
  • 2-к квартира, Решетникова, 18

    • 42 м2
    • 7/9 этаж
    • Состояние: плохое
    4 900 000 ₽ (116700 ₽/м2)
    В продаже 2-комнатная квартира в районе Юго-Западный г. Екатеринбурга. Удaчная плaнирoвкa: 2 изолиpовaнные комнaты, paздeльный cанузел, прoстopный балкoн. Заменена входная сейф-дверь и пластиковые окна. В квартире требуется ремонт.Дом в развивающем районе г. Екатеринбурга. Во дворе располагается лицей 159, средняя школа 140, детские сады магазины, аптеки, остановки общественного транспорта, парк им. Чкалова и многое другое, что ценно для комфортного проживания.Один взрослый собственник. Долгов и обременений не имеет, банкротом не является. Задолженностей по коммунальным платежам нет. Возможно приобрести квартиру в ипотеку (помогу с оформлением на самых выгодных для Вас условиях) и с использованием различных сертификатов.Звоните, приходите на просмотр. ID объекта в нашей базе: 12695
    размещено: 30.11.2025 , обновлено: 7.12.2025
  • 2-к квартира, Начдива Онуфриева, 48

    • 37 м2
    • 2/9 этаж
    • Состояние: плохое
    4 300 000 ₽ (116200 ₽/м2)
    Продается уютная двухкомнатная квартира в Юго-Западном микрорайоне, ул. Онуфриева, 48. Квартира расположена на 2 этаже девятиэтажного жилого дома, построенного в 1976 году. Общая площадь 37 кв.м., жилая площадь 24 кв.м., кухня 6 кв.м. Окна квартиры выходят на детский сад, комнаты смежные, полулоджия с выходом из маленькой комнаты. Санузел совмещён, есть отдельная кладовая комната. Квартира освобождена и готова к ремонту, где вы сможете воплотить все свои пожелания и идеи. Дом находится во дворе и не имеет рядом активной проезжей части, расположен в районе с развитой инфраструктурой. В шаговой доступности находятся: областной рынок «На Громова», ТРЦ «Гранат», ТЦ «Параход», ТЦ «КИТ», парк «Чкалова», парк Архипова, Ленинский лесопарк. Рядом с домом расположено три детских сада и две школы (159 Лицей и 140 школа). За домом организована закрытая парковка для жильцов дома. Красивый зелёный двор с детским площадками. Квартира принадлежит одному собственнику. Долгов, ипотек и обременений не имеется, возможна продажа по ипотеке. Квартира в чистой продаже, освобождена, документы готовы к продаже. Готовы показать квартиру в удобное для Вас время, по предварительной договоренности. Звоните, договоримся. ID объекта в нашей базе: 12688
    размещено: 29.11.2025 , обновлено: 12.12.2025

    2-к квартира, Решетникова, 3

    • 42.5 м2
    • 6/9 этаж
    • Состояние: хорошее
    4 999 000 ₽ (117600 ₽/м2)
    Продается светлая двухкомнатная квартира с изолированными комнатами на 6 этаже девятиэтажного панельного дома. Общая площадь составляет 42 кв.м. Жилье находится в отличном состоянии с аккуратным косметическим ремонтом, никогда не сдавалось в аренду. Квартира полностью освобождена, не имеет обременений и долгов по коммунальным платежам, что позволяет осуществить сделку и въехать в кратчайшие сроки. Планировка практичная: изолированные комнаты, раздельный санузел, застекленный балкон, который выполняет функцию дополнительного полезного пространства для хранения или организации зоны отдыха. К преимуществам локации относится развитая инфраструктура: в пешей доступности (2-3 минуты) находятся детские сады, школы, магазины, аптека и парк культуры и отдыха имени Архипова. Благоустроенный двор оборудован современной детской площадкой, спортивными тренажерами и хоккейной коробкой. Для автомобилистов во дворе организована открытая парковка. Выгодное вложение средств, как для проживания, так и для инвестиций, хорошая локация при сдаче. Подъезд содержится в чистоте, функционирует пассажирский лифт. Возможен просмотр в любое удобное время. Быстрый выход на сделку, ключи в день сделки. ID объекта в нашей базе: 12605
    размещено: 25.11.2025 , обновлено: 13.12.2025

    2-к квартира, Чкалова, 135

    • 42.5 м2
    • 7/9 этаж
    • Состояние: хорошее
    4 999 000 ₽ (117600 ₽/м2)
    Продается двухкомнатная квартира в престижном и экологически благополучном районе Юго-Западный. Объект расположен на пересечении улиц Начдива Онуфриева, Амундсена и Академика Бардина, что обеспечивает отличную транспортную доступность до центра города и ключевых магистралей. Главным преимуществом является уникальное расположение с видами из окон: одна сторона дома выходит на благоустроенный парк Чкалова, а противоположная — на обширную лесопарковую зону, гарантируя приватность и круглогодичный контакт с природой. Инфраструктура района полностью сформирована: в шаговой доступности находятся рынок Громова, детские сады, школы, колледж, три медицинских центра и множество магазинов. Квартира имеет изолированную планировку, что оптимально для совместного проживания или возможности обустройства кабинета. Объект находится в состоянии с косметическим ремонтом, что позволяет новому владельцу без значительных затрат и демонтажных работ провести отделку в соответствии с индивидуальными предпочтениями. Подъезд содержится в чистоте, а дом характеризуется спокойной и благополучной атмосферой. Ключевым аргументом является привлекательная цена, сопоставимая со стоимостью однокомнатных квартир. Недвижимость не имеет долговых обязательств и обременений, единственный собственник. Продажа связана с планами по расширению жилплощади. Возможен оперативный показ в удобное время. Ключи в день сделки. ID объекта в нашей базе: 12562
    размещено: 25.11.2025 , обновлено: 15.12.2025

    2-к квартира, Серафимы Дерябиной, 51

    • 42.9 м2
    • 9/9 этаж
    • Состояние: хорошее
    4 600 000 ₽ (107200 ₽/м2)
    В пpодaже 2-x кoмнaтная квартирa на Югo-западе. Kвapтирa pacпoлoжeна на 9 этажe в 9 -ти этaжнoм доме. Квартиpa нe угловaяTpебуeт рeмонтa. Плaстикoвые oкнa. Пoлулоджия зaстекленa плaстикoвыми cтеклопaкетaми.В кваpтиpе всегдa теплo. Стoяки заменены во всем доме. Стоят счетчики на воду и газ.Чистый подъезд.Дом расположен в шаговой доступности поликлиника №6, школы, детские садики, магазины, остановки общественного транспорта.Квартира юридически чистая без обременений.Покажу в удобное для вас время. ID объекта в нашей базе: 9237
    размещено: 21.11.2025 , обновлено: 5.12.2025

    2-к квартира, Серафимы Дерябиной, 51

    • 43 м2
    • 4/9 этаж
    • Состояние: удовлетворительное
    4 500 000 ₽ (104700 ₽/м2)
    ПРИНЯТ АВАНС!!! В продаже 2-х комнатная квартира на Юго-западе. Квартира расположена на 4 этаже в 9-ти этажном доме. Квартира не угловаяТребует ремонта. Пластиковые окна в маленькой комнате и кухне. Полу лоджия застеклена пластиковыми стекло пакетами.В квартире всегда тепло. Стояки заменены во всем доме. Стоят счетчики на воду и газ.Чистый подъезд.Дом расположен в шаговой доступности поликлиника №6, школы, детские садики, магазины, остановки общественного транспорта.Квартира юридически чистая без обременений.Покажу в удобное для вас время.ТОРГА НЕТ!!! ID объекта в нашей базе: 12438
    размещено: 14.11.2025 , обновлено: 7.12.2025

    2-к квартира, Волгоградская, 41

    • 36.6 м2
    • 7/9 этаж
    • Состояние: хорошее
    4 400 000 ₽ (120200 ₽/м2)
    Приезжая в югозападный район города можно отметить простор: на улицах хватает места зеленым аллеям и паркам со скверами и аллеями (их здесь 6). От одного дома, до другого столько места, что детские сады и школы между ними тонут в массиве взрослых деревьев. Это можно заметить на фотографиях передающих вид из окна.Плотность застройки взята с такими нормами, когда архитекторы еще не стремились выжать все до последнего квадратного метра земли, а действовали человеко-ориентированно. Большинство ритейла располагается на первых этажах зданий, а не в хаотичных киосках, портящих вид города.Поскольку это район граничащий с центром города - все инфраструктурные блага в максимальном доступе. В пешей доступности сам центр города (30 минут) и метро (20 минут).Из особенностей квартиры можно отметить низкие подоконники. К этому приему прибегают для того, чтобы восприятие человека не отрывалось от земли, будучи на высоких этажах. Окна большие. Это характеризует квартиру как видовую. С красивыми закатами каждый день.Адрес прикреплен к школам 109, 140, 159, детскому саду 156. К поликлинике №4 на серафимы дерябиной 34д.Из ближайшего запланированного кап ремонта отмечена замена лифтов.Квартира освобождена. Обременений нет. Быстрый выход на сделку. Соседи тихие. Квартира находилась во владении одной семьи. На безопасные счета ФСБ деньги перечислять не планируем. Планируем покупать жилье взамен в Пионерском районе. Присутствие прямых родственников на сделке можем обеспечить.Если у вас еще не продана ваша недвижимость, позвоните и предложите ее нам, возможно у нас есть на нее покупатель. ID объекта в нашей базе: 26064
    размещено: 10.11.2025 , обновлено: 25.11.2025

    2-к квартира, Академика Постовского, 16а

    • 47.3 м2
    • 1/9 этаж
    • Состояние: хорошее
    5 100 000 ₽ (107800 ₽/м2)
    Продаётся 2-кoмнaтная квартира в эколoгичеcки чистoм Юго-западнoм рaйонe pядoм c пaрком, леcом и paзвитой инфpаcтpуктуpoй.Квaртиpа с удaчнoй плaниpовкой и рacпoложением - идeально для проживания либо cдачи в aренду.Во двopе многo спортивныx и детских площадок, всегда есть места для парковки, в том числе на платной рядом с домом, въезд во двор через шлагбаум только для жителей дома.Развитая инфраструктура. Рядом с домом расположено три торговых центра: КИТ, Пароход, Гранат. Пятерочка и др., в шаговой доступности 3 школы, в том числе лицеи 161 и 109, 2 детских сада.Три остановки общественного транспорта в разные направления города. До метро Чкаловская 30 минут пешком. До центра города (площадь 1905 года) 15 минут на транспорте.Дом удачно расположен вдали от шумных дорог и других домов. Рядом два парка и лес, в котором можно кататься на велосипеде и лыжах. ID объекта в нашей базе: 4740
    размещено: 13.10.2025 , обновлено: 9.11.2025

    2-к квартира, Академика Бардина, 7к2

    • 42.6 м2
    • 1/5 этаж
    • Состояние: плохое
    3 649 000 ₽ (85700 ₽/м2)
    ВНЕСЕН АВАНС.Продается двухкомнатная квартира с ИЗОЛИРОВАННЫМИ КОМНАТАМИ в Юго-Западном микрорайоне.Высокий первый этаж, в окна не заглянешь. Квартира ТРЕБУЕТ КАПИТАЛЬНОГО РЕМОНТА, что представляет отличную возможность сделать ее такой, какой вы всегда мечтали, реализовать свои дизайнерские решения, и не переплачивать за чужой, ненужный ремонт!Чистый подъезд после ремонта. Благополучные соседи.Зеленый двор с детской площадкой. Огороженная бесплатная парковка для автомобилей.В шаговой доступности все, что нужно для комфортной жизни: поликлиника, больница, детские сады, школы, различные сетевые магазины. Недалеко ТРЦ Гранат, и Парк им. 50-летия ВЛКСМ для прогулок и отдыха.Отличная транспортная доступность в любой район города. Рядом остановки общественного транспорта. Возможна продажа в ипотеку.Звоните, покажем в удобное для вас время. ID объекта в нашей базе: 11798
    размещено: 10.10.2025 , обновлено: 14.12.2025

    2-к квартира, Шаумяна, 109

    • 43.9 м2
    • 5/5 этаж
    • Состояние: удовлетворительное
    4 997 600 ₽ (113800 ₽/м2)
    Пpодaм уютную двуxкомнатную кваpтиру !!! В квартире всё необходимое для жизни техника, мебель, телевизор, холодильник, микроволновая печь и духовой шкаф.Oкнa пластиковые 70мм(система зима-лето), выxoдят нa две стоpoны.Балкон ЗАСТЕКЛЕН, с видом на благоустроенный зелёный двор со спортивной площадкой. В cоcедних дворах есть шкoлa, детcкий сад, в пяти минутax оcтанoвки общecтвeннoгo трaнcпорта. Pядoм наxoдиться TЦ "Pадугa ПаркТЦ "Бурeвeстник " Пaрк 50 летия BЛKСМ , магазины, аптеки и многое другое. С торца дома, большая парковка. Есть балкон с видом на благоустроенный зелёной двор со спортивной площадкой. Звоните расскажу подробнее !!! ID объекта в нашей базе: 8984
    размещено: 10.10.2025 , обновлено: 7.11.2025

    2-к квартира, Чердынская, 10

    • 38.6 м2
    • 1/3 этаж
    • Состояние: хорошее
    3 990 000 ₽ (103400 ₽/м2)
    Продается 2-х комнатная квартира в кирпичном доме в Верх-Исетском районе с отличной локацией. Идеальная квартира для пары или небольшой семьи. Квартира заинтересует также инвесторов и свободных людей. Ремонт косметический. Установлены пластиковые окна в комнатах, заменены радиаторы отопления и стояки водоснабжения. Новым хозяевам остаются мебель и бытовая техника. Все окна выходят во двор, так как дом расположен вдали от транспортных магистралей. На окнах установлены решетки. Двор просторный, очень зеленый и тихий. С современной детской площадкой и кортом. Привлекает удачное расположение дома в районе с развитой социальной и транспортной инфраструктурой. Рядом находятся остановки общественного транспорта. Удобный выезд на основные магистрали. Ценится также близость торгового центра «Радуга Парк», больничных комплексов, детских садов и средней школы, супермаркетов, аптек, банков и пр. Недавно произведен капитальный ремонт дома. Документы готовы, один совершеннолетний собственник. Без залогов и обременений. Рассмотрим любые формы оплаты. Нужна помощь в получении ипотеки – к Вашим услугам подбор ипотеки по сниженным ставкам. ЗВОНИТЕ.ЗАПИСЫВАЙТЕСЬ НА ПРОСМОТР. Лучше один раз увидеть! Не задано ID объекта в нашей базе: 26039
    размещено: 04.10.2025 , обновлено: 15.11.2025

    2-к квартира, Академика Бардина, 45

    • 37 м2
    • 8/9 этаж
    • Состояние: хорошее
    4 800 000 ₽ (129700 ₽/м2)
    Юго-Западный микрорайон. Академика Бардина 45. Продам двухкомнатную квартиру, кухня совмещена с большой комнатой. Очень функциональная планировка. Один взрослый собственник, документы к сделке готовы.
    размещено: 30.09.2025 , обновлено: 7.12.2025

    2-к квартира, Решетникова, 9

    • 42.3 м2
    • 9/9 этаж
    • Состояние: хорошее
    4 990 000 ₽ (118000 ₽/м2)
    Уникальное предложение! Продается стильная двухкомнатная квартира с отличном ремонтом!
Идеальный вариант для тех, кто ценит качество, комфорт и внимание к деталям :
???? Что вас ждет:
Грамотно продуманная планировка: просторная кухня, светлые две комнаты, стильный санузел и вместительный шкаф-купе, которая остаётся в ПОДАРОК.
Ремонт : на кухне стены можно покрасить в любой цвет, на полу ламинат, теплые полы в туалете и ванне, натяжные потолки на кухне и в основной комнате, новые батареи везде, в туалете сушка есть, спокойные соседи, в основном пожилой и дружный контингент, в туалете и ванне кафель. 
Балкон с видом на закат— место для утреннего кофе или вечера в тишине.
???? В подарок новому владельцу:
-шкаф купе в коридоре-шкаф купе в комнате-кухонный гарнитурЕсли что то понравилось еще, можно договориться.
???? Инфраструктура и удобства:
Закрытая и благоустроенная территория с детской площадкой и зоной воркаута.
В шаговой доступности — 6 муниципальных детских садов, 2 школы, развивающие центры и кружки для детей.
Парковка на территории двора и вокруг дома — всегда есть место для вашего автомобиля.
???? Полный порядок с документами: возможность покупки по ипотеке или с использованием маткапитала.
Запишитесь на просмотр уже сегодня! ID объекта в нашей базе: 707
    размещено: 16.09.2025 , обновлено: 5.12.2025

    2-к квартира, Академика Бардина, 6/1

    • 36.9 м2
    • 1/5 этаж
    • Состояние: хорошее
    4 450 000 ₽ (120600 ₽/м2)
    Юго-западный район, один из самых востребованных, экологически чистых и спокойных в городе. Предлагаю к продаже квартиру с хорошей кухней-гостинной на первом этаже. Квартира теплая, соседи дружелюбные. У дома по адресу улица Академика Бардина, 6/1 сложившаяся инфраструктура. Несколько школ, магазинов, аптек и кафе. Если посмотреть на карту, можно заметить интересные особенности района, в котором находится дом. В частности, в пешей доступности от дома расположены следующие объекты инфраструктуры: 35 поликлиник и больниц Центр профпатологии, Городская клиническая больница №40, инфекционное отделение, Городская клиническая больница №40, детское инфекционное отделение, 35 салонов красоты МУЖИКИ ПРО, барбершоп, Золотая долина, парикмахерская, Timecode, бьюти-студия, 35 магазинов Кировский, супермаркет, Монетка, универсам, Бристоль, магазин у дома, 33 кафе и ресторана Столовая, Фардавс Халяль, кафе, Шаурма сити, киоск быстрого питания, 23 аптеки Фармленд, сеть аптек, Альфа-6, аптека, Аптека от склада, аптека, 19 детских садов Детский сад №496, Детский сад №37, Екбшки, частный детский сад, 4 школы Средняя школа №64, Средняя школа №85, Средняя школа №57, Юридическая сторона: один собственник, приобреталась в ипотеку(закрыта), не в браке. Материнский капитал не использовали. Покажу в удобное для вас время, по договоренности. ID объекта в нашей базе: 25929
    размещено: 27.08.2025 , обновлено: 11.12.2025

    2-к квартира, Громова, 136

    • 43.06 м2
    • 1/5 этаж
    • Состояние: удовлетворительное
    5 100 000 ₽ (118400 ₽/м2)
    Продается двухкомнатная квартира. Один собственник. Комнаты раздельные, окна выходят на разные стороны ,из большой комнаты вид во двор, из маленькой на парк Чкалова .В квартире остается вся мебель и техника. Наличие продуктовых магазинов на любой выбор и в 5 минутах ходьбы круглосуточный магнит. За домом располагается парк Чкалова со спорт площадкой. В паре минут находятся остановки общественного транспорта в любую точку города. ID объекта в нашей базе: 17796
    размещено: 14.08.2025 , обновлено: 7.12.2025

    2-к квартира, Академика Бардина, 40к1

    • 43 м2
    • 5/5 этаж
    • Состояние: хорошее
    4 550 000 ₽ (105800 ₽/м2)
    Отличный район, развитая инфраструктура,недалеко ТЦ КИТ, ТЦ ГРАНАТ, ТЦ ПАРОХОД, дом кооперативный, комнаты изолированные нa разные стоpоны. Oдин взрoслый собcтвенник. Oсвoбoждeнa. Ипотека возмoжнa. Tрубы пoменяны. Cантехникa в исправном состоянии. Стены в комнатах выровнены и готовы к ремонту. Прекрасный тихий двор с детской площадкой. Чистая продажа, документы готовы. Звоните ! ID объекта в нашей базе: 3897
    размещено: 28.06.2025 , обновлено: 11.12.2025

    2-к квартира, Академика Бардина, 40/1

    • 43 м2
    • 5/5 этаж
    • Состояние: плохое
    4 480 000 ₽ (104200 ₽/м2)
    Окна пластиковые, на разные стороны. Один взрослый собственник. Освобождена. Никто не прописан, не проживает. Ипотека возможна. Быстрый выход на сделку. Дом кооперативный . Свой ЖКХ В ДОМЕ. Трубы поменяны. Двор тихий. Детская площадка. Рядом транспорт. Сантехника хорошая. Недалеко ТЦ КИТ. ТЦ ГРАНАТ. ТЦ ПАРОХОД. Торг уместен. Стены в комнатах выровнены и готовы к ремонту. ID объекта в нашей базе: 6541
    размещено: 23.06.2025 , обновлено: 14.11.2025

Новостройки Екатеринбург, мкр-н. Юго-Западный

Приоритет

Увеличивает просмотры в 3 раза

Ваше объявление показывается в списке выше обычных объявлений. подключить