Продажа квартиры: Екатеринбург, ул. Серафимы Дерябиной, 15/1 (Юго-Западный)
- опубликовано 12.11.2023 , обновлено 19.03.2026
- 116
| Кадастровый номер: | 66:41:0304025:1029 |
| Рынок: | вторичный |
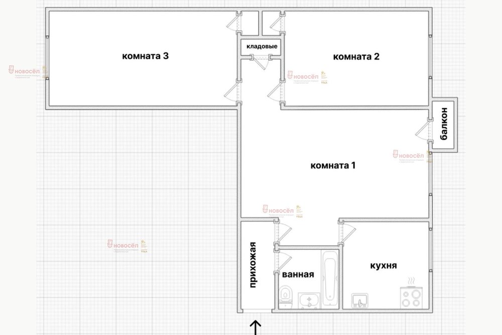
| Количество комнат: | 3 |
| Из них изолированных: | 3 |
| Планировка: | «брежневка» |
| Общая площадь: | 58.5 м2 |
| Жилая площадь: | 40 м2 |
| Площадь кухни: | 6 м2 |
| Этаж/Этажность дома: | 5 / 5 |
| Материал стен: | панель |
| Санузел: | раздельный |
| Год постройки: | 1967 |
| Перепланировка: | не было |
| Балкон/лоджия: | балкон |
| Состояние: | хорошее |
| Цена: | |
Объявление снято с публикации | |
| Торг: | возможен |
| Условия продажи: | обмен |
| Ипотека: | возможна |
Срочно Быстрый выход на сделку! Продам отличную трехкомнатную квартиру с раздельными комнатами в районе с высокоразвитой инфраструктурой, где есть все необходимое для комфортной жизни!
Квартира с раздельными комнатами, санузел раздельный, окна выходят на разные стороны, балкон застеклен алюминиевым профилем, подключена сигнализация. Кухонный гарнитур и шкаф-купе остается новому владельцу квартиры.
Идеальная инфраструктура: рядом с домом находятся детские садики-ясли, гимназия №116 и другие образовательные учреждения для детей. В пошаговой доступности ТЦ «Буревестник», государственные больницы и поликлиники (ОКБ №1, ОДБ №1, перинатальный центр , ГКБ № 40), медицинские центры, много различных аптек, предприятий сферы услуг, кафе, рядом также расположены банки и прочие необходимые предприятия для обслуживания населения.
В шаговой доступности расположены остановки общественного транспорта (трамваи, автобусы, маршрутное такси).
Удобная транспортная развязка, позволяющая избежать автомобильных пробок в разные районы города, до центра города 7 минут на автомобиле.
В собственности более 10 лет, один совершеннолетний собственник, обременений нет. Маткапитал не использовался! Ипотека любых банков.
Квартира Вашей мечты ждет Вас! Звоните! Ждем Вас на просмотр! Хорошая квартира нужна многим







