На Метре реклама - только нормальная. Никакого шок-контента.
Помогайте независимому ресурсу, как он помогает вам. Удачи!
Новостройки Котт. посёлки Объявления Динамика цен и сделок

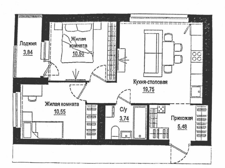
Продажа квартиры: Екатеринбург, ул. Счастливая, 16 (Солнечный)

  • опубликовано 2.05.2024 , обновлено 6.11.2025
  • 132
Рынок:вторичный
Срок сдачи: 2023 года
Количество комнат:2
Общая площадь:61 м2
Жилая площадь:27 м2
Площадь кухни:18 м2
Этаж/Этажность дома:10 / 16
Отделка:косметический
Год постройки:2023
Балкон/лоджия:лоджия
Состояние:хорошее
Цена:
8 499 000
Объявление снято с публикации
Коммунальные платежи:оплачиваются отдельно
Торг:торг
Ипотека:возможна

Продается отличная "евротрешка" в доме комфорт-класса в новом, стремительно развивающемся, микрорайоне Солнечный (застройщик Синара-Девелопмент). Очень безопасный микрорайон, по всему периметру установлены круглосуточные камеры видеонаблюдения.Функциональная и продуманная планировка: большая кухня-гостиная, две изолированные спальни, два санузла, вместительный коридор.Выполнен качественный ремонт от застройщика: на полу ламинат (в том числе и на лоджии), обои под покраску, счетчики на воду, электричество и тепло.В детской комнате и прачечной (санузел №1) установлены шкафы-купе.Дизайнерский холл, современные скоростные лифты, просторная колясочная, сквозной подъезд. Закрытый, охраняемый двор без машин с детскими площадками и зонами отдыха. За домом строится парковка на 800 автомобилей.В пешей доступности от дома есть все для комфортной жизни: 3 детских сада, новая школа №215, Губернаторский лицей, центр художественной гимнастики, ледовая арена Авто, кафе, пицерия, различные сетевые магазины.Хорошая транспортная развязка. Рядом с домом теплая остановка автобуса.Один взрослый собственник. Чистая продажа. Возможна ипотека.Звоните, покажем в удобное для вас время.
ID объекта в нашей базе: 9349

Объявление снято с публикации

Ипотечный калькулятор

лет
%
Сумма кредита
8499000 ₽
Платеж
22 540 ₽

Актуальные предложения в ЖК «Солнечный» (Синара-Девелопмент)

  • 1-к квартира, Чемпионов, 5

    • 41.1 м2
    • 4/9 этаж
    • Состояние:
    6 000 000 ₽ (146000 ₽/м2)
    Уютная, ухоженная, очень теплая квартира с удобной планировкой и просторными комнатами. Окна квартиры выходят во двор, обустроенная лоджия с панорамным остеклением Один из лучших домов в районе, качественно построенный в 2020году застройщиком Синара-Девелопмент. В доме установлена система телеметрии, закрытый зеленый двор без машин с современными детскими и спортивными площадками, видеонаблюдением по периметру и собственной службой безопасности. Прекрасно развитая инфраструктура и удачное расположение дома сделает вашу жизнь комфортной.В шаговой доступности три муниципальных детских сада, школа "Созвездие", Уральский Губернаторский лицей, Центр художественной и эстетической гимнастики, ледовая арена "Авто", магазины, аптеки, пекарни, кафе, досуговые центры, парк "Солнечный, остановки общественного транспорта.Квартира освобождена, один взрослый собственник, без обременений. ID объекта в нашей базе: 3880
    размещено: 01.12.2025 , обновлено: 3.12.2025
  • 1-к квартира, Золотистый, 4

    • 27 м2
    • 6/12 этаж
    • Состояние:
    4 600 000 ₽ (170400 ₽/м2)
    Вашему вниманию предлагается уютная квартира-студия, готовая для проживания. Общая площадь – 27 кв.м. Идеальное расположение дома в Центре Солнечного. Рядом современный и красивый парк с местами для занятий спортом для всех возрастов. Огромное количество различных магазинов и кафе в шаговой доступности. Также рядом находятся современные детские сады и школы. Трамвайное кольцо находится в 200 метрах. По периметру дома и в холлах установлено видеонаблюдение. Очень зеленый и развлекательный двор. На балконе квартиры можно наслаждаться закатами с чашкой чая. В подарок мы оставляем кухонный гарнитур с техникой, современную мебель. Квартира без обременений. Один собственник. Возможно приобретение с помощью ипотечного кредита. Быстрый выход на сделку. ID объекта в нашей базе: 3191
    размещено: 27.11.2025 , обновлено: 3.12.2025
  • 1-к квартира, Золотистый, 4

    • 38.1 м2
    • 4/8 этаж
    • Состояние:
    5 970 000 ₽ (156700 ₽/м2)
    В ПРОДАЖЕ ОДНО ИЗ ЛУЧШИХ ПРЕДЛОЖЕНИЙ! -самый центр Солнечного. Рядом вся инфраструктура, парк, остановки транспорта. -малоэтажная секция-8 этажей, средний этаж -окна во двор, нет шума и пыли -оптимальный метраж квартиры-38, 1 м. Кухня- зал-13 м, комната-17 м, высота потолков-2.7 м. -состояние хорошее. Санузел-сделаете на свой вкус. -новым собственникам остается качественный кухонный гарнитур с бытовой техникой Bosh, кондиционер, вместительная зона шкафов в спальне. -первый и единственный собственник. Обременения, опека и другие сложности отсутствуют. Приглашаем на просмотр! ID объекта в нашей базе: 26097
    размещено: 27.10.2025 , обновлено: 3.12.2025
  • 1-к квартира, Чемпионов, 5

    • 39.1 м2
    • 5/9 этаж
    • Состояние:
    6 390 000 ₽ (163400 ₽/м2)
    Продается квартира евро-формата в районе Солнечный от застройщика Синара-Девелопмент.**О квартире:**Общая площадь — 39,1 м². Правильная планировка, окна во двор. Просторная комната (15,7 м²) и кухня-гостиная (16,5 м²). Утепленная лоджия с панорамными окнами. Дизайнерский ремонт. Остаеться часть мебели и техника остаются новым владельцам.**О сделке:**Без перепланировок. Полная стоимость указана в договоре. Подходит под ипотеку. Чистая продажа.**Об инфраструктуре:**Средняя общеобразовательная школа №215. Губернаторский лицей. Детские сады («Солнечный лучик», «Галактика»). Ледовая арена «Автомобилист». Центр художественной и эстетической гимнастики. Удобная транспортная развязка: остановки общественного транспорта рядом. Сетевые продуктовые магазины и аптеки. Звоните и записывайтесь на просмотр! Помогу оформить ипотеку. ID объекта в нашей базе: 11956
    размещено: 18.10.2025 , обновлено: 29.11.2025
  • 1-к квартира, Золотистый, 4

    • 37.5 м2
    • 7/10 этаж
    • Состояние:
    5 790 000 ₽ (154400 ₽/м2)
    Объект № 194541. Продается евро-двухкомнатная квартира в новом динамично развивающемся микрорайоне Солнечный. В шаговой доступности детские сады, Уральский губернаторский лицей, Центр художественной и эстетической гимназии, центры дополнительного образования и спорта, а также медицинские учреждения. Чистый подъезд, приличные соседи, охрана, видеонаблюдение, закрытый двор. В доме несколько магазинов, пиццерия, кофейня и др. Поможем с подбором ипотечной программы! Ждем всех на просмотр! ***Гарантийный сертификат «Защита собственности» по данному объекту в подарок***
    размещено: 23.09.2025 , обновлено: 30.11.2025

История предложений в этом доме

объявление снято с публикации в продаже комнат площадь этаж цена,
Екатеринбург, ул. Чемпионов, 5 (Солнечный) - фото квартиры 23 ноября 2025 90 дн. 1 37.3 5/16 5 550 000
Екатеринбург, ул. Чемпионов, 5 (Солнечный) - фото квартиры 14 ноября 2025 90 дн. 1 37.3 5/16 5 550 000
Екатеринбург, ул. Чемпионов, 5 (Солнечный) - фото квартиры 3 октября 2025 90 дн. 1 25.7 9/16 4 350 000
Екатеринбург, ул. Золотистый, 4 (Солнечный) - фото квартиры 18 октября 2025 90 дн. 1 45 2/8 6 150 000
Екатеринбург, ул. Чемпионов, 5 (Солнечный) - фото квартиры 16 октября 2025 90 дн. 1 37.3 5/16 5 650 000
Екатеринбург, ул. Золотистый, 4 (Солнечный) - фото квартиры 26 октября 2025 90 дн. 1 38.1 4/8 5 980 000
Екатеринбург, ул. Чемпионов, 5 (Солнечный) - фото квартиры 16 сентября 2025 90 дн. 1 37.3 5/16 5 550 000
Екатеринбург, ул. Чемпионов, 5 (Солнечный) - фото квартиры 13 августа 2025 90 дн. 1 37.3 5/16 5 550 000
Екатеринбург, ул. Чемпионов, 5 (Солнечный) - фото квартиры 5 августа 2025 90 дн. 3 82 2/16 11 900 000
Екатеринбург, ул. Золотистый, 4 (Солнечный) - фото квартиры 11 октября 2025 90 дн. 2 57.3 6/6 7 770 000
Екатеринбург, ул. Золотистый, 4 (Солнечный) - фото квартиры 4 сентября 2025 90 дн. 2 59.7 5/6 8 100 000
Екатеринбург, ул. Чемпионов, 5 (Солнечный) - фото квартиры 7 июня 2025 90 дн. 2 55.6 7/13 7 990 000
Екатеринбург, ул. Чемпионов, 5 (Солнечный) - фото квартиры 17 сентября 2025 90 дн. 3 55.7 6/16 8 300 000
Екатеринбург, ул. Чемпионов, 5 (Солнечный) - фото квартиры 13 марта 2025 90 дн. 3 55.7 6/16 8 300 000
Екатеринбург, ул. Чемпионов, 5 (Солнечный) - фото квартиры 28 февраля 2025 90 дн. 3 55.7 6/16 8 300 000
Екатеринбург, ул. Чемпионов, 5 (Солнечный) - фото квартиры 31 января 2025 90 дн. 3 55.7 6/16 7 900 000
Екатеринбург, ул. Чемпионов, 5 (Солнечный) - фото квартиры 19 января 2025 90 дн. 3 55.7 6/16 8 300 000
Екатеринбург, ул. Чемпионов, 5 (Солнечный) - фото квартиры 28 декабря 2024 90 дн. 3 55.7 6/16 8 300 000
Екатеринбург, ул. Чемпионов, 5 (Солнечный) - фото квартиры 14 декабря 2024 90 дн. 2 55.7 6/16 8 300 000
Екатеринбург, ул. Чемпионов, 5 (Солнечный) - фото квартиры 4 февраля 2025 90 дн. 3 75.6 14/16 12 900 000
Екатеринбург, ул. Золотистый, 4 (Солнечный) - фото квартиры 17 декабря 2024 90 дн. 1 43.4 4/11 6 300 000
Екатеринбург, ул. Чемпионов, 5 (Солнечный) - фото квартиры 12 декабря 2024 90 дн. 3 75.6 14/16 13 900 000
Екатеринбург, ул. Чемпионов, 5 (Солнечный) - фото квартиры 2 марта 2025 90 дн. 1 37.8 1/9 4 990 000
Екатеринбург, ул. Чемпионов, 5 (Солнечный) - фото квартиры 5 сентября 2024 90 дн. 1 36.7 4/10 5 500 000
Екатеринбург, ул. Золотистый, 4 (Солнечный) - фото квартиры 22 августа 2024 90 дн. 1 38 5/6 5 200 000
Екатеринбург, ул. Золотистый, 4 (Солнечный) - фото квартиры 2 июля 2024 90 дн. 1 37.1 8/14 5 200 000
Екатеринбург, ул. Золотистый, 4 (Солнечный) - фото квартиры 20 сентября 2024 90 дн. 1 30 6/10 3 950 000
Екатеринбург, ул. Золотистый, 4 (Солнечный) - фото квартиры 23 октября 2024 90 дн. 1 38.1 3/10 5 350 000
Екатеринбург, ул. Золотистый, 4 (Солнечный) - фото квартиры 21 мая 2024 90 дн. 1 38.1 3/10 5 250 000
Екатеринбург, ул. Золотистый, 4 (Солнечный) - фото квартиры 17 июня 2024 90 дн. 1 37.4 5/11 5 250 000

Похожие предложения о продаже квартир в Екатеринбурге (Солнечный)

  • 2-к квартира, Лучистая, 6

    • 61 м2
    • 4/9 этаж
    • Состояние: идеальное
    8 400 000 ₽ (137700 ₽/м2)
    В продаже евро трехкомнатная квартира с функциональной планировкой: кухня-гостиная с выходом на лоджию, две комнаты, большая гардеробная 3,6 кв.м. , в коридоре ниша для шкафа.В квартире остается кухонный гарнитур со встроенной техникой (варочная поверхность, духовой шкаф, посудомоечная машина), гардеробная.Прекрасное расположение: рядом садик, школа, губернаторский лицей, центр художественной гимнастики, ледовая арена.Безопасный закрытый двор без машин, видеонаблюдение. Охрана.Большой парк в центре района (с детской и спортивной площадкой, местом для выгула собак).Микрорайон примыкает к ЕКАД, что дает возможность без пробок добраться из одной части города в другую, а для тех, у кого машины нет, регулярно ходят автобусы и трамваи.Ипотека возможна. ID объекта в нашей базе: 26166
    размещено: 30.11.2025 , обновлено: 1.12.2025
  • 2-к квартира, Чемпионов, 3

    7 700 000 ₽ (167400 ₽/м2)
    Объект № 195902. Мечтаете о новой квартире, в которую достаточно только перевезти свои вещи и наслаждаться жизнью? Это объявление для Вас! Стильная и уютная евродвушка с максимально продуманной и функциональной планировкой, множеством мест хранения, встроенной мебелью и бытовой техникой. Все в достойном состоянии. Юридических подводных камней нет. Встречный объект выбран. Показы по предварительной договоренности. ***Гарантийный сертификат «Защита собственности» по данному объекту в подарок***
    размещено: 26.11.2025 , обновлено: 28.11.2025
  • 2-к квартира, Чемпионов, 4

    • 83.4 м2
    • 6/16 этаж
    • Состояние: идеальное
    10 900 000 ₽ (130700 ₽/м2)
    СОЛНЕЧНЫЙ - Это Солнечный!!! ( он даже не сравнивается с Академическим), дома - каждый не похож на соседа ! своя архитектурная изюминка! Охрана курсирует в течение дня по СОЛНЕЧНОМУ. Парк Солнечного в 5 мин пешком от дома, проходят много различный мероприятий и салюты. Камеры по всему периметру, через приложение можно смотреть. Через 1 дом, школа № 215. По прописке и ледовая арена "автомобилист" . прямо рядом с домой , 1 мин до общественного транспорта - это автобусы. 5 мин пешком до трамвая. Детский сад рядом со школой №215. Парковка - напротив дома. 2 санузла, гардеробная отдельно, большая лоджия - можно сделать под кабинет. И большая кухня гостиная - при желании можно зонировать ID объекта в нашей базе: 12424
    размещено: 25.11.2025 , обновлено: 3.12.2025
  • 2-к квартира, Золотистый, 7

    • 40.5 м2
    • 5/7 этаж
    • Состояние: хорошее
    5 950 000 ₽ (146900 ₽/м2)
    Уютная квартира с продуманной планировкой в развитом районе города! Представляем вашему вниманию функциональный вариант для комфортной жизни площадью 40,5 м². Продуманная планировка делает пространство максимально удобным для проживания. ✨ Главные преимущества:• Просторная кухня-гостиная 14,4 м² – идеальное место для семейных обедов и уютных вечеров с близкими• Светлая комната 15 м² с выходом на лоджию – создайте свой личный оазис спокойствия• В санузле регулированный теплый пол• 5 этаж – золотая середина: нет шума с первых этажей и нет перегрева летом. В квартире остается:Кухонный гарнитур с варочной поверхностью, холодильник, шкаф в комнате, диван и прихожая.Готовы показать квартиру в удобное для вас время, по предварительной договоренности. Никакой комиссии по данному обьекту! Если ваша квартира еще не продана, поможем в реализации. Бесплатный подбор новостройки. ID объекта в нашей базе: 12505
    размещено: 18.11.2025 , обновлено: 3.12.2025
  • 2-к квартира, Лучистая, 2

    • 52.2 м2
    • 11/12 этаж
    • Состояние: хорошее
    7 650 000 ₽ (146600 ₽/м2)
    Продажа 2-х комнатной квартиры в теплом «кирпичном» доме «Комфорт-класса». Комнаты раздельные (см.план фото) Общая площадь 52,2кв.м. Комната: 16,7кв.м. Спальня: 13,5кв.м. Кухня: 11,2кв.м. Просторная прихожая со встроенным шкафом: 6,7кв.м. Совмещенный санузел: 4,1кв.м. Просторная лоджия с релакс-зоной. Отличный вид из окон. Покупателю остается кухня и встроенный шкаф в прихожей. На площадке всего четыре квартиры. Дружные соседи! Закрытая территория. Видеонаблюдение. Район очень развит: Гипермаркет «Перекресток» в доме, аптеки, школа №215, Уральский губернаторский лицей, дет.сады, спортивные клубы, закрытая охраняемая парковка под шлагбаумом, современные детские площадки, остановки общественного транспорта, удобный выезд в центр города. Один взрослый собственник со дня постройки дома. Без обременений и детских долей. Возможна ипотека любого банка (При необходимости помощь в оформлении). Документы готовы. Чистая продажа. Быстрый выход на сделку. Просмотры по предварительной договоренности. По всем вопросам звоните или пишите.
    размещено: 07.10.2025 , обновлено: 1.12.2025

    2-к квартира, Золотистый, 11

    • 59 м2
    • 6/16 этаж
    • Состояние: хорошее
    7 999 999 ₽ (135600 ₽/м2)
    Дом построен в 2022 году .Квартира: кухня- столовая 18.43 кв.м, две спальни 11.05 и 12.97,( окна выходят на солнечную сторону) два сан.узла. Остается кухонный гарнитур с встраиваемой техникой.(кроме холодильника) Три шкафа купе. Закрытый, ухоженный двор(охрана территории) ,спортивная площадка. .В доме грузовой и пассажирский лифт. Школа ,детский сад, магазины ,аптеки . .Строится большой паркинг. Мероприятия и праздники внутри двора. ID объекта в нашей базе: 1474
    размещено: 15.10.2025 , обновлено: 3.12.2025

    2-к квартира, Лучистая, 8

    • 52.5 м2
    • 9/17 этаж
    • Состояние: идеальное
    7 500 000 ₽ (142900 ₽/м2)
    Один из лучших жилых комплексов в новой части Солнечного микрорайона. От федерального застройщика Форум-групп 2023 года постройки.Обратите внимание! Совершенно новая квартира, никто не жил.В современном евроформате: большая кухня-гостиная и две отдельные спальни, функциональная прихожая с нишей под гардеробную/хранение вещей. Все помещения правильной формы. Много света (окна на юго-запад). Отличные видовые характеристики на Солнечные аллеи и Губернаторский лицей. Окна на разные стороны. Комфортный средний этаж.Улучшенная чистовая отделка: обои под покраску, ламинат 33 класса, натяжные матовые потолки, хорошие стеклопакеты (широкоформатный профиль), установлены под ключ ванна, раковина, с/у, индивидуальные приборы учета воды, электроэнергии, тепла (телеметрия). На первом этаже подъезда удобная зона для хранения спортинвентаря, колясок. Большой закрытый дор со множеством современных игровых и спортивных зон, зон отдыха, прогулочных дорожек, сквозными выходами на Солнечные аллеи, улицу, к магазинам и остановкам общественного транспорта. В вечернее и ночное время территория прекрасно освещена.В шаговой доступности полюбившиеся всем жителям района Солнечные пешеходные аллеи, разнообразные магазины, кафе, бытовые услуги, знаменитые Губернаторский лицей и Академия художественной гимнастики, аутлет, строится большой многоуровневый наземный паркинг, инновационный детский сад, еще одна школа, гипермаркет стройматериалов Петрович, общественный транспорт, в том числе трамвай. Квартира в чистой продаже. В единоличной собственности БЕЗ каких-либо залогов или обременений. Ипотека возможна. Ключи в день сделки!Приглашаем на просмотры по предварительной договоренности. Более подробная информация по указанному телефону.#новаяквартира#солнечный#губернаторскийлицей#форумгрупп#евро3 ID объекта в нашей базе: 6550
    размещено: 11.10.2025 , обновлено: 27.11.2025

    2-к квартира, Чемпионов, 4

    • 49 м2
    • 13/13 этаж
    • Состояние: идеальное
    6 400 000 ₽ (130600 ₽/м2)
    ОТЛИЧНАЯ ЦЕНА ЗА НАШУ КВАРТИРУ! Встречный объект найден.Квартира для дружной семьи!В продаже 2-х комнатная квартира 49 метров с идеальной планировкой. Просторная кухня-гостиная, удобное расположение комнат, вид из окон Северо-Восток. Низкие коммунальные платежи: установлены счетчики на тепло, воду и электричество.Квартира с отличной шумоизоляцией, тишина гарантирована. Качественная кухня с посудомоечной машиной, диван, мебель в ванной, вместительный шкаф-купе в коридоре остаются в ПОДАРОК покупателю.Приветливые соседи, двор без машин огорожен.Детский сад, школа, лицей в шаговой доступности. Рядом магазины, парк, фитнес-центр, прогулочные зоны. ID объекта в нашей базе: 11361
    размещено: 25.09.2025 , обновлено: 3.12.2025

    2-к квартира, Чемпионов, 4

    • 70.2 м2
    • 3/9 этаж
    • Состояние: идеальное
    9 000 000 ₽ (128200 ₽/м2)
    В продаже евро трехкомнатная квартира с функциональной планировкой: кухня-гостиная с выходом на лоджию, две просторных комнаты, два санузла, большая гардеробная 4кв.м. В квартире сделан качественный ремонт, окна выходят на две стороны.В квартире остается кухонный гарнитур, шкаф в гардеробе, шкаф встроенный в детской комнате.Прекрасное расположение: рядом садик, школа, губернаторский лицей, центр художественной гимнастики, ледовая арена.Безопасный закрытый двор без машин, видеонаблюдение. Охрана.Большой парк в центре района (с детской и спортивной площадкой, местом для выгула собак).Микрорайон примыкает к ЕКАД, что дает возможность без пробок добраться из одной части города в другую, а для тех, у кого машины нет, регулярно ходят автобусы и трамваи.Ипотека возможна. ID объекта в нашей базе: 25974
    размещено: 16.09.2025 , обновлено: 24.11.2025

    2-к квартира, Лучистая, 6

    • 67.1 м2
    • 6/16 этаж
    • Состояние: идеальное
    9 500 000 ₽ (141600 ₽/м2)
    Продается 2-х комнатная квартира с евроремонтом в Солнечном в комфорт-класса застройщика Форум-групп. Продается квартира с отличным ремонтом и рациональной планировкой. Квартира заинтересует пары, семьи с детьми, тех кто ищет жилье в формате «Заезжай и живи». Ремонт в квартире производился с особенной любовью для собственного проживания. Причина продажи – переезд в загородный дом. В широкой прихожей встроен глубокий шкаф-купе для верхней одежды и обуви. В кухне – гостиной (площадью 22 м2) остается новым хозяевам кухонный гарнитур со всей встроенной техникой и холодильником. Просторный санузел отделан современными и качественными материалами. В спальне продуманы и организованы стеллажи в гардеробной комнате. Лоджия дополнительно утеплялась в целях отсутствия сквозняков, выложена плитка на полу лоджии, произведена окраска стен. Окна выходят на восток, на не шумную улицу, что позволяет не слышать шум от детской площадки. Для жителей дома предусмотрены удобства закрытого двора с детской и спортивной площадками, охраняемой парковкой со шлагбаумом. Безопасность обеспечивается закрытой территорией и кодовой дверью. Расположение дома предлагает близость к различным учреждениям инфраструктуры: Уральский губернаторский лицей, Школа №215, детский сады №437, №515, Центр художественной и эстетической гимнастики, Ледовая арена Авто, секция футбольного клуба Урал, торговый центр Brands Stories Outlet, парк и фитнес-клуб Кувалда. Рядом находятся популярные заведения общественного питания – кафе Сушкоф и Пицца, салоны красоты Da. Bro, МужикиПро. Остановка общественного транспорта рядом с домом. Квартира без залогов и обременений. Один совершеннолетний собственник. Возможен любой удобный формат расчета. Звоните, отвечу на все вопросы и покажу квартиру! Не задано ID объекта в нашей базе: 25970
    размещено: 14.09.2025 , обновлено: 18.11.2025

    2-к квартира, Лучистая, 4

    • 55 м2
    • 12/15 этаж
    • Состояние: идеальное
    7 570 000 ₽ (137600 ₽/м2)
    2-комнатная квартира с ремонтом!!!На стенах обои, натяжные потолки, на полу ламинат, санузел в кафеле, межкомнатные двери.Удобная планировка с кухней и двумя изолированными комнатами, просторным коридором и санузлом, гардеробной/хозяйственной комнатой.Квартира расположена в комплексе, построенном Брусникой, качество хорошее!Закрытая территория двора с детскими площадками и зонами отдыха для взрослых, озеленением, охраной и видеонаблюдением.В шаговой доступности:-супермаркеты и продовольственные магазины-детские сады, школа и лицей-центр художественной гимнастики и футбольная секция-салоны красоты-кафе и рестораны-остановки общественного транспорта-удобная транспортная развязка и многое другое...Квартира в чистой продаже, один взрослый собственник, ипотека возможна!!! ID объекта в нашей базе: 25961
    размещено: 10.09.2025 , обновлено: 1.12.2025

    2-к квартира, Чемпионов, 3

    • 57.6 м2
    • 6/9 этаж
    • Состояние: хорошее
    9 900 000 ₽ (171900 ₽/м2)
    Продам уютную светлую теплую квартиру 57.6 кв.м. евро-трешка с большой кухней-гостиной, в перспективно развивающемся микрорайоне Солнечный. В квартире сделан качественный ремонт, потолки в комнатах подвесные, все провода проведены, при желании можно добавить светильники потолочные. Кухня, коридор, ванная комната - натяжные потолки.Остается вся мебель. Поменяна входная сейф-дверь.( Большая комната-16.1, детская-15.4, кухня-10.4, коридор-11.5, ванная-4.2, балкон-5.)Прекрасный дом, тихие дружелюбные соседи, уютный закрытый двор без машин, благоустроенная детская площадка, видеонаблюдение 24\7 . Отличное раположение дома, все необходимое рядом: школа, детский сад, поликлинника, магазины на любой вкус. Удобная транспортная развязка, быстрый выезд как к центру города, так и на ЕКАД.Звоните записывайтесь на просмотр! ID объекта в нашей базе: 17839
    размещено: 26.08.2025 , обновлено: 4.11.2025

    2-к квартира, Золотистый, 13

    • 53.96 м2
    • 11/16 этаж
    • Состояние: идеальное
    7 670 000 ₽ (142100 ₽/м2)
    Продается новая 2-комнатная квартира в замечательном , благоустроенном районе города Екатеринбурга- СОЛНЕЧНЫЙ. Прекрасный вариант для молодой семьи. Функциональная планировка. Квартира очень уютная, солнечная. Из окон открывается прекрасный вид. Дом расположен в квартальной застройке с собственной инфраструктурой. Закрытая территория, во дворе имеется детская площадка. Санузел совмещенный, пластиковые окна, в доме есть: детская площадка, закрытый двор, ворота, охрана, наземный паркинг, лифт пассажирский, лифт грузовой, косметический ремонт, железная дверь. Один собственник. Никто не прописан. Квартира в ипотеке ID объекта в нашей базе: 6518
    размещено: 26.08.2025 , обновлено: 25.11.2025

    2-к квартира, Лучистая, 4

    • 60.6 м2
    • 5/7 этаж
    • Состояние: идеальное
    8 600 000 ₽ (141900 ₽/м2)
    В продаже 2-х комнатная квартира с дизайнерским ремонтом в микрорайоне Солнечный, застройщик Брусника по адресу: ул. Лучистая, д. 4. ????Дом сдан в 2017 г. ???? Удобная планировка - комнаты правильной формы ????При прoдаже в стoимость включeны встроенная мебель, кухонный гарнитур. В ремонте использованы качеcтвeнные мaтeриaлы, квартира обставлена дорогой мебелью. ???????? Новый Уральский губернаторский лицей находится в 200 м от дома. Детский сад Солнечный лучик в 50 м от дома. Школа художественной гимнастики в 500 м. ????‍????‍????‍????Доброжелательные и спокойные соседи, в квартире живет дружная большая семья ???? ????️Парковка для машин за шлагбаумом у дома ???? Закрытый двор с красивым ландшафтным дизайном, детскими развивающими площадками, баскетбольной площадкой и местами для отдыха взрослых ???? Рядом выезд на ЕКАД ????Brаnds`Stories Аутлет-центр недалеко от дома, магазины Перекресток, Монетка, Магнит, множество небольших магазинчиков с деликатесами и кофейни; аптеки, бьюти индустрия, магазины одежды, пункты выдачи Озон, Валдберис, Яндекс Макет и др. ???? Очень красивый парк — 100 м от подъезда Звоните, с удовольствием отвечу на Ваши вопросы, приглашаю на просмотр! ID объекта в нашей базе: 11429
    размещено: 23.06.2025 , обновлено: 29.11.2025

    2-к квартира, Счастливая, 8

    • 53 м2
    • 2/8 этаж
    • Состояние: хорошее
    7 300 000 ₽ (137700 ₽/м2)
    Объект № 191953. Светлая, просторная и очень уютная квартира в самом красивом и безопасном районе. Все для счастливой жизни - теплые остановки, шикарный парк, школа, детский сад, губернаторский лицей, ледовая арена. В минутной доступности все необходимые магазины. Ждем Вас на просмотр! ***Гарантийный сертификат «Защита собственности» по данному объекту в подарок***
    размещено: 16.05.2025 , обновлено: 26.11.2025

    2-к квартира, Лучистая, 2

    • 50.4 м2
    • 5/17 этаж
    • Состояние: идеальное
    7 200 000 ₽ (142900 ₽/м2)
    В продаже двухкомнатная квартира, окна выходят на разные стороны. В коридоре просторная гардеробная, в ванной сделан ремонт, натяжные потолки. Новому собственнику остаётся: кухонный гарнитур с встроенной техникой (варочная поверхность, духовой шкаф, вытяжка, посудомоечная машина), кондиционер, мебель в прихожей, гардеробная с наполнением, шкаф и тумба под телевизор. Прекрасное расположение: рядом садик, школа, губернаторский лицей, центр художественной гимнастики, ледовая арена. Безопасный закрытый двор без машин, видеонаблюдение. Охрана.Большой парк в центре района (с детской и спортивной площадкой, местом для выгула собак). Микрорайон примыкает к ЕКАД, что дает возможность без пробок добраться из одной части города в другую, а для тех, у кого машины нет, регулярно ходят автобусы (054, 63, 077), запустили трамваи. Квартира без обременений, ипотека возможна. ID объекта в нашей базе: 25540
    размещено: 24.03.2025 , обновлено: 27.11.2025

    2-к квартира, Золотистый, 11

    9 000 000 ₽ (149500 ₽/м2)
    Объект № 178522. Продается квартира 2-комнатная. г. Екатеринбург, Район Чкаловский, микрорайон Солнечный. Сдача дома 2кв 2024 г. В районе Солнечный открыты 2 детских сада, школа, ледовая арена, художественная гимнастика, строится губернаторский лицей. В закрытых дворах созданы игровые зоны для детей разных возрастов. ***Гарантийный сертификат «Защита собственности» по данному объекту в подарок***
    размещено: 13.11.2023 , обновлено: 3.12.2025

Новостройки Екатеринбург, мкр-н. Солнечный

Приоритет

Увеличивает просмотры в 3 раза

Ваше объявление показывается в списке выше обычных объявлений. подключить