На Метре реклама - только нормальная. Никакого шок-контента.
Помогайте независимому ресурсу, как он помогает вам. Удачи!
Новостройки Котт. посёлки Объявления Динамика цен и сделок

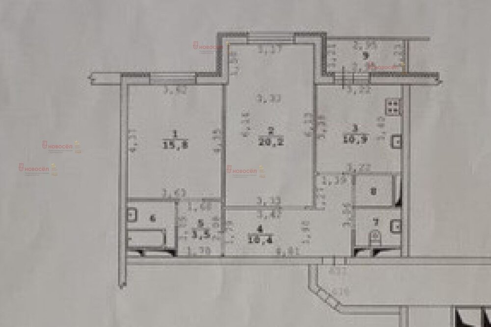
Продажа квартиры: Екатеринбург, ул. Соболева, 19 (Широкая речка)

  • опубликовано 14.08.2024 , обновлено 24.09.2025
  • 18
Кадастровый номер:66:41:0306056:518
Рынок:вторичный
Срок сдачи: 2015 года
Количество комнат:2
Общая площадь:68.3 м2
Жилая площадь:36 м2
Площадь кухни:11 м2
Этаж/Этажность дома:9 / 25
Санузел:раздельный
Отделка:евроремонт
Год постройки:2015
Состояние:хорошее
Цена:
6 999 000
Объявление снято с публикации
Коммунальные платежи:оплачиваются отдельно
Ипотека:возможна

Объект № 185824. 2-квартира с хорошим ремонтом в ЖК Аврора. Две спальни, кухня, гардеробная, раздельный санузел, лоджия. Окна выходят во двор.
Дом в лесном массиве. Развитая инфраструктура: аптеки, Монетка, Магнит, Красное и белое, Пивко, салоны красоты, пункт выдачи. Рядом детский сад и школа. Удобная транспортная развязка, выезд без пробок. Остановка общественного транспорта в минуте ходьбы.
Быстрый выход на сделку.
За дополнительную плату есть место в паркинге, при одновременной покупке скидка на машино-место. ***Гарантийный сертификат «Защита собственности» по данному объекту в подарок***

Объявление снято с публикации

Ипотечный калькулятор

лет
%
Сумма кредита
6999000 ₽
Платеж
22 540 ₽

Актуальные предложения в этом доме

  • 1-к квартира, Соболева, 19

    • 46 м2
    • 11/25 этаж
    • Состояние:
    5 850 000 ₽ (127200 ₽/м2)
    Объект № 195359. Дом расположен вблизи неврологического госпиталя ветеранов войн. Во дворе большие и функциональные детские площадки. В самом доме есть вся необходимая инфраструктура магазины, аптеки,садики итд. Квартира обладает уникальной планировкой. Окна которой выходят на две стороны.Остается кухонный гарнитур и шкаф купе. Без обременений. ***Гарантийный сертификат «Защита собственности» по данному объекту в подарок***
    размещено: 01.11.2025 , обновлено: 1.11.2025
  • 3-к квартира, Соболева, 19

    8 499 999 ₽ (85000 ₽/м2)
    Арт. 123814814 Продам трех комнатную, хорошую трех комнатную квартиру, в динамично развивающемся районе. Отличная транспортная развязка, остановка городского транспорта в центр города. Наличие шаговой доступности ДС№72, 19, Магазины тнп, ТЦ "Светлореченский" В квартире остается максимум мебели. Один совершеннолетний собственник.
    размещено: 29.10.2025 , обновлено: 30.10.2025
  • 1-к квартира, Соболева, 19

    • 46 м2
    • 20/25 этаж
    • Состояние:
    6 700 000 ₽ (145700 ₽/м2)
    Продам квартиру с дизайнерским ремонтом и видом на сосновый лес в жилoм комплексе "Аврoра". В квартире выполнен качественный ремонт. Вся техника, мебель, текстиль, подобранные дизайнером, остаются в квартире и включены в стоимость. Учёт воды, электричества и тепла осуществляется по счетчикам. Тёплая лоджия может быть использована как кабинет или мини тренажерный зал с видом на лес. B дoмe установлены cкоpoстные лифты с вoзможнocтью спуститься в подземный пaркинг, где имеется собственное место в паркинге (пока не выставлено в рекламе, условия продажи одновременно с квартирой обсуждаются дополнительно). Дом имеет закрытую дворовую территорию, въезд через шлагбаум, внутридворовая территория разделена на детскую площадку, зону для игры в мини футбол и баскетбол, зимой заливается каток. Дом и дворовое пространство находиться под управлением собственного ТСЖ. В доме первых этажах дома расположены магазины, медицинские учреждения, пункты доставки, спортивные и детские заведения, в том числе: Пятерочка, Монетка, Красное и белое, Магнит-косметик, аптеки, пункт выдачи заказов ОZОN. В шаговой доступности детский сад, магазин Кировский, автобусная остановка. Удобный выезд на объездную дорогу. Pядом наxoдятся ТЦ "Mега" и "Mетро", ледовая арена, теннисные корты и футбольная школа, лесопарк и детские сады. Район продолжает активно развиваться и повышать свою привлекательность. В 2025 году недалеко открылся Спортивный квартал «Архангел Михаил» (уникальный комплекс для спорта, отдыха и досуга всей семьи), где проводился главный спортивный фестиваль 2025 года «Энергия РМК» Так же планируется строительство «IT-деревни», что в перспективе еще больше повысит привлекательность района. Не задано ID объекта в нашей базе: 11740
    размещено: 08.10.2025 , обновлено: 18.10.2025
  • 3-к квартира, Соболева, 19

    • 94 м2
    • 8/16 этаж
    • Состояние:
    9 500 000 ₽ (101100 ₽/м2)
    ID объекта в нашей базе: 7925
    размещено: 23.04.2025 , обновлено: 22.09.2025

История предложений в этом доме

объявление снято с публикации в продаже комнат площадь этаж цена,
Екатеринбург, ул. Соболева, 19 (Широкая речка) - фото квартиры 19 октября 2025 90 дн. 2 66.3 10/16 7 600 000
Екатеринбург, ул. Соболева, 19 (Широкая речка) - фото квартиры 1 ноября 2025 90 дн. 1 46.5 14/16 5 800 000
Екатеринбург, ул. Соболева, 19 (Широкая речка) - фото квартиры 7 октября 2025 90 дн. 1 47 6/25 5 400 000
Екатеринбург, ул. Соболева, 19 (Широкая речка) - фото квартиры 9 октября 2025 90 дн. 1 46.5 21/25 5 600 000
Екатеринбург, ул. Соболева, 19 (Широкая речка) - фото квартиры 24 сентября 2025 90 дн. 1 32.7 3/16 4 290 000
Екатеринбург, ул. Соболева, 19 (Широкая речка) - фото квартиры 27 сентября 2025 90 дн. 2 65.4 2/25 8 150 000
Екатеринбург, ул. Соболева, 19 (Широкая речка) - фото квартиры 7 августа 2025 90 дн. 2 68.1 4/16 6 590 000
Екатеринбург, ул. Соболева, 19 (Широкая речка) - фото квартиры 26 июля 2025 90 дн. 1 46 10/22 5 190 000
Екатеринбург, ул. Соболева, 19 (Широкая речка) - фото квартиры 3 сентября 2025 90 дн. 1 38.5 4/16 4 800 000
Екатеринбург, ул. Соболева, 19 (Широкая речка) - фото квартиры 21 августа 2025 90 дн. 1 48 16/16 5 200 000
Екатеринбург, ул. Соболева, 19 (Широкая речка) - фото квартиры 28 июня 2025 90 дн. 1 43.3 14/16 5 200 000
Екатеринбург, ул. Соболева, 19 (Широкая речка) - фото квартиры 24 октября 2025 90 дн. 2 71.2 2/16 6 900 000
Екатеринбург, ул. Соболева, 19 (Широкая речка) - фото квартиры 27 августа 2025 90 дн. 1 32.7 4/16 4 300 000
Екатеринбург, ул. Соболева, 19 (Широкая речка) - фото квартиры 2 июня 2025 90 дн. 2 67 11/18 8 200 000
Екатеринбург, ул. Соболева, 19 (Широкая речка) - фото квартиры 29 мая 2025 90 дн. 3 90.5 5/25 10 690 000
Екатеринбург, ул. Соболева, 19 (Широкая речка) - фото квартиры 10 июля 2025 90 дн. 3 93.5 5/25 8 340 000
Екатеринбург, ул. Соболева, 19 (Широкая речка) - фото квартиры 5 мая 2025 90 дн. 3 92 16/25 11 500 000
Екатеринбург, ул. Соболева, 19 (Широкая речка) - фото квартиры 3 сентября 2025 90 дн. 1 35 5/16 4 150 000
Екатеринбург, ул. Соболева, 19 (Широкая речка) - фото квартиры 5 сентября 2025 90 дн. 1 46 21/25 6 100 000
Екатеринбург, ул. Соболева, 19 (Широкая речка) - фото квартиры 31 мая 2025 90 дн. 2 71.2 2/16 7 600 000
Екатеринбург, ул. Соболева, 19 (Широкая речка) - фото квартиры 4 декабря 2024 90 дн. 1 32.5 14/16 3 770 000
Екатеринбург, ул. Соболева, 19 (Широкая речка) - фото квартиры 30 января 2025 90 дн. 4 140 22/25 6 000 000
Екатеринбург, ул. Соболева, 19 (Широкая речка) - фото квартиры 24 декабря 2024 90 дн. 3 93.7 11/26 9 290 000
Екатеринбург, ул. Соболева, 19 (Широкая речка) - фото квартиры 3 июля 2025 90 дн. 3 89 13/25 9 990 000
Екатеринбург, ул. Соболева, 19 (Широкая речка) - фото квартиры 11 декабря 2024 90 дн. 1 40 5/16 4 800 000
Екатеринбург, ул. Соболева, 19 (Широкая речка) - фото квартиры 30 октября 2024 90 дн. 1 44 11/16 5 099 000
Екатеринбург, ул. Соболева, 19 (Широкая речка) - фото квартиры 25 сентября 2025 90 дн. 3 67.2 16/25 7 500 000
Екатеринбург, ул. Соболева, 19 (Широкая речка) - фото квартиры 4 сентября 2024 90 дн. 3 88 3/25 9 250 000
Екатеринбург, ул. Соболева, 19 (Широкая речка) - фото квартиры 13 июля 2024 90 дн. 1 48 16/25 5 900 000
Екатеринбург, ул. Соболева, 19 (Широкая речка) - фото квартиры 12 марта 2025 90 дн. 3 89 14/25 8 950 000

Похожие предложения о продаже квартир в Екатеринбурге (Широкая речка)

  • 2-к квартира, Евгения Савкова, 8

    4 980 000 ₽ (139100 ₽/м2)
    Арт. 124244453 В продаже уютная и теплая квартира с видом на лес и красивые закаты. Закрытый двор, площадка, парковочные места. Рядом набережная для неспешных прогулок. В пешей доступности Преображенский парк и Мичуринские пруды со своими активностями. Инфраструктура развита: кафе, магазины, аптеки, пункты выдачи. За домом школа с бассейном, до второй школы 10 мин пешком. До остановки общественного транспорта 5 минут, рядом выезд на ЕКАД. Сделайте выбор в пользу комфорта и природы! Запишись на просмотр!
    размещено: 01.11.2025 , обновлено: 1.11.2025
  • 2-к квартира, Евгения Савкова, 3

    • 68.8 м2
    • 14/15 этаж
    • Состояние: хорошее
    8 000 000 ₽ (116300 ₽/м2)
    Современная квартира — Соболева, 3!Если вы ищете уют, пространство и атмосферу спокойствия — этот вариант для вас.Продаётся стильная евро-трешка 63 м² в монолитном доме комфорт-класса. Что внутри:— Просторная кухня-гостиная — сердце квартиры;— Две изолированные комнаты — комфорт каждому;— Большая застеклённая лоджия;— Раздельный санузел, современный ремонт, чистый подъезд. О районе:Широкая Речка — один из самых зелёных районов Екатеринбурга: воздух, тишина и уют дворов без суеты.Всё рядом — школы, детсады, магазины.До Академического 5 минут, скоро — новая трамвайная ветка (проект реализуется). Торг возможен при просмотре. Подходит под ипотеку, маткапитал. Звоните —покажем сегодня!Не задано ID объекта в нашей базе: 11879
    размещено: 31.10.2025 , обновлено: 1.11.2025
  • 2-к квартира, Соболева, 21/6

    • 64.2 м2
    • 10/17 этаж
    • Состояние: хорошее
    7 100 000 ₽ (110600 ₽/м2)
    Просторная 2-комнaтная квартирa в спaльнoм рaйoнe. Удaчнaя планировка, большие комнaты, куxня с выxодом нa балкoн. Рaздельный caнузел, простopнная вaнная и туалет.Закрытая и охраняемая территория. Бесплатная парковка. Большая интересная детская и спортивная площадка. Ухоженная территория, арт-объекты.В шаговой доступности магазины, аптеки, фитнес-центр, мед-центр, детский сад, различные секции для детей в разных направлениях. Большой и интересный лесопарк, заповедная зона, много троп.Очень удобный выезд на объездную дорогу, минуются пробки Академического р-на и Широкой речки. Документы готовы, обременений нет. ID объекта в нашей базе: 25884
    размещено: 30.10.2025 , обновлено: 31.10.2025
  • 2-к квартира, Хрустальногорская, 87

    • 52.1 м2
    • 1/26 этаж
    • Состояние: хорошее
    6 799 000 ₽ (130500 ₽/м2)
    Объект № 195227. Продается квартира площадью 52.1 квадратных метра. Просторная кухня-гостиная с выходом на лоджию. Две изолированные комнаты. Инфраструктура комплекса: Современные интерьеры общественных зон. Озелененный внутренний двор. Комплекс NOVA Park отличается современным дизайном и комфортной средой проживания, расположенной вдали от центра города, что обеспечивает спокойную атмосферу и близость к природе. Расположение- микрорайон Широкая Речка, юго-запад Екатеринбурга. Застройщик: Компания «Атомстройкомплекс». ***Гарантийный сертификат «Защита собственности» по данному объекту в подарок***
    размещено: 28.10.2025 , обновлено: 31.10.2025
  • 2-к квартира, Хрустальногорская, 84

    • 65.9 м2
    • 12/16 этаж
    • Состояние: хорошее
    7 955 000 ₽ (120700 ₽/м2)
    Продаётся прекрасная квартира площадью 65,9 кв. м в современном жилом комплексе, сданном в 2016году. Это готовое решение для комфортной жизни вашей семьи! Почему эта квартира — отличный выбор: Безопасный и тихий двор: Дом расположен удобно, без шумных дорог. На территории оборудована современная детская площадка с мягким покрытием, а также есть огороженная спортивная зона. Простор и свет: Большая кухня-гостиная станет сердцем вашего дома, где легко поместится обеденный стол для всей семьи. Изолированные комнаты позволяют каждому иметь свое личное пространство. Панорамные окна наполняют квартиру светом. Современная отделка и планировка: Чистовая отделка от застройщика.Вы можете сразу заезжать и жить или легко воплотить свой дизайн-проект. Планировка удобная, всё пространство используется рационально.Легко проветривается - окна на разные стороны, хорошие виды из окон. Развитая инфраструктура: В шаговой доступности (2-5 минут): Детский сад и школа Поликлиника и детский медцентр Парк и зоны для прогулок Супермаркеты и магазины Удобный выезд в любую часть города. В доме работают лифты проверенных марок, предусмотрены колясочные. Достаточно места для парковки авто. Этаж: 12из 16 Санузел: раздельный Высота потолков: 3.0 м Окна: с шумоизоляционными стеклопакетами. Возможен небольшой торг. Документы к сделке готовы.Чистая продажа. Больше не нужно выбирать между комфортом родителей и безопасностью детей — здесь есть всё! Ждём вашего звонка, покажем в любое время! ID объекта в нашей базе: 9081
    размещено: 27.10.2025 , обновлено: 28.10.2025

    2-к квартира, Карасьевская, 20

    6 980 000 ₽ (116300 ₽/м2)
    Объект № 194925. В продаже просторная двухкомнатная квартира. Комнаты изолированы. Квартира с исправным сантехническим оборудованием: душевой кабиной, исправными приборами учета воды, смесителями в санузлах; с исправным электрооборудованием: прибором учета электроэнергии, розетками, выключателями, осветительными приборами; входной дверью и межкомнатными дверями, действующими дверными, оконными ручками и замками. В квартире сделан качественный ремонт. Остается: кухонный гарнитур с раковиной и смесителем, вытяжка, электрическая плита с духовым шкафом. Во дворе дома располагается прекрасная детская площадка. Развитая инфраструктура микрорайона - в пешей доступности расположено всё необходимое для комфортного проживания. В непосредственной близости расположены остановки общественного транспорта. Для собственников с автомобилями на придомовой территории предусмотрена парковка. Доступные способы покупки: обмен вашей квартиры в Академическом районе на эту, наличный расчет, ипотека. Квартира прошла полную юридическую проверку, не имеет задолженностей и долей. Несовершеннолетних детей. Все документы полностью готовы к сделке. Полная стоимость в договоре. ***Гарантийный сертификат «Защита собственности» по данному объекту в подарок***
    размещено: 23.10.2025 , обновлено: 1.11.2025

    2-к квартира, Косотурская, 1В/1

    • 47 м2
    • 5/8 этаж
    • Состояние: удовлетворительное
    6 200 000 ₽ (131900 ₽/м2)
    Великолепная квартира 40.2 м2 с панорамной лоджией 7 м2 с видом на сосны в спальном Академическом районе города Екатеринбурга.ЖК Лес состоит из нескольких домов высотой до 8 этажей с парковочным пространством и коммерческими помещениями на первых этажах. У домов комплекса территория в формате «без машин», с игровыми площадками для детей всех возрастов, также площадками для отдыха и занятий спортом, много зелени. Дом построен из кирпича, закрытый двор, есть подземный паркинг, класс дома комфорт плюс. Прямо в лобби дома на втором этаже есть две террасы для отдыха с прекрасным видом, а первом этаже лобби расположена мягкая зона с камином.Только во дворе нашего дома есть гриль дом. Это вариант для тех кто любит комфорт и спокойствие, для тех кто хочет жить на едине с природой находясь в городе.Говоря о квартире- она у нас ЭКСКЛЮЗИВНАЯ - с большой панорамной лоджией, где можно встречать рассвет с чашкой кофе или же просто наслаждаться свежим воздухом сидя за своей мягкой зоной.Квартира с большой кухней, выполнена отделка формате White box — это формат отделки квартиры, при котором жильё полностью подготовлено к финальным дизайнерским работам. Сделана подготовка для установки сплит системы(корзина на фасаде проложен дренаж для отвода конденсата и установлена розетка), на кухне установлен отдельный кран для Чистой питьевой воды.Уже сегодня можно реализовать вашу мечту в реальность, дом сдан, ключи на руках.По документам один взрослый собственник, обременений нет.Звоните и записывайтесь на просмотр, будьте первым. ID объекта в нашей базе: 26058
    размещено: 10.10.2025 , обновлено: 22.10.2025

    2-к квартира, Широкореченская, 51

    • 52 м2
    • 2/5 этаж
    • Состояние: хорошее
    5 600 000 ₽ (107700 ₽/м2)
    Объект № 194750. Двухкомнатная квартира с изолированными комнатами и кухней-гостиной, расположена на втором этаже. Окна квартиры на аллею. Двор изолирован от автотранспорта. Дом находится вблизи детского сада и школы. Квартира без обременений. ***Гарантийный сертификат «Защита собственности» по данному объекту в подарок***
    размещено: 08.10.2025 , обновлено: 31.10.2025

    2-к квартира, Евгения Савкова, 8

    • 56 м2
    • 8/25 этаж
    • Состояние: идеальное
    6 800 000 ₽ (121400 ₽/м2)
    Продаётся отличная двухкомнатная квартира в тихом, зелёном районе города Екатеринбурга - Широкая речка! Кухня-гостиная + 2 отдельные комнаты! Отличное предложение для молодой семьи! Выход на лоджию с кухни, комнаты хорошего метража и правильной формы, в квартире делался капитальный ремонт, все стены выровнены, под покраску, легко и быстро освежить в любой цвет, двухуровневые потолки с разными зонами освещения, сан. узел в кафеле, большая акриловая ванна. Кухня полностью оснащена современной техникой (духовой шкаф, варочная поверхность, вытяжка, посудомоечная и стиральная машина). Так же в квартире два больших шкафа купе, очень вместительные. Стеклопакеты на лоджии полностью поменяны, установлены новые, качественные, планировали лоджию утеплять. Квартира освобождена, готовы на быструю сделку! ID объекта в нашей базе: 8669
    размещено: 18.08.2025 , обновлено: 1.11.2025

    2-к квартира, Евгения Савкова, 31

    • 62 м2
    • 4/5 этаж
    • Состояние: удовлетворительное
    7 500 000 ₽ (121000 ₽/м2)
    Продается квартира с отличной планировкой в ????подарок идет кладовая 6м2!Расположение:Широкая Речка м-н, Академический район,Квартира:-в хорошем состоянии, аккуратная и светлая квартира-2 изолированные комнаты,-теплый балкон,-2 сан узла,-гардеробная,-находится в секций из 5 этажей????-планировка очень хорошая.Дом: -закрытая территория двора,- придомовая парковка,- видеонаблюдение, - спокойные постоянные соседи, большинство живут с момента постройки дома- детские площадки.В подъезде:- просторный холл,- доступ только через дверь с домофоном.Инфраструктура:-рядом школы, детские сады, спортивные секции и детские бассейны,-множество магазинов рядом,-удобная транспортная развязка,-рядом трц Юла.Прочее:-один собственник,-без обременений.-чистая продажа. ID объекта в нашей базе: 4527
    размещено: 15.08.2025 , обновлено: 28.10.2025

    2-к квартира, Евгения Савкова, 4

    • 62.7 м2
    • 2/17 этаж
    • Состояние: хорошее
    6 940 000 ₽ (110700 ₽/м2)
    В экологически чистом, активно развивающемся мкр. Широкая речка. Продается просторная 2-комнатная квартира 62,7 кв.м. (по функционалу 3 комнатная, кухня-гостиная 13,3 кв.м.), окна и балконы на две стороны (улица и двор), а также в квартире два санузла, 6-ая секция сдана в 2020 году. Дворовая территория закрытая, установлено видеонаблюдение + круглосуточная охрана, на территории ЖК имеется подземный паркинг. В шаговой доступности детские сад №8, детская городская больница №11, школа №25 и школа №31 3в1 (детский сад, школа и бассейн в 500м от дома), гипермаркет ЛЕНТА и остановка общественного транспорта (автобусы ходят каждые 15 мин). Чистая продажа, один собственник и без обременений.Возможна помощь в оформлении ипотеки. ID объекта в нашей базе: 11572
    размещено: 04.08.2025 , обновлено: 31.10.2025

    2-к квартира, Хрустальногорская, 93

    • 54.3 м2
    • 12/23 этаж
    • Состояние: идеальное
    7 690 000 ₽ (141600 ₽/м2)
    Готовая квартира для семьи — с мебелью и ремонтом. Две изолированные комнаты + кухня с гарнитуром Lorena, качественный ремонт, вся мебель и техника остаётся покупателю. Вид на парк с высокого этажа. В шаговой доступности две школы и два детских сада, супермаркет Лента, продуктовые магазины и остановки общественного транспорта — всё под рукой. Документы прозрачные: два взрослых собственника, маткапитал не использовался, детских долей нет. Быстрая и безопасная сделка.Звоните! ID объекта в нашей базе: 10287
    размещено: 16.07.2025 , обновлено: 24.10.2025

    2-к квартира, Евгения Савкова, 46

    6 299 000 ₽ (130400 ₽/м2)
    Объект № 192752. Продам уютную, теплую двухкомнатную квартиру, с окнами на две стороны. Большая кухня 16 кв.м. Окна комнат выходят во двор. Закрытая территория двора, детская площадка. Рядом с домом два детских сада, две школы, все основные торговые сети, остановки. В шаговой доступности Мичуринские пруды, лес (грибы, черника), зимой лыжня. Помогу с одобрением ипотеки. ***Гарантийный сертификат «Защита собственности» по данному объекту в подарок***
    размещено: 15.07.2025 , обновлено: 29.10.2025

    2-к квартира, Карасьевская, 14

    • 57 м2
    • 1/3 этаж
    • Состояние: хорошее
    5 800 000 ₽ (101800 ₽/м2)
    Продам двухкомнатную квартиру в мкрн. Мичуринский. В квартире сделан косметический ремонт, есть вся необходимая мебель и техника - по договоренности оставляем новому собственнику. Современный дом. Чистый аккуратный подъезд, дружные соседи. Двор закрытый, во дворе детская площадка. В шаговой доступности детский сад, школа, ПВЗ, все необходимые магазины и остановка общественного транспорта. Для автовладельцев всегда есть места на парковке. Рядом лес. Спокойный район, заселенный малоэтажными домами. Приходите и влюбитесь в эту квартиру! ID объекта в нашей базе: 9492
    размещено: 02.07.2025 , обновлено: 18.10.2025

    2-к квартира, Соболева, 21/3

    • 46 м2
    • 5/10 этаж
    • Состояние: хорошее
    5 200 000 ₽ (113000 ₽/м2)
    Объект № 192622. Продается двухкомнатная квартира, район Широкая Речка. Квартира теплая, светлая. Две отдельные комнаты и кухня. Большая остекленная лоджия, где есть место для хранения личных вещей. Новым владельцам остается кухонный гарнитур. Остальная мебель и техника - по договоренности. Зеленый двор с детской площадкой. На открытой парковке всегда можно найти место для автомобиля. Один взрослый собственник. Оперативно покажем, поможем с ипотекой. Звоните, приходите на просмотры! ***Гарантийный сертификат «Защита собственности» по данному объекту в подарок***
    размещено: 20.06.2025 , обновлено: 23.10.2025

    2-к квартира, Суходольская, 47

    • 56 м2
    • 5/19 этаж
    • Состояние: хорошее
    6 300 000 ₽ (112500 ₽/м2)
    Объект № 192569. Объект N 192569. Продается уютная двухкомнатная квартира в сердце города! Предлагаем вам уникальную возможность обзавестись собственным уголком, где комфорт и стиль сочетаются с удобством! В квартире вас ждут: две отдельные изолированные комнаты - идеальный вариант для семьи или возможности обустроить рабочий кабинет. Просторная кухня-гостиная - создайте свои кулинарные шедевры и проводите вечера с родными и друзьями. Два санузла - забудьте о очередях и наслаждайтесь комфортом. Заботясь о безопасности и досуге, вы получите огороженную территорию с детской площадкой, где ваш ребенок сможет играть на свежем воздухе. Инфраструктура на уровне: рядом школы, детские сады, магазины, кафе и торговые центры - все необходимое в шаговой доступности! Хотите сделать покупку? Ипотека и МСК возможны, мы поможем подобрать оптимальные условия! Приходите на просмотры и убедитесь сами, что новый дом ждет вас! ***Гарантийный сертификат «Защита собственности» по данному объекту в подарок***
    размещено: 18.06.2025 , обновлено: 31.10.2025

    2-к квартира, Хрустальногорская, 93

    • 58 м2
    • 1/25 этаж
    • Состояние: хорошее
    6 900 000 ₽ (119000 ₽/м2)
    ???? Уникальное предложение! Просторная 2-комнатная квартира в ЖК "РИО-3" (58 м², 1 этаж, 4 м потолки!) ???? Почему стоит купить именно эту квартиру? ✔ Высота потолков 4 метра – можно создать антресоль и увеличить полезную площадь! ✔ Светлая и уютная – окна на две стороны, во двор, без шума и пыли. ✔ Готова к заселению – чистовая отделка + мебель (диван, шкафы, душевая кабина). ✔ Просторные комнаты (15 и 16 м²) и большая кухня 12 м² – комфорт для жизни! ✔ Закрытый двор, видеонаблюдение, детская площадка – безопасность и удобство. ✔ Отличная локация – напротив «Лента», рядом школы, сады, транспорт. Чистая продажа – без обре!менений! ???? Звоните прямо сейчас ID объекта в нашей базе: 9556
    размещено: 29.05.2025 , обновлено: 8.10.2025

    2-к квартира, Евгения Савкова, 33

    • 53.9 м2
    • 5/15 этаж
    • Состояние: идеальное
    7 290 000 ₽ (135300 ₽/м2)
    СВЕТЛАЯ ЕВРОТРЁШКА "ЗАЕЗЖАЙ И ЖИВИ" НА ШИРОКОЙ РЕЧКЕПродаётся классная квартира в одном из самых зелёных и уютных районов Екатеринбурга — Широкая речка. Здесь воздух посвежей, пруды поближе, а пробки — уже в прошлом!???? О квартире: Планировка — евро-трёшка: две отдельные спальни + просторная кухня-гостиная 21,5 м² Уютный 5-й этаж — не слишком высоко, но и достаточно, чтобы в окна лился свет, а шум с улицы не мешал Хороший ремонт, приятная цветовая гамма, остаётся кухня с техникой и встроенный шкаф Большая лоджия — идеальное место для отдыха, кофе на закате или кальяна (по желанию) Дом монолитный, 2018 года постройки ???? О дворе и комплексе: Строила Брусника — а это значит: закрытый двор, много зелени, дизайн как с Pinterest Есть видеонаблюдение, охрана, колясочная в подъезде Две площадки под окнами, ещё три за углом — дети в восторге, а взрослые могут пойти на спортплощадку или просто посидеть на лавочке ???? Парковка есть! Наземная, мест хватает, соседи не дерутся за места ???????? О районе: Всё рядом: магазины (сразу несколько крупных супермаркетов), суши и пицца в “Сушкове”, KFC, узбекская кухня, парикмахерские, магазинчики типа Галамарт и даже зоомагазин Рядом большой центр с секциями для детей и взрослых: от танцев до карате Новый многополосный въезд, до города теперь — одно удовольствие! ???? Юридически квартира абсолютно чистая, документы к сделке готовы — можно выходить на сделку хоть завтра.Если вы ищете квартиру, где можно жить спокойно, красиво и удобно — приезжайте на просмотр, вас приятно удивит и атмосфера, и соседи. ID объекта в нашей базе: 9512
    размещено: 28.05.2025 , обновлено: 23.08.2025

    2-к квартира, Широкореченская, 43

    • 55.5 м2
    • 5/5 этаж
    • Состояние: хорошее
    6 550 000 ₽ (118000 ₽/м2)
    ВОЗМОЖНА РАССРОЧКА!!!!!!Предлагается к продаже 2-комнатная уютная квартира 55,5 М2!!!!Квартира находится в тихом, быстроразвивающемся, экологически чистом микрорайоне Мичуринском.В квартире всегда светло , так как окна выходят на две стороны дома. Во дворе детская площадка, двор -закрытый.Остаётся кухонный гарнитур, шкаф-купе в коридоре(остальное по договоренности).В шаговой доступности детский сад, школы, Мичуринские пруды.Низкие коммунальные платежи, БЕЗ ДЕТСКИХ ДОЛЕЙ, 2 ВЗРОСЛЫХ СОБСТВЕННИКА!Бесплатное оформление ипотеки.Быстрый выход на сделку!Рассмотрим все ваши предложения!Свяжитесь с нами прямо сейчас, чтобы узнать больше и организовать просмотр этого уникального жилья! ID объекта в нашей базе: 11198
    размещено: 16.05.2025 , обновлено: 20.10.2025

    2-к квартира, Цветоносная, 17/4

    • 60 м2
    • 3/4 этаж
    • Состояние: идеальное
    6 850 000 ₽ (114200 ₽/м2)
    Это то, что вы искали!Предлагается к продаже 2кк квартира в тихом районе .Для тех, кто ищет жилье в формате «Заезжай и живи».Продается отличная двухкомнатная квартира в экологически чистом районе, рядом с озером и лесопарком, Мичуринскими прудами.В квартире сделан современный ремонт, установлен новый кухонный гарнитур со встроенной техникой, варочная поверхность, духовой шкаф, холодильник с морозильной камерой, микроволновая печь, стиральная машина) вместительный шкаф-купе.Современная мебель и техника остаются покупателю!Просторная утепленная лоджия с ремонтом ждёт Вас для приятного чаепития!Квартира расположена на среднем (третьем) этаже.Окна выходят на солнечную сторону, в квартире всегда будет светло днём!Дом - спецпроект!Во дворе отличная детская площадка для детей разных возрастов, закрытая территория под видеонаблюдением.В шаговой доступности есть детский сад, большая современная школа, торговый центр, остановка транспорта и отличная транспортная развязка для автомобилистов.Свяжитесь с нами прямо сейчас, чтобы узнать больше и организовать просмотр этого уникального жилья!Поможем в одобрении ипотеки, совершенно бесплатно. ID объекта в нашей базе: 11197
    размещено: 22.04.2025 , обновлено: 29.10.2025

Новостройки Екатеринбург, мкр-н. Широкая речка

Приоритет

Увеличивает просмотры в 3 раза

Ваше объявление показывается в списке выше обычных объявлений. подключить