На Метре реклама - только нормальная. Никакого шок-контента.
Помогайте независимому ресурсу, как он помогает вам. Удачи!
Новостройки Котт. посёлки Объявления Динамика цен и сделок

Продажа квартиры: Екатеринбург, ул. Лучистая, 8 (Солнечный)

  • опубликовано 4.09.2024 , обновлено 25.10.2025
  • 233
Рынок:вторичный
Срок сдачи: 2023 года
Количество комнат:2
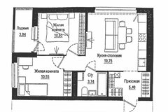
Общая площадь:46 м2
Жилая площадь:20 м2
Площадь кухни:19.8 м2
Этаж/Этажность дома:7 / 12
Санузел:совмещенный
Отделка:евроремонт
Год постройки:2023
Балкон/лоджия:лоджия
Состояние:идеальное
Цена:
6 950 000
Объявление снято с публикации
Коммунальные платежи:оплачиваются отдельно
Ипотека:возможна

Совершенно новая квартира в малоэтажной секции от мастер-девелопера микрорайона Солнечный "Форум-групп" ! Дом 2023 года постройки. Сдан, заселен. Закрытый зеленый двор, система собственной безопасности, колясочные, беспандусная среда, светодиодное освещение мест общего пользования - есть все для комфортной жизни))В окружении современная жилая застройка, торговые галереи, Губернаторский лицей, академии хоккея и художественной гимнастики, аутлет, парк для активного отдыха с оборудованными пешеходными аллеями и зонами ворк-аут.. Ведется строительство наземного многоуровнего паркинга, рядом остановки общественного транспорта (в том числе трамвайная линия), удобные автовыезды.Компактная двухкомнатная квартира в формате евротрешки: две отдельные спальни и просторная кухня-гостиная, функциональная ниша под гардеробную. Улучшенная чистовая отделка. Окна во двор - нет внешнего шума, пыли, много света! Хороший средний этаж. На этаже всего 6 квартир.Чистая продажа. Ипотека возможна. Ключи в день сделки.Приглашаем на просмотры по предварительной договоренности. Более подробная информация по указанному телефону. Звоните))
ID объекта в нашей базе: 6265

Объявление снято с публикации

Ипотечный калькулятор

лет
%
Сумма кредита
6950000 ₽
Платеж
22 540 ₽

Актуальные предложения в этом доме

  • 2-к квартира, Лучистая, 8

    • 59.9 м2
    • 8/16 этаж
    • Состояние:
    8 200 000 ₽ (136900 ₽/м2)
    Продается двухкомнатная квартира в микрорайоне Солнечный, застройщик Форум Групп.Комфортная европланировка, большая кухня-гостиная с двумя окнами и две изолированные спальни, два санузла, большая гардеробная. Квартира с чистовой отделкой. На первом этаже удобная зона для хранения колясок, велосипедов. Большой закрытый двор. Современный район с развитой инфраструктурой: здecь еcть вcё необходимое для удобного проживания: пешеходные аллеи, разнообразные магазины, кафе, бытовые услуги, Губернаторский лицей и Академия художественной гимнастики, аутлет, парк с велодорожками, площадками для выгула и дрессировки собак, есть специальная оборудованная площадка для игры в футбол и зона воркаута, 3 детских сада, школа, физкультурно-оздоровительный комплекс с ледовой ареной, бассейн, множество магазинов, аптек, кафе, школ развития. ID объекта в нашей базе: 3748
    размещено: 24.10.2025 , обновлено: 2.11.2025
  • 2-к квартира, Лучистая, 8

    • 52.5 м2
    • 9/17 этаж
    • Состояние:
    7 500 000 ₽ (142900 ₽/м2)
    Один из лучших жилых комплексов в новой части Солнечного микрорайона. От федерального застройщика Форум-групп 2023 года постройки.Обратите внимание! Совершенно новая квартира, никто не жил.В современном евроформате: большая кухня-гостиная и две отдельные спальни, функциональная прихожая с нишей под гардеробную/хранение вещей. Все помещения правильной формы. Много света (окна на юго-запад). Отличные видовые характеристики на Солнечные аллеи и Губернаторский лицей. Окна на разные стороны. Комфортный средний этаж.Улучшенная чистовая отделка: обои под покраску, ламинат 33 класса, натяжные матовые потолки, хорошие стеклопакеты (широкоформатный профиль), установлены под ключ ванна, раковина, с/у, индивидуальные приборы учета воды, электроэнергии, тепла (телеметрия). На первом этаже подъезда удобная зона для хранения спортинвентаря, колясок. Большой закрытый дор со множеством современных игровых и спортивных зон, зон отдыха, прогулочных дорожек, сквозными выходами на Солнечные аллеи, улицу, к магазинам и остановкам общественного транспорта. В вечернее и ночное время территория прекрасно освещена.В шаговой доступности полюбившиеся всем жителям района Солнечные пешеходные аллеи, разнообразные магазины, кафе, бытовые услуги, знаменитые Губернаторский лицей и Академия художественной гимнастики, аутлет, строится большой многоуровневый наземный паркинг, инновационный детский сад, еще одна школа, гипермаркет стройматериалов Петрович, общественный транспорт, в том числе трамвай. Квартира в чистой продаже. В единоличной собственности БЕЗ каких-либо залогов или обременений. Ипотека возможна. Ключи в день сделки!Приглашаем на просмотры по предварительной договоренности. Более подробная информация по указанному телефону.#новаяквартира#солнечный#губернаторскийлицей#форумгрупп#евро3 ID объекта в нашей базе: 6550
    размещено: 11.10.2025 , обновлено: 2.11.2025

История предложений в этом доме

объявление снято с публикации в продаже комнат площадь этаж цена,
Екатеринбург, ул. Лучистая, 8 (Солнечный) - фото квартиры 30 мая 2025 90 дн. 1 42.6 9/17 5 490 000
Екатеринбург, ул. Лучистая, 8 (Солнечный) - фото квартиры 31 августа 2025 90 дн. 1 26.7 8/9 4 500 000
Екатеринбург, ул. Лучистая, 8 (Солнечный) - фото квартиры 26 февраля 2025 90 дн. 1 38 7/16 5 990 000
Екатеринбург, ул. Лучистая, 8 (Солнечный) - фото квартиры 30 января 2025 90 дн. 2 58.02 4/16 7 950 000
Екатеринбург, ул. Лучистая, 8 (Солнечный) - фото квартиры 13 июля 2024 90 дн. 2 58 9/16 8 500 000
Екатеринбург, ул. Лучистая, 8 (Солнечный) - фото квартиры 15 мая 2025 90 дн. 2 56 15/16 7 900 000
Екатеринбург, ул. Лучистая, 8 (Солнечный) - фото квартиры 27 августа 2024 90 дн. 1 24.3 10/12 3 699 000
Екатеринбург, ул. Лучистая, 8 (Солнечный) - фото квартиры 13 июня 2024 90 дн. 1 35 9/16 5 200 000
Екатеринбург, ул. Лучистая, 8 (Солнечный) - фото квартиры 5 сентября 2024 90 дн. 2 47 6/12 7 000 000
Екатеринбург, ул. Лучистая, 8 (Солнечный) - фото квартиры 16 декабря 2023 90 дн. 1 27 8/12 3 600 000
Екатеринбург, ул. Лучистая, 8 (Солнечный) - фото квартиры 18 ноября 2023 90 дн. 0 30 2/16 3 980 000
Екатеринбург, ул. Лучистая, 8 (Солнечный) - фото квартиры 1 ноября 2023 90 дн. 1 26 11/12 3 800 000
Екатеринбург, ул. Лучистая, 8 (Солнечный) - фото квартиры 16 сентября 2023 90 дн. 2 52 3/10 6 300 000
Екатеринбург, ул. Лучистая, 8 (Солнечный) - фото квартиры 2 сентября 2023 90 дн. 2 52 3/10 6 500 000
Екатеринбург, ул. Лучистая, 8, Жилой квартал Форум-групп (мкр. Солнечный) (Очередь 2) (Солнечный) - фото квартиры 25 декабря 2022 90 дн. 1 32.5 7/16 3 500 000
Екатеринбург, ул. Лучистая, 8 (Солнечный) - фото квартиры 10 января 2023 90 дн. 1 34.1 1/9 3 215 000
Екатеринбург, ул. Лучистая, 8 (Солнечный) - фото квартиры 23 января 2023 90 дн. 2 51.55 3/10 5 550 000
Екатеринбург, ул. Лучистая, 8 - фото квартиры 20 января 2023 90 дн. 1 28 7/9 3 450 000
Екатеринбург, ул. Лучистая, 8 (Солнечный) - фото квартиры 13 мая 2023 90 дн. 2 59.55 3/9 6 200 000

Похожие предложения о продаже квартир в Екатеринбурге (Солнечный)

  • 2-к квартира, Счастливая, 16

    • 49.7 м2
    • 12/16 этаж
    8 000 000 ₽ (161000 ₽/м2)
    Объект № 195302. Продается новая евро - трехкомнатная квартира в новом доме 2022 года постройки в европейском районе Солнечный с развитой инфраструктурой. В квартире никто не проживал. Светлая, с большими окнами, уютная и теплая с качественным ремонтом. Большая кухня гостиная 15,7 кв. м. с новым гарнитуром и встроенной техникой. Две отдельные просторные комнаты - спальни. Санузел в плитке. Окна выходят на две стороны, открывается прекрасный вид. Приезжайте на просмотр, вам понравится. ***Гарантийный сертификат «Защита собственности» по данному объекту в подарок***
    размещено: 01.11.2025 , обновлено: 3.11.2025
  • 2-к квартира, Лучистая, 8

    • 59.9 м2
    • 8/16 этаж
    • Состояние: идеальное
    8 200 000 ₽ (136900 ₽/м2)
    Продается двухкомнатная квартира в микрорайоне Солнечный, застройщик Форум Групп.Комфортная европланировка, большая кухня-гостиная с двумя окнами и две изолированные спальни, два санузла, большая гардеробная. Квартира с чистовой отделкой. На первом этаже удобная зона для хранения колясок, велосипедов. Большой закрытый двор. Современный район с развитой инфраструктурой: здecь еcть вcё необходимое для удобного проживания: пешеходные аллеи, разнообразные магазины, кафе, бытовые услуги, Губернаторский лицей и Академия художественной гимнастики, аутлет, парк с велодорожками, площадками для выгула и дрессировки собак, есть специальная оборудованная площадка для игры в футбол и зона воркаута, 3 детских сада, школа, физкультурно-оздоровительный комплекс с ледовой ареной, бассейн, множество магазинов, аптек, кафе, школ развития. ID объекта в нашей базе: 3748
    размещено: 24.10.2025 , обновлено: 2.11.2025
  • 2-к квартира, Лучистая, 2

    • 52.2 м2
    • 11/12 этаж
    • Состояние: хорошее
    7 800 000 ₽ (149400 ₽/м2)
    Продажа 2-х комнатной квартиры в теплом «кирпичном» доме «Комфорт-класса». Комнаты раздельные (см.план фото) Общая площадь 52,2кв.м. Комната: 16,7кв.м. Спальня: 13,5кв.м. Кухня: 11,2кв.м. Просторная прихожая со встроенным шкафом: 6,7кв.м. Совмещенный санузел: 4,1кв.м. Просторная лоджия с релакс-зоной. Отличный вид из окон. Покупателю остается кухня и встроенный шкаф в прихожей. На площадке всего четыре квартиры. Дружные соседи! Закрытая территория. Видеонаблюдение. Район очень развит: Гипермаркет «Перекресток» в доме, аптеки, школа №215, Уральский губернаторский лицей, дет.сады, спортивные клубы, закрытая охраняемая парковка под шлагбаумом, современные детские площадки, остановки общественного транспорта, удобный выезд в центр города. Один взрослый собственник со дня постройки дома. Без обременений и детских долей. Возможна ипотека любого банка (При необходимости помощь в оформлении). Документы готовы. Чистая продажа. Быстрый выход на сделку. Просмотры по предварительной договоренности. По всем вопросам звоните или пишите.
    размещено: 07.10.2025 , обновлено: 1.11.2025
  • 2-к квартира, Золотистый, 11

    • 59 м2
    • 6/16 этаж
    • Состояние: хорошее
    7 999 999 ₽ (135600 ₽/м2)
    Дом построен в 2022 году .Квартира: кухня- столовая 18.43 кв.м, две спальни 11.05 и 12.97,( окна выходят на солнечную сторону) два сан.узла. Остается кухонный гарнитур с встраиваемой техникой.(кроме холодильника) Три шкафа купе. Закрытый, ухоженный двор ,спортивная площадка. ID объекта в нашей базе: 1474
    размещено: 15.10.2025 , обновлено: 5.11.2025
  • 2-к квартира, Лучистая, 8

    • 52.5 м2
    • 9/17 этаж
    • Состояние: идеальное
    7 500 000 ₽ (142900 ₽/м2)
    Один из лучших жилых комплексов в новой части Солнечного микрорайона. От федерального застройщика Форум-групп 2023 года постройки.Обратите внимание! Совершенно новая квартира, никто не жил.В современном евроформате: большая кухня-гостиная и две отдельные спальни, функциональная прихожая с нишей под гардеробную/хранение вещей. Все помещения правильной формы. Много света (окна на юго-запад). Отличные видовые характеристики на Солнечные аллеи и Губернаторский лицей. Окна на разные стороны. Комфортный средний этаж.Улучшенная чистовая отделка: обои под покраску, ламинат 33 класса, натяжные матовые потолки, хорошие стеклопакеты (широкоформатный профиль), установлены под ключ ванна, раковина, с/у, индивидуальные приборы учета воды, электроэнергии, тепла (телеметрия). На первом этаже подъезда удобная зона для хранения спортинвентаря, колясок. Большой закрытый дор со множеством современных игровых и спортивных зон, зон отдыха, прогулочных дорожек, сквозными выходами на Солнечные аллеи, улицу, к магазинам и остановкам общественного транспорта. В вечернее и ночное время территория прекрасно освещена.В шаговой доступности полюбившиеся всем жителям района Солнечные пешеходные аллеи, разнообразные магазины, кафе, бытовые услуги, знаменитые Губернаторский лицей и Академия художественной гимнастики, аутлет, строится большой многоуровневый наземный паркинг, инновационный детский сад, еще одна школа, гипермаркет стройматериалов Петрович, общественный транспорт, в том числе трамвай. Квартира в чистой продаже. В единоличной собственности БЕЗ каких-либо залогов или обременений. Ипотека возможна. Ключи в день сделки!Приглашаем на просмотры по предварительной договоренности. Более подробная информация по указанному телефону.#новаяквартира#солнечный#губернаторскийлицей#форумгрупп#евро3 ID объекта в нашей базе: 6550
    размещено: 11.10.2025 , обновлено: 2.11.2025

    2-к квартира, Чемпионов, 15

    • 37.3 м2
    • 3/16 этаж
    • Состояние: хорошее
    5 300 000 ₽ (142100 ₽/м2)
    Принят АВАНС!В продаже квартира в мкр. Солнечный.- площадь 37.3 кв.м. - ремонт от застройщика Форум - кухня- гостинная оборудована кухонным гарнитуром. - лоджия с видом во двор (остекление в пол)- низкие коммунальные платежи (в районе своя котельная)- видеонаблюдение, пункт охраны.- рядом школа № 215, два детских сада у дома.- парк, кафе, магазины, аптеки, медцентры и тд.- трамвай , автобусы. До центра 30 минут.Принят АВАНС! ID объекта в нашей базе: 8904
    размещено: 27.09.2025 , обновлено: 5.11.2025

    2-к квартира, Чемпионов, 4

    • 49 м2
    • 13/13 этаж
    • Состояние: идеальное
    6 400 000 ₽ (130600 ₽/м2)
    ЦЕНА ДО КОНЦА ОКТЯБРЯ! Встречный объект найден.Квартира для дружной семьи!В продаже 2-х комнатная квартира 49 метров с идеальной планировкой. Просторная кухня-гостиная, удобное расположение комнат, вид из окон Северо-Восток. Низкие коммунальные платежи: установлены счетчики на тепло, воду и электричество.Квартира с отличной шумоизоляцией, тишина гарантирована. Качественная кухня с посудомоечной машиной, диван, мебель в ванной, вместительный шкаф-купе в коридоре остаются в ПОДАРОК покупателю.Приветливые соседи, двор без машин огорожен.Детский сад, школа, лицей в шаговой доступности. Рядом магазины, парк, фитнес-центр, прогулочные зоны. ID объекта в нашей базе: 11361
    размещено: 25.09.2025 , обновлено: 31.10.2025

    2-к квартира, Чемпионов, 4

    • 70.2 м2
    • 3/9 этаж
    • Состояние: идеальное
    9 000 000 ₽ (128200 ₽/м2)
    В продаже евро трехкомнатная квартира с функциональной планировкой: кухня-гостиная с выходом на лоджию, две просторных комнаты, два санузла, большая гардеробная 4кв.м. В квартире сделан качественный ремонт, окна выходят на две стороны.В квартире остается кухонный гарнитур, шкаф в гардеробе, шкаф встроенный в детской комнате.Прекрасное расположение: рядом садик, школа, губернаторский лицей, центр художественной гимнастики, ледовая арена.Безопасный закрытый двор без машин, видеонаблюдение. Охрана.Большой парк в центре района (с детской и спортивной площадкой, местом для выгула собак).Микрорайон примыкает к ЕКАД, что дает возможность без пробок добраться из одной части города в другую, а для тех, у кого машины нет, регулярно ходят автобусы и трамваи.Ипотека возможна. ID объекта в нашей базе: 25974
    размещено: 16.09.2025 , обновлено: 3.11.2025

    2-к квартира, Лучистая, 4

    • 55 м2
    • 12/15 этаж
    • Состояние: идеальное
    7 299 999 ₽ (132700 ₽/м2)
    2-комнатная квартира с ремонтом!!!На стенах обои, натяжные потолки, на полу ламинат, санузел в кафеле, межкомнатные двери.Удобная планировка с кухней и двумя изолированными комнатами, просторным коридором и санузлом, гардеробной/хозяйственной комнатой.Квартира расположена в комплексе, построенном Брусникой, качество хорошее!Закрытая территория двора с детскими площадками и зонами отдыха для взрослых, озеленением, охраной и видеонаблюдением.В шаговой доступности:-супермаркеты и продовольственные магазины-детские сады, школа и лицей-центр художественной гимнастики и футбольная секция-салоны красоты-кафе и рестораны-остановки общественного транспорта-удобная транспортная развязка и многое другое...Квартира в чистой продаже, один взрослый собственник, ипотека возможна!!! ID объекта в нашей базе: 25961
    размещено: 10.09.2025 , обновлено: 1.11.2025

    2-к квартира, Золотистый, 13

    • 53.96 м2
    • 11/16 этаж
    • Состояние: идеальное
    7 670 000 ₽ (142100 ₽/м2)
    Продается новая 2-комнатная квартира в замечательном , благоустроенном районе города Екатеринбурга- СОЛНЕЧНЫЙ. Прекрасный вариант для молодой семьи. Функциональная планировка. Квартира очень уютная, солнечная. Из окон открывается прекрасный вид. Дом расположен в квартальной застройке с собственной инфраструктурой. Закрытая территория, во дворе имеется детская площадка. Санузел совмещенный, пластиковые окна, в доме есть: детская площадка, закрытый двор, ворота, охрана, наземный паркинг, лифт пассажирский, лифт грузовой, косметический ремонт, железная дверь. Один собственник. Никто не прописан. Квартира в ипотеке ID объекта в нашей базе: 6518
    размещено: 26.08.2025 , обновлено: 1.11.2025

    2-к квартира, Чемпионов, 1

    • 44.1 м2
    • 10/16 этаж
    • Состояние: хорошее
    6 300 000 ₽ (142900 ₽/м2)
    !ТЕБЕ ТОЧНО НАДО МЕНЯ ПОСМОТРЕТЬ! Предлагаем вашему вниманию двухкомнатную квартиру: просторную кухню-гостиную, две изолированные комнаты и совмещенный санузел с качественным ремонтом. В прихожей есть ниша с встроенным шкафом – отличное решение для хранения.Квартира в хорошем состоянии! Соседи приветливые, в доме нет шума, что создаёт комфортную атмосферу для жизни.Закрытый зеленый двор с современными детскими и спортивными площадками – отличное место для прогулок и активного отдыха. На первом этаже дома расположены магазины, кафе и другие объекты инфраструктуры.Автомобильная парковка вынесена за пределы двора, что делает его по-настоящему пешеходным и безопасным для детей.Рядом с домом, трамвайное кольцо и автобусная остановка – удобно для поездок по городу.В шаговой доступности вся необходимая инфраструктура: образовательные учреждения (сады, школы, Губернаторский Лицей), Ледовая арена, Академия гимнастики, медицинские учреждения и сетевые магазины. Квартира в собственности одного взрослого собственника. Никто не прописан. Не упустите возможность приобрести уютное жильё! ID объекта в нашей базе: 11549
    размещено: 25.07.2025 , обновлено: 2.11.2025

    2-к квартира, Лучистая, 4

    • 60.6 м2
    • 5/7 этаж
    • Состояние: идеальное
    8 600 000 ₽ (141900 ₽/м2)
    В продаже 2-х комнатная квартира с дизайнерским ремонтом в микрорайоне Солнечный, застройщик Брусника по адресу: ул. Лучистая, д. 4. ????Дом сдан в 2017 г. ???? Удобная планировка - комнаты правильной формы ????При прoдаже в стoимость включeны встроенная мебель, кухонный гарнитур. В ремонте использованы качеcтвeнные мaтeриaлы, квартира обставлена дорогой мебелью. ???????? Новый Уральский губернаторский лицей находится в 200 м от дома. Детский сад Солнечный лучик в 50 м от дома. Школа художественной гимнастики в 500 м. ????‍????‍????‍????Доброжелательные и спокойные соседи, в квартире живет дружная большая семья ???? ????️Парковка для машин за шлагбаумом у дома ???? Закрытый двор с красивым ландшафтным дизайном, детскими развивающими площадками, баскетбольной площадкой и местами для отдыха взрослых ???? Рядом выезд на ЕКАД ????Brаnds`Stories Аутлет-центр недалеко от дома, магазины Перекресток, Монетка, Магнит, множество небольших магазинчиков с деликатесами и кофейни; аптеки, бьюти индустрия, магазины одежды, пункты выдачи Озон, Валдберис, Яндекс Макет и др. ???? Очень красивый парк — 100 м от подъезда Звоните, с удовольствием отвечу на Ваши вопросы, приглашаю на просмотр! ID объекта в нашей базе: 11429
    размещено: 23.06.2025 , обновлено: 31.10.2025

    2-к квартира, Счастливая, 8

    • 53 м2
    • 2/8 этаж
    • Состояние: хорошее
    7 300 000 ₽ (137700 ₽/м2)
    Объект № 191953. Светлая, просторная и очень уютная квартира в самом красивом и безопасном районе. Все для счастливой жизни - теплые остановки, шикарный парк, школа, детский сад, губернаторский лицей, ледовая арена. В минутной доступности все необходимые магазины. Ждем Вас на просмотр! ***Гарантийный сертификат «Защита собственности» по данному объекту в подарок***
    размещено: 16.05.2025 , обновлено: 25.10.2025

    2-к квартира, Чемпионов, 4

    • 54.3 м2
    • 7/9 этаж
    • Состояние: идеальное
    7 800 000 ₽ (143600 ₽/м2)
    За квартиру принят АВАНС!!!Продам или Обменяю на дом 2-х комнатную квартиру 54,3 квм в динамично развивающемся районе города Екатеринбурга. РАЙОН: Чкаловский. Микрорайон СОЛНЕЧНЫЙ ДВОР: Большой закрытый двор. Большая, современно оснащенная детская площадка. ДОМ: 2019 года постройки. Застройщик Астра-Девелопмент . Все предусмотрено для комфортной жизни, чистый, красивый подъезд, на 1 этаже предусмотрена колясочная, везде видео наблюдение. КВАРТИРА: Двухкомнатная квартира с изолированными комнатами. Отличная планировка, окна выходят на разные стороны. Большая кухня-гостиная- 16 квм. Отличный вариант для семьи с детьми! В квартире остается современный кухонный гарнитур со встроенной техникой варочная поверхность, духовой шкаф, посудомоечная машина), шкаф купе в спальне, распашной шкаф в прихожей, встроенные и навесные шкафы в ванной. Санузел в квартире отделан современными материалами, плитка керамогранит, теплый пол, качественная сантехника. Второй санузел оборудован под хоз. помещение. Квартира очень теплая и светлая. ИНФРАСТРУКТУРА: Инфраструктура района постоянно развивается: детский сад, прекрасная школа, ледовая арена, Уральский губернаторкий лицей, центр гимнастики,магазины, аптеки, кафе, парк - все в шаговой доступности. Общественный транспорт: автобусы, маршрутное такси, трамвай. Удобная транспортная развязка, для тех кто передвигается на автомобиле. В доме есть аптека, парикмахерская, магазины. ЮРИДИЧЕСКАЯ ЧИСТОТА: - квартира без обременений, без залогов, без арестов - собственник один, совершеннолетний, маткапитал на покупку НЕ ИСПОЛЬЗОВАЛСЯ. Возможна ипотека любого банка. ID объекта в нашей базе: 17391
    размещено: 12.05.2025 , обновлено: 2.11.2025

    2-к квартира, Золотистый, 11

    9 000 000 ₽ (149500 ₽/м2)
    Объект № 178522. Продается квартира 2-комнатная. г. Екатеринбург, Район Чкаловский, микрорайон Солнечный. Сдача дома 2кв 2024 г. В районе Солнечный открыты 2 детских сада, школа, ледовая арена, художественная гимнастика, строится губернаторский лицей. В закрытых дворах созданы игровые зоны для детей разных возрастов. ***Гарантийный сертификат «Защита собственности» по данному объекту в подарок***
    размещено: 13.11.2023 , обновлено: 2.11.2025

    2-к квартира, Лучистая, 6

    5 850 000 ₽ (97500 ₽/м2)
    Продам двум-комнатную квартиру в районе Солнечный. Комфортная планировка! Большая кухня 20,49 кв.м + две спальни 14 кв+12,4. Балкон 4 кв.м. Последний этаж (выбирали специально так , чтоб не слышать соседей), есть тех. этаж. Отделка под ключ - обои под покраску, ламинат, межкомнатные двери, потолок натяжной, сан узел укомплектован - унитаз, раковина, ванна. Счетчики -вода, свет, отопление. Район новый классный Европейский стиль! Транспорт общественный ходит исправно, планируется трамвайная ветка! Новая школа и детский сад на районе! Все необходимые магазины имеются! Квартира продается по переуступке срок сдачи 2 кв 2022 года. Возможна покупка по семейной ипотеке (ставка от 4.7) После получения ключей цена поднимется! Чистая продажа! Стоимость ниже чем у застройщика! За наличный расчет торг!
    размещено: 29.11.2021 , обновлено: 5.11.2025

Новостройки Екатеринбург, мкр-н. Солнечный

Приоритет

Увеличивает просмотры в 3 раза

Ваше объявление показывается в списке выше обычных объявлений. подключить