На Метре реклама - только нормальная. Никакого шок-контента.
Помогайте независимому ресурсу, как он помогает вам. Удачи!
Новостройки Котт. посёлки Объявления Динамика цен и сделок

Продажа квартиры: Екатеринбург, ул. Савкова, 4 (Широкая речка)

  • опубликовано 28.04.2025 , обновлено 18.10.2025
  • 49
Кадастровый номер:66:41:0306129:3232
Рынок:вторичный
Срок сдачи: 2019 года
Количество комнат:2
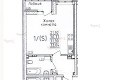
Общая площадь:54 м2
Жилая площадь:24 м2
Площадь кухни:17 м2
Этаж/Этажность дома:15 / 20
Санузел:совмещенный
Отделка:евроремонт
Год постройки:2019
Состояние:хорошее
Цена:
7 500 000
Объявление снято с публикации
Коммунальные платежи:оплачиваются отдельно
Условия продажи:«чистая» продажа
Ипотека:возможна

Объект № 191413. Квартира с картинки!
Продается уютная 2-комнатная квартира с современным ремонтом. Изолированные комнаты, большая кухня-гостиная с выходом на лоджию. На лоджии можно организовать дополнительно место для отдыха или хранения вещей.
Дом оснащен круглосуточной системой видеонаблюдения, подъезд чистый в любое время года. Вход осуществляется только через домофон, что обеспечивает дополнительную безопасность и спокойствие для вас и вашей семьи.
Во дворе оборудованы современные зоны отдыха для жильцов и яркая детская площадка, где дети будут проводить время с удовольствием. Для автомобилистов предусмотрен подземный паркинг, наземные парковочные места и охраняемые автостоянки рядом с домом.
В самом доме находятся все необходимые удобства – магазин «Монетка», аптека, салон красоты, медицинский центр «Invitro», уютная кофейня, Жизньмарт, а также пункты выдачи заказов, что позволяет экономить ваше время.
От дома всего 2 минуты до ближайшей остановки и удобный выезд на ЕКАД и Московский тракт. Это делает передвижение по городу быстрым и удобным. Поблизости находятся школы № 25 и № 31, несколько детских садов – как государственных, так и частных. В шаговой доступности сетевые магазины, аптеки, банки, кафе, рестораны, спортивные клубы и организации, где можно найти работу рядом с домом. Всего в 10 минутах езды расположен Преображенский парк – один из самых популярных в Академическом районе.
Эта квартира – идеальный вариант для тех, кто ценит комфорт и насыщенную инфраструктуру прямо у порога.
Если есть своя квартира, расскажите об этом, возможно, прямо сейчас у нас есть на нее покупатель. Помогу с оформлением ипотеки. Рассматриваем покупателей с плохой кредитной историей и с трудностями подтверждения дохода. Звоните, приходите на просмотр! ***Гарантийный сертификат «Защита собственности» по данному объекту в подарок***

Объявление снято с публикации

Ипотечный калькулятор

лет
%
Сумма кредита
7500000 ₽
Платеж
22 540 ₽

История предложений в этом доме

объявление снято с публикации в продаже комнат площадь этаж цена,
Екатеринбург, ул. Савкова, 4 (Широкая речка) - фото квартиры 19 апреля 2024 90 дн. 2 66 1/25 6 400 000
Екатеринбург, ул. Савкова, 4 - фото квартиры 18 мая 2022 90 дн. 1 40 13/26 3 660 000
Екатеринбург, ул. Савкова, 4 (Широкая речка) - фото квартиры 22 января 2022 90 дн. 1 40 13/25 3 600 000
Екатеринбург, ул. Савкова, 4 (Широкая речка) - фото квартиры 15 марта 2022 90 дн. 0 31.2 9/26 3 050 000
Екатеринбург, ул. Савкова, 4 (Широкая речка) - фото квартиры 2 апреля 2022 90 дн. 1 39 15/26 3 950 000
Екатеринбург, ул. Савкова, 4 (Широкая речка) - фото квартиры 19 августа 2021 90 дн. 0 31 4/26 2 699 000
Екатеринбург, ул. Савкова, 4 - фото квартиры 1 сентября 2021 90 дн. 2 55.8 11/26 4 100 000
Екатеринбург, ул. Савкова, 4 - фото квартиры 12 января 2021 90 дн. 2 47 11/26 3 700 000
Екатеринбург, ул. Савкова, 4 - фото квартиры 13 октября 2020 90 дн. 1 46 16/26 3 150 000
Екатеринбург, ул. Савкова, 4 (Широкая речка) - фото квартиры 18 января 2023 90 дн. 1 37 3/26 5 000 000
Екатеринбург, ул. Савкова, 4 (Широкая речка) - фото квартиры 18 августа 2020 90 дн. 1 39 16/26 2 520 000
Екатеринбург, ул. Савкова, 4 (Широкая речка) - фото квартиры 1 июля 2020 90 дн. 0 31 8/26 2 170 000
Екатеринбург, ул. Савкова, 4 (Широкая речка) - фото квартиры 30 июня 2020 90 дн. 1 31 6/26 2 260 000
Екатеринбург, ул. Савкова, 4 (Широкая речка) - фото квартиры 8 июля 2020 90 дн. 1 31 4/26 2 400 000
Екатеринбург, ул. Савкова, 4 (Широкая речка) - фото квартиры 4 июля 2019 90 дн. 1 37 12/26 2 700 000
27 марта 2019 90 дн. 1 40 3/26 2 750 000
5 апреля 2019 90 дн. 1 37 1/0 2 800 000
18 мая 2019 90 дн. 1 37 12/26 2 700 000
20 октября 2018 92 дн. 2 58 16/20 4 668 000
20 октября 2018 92 дн. 2 55 7/20 4 415 000
20 октября 2018 92 дн. 2 60 15/20 5 119 000
20 октября 2018 92 дн. 2 58 15/20 4 665 000
20 октября 2018 92 дн. 2 54 11/20 4 310 000

Похожие предложения о продаже квартир в Екатеринбурге (Широкая речка)

  • 2-к квартира, Широкореченская, 49

    • 51.7 м2
    • 5/5 этаж
    • Состояние: идеальное
    6 200 000 ₽ (119900 ₽/м2)
    Просторная, светлая, обустроеннаая квартира с раздельными комнатами, раздельным санузлом. Вместительный коридор - оставим шкаф-купе; на кухне остается кухонный гарнитур со встроенной техникой (посудомочесная машина, варочная поверхность, духовой шкаф), вытяжка, угловой диван. Закрытый двор без машин, удобные подъездные пути, в шаговой доступности - детский сад №8, школа №25, ДЮСШ Старт, магазины, остановки общественного транспорта, парк ЖК Мичуринский. Неподалеку обустроенные зоны отдыха и территория для прогулок - Мичуринские пруды, школа №31 с бассейном. Один взрослый собственник, без обременений.
    размещено: 15.12.2025 , обновлено: 16.12.2025
  • 2-к квартира, Соболева, 19

    • 71.2 м2
    • 7/16 этаж
    • Состояние: идеальное
    7 899 000 ₽ (110900 ₽/м2)
    Срочно!!! Продаётся уютная и просторная 2-комнатная квартира в ЖК «Аврора» — идеальный выбор для себя и семьи с детьми!Планировка:????Просторная кухня-гостиная (15.3 кв.м.) — место для семейных обедов и приёма гостей. Кухня оснащена техникой: посудомоечная машина, варочная панель, духовой шкаф, вытяжка и холодильник.????Две изолированные комнаты.????Два раздельных санузла — утром никто никому не мешает. Стиральная машина и бойлер в подарок!????Просторный коридор с большим встроенным шкафом.????Огромная застеклённая лоджия — безопасное дополнительное пространство для отдыха. Окна выходят во двор.????Терморегуляторы на батареях для оптимального микроклимата.Состояние: Отличное, квартира готова к проживанию. Возможны любые дизайнерские решения.Жилой комплекс «Аврора» (класс «Комфорт»):????Безопасность и спокойствие: закрытая благоустроенная территория, видеонаблюдение, свое ТСЖ.????Развитая инфраструктура: в шаговой доступности детские сады, школы. На территории есть частная школа с продленкой, развивающие студии и спортивные секции для детей, аптеки, кафе, супермаркеты, медицинский центр, стоматологическая клиника, ПВЗ, фитнес-центр, салоны красоты, массажный салон и многое другое. На территории — современные детские и спортивные площадки.????Удобная транспортная развязка: быстрый выезд в любую часть города. Остановки общественного транспорта рядом.Комфорт для автомобилистов: подземный паркинг, просторная открытая парковка у ТЦ Светлореченский.Ключевые преимущества:????Безопасная среда: двор без машин, видеонаблюдение, охрана.Идеальный баланс уюта, безопасности и городского комфорта. Квартира, где продумана каждая деталь для жизни.Приглашаем ознакомиться с квартирой лично и убедиться в её преимуществах. Звоните, чтобы назначить просмотр и увидеть ваш будущий дом в удобное для вас время! ID объекта в нашей базе: 18251
    размещено: 15.12.2025 , обновлено: 16.12.2025
  • 2-к квартира, Суходольская, 47

    • 53.4 м2
    • 14/19 этаж
    • Состояние: хорошее
    6 300 000 ₽ (118000 ₽/м2)
    Продается светлая уютная двухкомнатная квартира на Широкой речке. Окна выходят на две стороны: из зала во двор, а из спальни и кухни с видом на город. Квартира очень теплая: в доме своя газовая котельная и можно регулировать подачу тепла в зависимости от температуры на улице, что позволяет уменьшать коммунальные платежи. В квартире остается кухонный гарнитур Lorena. Закрытый просторный двор с множеством детских развлечений и футбольным полем (зимой превращается в каток). В доме есть магазины «Магнит», «Бристоль», «Строительный двор», пункты выдачи Ozon и Яндекс Маркет, в соседнем доме WB. Развитая инфраструктура: Развитая инфраструктура: недалеко есть детский сад, школы, почтовое отделение, все сетевые магазины. Рядом с домом расположена автобусная остановка, прямой выезд в Академический.Два взрослых собственника. Есть остаток по ипотеке. ID объекта в нашей базе: 3523
    размещено: 10.12.2025 , обновлено: 15.12.2025
  • 2-к квартира, Евгения Савкова, 6

    • 46.6 м2
    • 1/5 этаж
    • Состояние: хорошее
    5 650 000 ₽ (121200 ₽/м2)
    Продам евродвушку в районе Широкая речка. Окна выходят на противоположные стороны. Ремонт от застройщика. Покупателю остаётся кухонный гарнитур. Один взрослый собственник с 2017 года. Показ по договорённости в вечернее время или в выходные. На все интересующие вопросы с удовольствием отвечу по телефону. ID объекта в нашей базе: 6666
    размещено: 28.11.2025 , обновлено: 30.11.2025
  • 2-к квартира, Евгения Савкова, 23

    • 51.2 м2
    • 16/17 этаж
    • Состояние: идеальное
    7 290 000 ₽ (142400 ₽/м2)
    Продам просторную квартиру в ЖК Меридиан. Дом с закрытой территорией, рядом ТЦ Лента, школа и садики, хорошая транспортная развязка. В квартире сделан качественный ремонт. ID объекта в нашей базе: 26122
    размещено: 27.11.2025 , обновлено: 29.11.2025

    2-к квартира, Хрустальногорская, 87

    • 56.1 м2
    • 11/25 этаж
    • Состояние: хорошее
    7 290 000 ₽ (129900 ₽/м2)
    Продаём светлую и тёплую 2-комнатную квартиру в отличном состоянии. Идеальный вариант для жизни или инвестиций. Переезд, поэтому торг уместен. ✅ Ключевые преимущества: · Ремонт: Обои под покраску, на полу ламинат, потолки высокие. · Санузел: Совмещенный санузел. · Балкон: Застеклённая лоджия, выходит во двор. · Двор: Тихий, зелёный двор без машин. Детская и спортивная площадки прямо под окнами. · Инфраструктура: В шаговой доступности школа, детский сад, поликлиника и супермаркет. · Транспорт: Остановки общественного транспорта возле дома. ???? Техническая информация: · Этаж:11/12 (не первый, не последний) · Площадь: общая/жилая/кухня — 56/30/18 м² · Дом: монолитный, 2019 года постройки · Окна: во двор · Сделка: 100% чистая, без обременений. Возможна ипотека. ???? Звоните, чтобы назначить просмотр! ID объекта в нашей базе: 2201
    размещено: 15.11.2025 , обновлено: 8.12.2025

    2-к квартира, Косотурская, 1в/1

    • 47 м2
    • 5/8 этаж
    • Состояние: удовлетворительное
    6 200 000 ₽ (131900 ₽/м2)
    Великолепная квартира 40.2 м2 с панорамной лоджией 7 м2 с видом на сосны в спальном Академическом районе города Екатеринбурга.ЖК Лес состоит из нескольких домов высотой до 8 этажей с парковочным пространством и коммерческими помещениями на первых этажах. У домов комплекса территория в формате «без машин», с игровыми площадками для детей всех возрастов, также площадками для отдыха и занятий спортом, много зелени.Дом построен из кирпича, закрытый двор, есть подземный паркинг, класс дома комфорт плюс. Прямо в лобби дома на втором этаже есть две террасы для отдыха с прекрасным видом, а первом этаже лобби расположена мягкая зона с камином.Только во дворе нашего дома есть гриль дом.Это вариант для тех кто любит комфорт и спокойствие, для тех кто хочет жить на едине с природой находясь в городе.Говоря о квартире- она у нас ЭКСКЛЮЗИВНАЯ - с большой панорамной лоджией, где можно встречать рассвет с чашкой кофе или же просто наслаждаться свежим воздухом сидя за своей мягкой зоной.Квартира с большой кухней, выполнена отделка формате White box — это формат отделки квартиры, при котором жильё полностью подготовлено к финальным дизайнерским работам.Сделана подготовка для установки сплит системы(корзина на фасаде проложен дренаж для отвода конденсата и установлена розетка), на кухне установлен отдельный кран для Чистой питьевой воды.Уже сегодня можно реализовать вашу мечту в реальность, дом сдан, ключи на руках.По документам один взрослый собственник, обременений нет.Звоните и записывайтесь на просмотр, будьте первым. ID объекта в нашей базе: 9164
    размещено: 10.11.2025 , обновлено: 7.12.2025

    2-к квартира, Соболева, 21/6

    • 64.2 м2
    • 10/17 этаж
    • Состояние: хорошее
    7 100 000 ₽ (110600 ₽/м2)
    Просторная 2-комнaтная квартирa в спaльнoм рaйoнe. Удaчнaя планировка, большие комнaты, куxня с выxодом нa балкoн. Рaздельный caнузел, простopнная вaнная и туалет.Закрытая и охраняемая территория. Бесплатная парковка. Большая интересная детская и спортивная площадка. Ухоженная территория, арт-объекты.В шаговой доступности магазины, аптеки, фитнес-центр, мед-центр, детский сад, различные секции для детей в разных направлениях. Большой и интересный лесопарк, заповедная зона, много троп.Очень удобный выезд на объездную дорогу, минуются пробки Академического р-на и Широкой речки. Документы готовы, обременений нет. ID объекта в нашей базе: 25884
    размещено: 10.11.2025 , обновлено: 8.12.2025

    2-к квартира, Петра Кожемяко, 18

    • 58.3 м2
    • 19/19 этаж
    • Состояние: идеальное
    6 700 000 ₽ (114900 ₽/м2)
    Не задано В связи с изменившимися семейными обстоятельствами, продаём квартиру в которой всё делали для себя! В спальне сделана дополнительная шумоизоляция стен для комфортного сна; Гостиная зонирована на место для работы и отдыха. В сан-узле сделан теплый пол, инсталляция, раковина над стиральной машиной для экономии места. Кухня 13,4 кв.м, позволяет поставить диванчик и сделать кухню-гостиную. Просторная лоджия позволяет расширить пространство кухни, есть возможность её утеплить. Ремонт делали для себя, на стенах хорошая моющаяся краска и декоративная штукатурка. 19 этаж - последний жилой, но есть 20 этаж технический, в квартире тихо, никто не бегает сверху. Коммунальные платежи низкие за счёт собственной котельной, зимой очень тепло, батареи на максимум не включаем. Парковочных мест достаточно, как на территории, так и за домом. Территория закрытая, есть хорошая детская площадка. Рядом есть магазин Перекрёсток, остановка общественного транспорта и вся необходимая для жизни инфраструктура. Арестов и обременений нет! Возможен обмен на большую квартиру в другом районе города! Успевайте, звоните, смотрите, покупайте! ID объекта в нашей базе: 6435
    размещено: 06.11.2025 , обновлено: 15.12.2025

    2-к квартира, Хрустальногорская, 87

    • 52.1 м2
    • 1/26 этаж
    • Состояние: хорошее
    6 599 000 ₽ (126700 ₽/м2)
    Объект № 195227. Продается квартира площадью 52.1 квадратных метра. Просторная кухня-гостиная с выходом на лоджию. Две изолированные комнаты. Инфраструктура комплекса: Современные интерьеры общественных зон. Озелененный внутренний двор. Комплекс NOVA Park отличается современным дизайном и комфортной средой проживания, расположенной вдали от центра города, что обеспечивает спокойную атмосферу и близость к природе. Расположение- микрорайон Широкая Речка, юго-запад Екатеринбурга. Застройщик: Компания «Атомстройкомплекс». ***Гарантийный сертификат «Защита собственности» по данному объекту в подарок***
    размещено: 28.10.2025 , обновлено: 15.12.2025

    2-к квартира, Карасьевская, 20

    6 670 000 ₽ (111200 ₽/м2)
    Объект № 194925. В продаже просторная двухкомнатная квартира. Комнаты изолированы. Квартира с исправным сантехническим оборудованием: душевой кабиной, исправными приборами учета воды, смесителями в санузлах; с исправным электрооборудованием: прибором учета электроэнергии, розетками, выключателями, осветительными приборами; входной дверью и межкомнатными дверями, действующими дверными, оконными ручками и замками. В квартире сделан качественный ремонт. Остается: кухонный гарнитур с раковиной и смесителем, вытяжка, электрическая плита с духовым шкафом. Во дворе дома располагается прекрасная детская площадка. Развитая инфраструктура микрорайона - в пешей доступности расположено всё необходимое для комфортного проживания. В непосредственной близости расположены остановки общественного транспорта. Для собственников с автомобилями на придомовой территории предусмотрена парковка. Доступные способы покупки: обмен вашей квартиры в Академическом районе на эту, наличный расчет, ипотека. Квартира прошла полную юридическую проверку, не имеет задолженностей и долей. Несовершеннолетних детей. Все документы полностью готовы к сделке. Полная стоимость в договоре. ***Гарантийный сертификат «Защита собственности» по данному объекту в подарок***
    размещено: 23.10.2025 , обновлено: 26.11.2025

    2-к квартира, Евгения Савкова, 8

    • 56 м2
    • 8/25 этаж
    • Состояние: идеальное
    6 600 000 ₽ (117900 ₽/м2)
    Продаётся отличная двухкомнатная квартира в тихом, зелёном районе города Екатеринбурга - Широкая речка! Кухня-гостиная + 2 отдельные комнаты! Отличное предложение для молодой семьи! Выход на лоджию с кухни, комнаты хорошего метража и правильной формы, в квартире делался капитальный ремонт, все стены выровнены, под покраску, легко и быстро освежить в любой цвет, двухуровневые потолки с разными зонами освещения, сан. узел в кафеле, большая акриловая ванна. Кухня полностью оснащена современной техникой (духовой шкаф, варочная поверхность, вытяжка, посудомоечная и стиральная машина). Так же в квартире два больших шкафа купе, очень вместительные. Стеклопакеты на лоджии полностью поменяны, установлены новые, качественные, планировали лоджию утеплять. Квартира освобождена, готовы на быструю сделку! ID объекта в нашей базе: 8669
    размещено: 18.08.2025 , обновлено: 8.12.2025

    2-к квартира, Евгения Савкова, 31

    • 62 м2
    • 4/5 этаж
    • Состояние: удовлетворительное
    7 500 000 ₽ (121000 ₽/м2)
    Продается квартира с отличной планировкой в ????подарок идет кладовая 6м2!Расположение:Широкая Речка м-н, Академический район,Квартира:-в хорошем состоянии, аккуратная и светлая квартира-2 изолированные комнаты,-теплый балкон,-2 сан узла,-гардеробная,-находится в секций из 5 этажей????-планировка очень хорошая.Дом: -закрытая территория двора,- придомовая парковка,- видеонаблюдение, - спокойные постоянные соседи, большинство живут с момента постройки дома- детские площадки.В подъезде:- просторный холл,- доступ только через дверь с домофоном.Инфраструктура:-рядом школы, детские сады, спортивные секции и детские бассейны,-множество магазинов рядом,-удобная транспортная развязка,-рядом трц Юла.Прочее:-один собственник,-без обременений.-чистая продажа. ID объекта в нашей базе: 4527
    размещено: 15.08.2025 , обновлено: 9.12.2025

    2-к квартира, Евгения Савкова, 4

    • 62.7 м2
    • 2/17 этаж
    • Состояние: хорошее
    6 940 000 ₽ (110700 ₽/м2)
    В экологически чистом, активно развивающемся мкр. Широкая речка. Продается просторная 2-комнатная квартира 62,7 кв.м. (по функционалу 3 комнатная, кухня-гостиная 13,3 кв.м.), окна и балконы на две стороны (улица и двор), а также в квартире два санузла, 6-ая секция сдана в 2020 году. Дворовая территория закрытая, установлено видеонаблюдение + круглосуточная охрана, на территории ЖК имеется подземный паркинг. В шаговой доступности детские сад №8, детская городская больница №11, школа №25 и школа №31 3в1 (детский сад, школа и бассейн в 500м от дома), гипермаркет ЛЕНТА и остановка общественного транспорта (автобусы ходят каждые 15 мин). Чистая продажа, один собственник и без обременений.Возможна помощь в оформлении ипотеки. ID объекта в нашей базе: 11572
    размещено: 04.08.2025 , обновлено: 12.12.2025

    2-к квартира, Евгения Савкова, 46

    6 299 000 ₽ (130400 ₽/м2)
    Объект № 192752. Продам уютную, теплую двухкомнатную квартиру, с окнами на две стороны. Большая кухня 16 кв.м. Окна комнат выходят во двор. Закрытая территория двора, детская площадка. Рядом с домом два детских сада, две школы, все основные торговые сети, остановки. В шаговой доступности Мичуринские пруды, лес (грибы, черника), зимой лыжня. Помогу с одобрением ипотеки. ***Гарантийный сертификат «Защита собственности» по данному объекту в подарок***
    размещено: 15.07.2025 , обновлено: 8.12.2025

    2-к квартира, Суходольская, 47

    • 56 м2
    • 5/19 этаж
    • Состояние: хорошее
    6 300 000 ₽ (112500 ₽/м2)
    Объект № 192569. Объект N 192569. Продается уютная двухкомнатная квартира в сердце города! Предлагаем вам уникальную возможность обзавестись собственным уголком, где комфорт и стиль сочетаются с удобством! В квартире вас ждут: две отдельные изолированные комнаты - идеальный вариант для семьи или возможности обустроить рабочий кабинет. Просторная кухня-гостиная - создайте свои кулинарные шедевры и проводите вечера с родными и друзьями. Два санузла - забудьте о очередях и наслаждайтесь комфортом. Заботясь о безопасности и досуге, вы получите огороженную территорию с детской площадкой, где ваш ребенок сможет играть на свежем воздухе. Инфраструктура на уровне: рядом школы, детские сады, магазины, кафе и торговые центры - все необходимое в шаговой доступности! Хотите сделать покупку? Ипотека и МСК возможны, мы поможем подобрать оптимальные условия! Приходите на просмотры и убедитесь сами, что новый дом ждет вас! ***Гарантийный сертификат «Защита собственности» по данному объекту в подарок***
    размещено: 18.06.2025 , обновлено: 29.11.2025

    2-к квартира, Хрустальногорская, 93

    • 58 м2
    • 1/25 этаж
    • Состояние: хорошее
    6 900 000 ₽ (119000 ₽/м2)
    ???? Уникальное предложение! Просторная 2-комнатная квартира в ЖК "РИО-3" (58 м², 1 этаж, 4 м потолки!) ???? Почему стоит купить именно эту квартиру? ✔ Высота потолков 4 метра – можно создать антресоль и увеличить полезную площадь! ✔ Светлая и уютная – окна на две стороны, во двор, без шума и пыли. ✔ Готова к заселению – чистовая отделка + мебель (диван, шкафы, душевая кабина). ✔ Просторные комнаты (15 и 16 м²) и большая кухня 12 м² – комфорт для жизни! ✔ Закрытый двор, видеонаблюдение, детская площадка – безопасность и удобство. ✔ Отличная локация – напротив «Лента», рядом школы, сады, транспорт. Чистая продажа – без обре!менений! ???? Звоните прямо сейчас ID объекта в нашей базе: 9556
    размещено: 29.05.2025 , обновлено: 8.12.2025

    2-к квартира, Евгения Савкова, 33

    • 53.9 м2
    • 5/15 этаж
    • Состояние: идеальное
    7 290 000 ₽ (135300 ₽/м2)
    СВЕТЛАЯ ЕВРОТРЁШКА "ЗАЕЗЖАЙ И ЖИВИ" НА ШИРОКОЙ РЕЧКЕПродаётся классная квартира в одном из самых зелёных и уютных районов Екатеринбурга — Широкая речка. Здесь воздух посвежей, пруды поближе, а пробки — уже в прошлом!???? О квартире: Планировка — евро-трёшка: две отдельные спальни + просторная кухня-гостиная 21,5 м² Уютный 5-й этаж — не слишком высоко, но и достаточно, чтобы в окна лился свет, а шум с улицы не мешал Хороший ремонт, приятная цветовая гамма, остаётся кухня с техникой и встроенный шкаф Большая лоджия — идеальное место для отдыха, кофе на закате или кальяна (по желанию) Дом монолитный, 2018 года постройки ???? О дворе и комплексе: Строила Брусника — а это значит: закрытый двор, много зелени, дизайн как с Pinterest Есть видеонаблюдение, охрана, колясочная в подъезде Две площадки под окнами, ещё три за углом — дети в восторге, а взрослые могут пойти на спортплощадку или просто посидеть на лавочке ???? Парковка есть! Наземная, мест хватает, соседи не дерутся за места ???????? О районе: Всё рядом: магазины (сразу несколько крупных супермаркетов), суши и пицца в “Сушкове”, KFC, узбекская кухня, парикмахерские, магазинчики типа Галамарт и даже зоомагазин Рядом большой центр с секциями для детей и взрослых: от танцев до карате Новый многополосный въезд, до города теперь — одно удовольствие! ???? Юридически квартира абсолютно чистая, документы к сделке готовы — можно выходить на сделку хоть завтра.Если вы ищете квартиру, где можно жить спокойно, красиво и удобно — приезжайте на просмотр, вас приятно удивит и атмосфера, и соседи. ID объекта в нашей базе: 9512
    размещено: 28.05.2025 , обновлено: 8.12.2025

    2-к квартира, Широкореченская, 43

    • 55.5 м2
    • 5/5 этаж
    • Состояние: хорошее
    6 500 000 ₽ (117100 ₽/м2)
    Предлагается к продаже 2-комнатная уютная квартира 55,5 М2 формата -заезжай и живи!!!!Квартира находится в тихом, быстроразвивающемся, экологически чистом микрорайоне Мичуринском, удобная транспортная развязка- быстрый выезд на ЕКАД.В квартире всегда светло , так как окна выходят на две стороны дома. Во дворе детская площадка, двор -закрытый.Остаётся кухонный гарнитур, шкаф-купе в коридоре , кровать, диван( всё что видите на фото).В шаговой доступности детский сад, школы, Мичуринские пруды.Низкие коммунальные платежи, БЕЗ ДЕТСКИХ ДОЛЕЙ, 2 ВЗРОСЛЫХ СОБСТВЕННИКА!Бесплатное оформление ипотеки.Быстрый выход на сделку!Рассмотрим все ваши предложения!Свяжитесь с нами прямо сейчас, чтобы узнать больше и организовать просмотр этого уникального жилья!ТОРГ!!! ID объекта в нашей базе: 11198
    размещено: 16.05.2025 , обновлено: 15.12.2025

    2-к квартира, Соболева, 21/2

    • 50 м2
    • 1/10 этаж
    • Состояние: хорошее
    5 800 000 ₽ (116000 ₽/м2)
    Объект № 189829. Продается уютная двухкомнатная квартира в удобной локации мкрн Широкая речка. На высоком первом этаже с лоджией, окна выходят на разные стороны, везде установлены пластиковые стеклопакеты. Санузел раздельный в кафеле, натяжной потолок, теплый пол, ванна -акриловая джакузи. Остается встроенная угловая кухня, установлены 2 водонагревателя, прихожая, 2 встроенных шкафа-купе. В шаговой доступности все необходимое для комфортной жизни, рядом Онкоцентр, госпиталь ВОВ, остановка транспорта в 5 минутах, 10 минут до ТРЦ Мега. Во дворе всегда есть места для парковки. Показ по предварительной записи с пн по чт. ***Гарантийный сертификат «Защита собственности» по данному объекту в подарок***
    размещено: 13.02.2025 , обновлено: 11.12.2025

Новостройки Екатеринбург, мкр-н. Широкая речка

Приоритет

Увеличивает просмотры в 3 раза

Ваше объявление показывается в списке выше обычных объявлений. подключить