На Метре реклама - только нормальная. Никакого шок-контента.
Помогайте независимому ресурсу, как он помогает вам. Удачи!
Новостройки Котт. посёлки Объявления Динамика цен и сделок

Продажа квартиры: г. Первоуральск, ул. Чкалова, 21/2 (городской округ Первоуральск)

  • опубликовано 26.09.2025 , обновлено 6.11.2025
  • 9
  •  
Рынок:вторичный
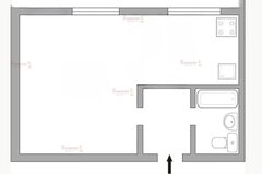
Количество комнат:квартира-студия
Планировка:«брежневка»
Общая площадь:29.3 м2
Жилая площадь:18 м2
Площадь кухни:0.00 м2
Этаж/Этажность дома:1 / 5
Материал стен:панель
Санузел:совмещенный
Стеклопакеты:Пластик
Состояние:идеальное
Цена:
2 170 000
Условия продажи:«чистая» продажа
Ипотека:Возможна

Продается отличная 1-комнатная квартира- СТУДИЯ. Отличное место, вся транспортная развязка, инфраструктура в шаговой доступности, но при этом дом не на шумной дороге. До центра 15 минут.

ДВОР:
- Зеленый двор
- Территория закрыта от дорог, не проездной двор
- Детская площадка
- Всегда есть парковочные места на придомовой территории
ДОМ,

ПОДЪЕЗД:
- Материал стен дома - панель
- В подъезде сделан ремонт
- Чистый подъезд, спокойные адекватные соседи
КВАРТИРА:
- Отличная теплая и светлая квартира
Параметры: - общая площадь 58 м2.
- Удобная планировка, комнаты изолированные

ИНФРАСТРУКТУРА:
- Детские сады школы,
- Недалеко торговый комплекс, Автовокзал. Вокруг дома много продуктовых магазинов. До остановки любого транспорта 5 минут.
- недалеко пруд со своей шикарной набережной и местами для прогулок и отдыха.

ЮРИДИЧЕСКАЯ
ЧИСТОТА:
- Квартира без обременений, арестов и залогов.

Ипотека возможна. Звоните
Наше агентство предоставляет услуги:

- купля-продажа недвижимости;

- аренда недвижимости;

- сопровождение сделок по купле-продаже недвижимости;

- подача заявок на ипотеку во все банки нашего города;

- работаем с жилищными сертификатами и субсидиями;

- консультируем бесплатно!

Ипотечный калькулятор

лет
%
Сумма кредита
2170000 ₽
Платеж
22 540 ₽

История изменения цены

дата цена, ₽ изменение, ₽
5 ноября 2025 2 170 000 + 270 000
30 октября 2025 1 900 000 - 99 000
17 октября 2025 1 999 000 - 298 000
10 октября 2025 2 297 000 - 93 000
26 сентября 2025 2 390 000

История предложений в этом доме

объявление снято с публикации в продаже комнат площадь этаж цена,
г. Первоуральск, ул. Чкалова, 21/2 (городской округ Первоуральск) - фото квартиры 25 октября 2025 90 дн. 1 28.6 1/5 1 700 000
г. Первоуральск, ул. Чкалова, 21/2 (городской округ Первоуральск) - фото квартиры 24 декабря 2019 90 дн. 1 28.5 3/5 1 100 000
г. Первоуральск, ул. Чкалова, 21/2 (городской округ Первоуральск) - фото квартиры 12 декабря 2019 90 дн. 1 28.4 5/5 990 000

Приоритет

Увеличивает просмотры в 3 раза

Ваше объявление показывается в списке выше обычных объявлений. подключить