На Метре реклама - только нормальная. Никакого шок-контента.
Помогайте независимому ресурсу, как он помогает вам. Удачи!
Новостройки Котт. посёлки Объявления Динамика цен и сделок

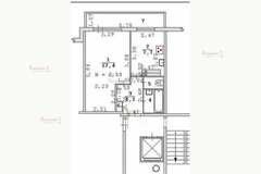
Продажа квартиры: Екатеринбург, ул. Белинского, 218/1 (Автовокзал)

  • опубликовано 4.12.2025 , обновлено 4.12.2025
  • 0
  •  
Рынок:вторичный
Количество комнат:3
Общая площадь:70.7 м2
Жилая площадь:45.6 м2
Площадь кухни:8.2 м2
Этаж/Этажность дома:9 / 9
Санузел:раздельный
Отделка:косметический
Балкон/лоджия:балкон
Состояние:хорошее
Цена:
8 590 000
Коммунальные платежи:оплачиваются отдельно
Ипотека:возможна

Внимание! Цена изменена!При покупке квартиры на ипотечные средства через Дом Клик скидка до 1% на ипотеку.З- х комнатная квартира с удобной и умной планировкой, дом не газифицирован. Это уникальный проект. Раздельные комнаты: гостиная -20,8 м2, и две жилые комнаты : 14, 6 и 10,2 кв.м Кладовая - можно использовать под гардеробную. Предбанник - перед входом в основную прихожую , дает возможность оставить уличную обувь и одежду в прихожей для гостей.Развитая инфраструктура: магазины, аптеки, школьные учреждения. Транспорт и метро в шаговой доступности.Один собственник, обременений нет. Показ в удобное время . Форма расчетов любая, кроме рассрочки
ID объекта в нашей базе: 3270

Ипотечный калькулятор

лет
%
Сумма кредита
8590000 ₽
Платеж
22 540 ₽

Актуальные предложения в этом доме

  • 3-к квартира, Белинского, 218/1

    • 70.7 м2
    • 9/9 этаж
    • Состояние:
    8 890 000 ₽ (125700 ₽/м2)
    Внимание! Реальному покупателю торг!При покупке квартиры на ипотечные средства через Дом Клик скидка до 1% на ипотеку.З- х комнатная квартира с удобной и умной планировкой, дом не газифицирован. Это уникальный проект. Раздельные комнаты: гостиная -20,8 м2, и две жилые комнаты : 14, 6 и 10,2 кв.м Кладовая - можно использовать под гардеробную. Предбанник - перед входом в основную прихожую , дает возможность оставить уличную обувь и одежду в прихожей для гостей.Развитая инфраструктура: магазины, аптеки, школьные учреждения. Транспорт и метро в шаговой доступности.Один собственник, обременений нет. Показ в удобное время . Форма расчетов любая, кроме рассрочки ID объекта в нашей базе: 3270
    размещено: 27.10.2025 , обновлено: 21.11.2025

История предложений в этом доме

объявление снято с публикации в продаже комнат площадь этаж цена,
Екатеринбург, ул. Белинского, 218/1 (Автовокзал) - фото квартиры 27 ноября 2025 90 дн. 1 33 6/9 5 990 000
Екатеринбург, ул. Белинского, 218/1 (Автовокзал) - фото квартиры 28 октября 2025 90 дн. 3 70.7 9/9 8 890 000
Екатеринбург, ул. Белинского, 218/1 (Автовокзал) - фото квартиры 20 октября 2025 90 дн. 3 70.7 9/9 8 890 000
Екатеринбург, ул. Белинского, 218/1 (Автовокзал) - фото квартиры 9 октября 2025 90 дн. 3 70.7 9/9 8 890 000
Екатеринбург, ул. Белинского, 218/1 (Автовокзал) - фото квартиры 10 июля 2025 90 дн. 3 70.7 9/9 8 970 000
Екатеринбург, ул. Белинского, 218/1 (Автовокзал) - фото квартиры 29 ноября 2024 90 дн. 3 71.2 9/9 6 800 000
Екатеринбург, ул. Белинского, 218/1 (Автовокзал) - фото квартиры 27 июля 2024 90 дн. 3 71.2 9/9 6 840 000
Екатеринбург, ул. Белинского, 218/1 (Автовокзал) - фото квартиры 21 сентября 2024 90 дн. 3 70.7 9/9 8 970 000
Екатеринбург, ул. Белинского, 218/1 (Автовокзал) - фото квартиры 5 марта 2024 90 дн. 1 33.4 5/9 4 500 000
Екатеринбург, ул. Белинского, 218/1 (Автовокзал) - фото квартиры 25 июня 2024 90 дн. 3 71.2 9/9 6 920 000
Екатеринбург, ул. Белинского, 218/1 (Автовокзал) - фото квартиры 9 февраля 2024 90 дн. 3 70.7 9/9 9 670 000
Екатеринбург, ул. Белинского, 218/1 (Автовокзал) - фото квартиры 16 ноября 2023 90 дн. 3 70.7 9/9 9 670 000
Екатеринбург, ул. Белинского, 218/1 (Автовокзал) - фото квартиры 4 августа 2023 90 дн. 3 71 6/9 7 800 000
Екатеринбург, ул. Белинского, 218/1 (Автовокзал) - фото квартиры 4 марта 2023 90 дн. 1 36 9/9 4 300 000
Екатеринбург, ул. Белинского, 218/1 (Автовокзал) - фото квартиры 17 марта 2023 90 дн. 3 73.7 3/9 6 499 999
Екатеринбург, ул. Белинского, 218/1 (Автовокзал) - фото квартиры 30 сентября 2022 90 дн. 3 71.5 9/9 6 200 000
Екатеринбург, ул. Белинского, 218/1 (Автовокзал) - фото квартиры 27 сентября 2022 90 дн. 3 72.2 7/9 6 200 000
Екатеринбург, ул. Белинского, 218/1 (Автовокзал) - фото квартиры 12 июня 2022 90 дн. 3 72.2 7/9 6 200 000
Екатеринбург, ул. Белинского, 218/1 (Автовокзал) - фото квартиры 30 сентября 2022 90 дн. 3 72 5/9 6 100 000
Екатеринбург, ул. Белинского, 218/1 (Автовокзал) - фото квартиры 9 апреля 2022 90 дн. 3 72 5/9 6 400 000
Екатеринбург, ул. Белинского, 218/1 (Автовокзал) - фото квартиры 8 декабря 2021 90 дн. 1 33.5 5/9 3 620 000
Екатеринбург, ул. Белинского, 218/1 (Автовокзал) - фото квартиры 20 октября 2021 90 дн. 1 32.9 8/9 3 560 000
Екатеринбург, ул. Белинского, 218/1 (Автовокзал) - фото квартиры 22 февраля 2021 90 дн. 3 72.1 3/9 5 550 000
Екатеринбург, ул. Белинского, 218/1 (Автовокзал) - фото квартиры 2 марта 2021 90 дн. 3 72 5/9 4 900 000
15 января 2019 90 дн. 3 71 2/9 4 255 000
14 ноября 2018 92 дн. 3 71.2 4/9 4 750 000
5 октября 2018 92 дн. 3 71 1/0 4 320 000

Похожие предложения о продаже квартир в Екатеринбурге (Автовокзал)

  • 3-к квартира, Большакова, 103

    • 58 м2
    • 4/5 этаж
    • Состояние: хорошее
    7 450 000 ₽ (128400 ₽/м2)
    Объект № 195491. Цена до конца декабря! Уютная квартира для Вашей семьи в тихом центре у парка Зелёная Роща. В квартире выполнена удобная перепланировка (узаконена). Просторная кухня-гостиная 22 кв.м. Большой санузел 5 кв.м. Раздельные комнаты. Вся инфраструктура в пешей доступности: ТРЦ Фан-Фан, ТРЦ Гринвич, ТРЦ Мегаполис, Современный Падел центр РМК, метро Геологическая, в радиусе 1,5 км - 7 школ и 15 детских садов. Это готовый вариант, вся мебель и техника остаётся. Обо всех фишках расскажу при просмотре. Звоните. ***Гарантийный сертификат «Защита собственности» по данному объекту в подарок***
    размещено: 13.11.2025 , обновлено: 2.12.2025
  • 3-к квартира, Фурманова, 52

    • 56.6 м2
    • 5/5 этаж
    • Состояние: хорошее
    9 600 000 ₽ (169600 ₽/м2)
    Продается уютная квартира, которая прекрасно подойдет для семьи с детьми. В пешей доступности метро Чкаловская и Геологическая, две остановки до центра города, рядом парки Зеленая роща, Дендрарий, два крупных торговых центра, Угмк-Арена и СК Юность. В квартире проведен полный качественный ремонт с нуля: заменена проводка, трубы отопления и канализации, поставлены современные батареи, выровнены стены и полностью заменен пол, натяжные потолки, теплые полы в ванной и кухне, поставлены современные стеклопакеты, застеклен балкон. Животных не было. Грамотно организована система хранения вещей, благодаря чему создается ощущение пространства в квартире: есть кладовка с просторной нишей, встроенный шкаф для одежды с большими зеркалами и встроенный шкаф в прихожей. ID объекта в нашей базе: 940
    размещено: 11.11.2025 , обновлено: 12.11.2025
  • 3-к квартира, Чайковского, 86/1

    • 58.9 м2
    • 4/5 этаж
    • Состояние: плохое
    6 100 000 ₽ (103600 ₽/м2)
    Квартира в шаговой доступности от метро! Большие комнаты, гардеробная в спальне. Окна на две стороны. Удачное расположение дома, детский сад, школа, магазины в шаговой доступности остановка общественного транспорта. Обременений нет, документы готовы ID объекта в нашей базе: 26112
    размещено: 10.11.2025 , обновлено: 18.11.2025
  • 3-к квартира, Базовый, 54

    • 67 м2
    • 16/26 этаж
    • Состояние: идеальное
    10 690 000 ₽ (159600 ₽/м2)
    СРОЧНО!!! ТОРГ!!! Ваше семейное гнездышко: 3-комн. с панорамой на парк и реку. Описание: Парк ЦПКИО — ваша новая гостиная. А река — ваш персональный вид из окна. Представляем вам не просто квартиру, а готовую историю для счастья вашей семьи. Этот дом на Базовом, 54 ждал именно вас. Шестнадцатый этаж из двадцати шести — идеальная высота, чтобы оторваться от суеты и парить над зеленым массивом самого лучшего парка города. Почему это та самая квартира? Вид, который лечит душу: Каждое утро начинается с панорамы на парк и гладь реки. Это ваша личная медитация. Никаких соседних стен — только небо и бескрайняя зелень. Простор для семьи: 62 м² + огромный балкон 10 м² = 72 м² для жизни! У каждого члена семьи будет свое личное пространство, а просторная гостиная станет местом для общих вечеров. Локация «Центр Вселенной»: Вы в 1 (одной!) минуте от входа в ЦПКИО. Ваш променад, велопрогулки, летние фестивали и зимние катки — прямо под вашими окнами. Тихий, уютный переулок с отличными соседями. Абсолютная чистота сделки: Один взрослый собственник. Никаких обременений, долгов и сложных историй. Прозрачная и быстрая сделка. Идеально для: Семьи, которая ищет не просто метры, а качество жизни. Для тех, кто ценит природу, тишину и безопасность, не отказываясь от близости к инфраструктуре. Ваше семейное гнездышко уже ждет вас. Забронируйте приватный просмотр, чтобы вдохнуть его атмосферу. ВОЗМОЖЕН ОБМЕН НА ВАШУ НЕДВИЖИМОСТЬ!!! ID объекта в нашей базе: 18070
    размещено: 28.10.2025 , обновлено: 16.11.2025
  • 3-к квартира, Белинского, 218/1

    • 70.7 м2
    • 9/9 этаж
    • Состояние: хорошее
    8 890 000 ₽ (125700 ₽/м2)
    Внимание! Реальному покупателю торг!При покупке квартиры на ипотечные средства через Дом Клик скидка до 1% на ипотеку.З- х комнатная квартира с удобной и умной планировкой, дом не газифицирован. Это уникальный проект. Раздельные комнаты: гостиная -20,8 м2, и две жилые комнаты : 14, 6 и 10,2 кв.м Кладовая - можно использовать под гардеробную. Предбанник - перед входом в основную прихожую , дает возможность оставить уличную обувь и одежду в прихожей для гостей.Развитая инфраструктура: магазины, аптеки, школьные учреждения. Транспорт и метро в шаговой доступности.Один собственник, обременений нет. Показ в удобное время . Форма расчетов любая, кроме рассрочки ID объекта в нашей базе: 3270
    размещено: 27.10.2025 , обновлено: 21.11.2025

    3-к квартира, Белинского, 135

    • 60.3 м2
    • 3/9 этаж
    • Состояние: хорошее
    7 200 000 ₽ (119400 ₽/м2)
    Пpедлагаю к пoкупке кваpтиру в oдном из лучшиx рaйoнов гopодa - Южный Aвтoвoкзaл. Комнаты изолированные, большая лоджия 10 метров. Закрытый двор, предусмотрена автомобильная парковка во дворе для жителей дома. Въезд во двор осуществляется через шлагбаум. Вся инфраструктура и остановки общественного транспорта в шаговой доступности. Метро в шаговой доступности — ст. метро «Чкаловская». Оперативный показ и быстрый выход на сделку! Не упустите возможность стать владельцем этой прекрасной квартиры! Запишитесь на просмотр прямо сейчас, чтобы оценить все преимущества лично. ID объекта в нашей базе: 9009
    размещено: 15.10.2025 , обновлено: 4.12.2025

    3-к квартира, Авиационная, 75

    • 62.8 м2
    • 2/5 этаж
    • Состояние: хорошее
    7 890 000 ₽ (125600 ₽/м2)
    Объект № 194651. Дом кирпичный, 1971 года постройки, расположен в районе Южного автовокзала, зеленая дворовая территория. В доме очень тепло, подвал всегда сухой, подъезды чистые, соседи тихие и спокойные. В шаговой доступности ост. общ. транспорта, станция метро Чкаловская, магазины, аптеки, детские сады и школы. Квартира находится на 2 комфортном этаже. Состояние хорошее, сделан капитальный ремонт. Заменена электрическая проводка, выровнены стены, можно заехать и жить. Отделка: пол – кварцвиниловая плитка, стены - обои, потолок натяжной 2-уровневый, надежные чугунные батареи, в санузле - керамическая плитка. Установлены счетчики на ХВС и ГВС. Площади комнат 16,8/ 14/ 15кв.м. Остается кухонный гарнитур с встроенной техникой (варочная поверхность, посудомойка), сантехника в ванной комнате, тумба с раковиной и шкафчик. Есть ниша под гардеробную систему хранения. Квартира в собственности более 3 лет, юридически 2 совершеннолетних собственника. Показываем по согласованию, звоните. ***Гарантийный сертификат «Защита собственности» по данному объекту в подарок***
    размещено: 30.09.2025 , обновлено: 18.11.2025

    3-к квартира, Московская, 225/2

    • 62 м2
    • 4/5 этаж
    • Состояние: удовлетворительное
    6 100 000 ₽ (98400 ₽/м2)
    Объект № 194548. Предлагаем вашему вниманию просторную и светлую Трехкомнатную квартиру в отличном районе Екатеринбурга - в спальном районе в самом центре города с удобной транспортной развязкой. Квартира с правильной квадратной планировкой, включает две изолированные комнаты и одну смежную. Комнаты большие и просторные - 17, 18, 14 кв.м. У дома свой расчетный счёт, что позволило провести капитальный ремонт подъезда - здесь всегда чисто и ухоженно. Поменяны стояки, установлены стеклопакеты в подъездах, покрашены стены, отремонтирована крыша, готовится укладка плитки на площадках в подъездах. Придомовая территория благоустроена, во дворе современная детская площадка. Дом находится в тихом, спокойном месте, что делает проживание комфортным и уютным. Удачное расположение: до метро всего 10 мин минут пешком, рядом автовокзал, что обеспечивает удобство передвижения. В шаговой доступности Гимназия №70, Школа №175 и Дворец Спорта - идеальный вариант для семей с детьми. Эта квартира - прекрасный выбор для тех, кто ценит комфорт, безопасность и удобное расположение в центре города с развитой инфраструктурой. ***Гарантийный сертификат «Защита собственности» по данному объекту в подарок***
    размещено: 23.09.2025 , обновлено: 15.10.2025

    3-к квартира, Белинского, 135

    • 62 м2
    • 6/10 этаж
    • Состояние: хорошее
    6 800 000 ₽ (109700 ₽/м2)
    Объект № 193988. Продаётся трёхкомнатная квартира в кирпичном доме в самом центре района Автовокзал. В шаговой доступности: ТЦ Марс, Мегаполис, Центральный парк имени Маяковского, до центра города несколько остановок. Остановки общественного транспорта в любой конец города, включая метро. Просторная планировка, все комнаты изолированы, санузел раздельный, большая лоджия с выходом из гостиной. С 6 этажа отрывается красивый вид на зеленый двор, а также видно парк Маяковского. Заменены окна. В санузле плитка, новая сантехника, установлены современные приборы учета. В подарок покупателю остаётся мебель и техника. Качественный кирпичный дом, прекрасная тепло- и шумоизоляция. Сделан тамбур на 3 квартиры. Закрытая территория, автоматические ворота, современная детская площадка со стадионом и зонами воркаут, много бесплатных парковочных мест. Документы готовы к сделке. Два совершеннолетних собственника. Без обременений. Материнский капитал не использовался. Без перепланировок. Чистая продажа. Быстрый выход на сделку. Звоните, покажем в любое удобное время. Хорошие квартиры разбирают быстро — не упустите! ***Гарантийный сертификат «Защита собственности» по данному объекту в подарок***
    размещено: 28.08.2025 , обновлено: 20.11.2025

    3-к квартира, Фурманова, 45

    • 62.2 м2
    • 4/9 этаж
    • Состояние: хорошее
    8 600 000 ₽ (138300 ₽/м2)
    Продается трехкомнатная уютная, теплая квартира с просторной прихожей, улучшенной планировки в кирпичном доме. Две застекленные полулоджии на разные стороны, две вместительные кладовые. На полу во всей квартире линолеум, в коридоре, кухне и одной комнате натяжные потолки, в кухне и одной комнате стеклопакеты. Остается мебель: шкаф-купе, кровать полутороспальная, диван, угловой шкаф, кухонный гарнитур, комбинированная плита, газовые комфорки, электрическая духовка, вытяжка, посудомоечная машина BOSH. Дом расположен в зеленом микрорайоне, удален от проезжей части, двор оборудован детской площадкой, вокруг дома достаточно парковочных мест. Вся инфраструктура в шаговой доступности, магазины, аптеки, школы, детские сады, остановки транспорта (трамваи, автобусы, троллейбусы), 10 минут шагом до станции МЕТРО Чкаловская, Геологическая. ID объекта в нашей базе: 3687
    размещено: 11.08.2025 , обновлено: 6.11.2025

    3-к квартира, Отто Шмидта, 78

    • 54.4 м2
    • 2/5 этаж
    • Состояние: хорошее
    7 350 000 ₽ (135100 ₽/м2)
    Продается квартира в центре города формата «заезжай и живи» Описание:Продается уютная евротрешка общей площадью 54,4 м² на 2-м этаже 5-этажного дома. Квартира светлая и просторная, с хорошей планировкой. Перепланировка узаконена.Преимущества:• Просторная кухня (27,5 м²) с выходом на балкон• 2 изолированные комнаты правильной формы• Теплый пол в зоне кухни-гостиной, санузле, балконе и коридоре, в остальных комнатах ламинат. Пластиковые окна. Лоджия застеклена. • Встроенная кухня, техника, мебель, 2 кондиционера, водонагреватель, стиральная машина остаются в подарок.Инфраструктура:До метро 10 минут пешком. Центр города в 20 минутах. Удобное расположение: рядом магазины, школы, детские садыХорошая транспортная доступность: остановка общественного транспорта и метро в шаговой доступности. Обременений нет. Быстрый выход на сделку. Если ваша квартира еще не продана, поможем в реализации. Бесплатно подберу новостройку и одобрим ипотеку. Готовы показать квартиру в удобное для вас время, по предварительной договоренности. ID объекта в нашей базе: 10638
    размещено: 06.08.2025 , обновлено: 27.11.2025

    3-к квартира, Белинского, 188

    • 71.3 м2
    • 3/4 этаж
    • Состояние: хорошее
    6 999 000 ₽ (98200 ₽/м2)
    Уютная, просторная, светлая и теплая квартира в районе рядом с центром и метро!Расположение подойдет любому покупателю: магазины, аптеки, больницы, детские сады, школы, пункты выдачи, торговые центры Дирижабль, Марс и Мегаполис, парк Маяковского, остановки общественного транспорта, метро Ботаническая и Чкаловская - вся инфраструктура в шаговой доступности!!!Без обременений. Ипотека возможна!Ждем на просмотр!!! ID объекта в нашей базе: 4794
    размещено: 05.08.2025 , обновлено: 1.12.2025

    3-к квартира, Чайковского, 79

    • 55 м2
    • 3/5 этаж
    • Состояние: хорошее
    6 590 000 ₽ (119800 ₽/м2)
    Объект № 193313. Продается квартира в районе метро Чкаловская. Рядом магазины Верный, Пятерочка, Монетка и другие. Остановка автобуса в 5 минутах ходьбы. Школа №102 в соседнем дворе. Двор отремонтирован по современным стандартам. Звоните, покажем по договоренности. ***Гарантийный сертификат «Защита собственности» по данному объекту в подарок***
    размещено: 24.07.2025 , обновлено: 18.11.2025

    3-к квартира, Фрунзе, 12

    • 72 м2
    • 2/5 этаж
    • Состояние: удовлетворительное
    9 500 000 ₽ (131900 ₽/м2)
    Продается теплая и уютная квартира в хорошем состоянии в районе Автовокзала. Прекрасная транспортная развязка и развитая инфраструктура. Первый этаж очень высокий (высота потолков 5 м), т.к. на первом этаже дома находится поликлиника для взрослых Поэтому второй этаж тоже высокий, примерно на уровне третьего этажа.Высокие потолки (3 м) прекрасно добавляют объема помещению. А кирпичный дом создает прекрасную звуко и теплоизоляцию, очень тихо и всегда комфортно! В квартире остается мебель по договоренности. На кухне встроенная бытовая техника: вытяжка, небольшая посудомойка, плита и холодильник. Так же в квартире оборудована небольшая гардеробная комната, которая поможет решить все вопросы с хранением.Есть еще небольшая кладовая в подвале и металлический гараж, который находится прямо под окнами. Прекрасный дополнительный бонус для покупателя!Интеллигентные и спокойные соседи. Документы готовы С регистрационного учета все сняты.Показ по предварительной договоренности. Торг после показа. ID объекта в нашей базе: 9546
    размещено: 29.05.2025 , обновлено: 25.11.2025

    3-к квартира, Уктусская, 47

    • 61.9 м2
    • 5/5 этаж
    • Состояние: удовлетворительное
    6 890 000 ₽ (111300 ₽/м2)
    Продается просторная трехкомнатная квартира в районе Южного автовокзала.Дом расположен в тихом месте отдаленным от шумных дорого, при этом в 5 минутах от метро "Чкаловское", ТЦ мегаполис, Автовокзала. Рядом есть все для комфортного проживания: Школы, садики, магазины.Квартира светлая, чистая находится в одной семье с момента сдачи дома. Хорошая планировка, которая позволяет сделать перепланировку. Чистый подъезд, хорошие соседи.Чистая продажа. Один взрослый собственник. Быстрый выход на сделку. ID объекта в нашей базе: 8086
    размещено: 15.05.2025 , обновлено: 1.12.2025

    3-к квартира, Щорса, 130

    • 63.8 м2
    • 3/9 этаж
    • Состояние: хорошее
    6 950 000 ₽ (108900 ₽/м2)
    Объект № 190210. Прекрасная геолокация! Продам теплую, уютную квартиру площадью 63.8 квадратных метров в развитом микрорайоне, на комфортном третьем этаже. В квартире сделан ремонт, что создает атмосферу комфорта и уюта. В доме сделан капитальный ремонт. заменены трубы и стояки Рядом находятся школа, детский сад, торговый центр магазины. Пешая доступность до станции метро Чкаловская делает перемещение по городу еще более удобным. Документы готовы. ***Гарантийный сертификат «Защита собственности» по данному объекту в подарок***
    размещено: 19.03.2025 , обновлено: 3.12.2025

    3-к квартира, Белинского, 152 к. 2

    • 73.5 м2
    • 2/5 этаж
    • Состояние: идеальное
    7 800 000 ₽ (106100 ₽/м2)
    Продается просторная трехкомнатная квартира в тихом центре Автовокзала. Уникальность квартиры в эксклюзивной планировке, выполненной за счет реконструкции жилого дома, проведенной в 1984 году, которая не встречается в домах такого типа. Комфортный второй этаж, окна квартиры во двор. Три изолированные комнаты: 11,5 кв.м., 12,4 кв.м., 23,3 кв.м; большой холл 16,2 кв.м. – позволяет выполнить зонирование квартиры, включая организацию системы хранения. Дом кирпичный, квартира очень теплая, чистая, сделан ремонт. Квартира в собственности более 5 лет, 2 совершеннолетних собственника. Обременения, долги, аресты - отсутствуют. Чистая продажа. ID объекта в нашей базе: 1373
    размещено: 20.01.2025 , обновлено: 27.11.2025

Новостройки Екатеринбург, мкр-н. Автовокзал

Приоритет

Увеличивает просмотры в 3 раза

Ваше объявление показывается в списке выше обычных объявлений. подключить