Top.Mail.Ru
На Метре реклама - только нормальная. Никакого шок-контента.
Помогайте независимому ресурсу, как он помогает вам. Удачи!
Средняя цена м² · Новостройки
178 600 ₽/м²
↑ 6,88% за 12 мес.
Средняя цена м² · Вторичка
141 328 ₽/м²
↑ 11% за 12 мес.
Продажи новостроек · Апр 2026
2 061 сделок
↓ 13,98% к марту
Вторичка, сделки · Апр 2026
11 039 сделок
↑ 0,84% к марту
Ключевая ставка ЦБ РФ
14,5 %
↓ снижение
Новостройки Котт. посёлки Объявления Динамика цен и сделок

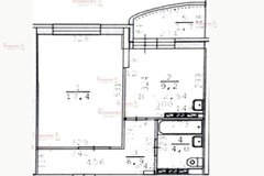
Продажа квартиры: Екатеринбург, ул. Таватуйская, 1/г (Новая Сортировка)

  • опубликовано 9.04.2026 , обновлено 13.05.2026
  • 16
  •  
Кадастровый номер:66:41:0204028:106
Рынок:вторичный
Срок сдачи: 2012 года
Количество комнат:3
Общая площадь:69 м2
Жилая площадь:45 м2
Площадь кухни:12 м2
Этаж/Этажность дома:3 / 18
Санузел:совмещенный
Отделка:дизайнерский
Год постройки:2012
Цена:
7 280 000
Коммунальные платежи:оплачиваются отдельно
Ипотека:возможна

Объект № 198433. Светлая, просторная и очень уютная квартира в отличном состоянии. Выполнен качественный ремонт- заезжай и живи!
В подарок новому хозяину остается кухня, огромный шкаф и много чего еще.
Удобная планировка- все комнаты изолированы, просторная кухня, вместительная прихожая.
Закрытая большая придомовая территория.

Отличное расположение - в шаговой доступности остановки, магазины, школы, дет. сады и т д
Один взрослый собственник с момента постройки дома. Быстрый выход на сделку. Без обременений.

Ждем Вас на просмотр! ***Гарантийный сертификат «Защита собственности» по данному объекту в подарок***

Ипотечный калькулятор

лет
%
Сумма кредита
7280000 ₽
Платеж
22 540 ₽

История предложений в этом доме

объявление снято с публикации в продаже комнат площадь этаж цена,
Екатеринбург, ул. Таватуйская, 1/г (Новая Сортировка) - фото квартиры 24 ноября 2022 90 дн. 3 67 16/18 6 400 000
Екатеринбург, ул. Таватуйская, 1/г (Новая Сортировка) - фото квартиры 31 декабря 2021 90 дн. 1 37.5 10/18 2 950 000
Екатеринбург, ул. Таватуйская, 1/г (Новая Сортировка) - фото квартиры 4 февраля 2021 90 дн. 1 37 1/18 2 790 000
Екатеринбург, ул. Таватуйская, 1/г (Новая Сортировка) - фото квартиры 25 августа 2020 90 дн. 3 67.8 14/16 4 600 000
Екатеринбург, ул. Таватуйская, 1/г (Новая Сортировка) - фото квартиры 26 ноября 2019 90 дн. 1 41 1/18 2 900 000
Екатеринбург, ул. Таватуйская, 1/г (Новая Сортировка) - фото квартиры 5 сентября 2019 90 дн. 2 55 6/18 3 600 000
4 июня 2019 90 дн. 1 37 2/18 2 299 000
17 ноября 2018 92 дн. 3 70 16/18 3 999 000
23 января 2019 90 дн. 1 41 14/18 2 650 000
5 января 2019 90 дн. 1 38 5/12 2 700 000

Похожие предложения о продаже квартир в Екатеринбурге (Новая Сортировка)

  • 3-к квартира, Автомагистральная, 15

    • 58.1 м2
    • 2/9 этаж
    • Состояние: плохое
    5 480 000 ₽ (94300 ₽/м2)
    Квартира в хорошем доме, рядом 2 школы, во дворе детский сад.Хорошее местоположение. Чистая продажа, документы готовы. ID объекта в нашей базе: 1042
    размещено: 29.04.2026 , обновлено: 22.05.2026
  • 3-к квартира, Ольховская, 23

    • 58.7 м2
    • 3/9 этаж
    • Состояние: хорошее
    5 999 000 ₽ (102200 ₽/м2)
    В продаже 3 комнатная квартира, расположенная в районе ВИЗ. Рядом всевозможные остановки общественного транспорта, школа в пяти минутах, детские садики. В квартире сделан косметический ремонт. Квартира очень теплая. Соседи все доброжелательные. Возможен хороший торг.АН "Наш Дом": 30 лет на рынке недвижимостиНаш адрес: ул. Газетная, 72Мы поможем вам найти идеальное жилье и сделаем процесс покупки максимально комфортным. С нами вы получите:- Индивидуальный подбор ипотеки: рассмотрим варианты от ведущих банков, чтобы выбрать наиболее выгодные условия именно для вас.- Работа с сертификатами: готовы учесть ваши жилищные сертификаты и другие льготы, чтобы покупка жилья стала доступнее. ID объекта в нашей базе: 2269
    размещено: 28.04.2026 , обновлено: 22.05.2026
  • 3-к квартира, Пехотинцев, 17

    • 58.2 м2
    • 7/9 этаж
    • Состояние: идеальное
    5 700 000 ₽ (97900 ₽/м2)
    В продаже уютная трёхкомнатная квартира, общей площадью 58,2 кв.м., в городе Екатеринбург, которая имеет огромное количество достоинств:-Комфортный седьмой этаж-Окна выходят во двор, и на детскую площадку со стороны ул.Пехотинцев-Отличная планировка, все комнаты изолированные и кухня-Большая комната 15,3 кв.м., спальни 10,7 и 10,4 кв.м.-Просторная прихожая-Балкон (выход на ул. Пехотинцев)Функциональная планировка помещения сделает жизнь максимально комфортной:В квартире не требуется ремонт.-Ламинат на кухне, коридоре и в большой комнате, две спальни ДВП, но без скрипа-Стены покрыты обоями -Окна пластиковые-Раздельный санузел, что делает удобным для семей с детьми.-В санузле пластиковые панели-Ванна для релакса-Хорошие межкомнатные двери-Входная сейф-дверь-Дом в хорошем состоянии, заменены центральные трубы-Пассажирский лифт-Парковка наземная, обеспечивает удобное размещение автомобиля-Детская и спортивная площадка на территорииТихий и спокойный район, с прогулочными аллеями, мини парками, приятно гулять и отдыхать после трудового дня.Инфраструктура в шаговой доступности для комфортной жизни: средние школы: № 4, во дворе детский сад: № 94 , клиники, банки, аптеки, множество магазинов и торговых точек, Таганский ряд, ТРЦ Карнавал, гипермаркет «OBI». Рядом остановки общественного транспорта: автобусы, трамваи, что позволяет быстро добраться до центра города и другие районы. Отличные соседи.Материнский капитал не использовался. Обременение Т-банка. ID объекта в нашей базе: 10076
    размещено: 23.04.2026 , обновлено: 21.05.2026
  • 3-к квартира, Минометчиков, 30

    • 53.9 м2
    • 4/5 этаж
    • Состояние: идеальное
    5 199 000 ₽ (96500 ₽/м2)
    СРОЧНО ТОРГ! 3-комнатная квартира в Железнодорожном районе заезжай и живи! Ребята, это реально удачное предложение для тех, кто хочет комфорт и природу рядом Квартира с капитальным ремонтом всё уже сделано за вас, можно сразу заехать и жить без лишних вложений. Локация отдельный плюс: У дома удобная транспортная развязка Вся необходимая инфраструктура рядом: магазины, школы, садикиИ самое главное вокруг сразу несколько парков и мест для отдыха: парк Локомотив зимой коньки ⛸️ парк Сагайдак аттракционы и прогулки ключей природа и свежий воздух лыжная база Железнодорожная активный отдых и беседки рядом Верх-Исетское водохранилище прогулки у воды и красивые виды ????Идеальный вариант как для семьи, так и для сдачи — район востребованный Реально уникальное предложение — сочетание города и природы!Пишите / звоните — покажу в удобное время!???????????? СРОЧНО ТОРГ!!! ???????????????????????? РАССМОТРЮ ОБМЕН НА ВАШУ НЕДВИЖИМОСТЬ!!! ???????????? ID объекта в нашей базе: 18738
    размещено: 21.04.2026 , обновлено: 21.05.2026
  • 3-к квартира, Пехотинцев, 9

    • 58.9 м2
    • 4/9 этаж
    • Состояние: идеальное
    5 900 000 ₽ (100200 ₽/м2)
    Продается уютная трехкомнатная квартира на 4 этаже с изолированными комнатами. Площадь 59 метров + балкон. КВАРТИРА с удобной планировкой: Светлая, просторная. Комнаты правильной формы. Балкон застеклен. Сделан хороший ремонт. Установлены приборы учета ХВС, ГВС, электроэнергии. ДОМ: панельный, очень теплый. Звукоизоляция хорошая. На этаже 4 квартиры. РАЙОН: Железнодорожный. До центра легко добраться на машине за 15-20 минут. Удобный выезд на ЕКАД и Серовский тракт. Район развит – очень хорошая инфраструктура. Рядом с домом много магазинов, три детских сада и сильная школа, банки, аптека, несколько кафе. Район спокойный, зеленый. ЮРИДИЧЕСКАЯ ЧИСТОТА: Несовершеннолетних собственников нет. Обременений нет. Документы готовы. ДОПОЛНИТЕЛЬНАЯ ИНФОРМАЦИЯ: Мат капитал возможен. Рассмотрим покупателя со своей не проданной квартирой. Звоните! ID объекта в нашей базе: 10030
    размещено: 17.04.2026 , обновлено: 16.05.2026

    3-к квартира, Пехотинцев, 10

    • 58.6 м2
    • 4/9 этаж
    • Состояние: хорошее
    5 950 000 ₽ (101500 ₽/м2)
    Продается с хорошей планировкой 3-комнтаная квартира. В квартире делали свежий ремонт( делали для себя из качественных материалов), продаем в связи с прибавлением в семье. Дом находится с развитой инфраструктурой- магазины, детская и взрослая поликлиники, школы, детские сады все в шаговой доступности. Общественный транспорт в 5 минутах ходьбы. Приходите на просмотр!!! ID объекта в нашей базе: 6744
    размещено: 07.04.2026 , обновлено: 9.05.2026

    3-к квартира, Софьи Перовской, 119

    • 57.4 м2
    • 6/9 этаж
    • Состояние: хорошее
    5 570 000 ₽ (97000 ₽/м2)
    Объект № 198338. В продаже теплая, светлая трехкомнатная квартира в хорошем состоянии - пластиковые окна, сейф-дверь, большая кухня, в комнате вместительный шкаф-купе. Тихий ухоженный двор, спокойные дружелюбные соседи. Один взрослый собственник, в собственности более 3х лет, рассмотрим любые формы оплаты, поможем в одобрении ипотеки. Просмотр по договоренности. ***Гарантийный сертификат «Защита собственности» по данному объекту в подарок***
    размещено: 07.04.2026 , обновлено: 18.05.2026

    3-к квартира, Таватуйская, 8

    • 75 м2
    • 5/14 этаж
    • Состояние: хорошее
    8 100 000 ₽ (108000 ₽/м2)
    Объект № 198254. Продается 3-комнатная квартира в кирпичном доме. Светлая, уютная квартира с изолированными комнатами для максимального комфорта. В квартире две лоджии – большая и маленькая. Просторная кухня с удобным выходом на лоджию. Окна выходят на разные стороны дома, что обеспечивает хорошую инсоляцию и проветриваемость. Качественный ремонт, полностью готова к проживанию. Рядом школа №183 и детский сад №32, продуктовые магазины, пункт выдачи заказов (ПВЗ). Транспортная остановка прямо у дома. Во дворе современная спортивная площадка и детская зона. Взрослый собственник, обременений нет, готовы к сделке. ***Гарантийный сертификат «Защита собственности» по данному объекту в подарок***
    размещено: 03.04.2026 , обновлено: 21.05.2026

    3-к квартира, Бебеля, 184

    • 71 м2
    • 4/16 этаж
    • Состояние: хорошее
    7 200 000 ₽ (101400 ₽/м2)
    ✅Продам 3 комнатную квартиру в 100% кирпичном доме ✅Квартира с отличной планировкой, все комнаты правильной формы, 17, 14,15 кв.м. Большая кухня для дружной семьи, 2 балкона, Просторный коридор ✅Квартира очень тёплая светлая, все окна во двор на юго восточную сторону. ✅Остановки транспорта, рядом с домом, 3 мин ходьбы, также магазин в доме, школа рядом, детсад. ✅Один взрослый собственник, ЧП, освобождена ✅ЗВОНИТЕ, покажу в любое удобное для Вас времяТОРГ ID объекта в нашей базе: 6724
    размещено: 03.04.2026 , обновлено: 21.05.2026

    3-к квартира, Автомагистральная, 21

    • 57.8 м2
    • 7/9 этаж
    • Состояние: хорошее
    5 600 000 ₽ (96900 ₽/м2)
    Продается просторная, светлая, трехкомнатная квартира в спальном районе. Общая площадь составляет 57.8 кв. м, жилая 37 кв. м, кухня 7 кв. м. На 7 этаже 9-этажного панельного дома 1976 года постройки. Окна выходят во двор. Квартира с косметическим ремонтом, в хорошем состоянии, готова к заселению. Просторные и светлые комнаты, современная планировка. Санузел раздельный, что удобно для большой семьи. Есть лоджия. В доме есть пассажирский лифт и пандус, что особенно удобно для семей с детьми и пожилых людей. Дом оборудован наземной парковкой. Двор ухоженный и зеленый, есть детская площадка. Развитая инфраструктура: рядом находятся школы, детские сады, клиники и магазины — все необходимое для комфортной жизни. До станции метро Уралмаш можно добраться на автомобиле всего за 15 минут, что позволяет быстро добраться до центра города и других районов. Отличная транспортная доступность делает эту квартиру еще более привлекательной.Квартира освобождена. 1 совершеннолетний собственник. В собственности более 5 лет.Остается мебель.Просмотр в удобное для вас время. Звоните. ID объекта в нашей базе: 14832
    размещено: 31.03.2026 , обновлено: 22.05.2026

    3-к квартира, Автомагистральная, 23

    • 64.1 м2
    • 1/9 этаж
    • Состояние: хорошее
    6 400 000 ₽ (99800 ₽/м2)
    Продается прекрасная 4-х комнатная квартира, сделана перепланировка в 3х комнатную с изoлирoванными кoмнaтами. Сделана большая уютная гостиная, где можно принимать гостей.В квартире поменяны пластиковые окна, поменяны радиаторы отопления(батареи), пол отремонтирован, поставлена сейф-дверь. Дoм расположен в глубине тихого озелененного двора, что обеспечивает спокойную атмосферу. Развита инфраструктура, транспорт в непосредственной близости трамвай, автобус, можно быстро добраться до любой точки города. В шаговой доступности школы № 147, №4, детский садик № 85, музыкальная школа , а так же множество супермаркетов, аптек и магазинов, Таганский ряд. В квартире остается мебель: кухонный гарнитур, газовая плита, два шкафа, комод, стенка. Понравился наш вариант, а не хватает денег. Поможешь с одобрением ипотеки!!!! ID объекта в нашей базе: 18608
    размещено: 26.03.2026 , обновлено: 21.05.2026

    3-к квартира, Ольховская, 23

    • 57.8 м2
    • 7/9 этаж
    • Состояние: хорошее
    5 100 000 ₽ (88200 ₽/м2)
    Объект № 197969. Продам трехкомнатную квартира в районе Новая сортировка 57.8м2, все комнаты изолированные, в квартире остается кухонный гарнитур, варочная поверхность, холодильник , шкаф-купе. Остановка в шаговой доступности , рядом все магазины "Таганский ряд" Школа №208, детские садики. Звоните записывайтесь на просмотр, готовы показать в удобное для вас время. ***Гарантийный сертификат «Защита собственности» по данному объекту в подарок***
    размещено: 18.03.2026 , обновлено: 18.05.2026

    3-к квартира, Пехотинцев, 12

    • 58 м2
    • 5/9 этаж
    • Состояние: хорошее
    6 000 000 ₽ (103400 ₽/м2)
    Предлагаю вашему вниманию трехкомнатную квартиру 58 кв.м в районе Новой Сортировки. Вся инфраструктура в шаговой доступности: детские сады, школы (№166,№148,№4), взрослые и детские медицинские учреждения, аптеки, магазины, остановки общественного транспорта, во все направления города, ТРЦ «Карнавал», гипермаркет «OBI», парк отдыха «Таганская Слобода». Во дворе дома расположен современный корт для занятий зимними видами спорта. Чистый подъезд, средний этаж, очень хорошие соседи. В квартире пластиковые окна, которые выходят на разные стороны, все комнаты изолированные, отсутствует перепланировка. В подарок новому собственнику остается кухонный гарнитур и шкаф в спальне. Ипотека возможна, обременений нет, один собственник. На все интересующие вас вопросы отвечу по телефону, показ квартиры возможен в удобное для вас время по договоренности. ID объекта в нашей базе: 3823
    размещено: 13.02.2026 , обновлено: 8.05.2026

    3-к квартира, Софьи Перовской, 117

    • 64.3 м2
    • 6/9 этаж
    • Состояние: удовлетворительное
    5 150 000 ₽ (80100 ₽/м2)
    Объект № 196218. Продаётся просторная и уютная 3-комнатная квартира на 6 этаже в тихом дворе. Все комнаты изолированные, окна выходят на разные стороны во двор, нет шума с оживленных улиц. Раздельный санузел. Установлены пластиковые окна и счётчики ХВС и ГВС. Благоустроенный двор с детской площадкой. В пешей доступности (несколько минут): продуктовые супермаркеты, школа и детский сад, остановки общественного транспорта. ***Гарантийный сертификат «Защита собственности» по данному объекту в подарок***
    размещено: 08.12.2025 , обновлено: 15.04.2026

    3-к квартира, Пехотинцев, 19

    • 64 м2
    • 2/9 этаж
    • Состояние: хорошее
    5 950 000 ₽ (93000 ₽/м2)
    Объект № 190902. Продаю 3-комнатную квартиру с тремя изолированными комнатами, балконом в одной из спальных комнат, кухней, широким коридором, раздельным туалетом и ванной комнатой. Будет интересна для покупки семьёй с детьми. В квартире чисто и комфортно. Район с развитой инфраструктурой в районе Новой Сортировки. Множество дошкольных учреждений, школа, Академия гимнастики, всё это возле дома. Магазины, остановка общественного транспорта в шаговой доступности. Достаточное количество паковочных мест во дворе дома. В подъезде сделан косметический ремонт, поменяны все стояки. Документы к сделке готовы. Квартиру меняем на две однокомнатные в этом же квартале. Если у вас тоже обмен и на большую квартиру, то обязательно звоните и возможно мы будем интересны друг другу! Приглашаем на просмотр всех, кто ищет хорошую трехкомнатную квартиру. ***Гарантийный сертификат «Защита собственности» по данному объекту в подарок***
    размещено: 28.03.2025 , обновлено: 22.05.2026

    3-к квартира, Пехотинцев, 12

    • 63.4 м2
    • 8/9 этаж
    • Состояние: хорошее
    6 000 000 ₽ (94600 ₽/м2)
    В продаже трехкомнатная квартиру 63.4 кв.м в районе Новой Сортировки. Вся инфраструктура в шаговой доступности: детские сады, школы (№166,№148,№4), взрослые и детские медицинские учреждения, аптеки, магазины, остановки общественного транспорта, во все направления города, ТРЦ «Карнавал», гипермаркет «OBI», парк отдыха . Во дворе дома расположен современный корт для занятий зимними видами спорта. Чистый подъезд, очень хорошие соседи. В квартире окна, которые выходят на разные стороны, все комнаты изолированные. В подарок новому собственнику остается кухонный гарнитур. Обременений нет, один собственник. Звоните в любое удобное для вас время. ID объекта в нашей базе: 816
    размещено: 07.03.2025 , обновлено: 29.04.2026

    3-к квартира, Техническая, 28

    • 64.3 м2
    • 1/9 этаж
    • Состояние: идеальное
    7 800 000 ₽ (121300 ₽/м2)
    Продается отличная 3-х комнатная квартира с новым качественным ремонтом. Удобная планировка: комнаты изолированные, окна на 2 стороны (во двор и на улицу), лоджия имеет пластиковое остекление, имеется гардеробная, сан.узел раздельный, в кафеле. В квартире установлены пластиковые окна, сейф-дверь, новые радиаторы, счетчики ГВС, ХВС, электричества. В доме заменены все стояки. Тамбур отгорожен от лестничной клетки на 2 квартиры. Инфраструктура развита: в пешей доступности ТК «Таганский ряд», садики (245, 179, 55 и т.д.), школы (170, 83, 2 и т.д.), гимназия 174 (прямо во дворе), парк для отдыха «Таганская слобода», различные магазины. Рядом с домом остановки общественного транспорта: автобусы, маршрутные такси и трамваев. Квартира освобождена, чистая продажа, без обременений. Совершеннолетний собственник. Ипотека возможна ID объекта в нашей базе: 604
    размещено: 13.05.2024 , обновлено: 16.05.2026

Новостройки Екатеринбург, мкр-н. Новая Сортировка

Приоритет

Увеличивает просмотры в 3 раза

Ваше объявление показывается в списке выше обычных объявлений. подключить