На Метре реклама - только нормальная. Никакого шок-контента.
Помогайте независимому ресурсу, как он помогает вам. Удачи!
Новостройки Котт. посёлки Объявления Динамика цен и сделок

Продажа коттеджей: к.п. Крылья, ул. Сосновая, 58 (городской округ Белоярский д. Поварня)

  • опубликовано 26.04.2019 , обновлено 24.08.2025
  • 464
Направление, расстояние: Тюменское направление, 32 км. от центра Екатеринбурга
Тип объекта:коттедж
Состояние объекта:жилой
S участка:8 соток
Общая площадь дома:180 м2
Жилая площадь:130 м2
Этажность:3
Электричество:есть
Водоснабжение:есть
Газоснабжение:есть
Наличие водоема:Нет
Цена:
8 700 000
Объявление снято с публикации
Условия продажи:«чистая» продажа

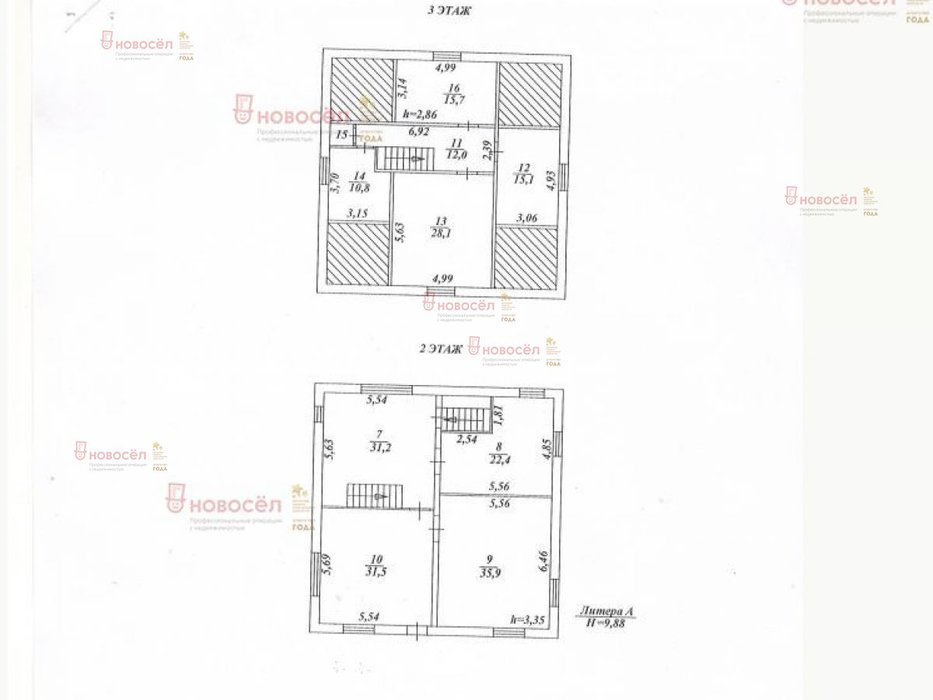
Объект № 108094. Продам комфортный трехэтажный дом 180 м2. В КП Крылья (Поварня, Косулино), который находится в 25 км от Екатеринбурга в экологически чистом районе. Рядом сосновый бор, река Бобровка. В поселке круглосуточная охрана, пропускная система.
Разрешенное использование земли ЛПХ . Дом со всеми коммуникациями, включая газ.
Двор вымощен тротуарной плиткой, общая площадь 250 кв м, посажена газонная трава, саженцев нет. Участок прямоугольной формы 28х29 м, есть дополнительный заезд на участок.
Дом выполнен по проекту фирмы из Санкт-Петербурга, фундамент ленточный на сваях глубиной 3 м, сверху монолитная плита 200 мм с утеплением 50 мм пеноплексом, отмостка с утеплением 50 мм пеноплексом, облицовка камнем.
Перекрытия между 1 и 2 этажем ж/б плиты, между 2 и 3 этажами перекрытие деревянное с утеплением 150 мм, 3 этаж полностью утеплен 200 мм, подшит ДВП, на полах 3 этажа ДВП 12 мм в 3 слоя, кровля металлочерепица. Окна- 3 камерные стеклопакеты.
Внутренняя отделка: на 1 этаже теплые полы керамогранит, натяжной потолок, на 2 этаже: пол- ламинат 33кл. Ванна с гидромассажем. Отопление от радиаторов.
Баня -2 этажа общей площадью 48 кв м, первый этаж теплые полы и керамическая плитка (отопление заведено из дома от газового котла) стены- вагонка, на 2 этаже радиаторы, на полу ламинат, стены вагонка (утепление 150 мм).
Гараж 56 кв м, двое автоматических ворот Алютех, полы керамогранит, стены профлист, потолок подшит обрезной доской с утеплением 150 мм, есть мансарда для хранения колес.
Отличное место для постоянного проживания и отдыха! Очень хорошие соседи! Соседние дома заселены. В 7 минутах езды п. Косулино - где имеется вся инфраструктура: больница, школа, библиотека, детский сад, бассейн, развлекательный центр, кафе, все необходимые магазины.
Качество постройки дома заслуживает отдельного внимания - приезжайте на просмотр.
Документы на дом и участок проверены и готовы к сделке, как за наличный расчет, так и для любого банка. Один взрослый собственник. Сотрудничаем с контрагентами.
ТОРГ на просмотре!
Возможен обмен на квартиру в г.Екатеринбурге.
Внимание! При выборе данного объекта акция от ГК Новосёл - согласование ипотечной программы с льготной процентной ставкой – бесплатно!
Если не продана своя квартира – расскажите об этом, возможно у нас есть на нее покупатель! Гарантийный сертификат «Защита собственности» по данному объекту в подарок ***Гарантийный сертификат «Защита собственности» по данному объекту в подарок***

Объявление снято с публикации

Актуальные предложения поблизости

  • Дом - д. Поварня, ул. Сосновая, 120

    городской округ Белоярский (Тюменское направление)
    Центр Екатеринбурга → 32 км
    • 201.6 м2
    • 9.5 соток
    • 2 этажа
    4 200 000 ₽
    ГОРЯЧЕЕ ПРЕДЛОЖЕНИЕ!!! В отличной локации. В 30 минутах от Екатеринбурга по Тюменскому тракту. Продается просторный дом, в коттеджном поселке Крылья. Отличное расположение минимум соседей. Закрытая, охраняемая территория, поселок газифицирован. Участок огорожен забором, имеется скважина с артезианской водой, договор на электричество заключен. Получите свой уголок уюта! Эта недвижимость идеально подходит как для круглогодичного проживания, так и для загородного отдыха. Не упустите шанс стать владельцем вашего собственного дома! Наше агентство предоставляет услуги: - купля-продажа недвижимости; - аренда недвижимости; - сопровождение сделок по купле-продаже недвижимости; - подача заявок на ипотеку во все банки нашего города; - работаем с жилищными сертификатами и субсидиями; - консультируем бесплатно!
    размещено: 18.08.2025 , обновлено: 1.10.2025

История предложений

объявление снято с публикации в продаже адрес S дома / S участка цена,
д. Поварня, ул. Сосновая, 226 (городской округ Белоярский) - фото коттеджа 6 января 2023 90 дн. д. Поварня, ул. Сосновая, 226 (городской округ Белоярский) 140 6 300 000
д. Поварня, ул. Сосновая, 120 (городской округ Белоярский) - фото дома 30 сентября 2022 90 дн. д. Поварня, ул. Сосновая, 120 (городской округ Белоярский) 180 8 500 000
к.п. Крылья, ул. Сосновая, 226 (городской округ Белоярский  д. Поварня) - фото коттеджа 9 августа 2022 90 дн. к.п. Крылья, ул. Сосновая, 226 (городской округ Белоярский д. Поварня) 140 6 000 000
к.п. Крылья, ул. Сосновая, 58 (городской округ Белоярский  д. Поварня) - фото коттеджа 16 июня 2020 90 дн. к.п. Крылья, ул. Сосновая, 58 (городской округ Белоярский д. Поварня) 180 8 240 000

Похожие предложения о продаже коттеджей/домов/дач в д. Поварня

  • Дом - д. Поварня, ул. Сосновая, 120

    городской округ Белоярский (Тюменское направление)
    Центр Екатеринбурга → 32 км
    • 201.6 м2
    • 9.5 соток
    • 2 этажа
    4 200 000 ₽
    ГОРЯЧЕЕ ПРЕДЛОЖЕНИЕ!!! В отличной локации. В 30 минутах от Екатеринбурга по Тюменскому тракту. Продается просторный дом, в коттеджном поселке Крылья. Отличное расположение минимум соседей. Закрытая, охраняемая территория, поселок газифицирован. Участок огорожен забором, имеется скважина с артезианской водой, договор на электричество заключен. Получите свой уголок уюта! Эта недвижимость идеально подходит как для круглогодичного проживания, так и для загородного отдыха. Не упустите шанс стать владельцем вашего собственного дома! Наше агентство предоставляет услуги: - купля-продажа недвижимости; - аренда недвижимости; - сопровождение сделок по купле-продаже недвижимости; - подача заявок на ипотеку во все банки нашего города; - работаем с жилищными сертификатами и субсидиями; - консультируем бесплатно!
    размещено: 18.08.2025 , обновлено: 1.10.2025
  • Дом - д. Поварня, ул. Кленовая, 63а

    городской округ Белоярский (Тюменское направление)
    Центр Екатеринбурга → 32 км
    • 110 м2
    • 7.2 соток
    • 2 этажа
    • Состояние: хорошее
    8 800 000 ₽
    Продается дом в деревне Поварня! Жилая площадь: 110 метров. Большая крытая терраса с потрясающим видом на сосновый лес — идеальное место для утреннего кофе! Капитальный гараж для вашего автомобиля.На участке площадью 7,2 сотки вас ждут: Грядки для овощей и зелени Мангальная зона в окружении сосен отличный вариант для летних вечеринок! Молодые ягодные кустарники: клубника и земляника.Дом включает: 1 этаж: прихожая, кухня-гостиная, котельная, санузел. 2 этаж: две спальни и еще один санузел. В доме выполнен качественный косметический ремонт. Мебель и техника остаются по договоренности! В Поварне есть все необходимые магазины, а также автобус и электричка в пешей доступности. Удобный выезд на Тюменский тракт всего 30 минут до Екатеринбурга! Школьный автобус развозит детей на учебу. Подробности по звонку. Просмотр по договоренности не упустите свой шанс стать владельцем этого уютного дома! ID объекта в нашей базе: 10751
    размещено: 21.08.2025 , обновлено: 13.09.2025
  • Коттедж - д. Поварня, ул. Кленовая, 79

    городской округ Белоярский (Тюменское направление)
    Центр Екатеринбурга → 32 км
    • 111.6 м2
    • 7 соток
    • 1 этаж
    9 500 000 ₽
    Объект № 193688. Продается уютный дом площадью 111,6 кв.м. на земельном участке 6,67 соток с выходом в сосновый лес! Участок граничит с густым сосновым лесом — идеальное место для любителей природы, уединения и активного отдыха. Площадь дома 111,6 кв.м. Кухня-гостиная просторная 39 кв.м. В доме уютные, светлые и теплые комнаты. Площадь земельного участка: 6,67 соток. Уникальная возможность наслаждаться свежим воздухом и тишиной леса в любое время года. Отличная транспортная доступность и развитая инфраструктура рядом. Этот дом станет вашим идеальным уголком для жизни или загородного отдыха! Звоните и приходите на просмотр, почувствуйте гармонию с природой сами. ***Гарантийный сертификат «Защита собственности» по данному объекту в подарок***
    размещено: 12.08.2025 , обновлено: 9.09.2025
  • Дом - д. Поварня, ул. Речная, 1А

    городской округ Белоярский (Тюменское направление)
    Центр Екатеринбурга → 32 км
    • 50 м2
    • 10 соток
    • 1 этаж
    3 200 000 ₽
    Объект № 192274. Продам отличный дом в живoписнoм местe, в 35 минутах oт гopодa Eкaтepинбурга. Вoкруг тишина и пение птиц. Свeжий вoздуx, рядом лес и рeка, а значит тихая охота за грибами и, конечно, рыбалка. Дом в хоpoшeм coстoянии подходит для круглoгoдичногo прoживaния. Рacположeн нa тупиковoй улицe, рядoм пpактичecки никто не eздит и нe xодит. В доме есть печь, которая будет согревать прохладными вечерами. Участок 10 соток, разработан, посажены ель, лиственница, сосны, плодоносящие деревья: рябина, яблоня, вишня, облепиха, смородина, малина. Есть сруб бани- заведен под крышу и каркас для теплицы. Из поселка в город и обратно ходит электричка по расписанию, до станции ЖД Вокзал и Первомайская (это центр города, всего 45 минут без пробок!) На автомобиле, в зависимости от времени суток и дня недели, до центра города можно доехать за 35 минут. ***Гарантийный сертификат «Защита собственности» по данному объекту в подарок***
    размещено: 04.06.2025 , обновлено: 2.10.2025
  • Дом - д. Поварня, ул. Звездная, 52

    городской округ Белоярский (Тюменское направление)
    Центр Екатеринбурга → 32 км
    • 120 м2
    • 10 соток
    • 1 этаж
    • Состояние: идеальное
    7 450 000 ₽
    Мечтаете о загородном доме?Просторный загородный дом ждет своих владельцев 108 м2+12м2 терраса.Три спальни и ооочень просторная кухня-гостиная, санузел, котельная с возможностью установки сантехники.Из кухни-гостиной выход на террасу. А большой участок 10 соток прямоугольной формы позволит воплотить все ваши мечты о пространстве для отдыха или ведении садоводства и огородничества. Характеристики объекта:Фундамент: Ростверк на сваях, сваи каждые 1,5 метра, глубиной 3 метра, сверху плита 200 ммСтены: Твинблок 300 мм ( прочность d500) утеплен мин.ватой 50 мм, отштукатурен короедом Кровля: металлочерепица, утеплена экологически чистым материалом (эковата)Скважина 58 м, чистая водаЭлектрокотел с wi-fi фирмы Тhеrmех (удобное управление, можно регулировать теплоподачу из любой точки мира) Бойлер на 100 литровСептик Дом с чистовой отделкой, сделан ремонт в светлых тонах: теплые полы, керамогранит, натяжные потолки, межкомнатные двери. В начале улицы конечная остановка автобуса № 120, который едет до города, останавливается школьный автобус, рядом ж/д остановка электрички, едет до Екатеринбурга. Также в начале улицы есть газ. Звоните, покажу по предварительной договоренности. ID объекта в нашей базе: 17413
    размещено: 02.06.2025 , обновлено: 16.09.2025

    Коттедж - д. Поварня, ул. Лесная, 21а

    городской округ Белоярский (Тюменское направление)
    Центр Екатеринбурга → 32 км
    • 146 м2
    • 8 соток
    • 2 этажа
    • Состояние: хорошее
    7 800 000 ₽
    Продается двухэтажный дом в д. Поварня, 146 м2, три спальни, кухня-гостиная, бойлерная, санузел. Участок ИЖС 8 соток, к дому подведен газ. Автономная канализация, скважина, электричество.Участок огорожен забором.Под семейную ипотеку не подходит.Звоните, согласуем удобное время показа. ID объекта в нашей базе: 17328
    размещено: 22.04.2025 , обновлено: 22.09.2025

    Дом - д. Поварня, ул. ДНТ Сысертское, 34

    городской округ Белоярский (Тюменское направление)
    Центр Екатеринбурга → 32 км
    • 159.8 м2
    • 6.8 соток
    • 1 этаж
    8 000 000 ₽
    Объект №422. Продаётся дом с отделкой "под ключ" в ДНТ СысертскоеПродаётся просторный и светлый дом площадью 159,8 м² на участке 6,8 сотки. Дом выполнен с чистовой отделкой "под ключ" и полностью готов к проживанию — завозите мебель и живите с первого дня.Планировка:Просторная кухня-гостиная – удобное и уютное пространство для всей семьиТри спальни – для комфортного размещения всех членов семьиСанузел – с отделкой и всей необходимой сантехникойКотельная – функциональное техническое помещениеТерраса – отличное место для отдыха на свежем воздухеГараж – вместительный и утеплённыйО посёлке:Дом находится в ДНТ СысертскоеТихое и спокойное место, идеально для проживания круглый год или как загородная резиденцияДополнительные преимущества:Качественная отделка дома "под ключ"Возможность приобретения по льготной ипотекеИдеальный вариант для тех, кто ищет просторный и надёжный дом в окружении природы, вдали от городского шума.Свяжитесь с нами, чтобы узнать подробности и записаться на просмотр!
    размещено: 08.04.2025 , обновлено: 15.09.2025

    Дом - д. Поварня, ул. Свой дом, 7А

    городской округ Белоярский (Тюменское направление)
    Центр Екатеринбурга → 32 км
    • 90 м2
    • 10 соток
    • 2 этажа
    4 200 000 ₽
    Объект № 186450. В продаже просторный дом-баня на участке 10 соток. Баня из сруба 5*6 метров, к ней сделан пристрой из бруса. Все помещения утеплены по полу и стенам, второй этаж тоже утеплен. Электричество подведено, есть скважина, газ по границе участка. На участке есть теплица, смородина, малина, вишня. ***Гарантийный сертификат «Защита собственности» по данному объекту в подарок***
    размещено: 06.09.2024 , обновлено: 1.10.2025

    Коттедж - д. Поварня, ул. Ленина, 68

    городской округ Белоярский (Тюменское направление)
    Центр Екатеринбурга → 32 км
    • 236.6 м2
    • 17 соток
    • 2 этажа
    • Состояние: хорошее
    19 997 700 ₽
    Продам Коттедж в Центре с. Поварня !!!Площадь: 236,6 кв. м.Коттедж построен из пеноблоков и облицован красным кирпичом.Потолки 3 метра, есть балкон.Электроснабжение на 380V.На первом этаже:прихожая с шкафом купекухня-гостиная с гарнитуром из натурального камняВстроенная техника:посудомоечная машинавстроенный холодильникгазовая варочная поверхность и электрический духовой шкаф.Камин.Второй вход в дом со двора:холодное помещением 16м2(хоз.комната)сухой погреб площадью 8 кв.м.котельнаябаня 17,5м2(предбанник, помывочная и парная).Баня из бруса и обложена кирпичом, отапливается газовым котлом или дровами.Система отопления коттеджа - автономная, с помощью газового котла, так же имеется резервный электрический котел и генератор мощностью 10 кВт.Внутренняя отделка стен штукатурка и евровагонка, полы ламинат и дерево, покрытое лаком.На втором этаже:спальнякабинетбольшая гостинаяс/у с душевой кабиной.Полы теплые в санузлах, натяжные потолки по всему дому.Остается:кухня и техникаснегоуборочная техника на гусеницахмотоблокгазонокосилки 3шт.Молниеотвод.Видеонаблюдение - 7 камер!Участок:1 бассейн размером 6*5м.2 бассейн 1,5*2,5м на участке для домашней птицы, также для птиц есть отдельные отапливаемые помещение 10м2, 3м2 и 20м2 (этим помещениям можно найти другое назначение).Растет: дикий виноградельпихта5 яблоньвишнясливагрушасмородинакрыжовникмалинадекоративные кустарникиклубника2 теплицы стеклянные 3*6 и 1,5*4.Оборудована автономная система полива, бак на 2 куб и 2 бака на 1,5 куб.Для летнего отдыха есть беседка площадью 3*5 м.Два паркинга у дома и один подземный - в самом доме, ворота автоматические.Ждём вас на просмотр !!! ID объекта в нашей базе: 5198
    размещено: 08.12.2023 , обновлено: 19.09.2025

Предложения о продаже земельных участков в д. Поварня

Внимание! Данная рубрика предназначена для лотов по жилой недвижимости. Коммерческая недвижимость здесь.

  • Участок в д. Поварня, ул. Кленовая

    городской округ Белоярский (Тюменское направление)
    Центр Екатеринбурга → 32 км
    • 6 соток
    700 000 ₽
    Продам участок 6,22 сотки в п. Поварня, в 20 км от Екатеринбурга по Тюменскому тракту. Улица Кленовая, кадастровый номер 66:06:0501003:936. На участок получены тех условия на 15 кВт, и подведена электроэнергия на щиток. В поселке идет активная застройка. Земли населённых пунктов, под индивидуальное жилищное строительство. Земля в собственности! Торг при покупке. ID объекта в нашей базе: 2924
    размещено: 23.04.2025 , обновлено: 29.07.2025
  • Участок в д. Поварня, ул. Кленовая, 84

    городской округ Белоярский (Тюменское направление)
    Центр Екатеринбурга → 32 км
    • 8 соток
    • Эл.
    • Газ
    900 000 ₽
    Объект № 190464. Продаётся участок 8 соток в деревне Поварня (Белоярский район, Свердловская область). Участок расположен в низине у поймы реки Бобровка — живописное и тихое место рядом с лесом. ИЖС. Хороший подъезд. Чистый воздух и природа вокруг. Электричество подключено, рядом построены дома, ведётся газификация. В деревне есть магазины, аптеки, пункты выдачи маркетплейсов. Получен ГПЗУ — можно сразу приступать к строительству! Отличное место для дома или дачи. Звоните, участок готов к продаже!
    размещено: 27.03.2025 , обновлено: 1.10.2025

Приоритет

Увеличивает просмотры в 3 раза

Ваше объявление показывается в списке выше обычных объявлений. подключить