Дом - ул. Бобровый, 24
Екатеринбург, Медный
Дом 100 м² + мансарда 40 м² забор по периметру, в посёлке Медный — городская прописка!
Почему выбирают ZAGOROD Estate :
Строим дома с 2015 года, более 350 семей живут в домах от компании
30+ готовых домов в лучших локациях Екатеринбурга
Ипотека и покупка:
— Семейная ипотека (дети до 18 лет)
— IT-ипотека
— Сельская ипотека 3%
— Рассрочка и 100% оплата
Система «умный дом» в подарок:
— дистанционное управление светом и отоплением
— защита от протечек и автоматическое перекрытие воды
— система безопасности и анализатор воздуха
Характеристики дома:
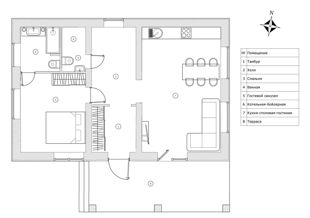
• Общая площадь: 100 м² + мансарда 40 м²
• 3 спальни (включая мастер-спальню с гардеробной и санузлом)
• Кухня-гостиная с панорамными окнами
• 2 санузла
• Просторная терраса 40 м²
• Фасад: дерево + декоративная штукатурка
Конструктив:
— Фундамент: свайно-ленточный с монолитной плитой
— Стены: газобетон с утеплением
— Кровля: металлочерепица
— Окна: 5-камерные профили, двухкамерные стеклопакеты, теплый контур на окнах
— Коммуникации: электричество, скважина, септик
Посёлок «Медный2»
— Удобная транспортная доступность: 10 минут до Екатеринбурга
Запишитесь на экскурсию в демонстрационный дом, чтобы увидеть всё своими глазами и получить каталог домов!
Добавьте в избранное, чтобы не потерять свой будущий дом в пос. Медный2
Кстати: Мы единственная строительная компания в регионе, у которой есть целая Демо-улица с готовыми домами. Здесь можно посмотреть разные планировки, качество строительства и почувствовать атмосферу загородной жизни. Хотите посетить Демо-улицу? Напишите нам в сообщении «ДЕМО» — расскажем подробно и запишем на удобное время для просмотра.
размещено: 17.03.2026
, обновлено: 18.04.2026












