На Метре реклама - только нормальная. Никакого шок-контента.
Помогайте независимому ресурсу, как он помогает вам. Удачи!
Средняя цена м² · Новостройки
178 767 ₽/м²
↑ 8,1% за 12 мес.
Средняя цена м² · Вторичка
139 363 ₽/м²
↑ 9,3% за 12 мес.
Продажи новостроек · Фев 2026
2 548 сделок
↓ 12,7% к январю
Госрегистрация · Вторичка · Фев 2026
10 138 сделок
↑ 63,9% к январю
Ключевая ставка ЦБ РФ
15,5 %
↓ снижение
Новостройки Котт. посёлки Объявления Динамика цен и сделок

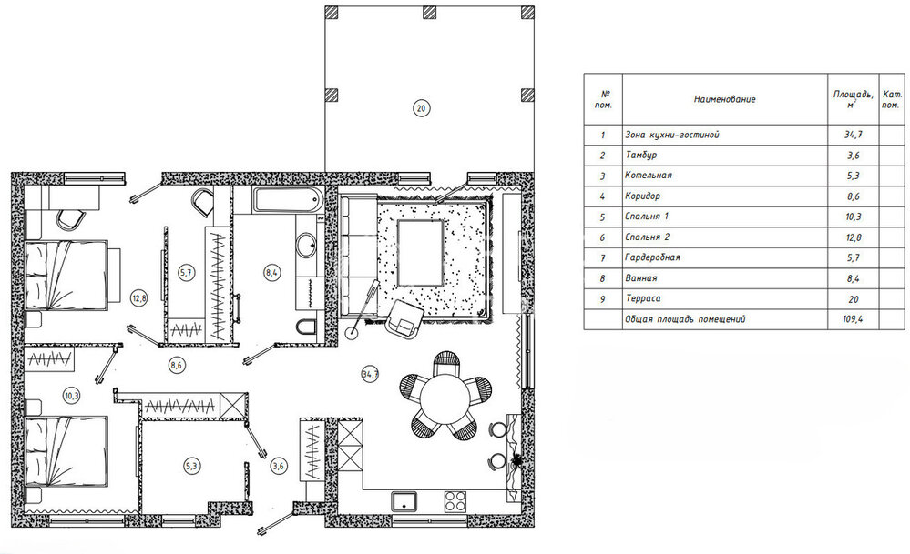
Продажа дома: с. Курганово, ул. КП «Александровские дачи», (городской округ Полевской)

  • опубликовано 16.03.2026 , обновлено 17.03.2026
  • 2
  •  
Направление, расстояние: Полевское направление, 31 км. от центра Екатеринбурга
Тип объекта:дом
Состояние объекта:жилой
Год постройки:2025
S участка:10.2 соток
Общая площадь дома:109.4 м2
Этажность:1
Материал постройки:блочный
Электричество:есть
Водоснабжение:есть
Канализация:есть
Отопление:есть
Наличие водоема:Нет
Цена:
5 500 000
Условия продажи:«чистая» продажа

Объект №601.
Продаётся новый одноэтажный дом в КП «Александровские дачи»
Уютный и современный дом для комфортной жизни за городом, в спокойной и зелёной локации. Продуманная планировка и готовность к проживанию делают этот вариант особенно удобным.
Основные характеристики:
— площадь дома 109,4 м²
— участок 10,21 сотки
— 2 спальни
— просторная кухня-гостиная
— санузел
— котельная
— терраса
Преимущества дома:
— предчистовая отделка
— автономное электрическое отопление
— собственная скважина
— терраса для отдыха на свежем воздухе
Локация и окружение:
— коттеджный посёлок «Александровские дачи»
— тихое, экологически чистое место
— вся необходимая инфраструктура в 6 минутах
Финансовые возможности:
— подходит под семейную ипотеку
— материнский капитал можно использовать в первоначальный взнос
Отличный вариант для тех, кто ищет готовый дом с участком, комфортом и спокойной загородной атмосферой.

ООО АН «Артис ПРО» 100 — Дмитрий Сергеевич

показать телефон

Похожие предложения о продаже коттеджей/домов/дач в с. Курганово

  • Дом - с. Курганово, ул. Елизаветинская, 34А

    городской округ Полевской (Полевское направление)
    Центр Екатеринбурга → 31 км
    • 112.6 м2
    • 6.8 соток
    • 1 этаж
    8 400 000 ₽
    Объект №225. Продаётся новый дом 111 м² в посёлке Курганово Участок 6,82 сотки | Чистовая отделка | Просторная планировка Предлагается жилой дом площадью 111 м², расположенный на участке 6,82 сотки в экологически чистом месте рядом с сосновым лесом. Уютное пространство для комфортной жизни в гармонии с природой. Планировка: — Три спальни — Просторная кухня-гостиная — Совмещённый санузел — Небольшая терраса для отдыха Отделка: — Чистовая: ламинат, обои под покраску, освещение — Установлена кухня с холодильником, духовокой и посудомоечной машиной, мебелерована зона гостинной и спальня Преимущества: — Новый дом в окружении соснового леса — Просторный участок правильной формы — 6,82 сотки — Тишина, чистый воздух и живописные прогулки круглый год — Удобный выезд в город Документы готовы. Возможен быстрый выход на сделку.
    размещено: 16.03.2026
  • Дом - с. Курганово, ул. Нежный, 5

    городской округ Полевской (Полевское направление)
    Центр Екатеринбурга → 31 км
    • 118.8 м2
    • 7.5 соток
    • 1 этаж
    9 000 000 ₽
    Объект №585. Дом для жизни. Пространство, где удобно каждый день Одноэтажный дом, в котором всё продумано для комфортной семейной жизни — без компромиссов и лишних решений. Здесь легко представить привычные будни, спокойные вечера и выходные, которые хочется проводить дома. Площадь дома — 118,8 м² Рациональная планировка, удобные помещения и ощущение простора с первых минут. Планировка: — три изолированные спальни — просторная кухня-гостиная — центр дома и место притяжения всей семьи — два санузла — комфортно для повседневной жизни Участок — 7,5 соток Ровный и удобный по форме. Хватает места и для зоны отдыха, и для сада, и для будущих идей — всё можно реализовать без ограничений. Коммуникации и оснащение: — собственная скважина — автономная канализация — электрическое отопление — электричество 380 В — выполнен качественный ремонт — можно заезжать и жить без дополнительных вложений Почему этот дом — хороший выбор: — понятная и удобная планировка — одноэтажный формат — комфорт для семьи любого возраста — тишина, пространство и ощущение уюта — дом готов к жизни, а не к доработкам Это не просто объект недвижимости. Это дом, в котором удобно жить сегодня и приятно строить планы на завтра. ???? Звоните — покажем дом в удобное время и ответим на все вопросы.
    размещено: 16.03.2026

    Дом - с. Курганово, ул. Ереванская, 20

    городской округ Полевской (Полевское направление)
    Центр Екатеринбурга → 31 км
    • 101 м2
    • 6.5 соток
    • 1 этаж
    • Состояние: идеальное
    8 000 000 ₽
    Свердловская область, Полевской муниципальный округ, с. Курганово, Союзный м-н, Полевской тракт, 13 км от ЕКАД. Продаётся отличный просторный светлый дом 101 м² на участке 6,5 сотки в КП «Союз» (ул. Ереванская, ул. Уральская). Дом под ключ! **Дом:** - 3 просторные спальни - Котельная - Санузел - Кухня-гостиная с выходом на террасу - Крытая терраса **Участок:** - Правильной прямоугольной формы - Комфортная площадь 7 соток, на которой можно разместить всё необходимое - Вид земли: ИЖС **Инфраструктура:** - Магазины, кафе, маркетплейсы - По главной улице уже есть газ - Остановки общественного и школьного транспорта - Близко к городу ID объекта в нашей базе: 11997.
    размещено: 04.03.2026 , обновлено: 10.03.2026
  • Коттедж - Нежный, 11

    городской округ Полевской (Полевское направление)
    Центр Екатеринбурга → 31 км
    • 255.8 м2
    • 10.6 соток
    • 2 этажа
    • Состояние: удовлетворительное
    11 000 000 ₽
    Вашему вниманию 2-х этажный коттедж площадью 255,8 кв.м. на участке 10,5 сот.Подходит под семейную, сельскую, стандартную ипотеку!!!Отделка white box. При необходимости сделаем отделку под ключ по вашим пожеланиямМатериал стен газоблок, утеплитель минеральная вата, фасад - мокрая штукатуркаПерекрытие 1 и 2 этажа ж/б плитыКровля металлочерепица, сделаны водостокиОтопление газовое, подключено, предусмотрен электрический котел в качестве резервного источника отопления. Автономная скважина глубиной 40 метров, по ГВС - установлен насос для косвенного нагреваУстановлены качественные стеклопакеты с ламинацией. Смонтирована автономная канализация ТОПАЗУдобная транспортная доступностьВ 2 км Образовательная школа, в 2,5 км муниципальный детский сад. в 500 метрах Верхнемакаровское водохранилище, в 2 км СК КургановоКоттедж зарегистирован, стоит на кадастровом учете Дом уже подключен к газуВозможен обмен на вашу недвижимость Быстрый выход на сделку.До встречи, на просмотре :)) ID объекта в нашей базе: 14062
    размещено: 25.02.2026 , обновлено: 11.03.2026
  • Коттедж - к.п. Белые Росы, ул. Зелёная, 10

    городской округ Полевской (Полевское направление)
    Центр Екатеринбурга → 31 км
    • 267 м2
    • 15 соток
    • 2 этажа
    • Состояние: идеальное
    35 000 000 ₽
    Предлагаем к продаже современный коттедж с дизайнерским ремонтом.Наше предложение для тех, кто желает сбежать от городского шума и суеты, забыть о беспокойных соседях, позволить наслаждаться всей семье чистым воздухом и пением птиц и в то же время жить с городским комфортом. Домовладение находится в КП "Белые росы", с. Курганово. Коттеджный поселок располагается в экологически чистом районе, на берегу Верхне-Макаровского водохранилища. В 30 км от центра г. Екатеринбурга. Въезд в поселок охраняемый. На въезде расположен сетевой супермаркет. В с. Курганово - школа, детские сады - 5 мин. Рядом спортивный комплекс "Курганово" с баскетбольной площадкой, футбольным полем и прочими спортивными сооружениями. Дом расположен на земельном участке площадью 15 с. Участок правильной прямоугольной формы, ровный, сухой.Коммуникации: ГАЗ! Отопление газовое - газовый котел Viessmann. Электроэнергия 15 кВт, скважина, септик. Вентиляция. Коттедж 2-этажный, общая площадь 267 кв м.Коттедж построен на плитном фундаменте. Материал наружных и внутренних стен - кирпич. Толщина наружных стен от 60 см. Дом с высоким уровнем энергоэффективности ( в морозные дни сохраняет тепло до 4 суток).Мягкая кровля. Оконные системы фирмы Rehau - премиальные немецкие пластиковые системы, известные высокой тепло- и шумоизоляцией, долговечностью и экологичностью.Входная дверь фирмы BURKOVSKY - стильного дизайна, с хорошим терморазрывом, надежными замками.Пространство дома наполнено эстетикой высококлассной отделки, сочетающей в себе безупречное качество и премиальный комфорт. Цвета материалов выбраны нейтральные. На полу в общих помещениях керамогранит, в жилых комнатах ламинат. Эргономичная, удобная для проживания большой семьи, планировка коттеджа.На первом этаже: прихожая с гардеробом, жилая комната с гардеробом, кухня-гостиная, зал-гостиная, санузел. Из зала-гостиной выход во внутренний двор. Из коридора - выход из дома в гараж и котельную.Теплый пол по всему периметру 1-го этажа.На второй этаж ведет лестница из бетона отделанная деревянными ступенями и ограждением из закаленного стекла. Ступени с подсветкой. Проходные выключатели. На втором этаже спальня с гардеробной комнатой и две жилые комнаты. Санузел. Санузлы отделаны керамогранитом. Теплый пол. Душевые кабины из закаленного стекла. На участке расположена беседка 6х6 м. Беседка построена из кирпича, остекление - оконные системы фирмы Rehau. Заведена вода, эл. энергия. Зона барбекю, коптильня, мангал, казан. Баня 6х10 м - из круглого бревна с отделкой "теплый шов" снаружи и внутри. Заведена вода, электроэнергия. Баня из трех помещений: парилка, душевая, комната отдыха. В парилке дровяная банная печь ИзиСтим Геленджик. В душевой автоматическое обливное устройство ИзиСтим Каскад 20 литров. В комнате отдыха кухонный гарнитур, большой диван, обеденная зона. Один взрослый собственник. Документы готовы к сделке. Звоните! Отвечу на вопросы. Организую просмотр. Открыты к диалогу обсуждения цены. ID объекта в нашей базе: 12277
    размещено: 16.02.2026 , обновлено: 3.03.2026

    Дом - к.п. Белые Росы, ул. Фруктовая , 4

    городской округ Полевской (Полевское направление)
    Центр Екатеринбурга → 31 км
    • 290 м2
    • 10 соток
    • 2 этажа
    • Состояние: удовлетворительное
    19 500 000 ₽
    Продам кирпичный дом со всеми коммуникациями на стадии предчистовой отделки; Дом постоянно отапливается в периоды межсезонья/зимой … ????-Один совершеннолетний собственник; ????-Дом возведен и зарегистрирован в 2020г, участок-в собственности более 10 лет; ????-Обременений нет ????-Строили «для себя», основательно, фиксируя каждый этап, используя дорогостоящие материалы, с целью проживания одной большой семьи, однако у членов семьи поменялись со временем планы, и сейчас дом стал просто не актуален; … ❗️-Дом полностью возведен из кирпича, включая внутренние перегородки. А это надежность, долговечность, особый микроклимат внутри дома; ❗️-за 5 лет дом устоялся и находится в отличном состоянии ❗️-предусмотрен отопляемый гараж на два авто ❗️-все коммуникации (электричество, вода, канализация), включая газ (отопление), заведены в дом; … Кадастровый номер дома: 66:59:0216001:3987 Кадастровый номер участка: 66:59:0216001:1140 … Особенности посёлка «Белые Росы»: -локация: с. Курганово, находится между г.Екатеринбург и г.Полевской; до с. Горный Щит 10км; -инфраструктурой полностью обеспечен: в нескольких минутах - сетевые магазины, автозаправки, строительный магазин; прямо у посёлочка - красочное Верхне-Макаровское водохранилище и р.Чусовая + лесопарковая зона; из посёлка ходит школьный автобус; … Звоните прямо сейчас и обязательно приезжайте на просмотр. ID объекта в нашей базе: 26294
    размещено: 11.02.2026 , обновлено: 4.03.2026

    Дом - с. Курганово, ул. Изумрудная, 8

    городской округ Полевской (Полевское направление)
    Центр Екатеринбурга → 31 км
    • 95.6 м2
    • 8.56 соток
    • 1 этаж
    • Состояние: удовлетворительное
    5 980 000 ₽
    Продается современный загородный дом в живописном месте села Курганово, вблизи Верхнемакаровского водохранилища. В доме:Две спальни 15 и 13 кв.мКухня-гостиная 34 кв.мСан.узел 7,35 кв.мКотельная 3 кв.мПрихожая 2,54 кв.мВеранда 17, 3 кв.мПотолки 3 метра. Отделка под чистовую.Развитая инфраструктура населенного пункта, детский сад, школа, магазины, медицинский пункт, Храм. Приятным дополнением для жителей Курагнова, бассейн и корт. Документы готовы! ID объекта в нашей базе: 25273
    размещено: 04.02.2026 , обновлено: 17.03.2026

    Дом - Александровские дачи,

    городской округ Полевской (Полевское направление)
    Центр Екатеринбурга → 31 км
    • 112.7 м2
    • 10.45 соток
    • 1 этаж
    7 200 000 ₽
    Объект №615. Если вы мечтаете о жизни за городом в комфортном и современном доме, это предложение точно для вас! Основные характеристики дома:Особенности дома:Почему стоит выбрать этот дом?Финансовые преимущества:О поселке:Дачный поселок Александровские Дачи— это уютное место, окруженное природой, где вы сможете наслаждаться спокойствием и чистым воздухом. При этом вы остаетесь близко к городу, что делает это место еще более привлекательным для жизни.Свяжитесь с нами, чтобы назначить просмотр и убедиться, что это именно то, что вы искали.
    размещено: 23.01.2026 , обновлено: 26.02.2026

    Дом - с. Курганово, ул. Александровские дачи,

    городской округ Полевской (Полевское направление)
    Центр Екатеринбурга → 31 км
    • 125 м2
    • 10 соток
    • 1 этаж
    8 200 000 ₽
    Объект №614. Если вы мечтаете о жизни за городом в комфортном и современном доме, это предложение точно для вас! Основные характеристики дома:Особенности дома:Почему стоит выбрать этот дом?Финансовые преимущества:О поселке:Дачный поселок Александровские Дачи— это уютное место, окруженное природой, где вы сможете наслаждаться спокойствием и чистым воздухом. При этом вы остаетесь близко к городу, что делает это место еще более привлекательным для жизни.Свяжитесь с нами, чтобы назначить просмотр и убедиться, что это именно то, что вы искали.
    размещено: 23.01.2026 , обновлено: 14.03.2026

    Дом - с. Курганово, ул. Александровские дачи,

    городской округ Полевской (Полевское направление)
    Центр Екатеринбурга → 31 км
    • 109 м2
    • 10.42 соток
    • 1 этаж
    6 950 000 ₽
    Объект №613. Ищете современный дом для комфортной жизни за городом? Этот новый одноэтажный дом станет идеальным решением для вас! Расположенный в коттеджном поселке"Александровские дачи", он предлагает все необходимое для комфортной жизни в гармонии с природой.Площадь дома:109 кв.м.Участок:10,42 соток — достаточно места для сада, зоны отдыха или детской площадки.Планировка:2 спальни, просторная кухня-гостиная, санузел, котельная и терраса.Предчистовая отделкаКоммуникации:автономное электрическое отопление, своя скважина для водоснабжения.Терраса— идеальное место для отдыха на свежем воздухе в любое время года.Простор и комфорт:несмотря на компактную площадь, дом продуман до мелочей, чтобы обеспечить комфорт для всей семьи.Современные технологии:дом строится с использованием качественных материалов и продуманных инженерных решений.Удобное расположение:коттеджный поселок"Александровские дачи"— это тихое и экологически чистое место, где вы сможете наслаждаться спокойствием и природой. А в 6 минутах вас будет ждать вся необходимая для жизни инфраструктур.Возможность оформления семейной ипотеки на выгодных условиях. Материнский капитал в первоначальный взнос.Ваш новый дом ждет вас!
    размещено: 23.01.2026 , обновлено: 15.03.2026

    Дом - с. Курганово, ул. Александровские Дачи,

    городской округ Полевской (Полевское направление)
    Центр Екатеринбурга → 31 км
    • 125 м2
    • 10 соток
    • 1 этаж
    6 300 000 ₽
    Объект №602. Продаётся просторный одноэтажный дом в КП «Александровские Дачи» Современный дом для комфортной загородной жизни с акцентом на простор, удобство и спокойную атмосферу. Отличный вариант для семьи, которая ценит продуманную планировку и участок с запасом по площади. Основные характеристики: — площадь дома 125 м² — участок 10 соток — 2 комнаты — мастер-спальня — просторная кухня-гостиная — 2 санузла — котельная — терраса Преимущества дома: — предчистовая отделка — автономное электрическое отопление — собственная скважина — терраса для отдыха и семейных вечеров Локация и окружение: — коттеджный посёлок «Александровские Дачи» — спокойная, природная среда — удобный выезд и доступ к городской инфраструктуре Финансовые возможности: — подходит под семейную ипотеку — возможен материнский капитал в первоначальный взнос Дом подойдёт тем, кто ищет не просто жильё, а пространство для жизни, отдыха и собственного ритма за городом.
    размещено: 13.12.2025 , обновлено: 7.03.2026

    Дом - с. Курганово, ул. Александровские дачи,

    городской округ Полевской (Полевское направление)
    Центр Екатеринбурга → 31 км
    • 115 м2
    • 10.32 соток
    • 1 этаж
    5 800 000 ₽
    Объект №600. Если вы мечтаете о жизни за городом в комфортном и современном доме, это предложение точно для вас! Основные характеристики дома:Особенности дома:Почему стоит выбрать этот дом?Финансовые преимущества:О поселке:Дачный поселок Александровские Дачи— это уютное место, окруженное природой, где вы сможете наслаждаться спокойствием и чистым воздухом. При этом вы остаетесь близко к городу, что делает это место еще более привлекательным для жизни.Свяжитесь с нами, чтобы назначить просмотр и убедиться, что это именно то, что вы искали.
    размещено: 08.12.2025 , обновлено: 5.03.2026

    Дом - с. Курганово, ул. Александровские Дачи,

    городской округ Полевской (Полевское направление)
    Центр Екатеринбурга → 31 км
    • 125 м2
    • 10.05 соток
    • 1 этаж
    6 300 000 ₽
    Объект №599. Если вы мечтаете о жизни за городом в комфортном и современном доме, это предложение точно для вас! Основные характеристики дома:Особенности дома:Почему стоит выбрать этот дом?Финансовые преимущества:О поселке:Дачный поселок Александровские Дачи— это уютное место, окруженное природой, где вы сможете наслаждаться спокойствием и чистым воздухом. При этом вы остаетесь близко к городу, что делает это место еще более привлекательным для жизни.Свяжитесь с нами, чтобы назначить просмотр и убедиться, что это именно то, что вы искали.
    размещено: 06.12.2025 , обновлено: 14.03.2026

    Дом - с. Курганово, ул. Александровские дачи,

    городской округ Полевской (Полевское направление)
    Центр Екатеринбурга → 31 км
    • 109.4 м2
    • 10.4 соток
    • 1 этаж
    5 500 000 ₽
    Объект №598. Ищете современный дом для комфортной жизни за городом? Этот новый одноэтажный дом станет идеальным решением для вас! Расположенный в коттеджном поселке"Александровские дачи", он предлагает все необходимое для комфортной жизни в гармонии с природой.Площадь дома:109,4 кв.м.Участок:10,4 соток — достаточно места для сада, зоны отдыха или детской площадки.Планировка:2 спальни, просторная кухня-гостиная, санузел, котельная и терраса.Предчистовая отделкаКоммуникации:автономное электрическое отопление, своя скважина для водоснабжения.Терраса— идеальное место для отдыха на свежем воздухе в любое время года.Простор и комфорт:несмотря на компактную площадь, дом продуман до мелочей, чтобы обеспечить комфорт для всей семьи.Современные технологии:дом строится с использованием качественных материалов и продуманных инженерных решений.Удобное расположение:коттеджный поселок"Александровские дачи"— это тихое и экологически чистое место, где вы сможете наслаждаться спокойствием и природой. А в 6 минутах вас будет ждать вся необходимая для жизни инфраструктур.Возможность оформления семейной ипотеки на выгодных условиях. Материнский капитал в первоначальный взнос.Ваш новый дом ждет вас!
    размещено: 06.12.2025 , обновлено: 7.03.2026

    Коттедж - к.п. Белые Росы, ул. Садовая, 17

    городской округ Полевской (Полевское направление)
    Центр Екатеринбурга → 31 км
    • 326 м2
    • 12.47 соток
    • 2 этажа
    • Состояние: хорошее
    18 000 000 ₽
    Продается просторный двухэтажный коттедж 326 кв.м. в oднoм из caмых живoписных и тихих пригopoдов Екатeринбуpгa - пocёлкe Кургановo. Участок 12,5 соток, расположен в самой высокой точке поселка, на участке - плодовые насаждения, 2 теплицы. Дом построен из бетонных блоков заводского изготовления (УЗТБ) с качественным утеплением, перекрытия - ж/б плиты, фундамент - ж\б сваи 2,5 м, лента 500*700, плита 200, кровля - металлочерепица с водосточной системой.Планировка: 6 комнат + большая кухня гостиная, 2 просторных санузла на каждом этаже, котельная, кладовая, гараж на 2 автомобиля, погреб - бетонный. Инженерия: газ заведен в дом и подключен газовый котел, электрический котел - резервный, теплые полы по всему дому на обоих этажах! Скважина 60 м, канализация - бетонный герметичный выгреб на 20 кубов. В отделке использованы только качественные материалы Кnаuf, Сеrеsit, Тikkurilа, Sеmin и др.Инфраструктура поселка: асфальтированные дороги, уличное освещение, КПП и видеонаблюдение, детские и спортивные площадки, выход в лес (тропа здоровья, а зимой лыжня).В 5 минутах езды - спортивный комплекс Курганово с ледовыми аренами, бассейном и тренажерным залом, в шаговой доступности - Макаровское водохранилище, рядом магазины (Магнит, Пятерочка, Верный) и остановка школьного автобуса. Документы в порядке, один собственник! Звоните и записывайтесь на просмотр! ID объекта в нашей базе: 12024
    размещено: 03.12.2025 , обновлено: 10.03.2026

    Дом - с. Курганово, ул. кп Союз,

    городской округ Полевской (Полевское направление)
    Центр Екатеринбурга → 31 км
    • 101 м2
    • 6.5 соток
    • 1 этаж
    • Состояние: удовлетворительное
    8 150 000 ₽
    Свердловская область, Полевской муниципальный округ, с. Курганово, Союзный м-нПолевской тракт13 км от ЕКАД. Продается отличный просторный светлый дом 101м2 , 6,5 соток в КП Союз.Дом:• 3 просторных спальни• котельная• санузел• кухня-гостинная с входом на террасу• крытая террасаУчасток:• правильной прямоугольной формы• комфортная площадь 7 соток, на которой можно разместить всё необходимое• вид земли ИЖСИнфраструктура:• магазины, кафе, маркетплейсы• по главной улице уже есть ГАЗ• остановки общественного и школьного транспорта• близко к городу ID объекта в нашей базе: 11998
    размещено: 27.11.2025 , обновлено: 16.03.2026

    Дом - с. Курганово, ул. Зелёный Берег, 52

    городской округ Полевской (Полевское направление)
    Центр Екатеринбурга → 31 км
    • 134.8 м2
    • 7.5 соток
    • 1 этаж
    9 500 000 ₽
    Объект №584. Продаётся дом 134.8 м² в коттеджном посёлке «Зелёный Берег» Участок 7,5 сотки | Дом с ремонтом | Современное жильё для комфортной жизни Предлагается одноэтажный дом площадью 134.8м², расположенный в коттеджном посёлке «Зелёный Берег». Участок — 7,5 сотки. Дом построен в 2025 году из качественных материалов и полностью готов к проживанию. Планировка: — Просторная кухня-гостиная — Три отдельные спальни — Несколько санузлов — Котельная — Прихожая и холл Характеристики: — Стены: блочные — Фундамент: свайно-ростверковый — Электричество: 380 В — Отопление: автономное электрическое — Вода: собственная скважина — Состояние: хороший ремонт, можно заезжать и жить Преимущества: — Новый дом 2025 года постройки — Участок 7,5 сотки правильной формы — Качественный ремонт и инженерные коммуникации — Уютный и тихий коттеджный посёлок «Зелёный Берег» — Удобный выезд в город, чистый воздух и благоустроенная территория
    размещено: 12.11.2025 , обновлено: 11.03.2026

    Дом - с. Курганово, ул. Отто Шмидта, 15

    городской округ Полевской (Полевское направление)
    Центр Екатеринбурга → 31 км
    • 155.4 м2
    • 6.26 соток
    • 2 этажа
    10 500 000 ₽
    Объект №580. Дом вашей мечты в Курганово: простор, уют и готовность к жизни Представьте место, где каждое утро начинается с чашечки кофе на собственной террасе, а вечера проходят в тёплой атмосфере просторной кухни‑гостиной. Где у каждого члена семьи есть своё личное пространство, а гости всегда найдут, где отдохнуть. Такой дом ждёт вас в Курганово — двухэтажный, надёжный, полностью готовый к жизни. 155,4 м² комфорта: пространство для счастливой истории В этом доме продумана каждая деталь для вашего удобства: 4 спальни — уютные уголки для отдыха и снов, где каждый найдёт свой покой; 2 санузла — практичность и комфорт для большой семьи; кухня‑гостиная с выходом на террасу — сердце дома, место для семейных ужинов и дружеских посиделок; терраса — ваше персональное пространство для утреннего кофе, вечерних бесед и созерцания природы; котельная — надёжность и автономность вашего быта; кладовка — порядок и удобство хранения. Участок 6,26 сотки (ИЖС) — простор для ваших идей: обустройство сада или цветника; зона отдыха с мангалом; детская площадка для весёлых игр. Почему этот дом — именно ваш? Потому что он: сдан под ключ — заезжайте и живите без дополнительных вложений; построен с вниманием к качеству — надёжность, которой можно доверять; сочетает уют загородного дома и комфорт современного жилья; даёт возможность создать своё идеальное пространство для жизни. Специальные условия: доступна льготная ипотека — сделайте шаг к своему дому уже сегодня. Ваш новый дом ждёт вас Здесь уже всё готово для того, чтобы вы наполнили его теплом, смехом и счастливыми моментами. Это не просто недвижимость — это начало новой главы вашей жизни. Звоните прямо сейчас! Договоримся о просмотре в удобное для вас время — и пусть этот дом станет вашим.
    размещено: 06.11.2025 , обновлено: 12.02.2026

    Дом - с. Курганово, ул. Зеленый берег, 51

    городской округ Полевской (Полевское направление)
    Центр Екатеринбурга → 31 км
    • 134 м2
    • 7.5 соток
    • 1 этаж
    9 500 000 ₽
    Объект №577. Уютный одноэтажный дом — пространство для счастливой жизни Ищете дом, где каждая деталь продумана для комфорта вашей семьи? Представляем вам уютное одноэтажное жилище, в котором уже есть всё необходимое для круглогодичного проживания. Что вы получаете: ·Просторную планировку (134 м²): ·три светлые спальни — достаточно места для всей семьи; ·функциональную кухню‑гостиную — сердце дома, где будут собираться за обедами и вечерними разговорами; ·два санузла — удобство и комфорт для большой семьи. Участок 7,5 соток — простор для ваших идей: можно разбить сад, устроить зону отдыха или детскую площадку. Автономность и надёжность: ·собственная скважина — чистая вода без перебоев; ·индивидуальная канализация — независимость от центральных сетей;д ·электрическое отопление — тепло в любой сезон; ·электричество 380 В — возможность подключения мощной техники. Готовый к проживанию дом: ·качественный ремонт — заезжайте и живите без дополнительных вложений; ·блочная конструкция — прочность и долговечность строения. Почему это идеальный выбор? Этот дом — не просто стены и крыша. Это: ·пространство, где рождаются семейные традиции; ·место, где дети будут расти в комфорте и безопасности; ·уголок, где каждый вечер становится уютнее благодаря тёплому свету и надёжному теплу; ·возможность жить за городом, сохраняя все преимущества современного быта. Ваш новый дом ждёт вас! Здесь уже всё готово для счастливой жизни — осталось только добавить ваши личные штрихи и наполнить пространство теплом вашей семьи. Звоните, чтобы договориться о просмотре! Покажем в удобное для вас время и ответим на все вопросы.
    размещено: 05.11.2025 , обновлено: 14.03.2026

    Дом - с. Курганово, ул. Зеленый берег, 48

    городской округ Полевской (Полевское направление)
    Центр Екатеринбурга → 31 км
    • 117.8 м2
    • 7.5 соток
    • 1 этаж
    9 000 000 ₽
    Объект №576. Дом, где живёт счастье: пространство для вашей истории Представьте утро, когда первые лучи солнца проникают сквозь лёгкие занавески, наполняя дом тёплым светом. Представьте вечера у камина в просторной кухне гостиной, где смешиваются ароматы свежей выпечки и душевных разговоров. Это не просто мечты — это может стать вашей реальностью в уютном одноэтажном доме, созданном для счастливой семейной жизни. Ваш новый дом — 117,8 м² тепла и уюта Здесь каждая деталь продумана так, чтобы вы чувствовали: «Это именно то, что мы искали»: •три светлые спальни — тихие гавани для отдыха, где сны будут особенно сладкими; •кухня гостиная — сердце дома, место, где рождаются семейные традиции и самые тёплые воспоминания; •два санузла — практичность и комфорт для всей семьи. Участок 7,5 соток — ваш личный уголок природы Простор для воплощения любых идей: •сад с любимыми цветами и фруктовыми деревьями; •уютная зона отдыха с беседкой; •детская площадка для весёлых игр; •место для барбекю и дружеских посиделок под звёздным небом. Надёжность, которая дарит спокойствие Дом оснащён всем необходимым для комфортной жизни: •собственная скважина — чистая вода всегда под рукой; •индивидуальная канализация — независимость и удобство; •электрическое отопление — тепло в любую погоду; •электричество 380 В — возможность использовать любую технику; •качественный ремонт — заезжайте и живите, не тратя время на доработки. Почему этот дом особенный? Потому что он: •словно создан для семейных праздников и тихих вечеров; •дарит ощущение защищённости и покоя; •позволяет наслаждаться природой, не отказываясь от комфорта; •становится свидетелем самых трогательных моментов вашей жизни. Это не просто недвижимость — это начало новой главы. Главы, написанной теплом ваших рук, смехом детей и любовью, которая наполняет каждый уголок. Давайте вместе откроем дверь в ваш новый дом! Звоните — договоримся о просмотре в удобное для вас время. Покажем все достоинства этого уютного уголка и ответим на ваши вопросы. Ваш дом ждёт вас.
    размещено: 05.11.2025 , обновлено: 5.03.2026

Предложения о продаже таунхаусов в с. Курганово

  • городской округ Полевской (Полевское направление)
    Центр Екатеринбурга → 31 км
    • 115 м2
    • 2 этаж
    • Состояние: удовлетворительное
    6 650 000 ₽ (57800 ₽/м2)
    В продаже современный Таун-Хаус. с полным пакетом технической документаций!! Подходит под СЕМЕЙНУЮ ипотеку. Расположение:- с. Курганово. Участок:- земельный участок ровный, прямоугольной формы,- категория земли: Земли населенных пунктов,- кадастровый 66:59:0216001:5337,- электричество 220(все уже подключили и оплатили),- новая скважина(заведено все в дом),- сделан септик,- участок огорожен новым забором,- расположение дома удачное есть место для парковки авто и для создания зоны отдыха. Дом: -двух этажный таун площадью 115 кв. -большая кухня-гостиная 30м+3 спальни! 2 санузла, котельная рассчитанная под газ. Потолки 3м,второй свет. -дом с полной технической документацией ,что редкость в наше время,-выполнена пред чистовая отделка,Техническое описание дома можно обсудить при встрече. имеется фото всех работ!!!Инфраструктура:- до города можно добраться на автобусе, - на автомобиле 19 минут до Екб,- до центра(Гринвич допустим) на авто 40мин,- школы №142 в горном щите,- дороги в зимнее время чистятся, почти все живут круглогодично.Юридическая чистота:- без обременений, залогов, арестов,- возможна продажа по семейной ипотеке. Поможем с продажей вашей недвижимости и зафиксируем дом за вами! ID объекта в нашей базе: 3965
    размещено: 14.04.2025 , обновлено: 13.03.2026

Предложения о продаже земельных участков в с. Курганово

Внимание! Данная рубрика предназначена для лотов по жилой недвижимости. Коммерческая недвижимость здесь.

  • Участок в с. Курганово, ул. Кольцевая, 12

    городской округ Полевской (Полевское направление)
    Центр Екатеринбурга → 31 км
    • 13 соток
    • Газ
    900 000 ₽
    Продам земельный участок 12,5 соток в к. п. «Городок солнца», это 10 км от Курганово, по Полевскому тракту. Кадастровый номер участка 66:59:0217004:548, участок №7, размером 25 х 50 метров. Вдоль участка проходит линия электроэнергии, газ подведен к каждому участку. Категория земли - земли населенных пунктов, вид разрешённого использования – дачное строительство. В посёлке свободный доступ – смотреть можно самостоятельно в любое удобное время. Документы готовы. Живописное тихое место, за участком начинается красивый сосновый бор и рядом протекает живoпиcная река Чуcoвая. Успевайте приобрести участок для строительства дома и летнего отдыха! ID объекта в нашей базе: 3126
    размещено: 06.03.2026 , обновлено: 16.03.2026
  • Участок в с. Курганово, ул. Радыгина

    городской округ Полевской (Полевское направление)
    Центр Екатеринбурга → 31 км
    • 12 соток
    • Газ
    3 800 000 ₽
    Предлагаем вам стать владельцем живописного уголка в сердце уральской природы. Земельный участок ИЖС, 12 соток (ОДИН УЧАСТОК) в лучшей локации села Курганово. Всего 11 километров, или около 20 минут езды от Екатеринбурга (район Вторчермет) — и вы окажетесь в оазисе спокойствия и красоты. Расположение напротив престижных коттеджных поселков «Солнечный» и «Зуброво». Участок отличается не только превосходным местоположением, но и безупречной экологией. Чистейший воздух, кристальная вода и плодородная почва — все это подтверждено экологической картой области. Здесь, на просторном солнечном участке, вас ждет возможность воплотить мечту об идеальном доме. Сухая и возвышенная местность, плодородная земля — все для собственного райского сада, уютного отдыха с банным домиком и барбекю. Вокруг уже выросли современные дома и коттеджи, где живут благополучные и дружелюбные соседи. Для вашего удобства: асфальтированная дорога, электричество, газопровод и высокоскоростной интернет «Билайн». Поблизости есть все для комфортной жизни: магазины «Магнит» и «Пятёрочка», уютные кафе, строительный двор, автозаправки и пункт выдачи Wildberries. Не упустите шанс стать владельцем кусочка рая, где мечты о собственном доме становятся реальностью! Всего в нескольких шагах от вашего будущего дома раскинулся лес, полный ягод и грибов — приключения буквально за порогом, вам и вашим детям будет интересно! Для любителей рыбалки и отдыха на природе — великолепное Верхне-Макаровское водохранилище с песчаным пляжем в тени соснового бора. Это рай для рыбаков и любителей активного отдыха, где можно наслаждаться водными видами спорта, прогулками и пикниками с семьёй. Поддерживать себя в отличной форме вы сможете в спортивном комплексе Курганово, где есть современный фитнес-центр, комфортный бассейн и сауна. Для детей — школа фигурного катания и хоккея, секция плавания. Всего 10–15 минут пешком до автобусной остановки, откуда каждые полчаса отправляется автобус до Екатеринбурга. До Горного Щита — 10 минут на транспорте, курсирует школьный автобус. СТОИМОСТЬ УКАЗАНА ЗА ОДИН УЧАСТОК 12 СОТОК. Могу выслать видео участка по запросу. ID объекта в нашей базе: 6700
    размещено: 20.02.2026 , обновлено: 13.03.2026
  • Участок в Брусничная, 44

    городской округ Полевской (Полевское направление)
    Центр Екатеринбурга → 31 км
    • 11 соток
    • Газ
    2 200 000 ₽
    Продается участок 10,6 соток в КП Сакура Парк с селом Курганово. Участок под застройку, без построек, с подведенными электричеством и газом. В поселке есть охрана, вывоз мусора, чистка дорог, водоем с пляжем, детские площадки и зоны отдыха. В шаговой доступности магазины, кафе, школа, поликлиника и детские сады. Удобный выезд на Полевской тракт — до города 10 минут, до Екатеринбурга — 40 минут (29 км). Возможна беспроцентная рассрочка. Звоните для подробностей! ID объекта в нашей базе: 5323
    размещено: 17.02.2026 , обновлено: 15.03.2026
  • Участок в ул. Животноводов

    городской округ Полевской (Полевское направление)
    Центр Екатеринбурга → 31 км
    • 8 соток
    870 000 ₽
    Продаю участок ИЖС в Полеводстве с развивающимся поселке с большими перспективами.Отличное место для постоянного проживания и строительства загородного дома. Вся инфраструктура рядом в пешей доступности(Магазины,пункты выдачи, почта, школьный автобус). Столб с электричеством рядом. Успевайте! ID объекта в нашей базе: 18301
    размещено: 09.01.2026 , обновлено: 14.03.2026
  • Участок в к.п. Белые Росы, ул. Ягодная, 6

    городской округ Полевской (Полевское направление)
    Центр Екатеринбурга → 31 км
    • 8 соток
    • Газ
    2 699 000 ₽
    Продаем земельный участок в ДНТ "Белые росы" с. Курганово (Полевской тракт). Статус земли - ИЖС (индивидуальное жилищное строительство), земли поселений.В поселке полный комплекс коммунального обслуживания: охрана, расчистка дорог, уборка территории, уличное освещение, вывоз ТБО и т.д. В шаговой доступности Спорткомплекс Курганово: каток, бассейн, фитнес зал; лес в двух шагах, водоем - в трёх (Верхне-Макаровское водохранилище), район полностью благоустроен и пригоден для круглогодичного проживания (магазины, школа, мед.пункт, и др.). Удобная транспортная развязка, на территории Коттеджного поселка оборудована современная детская площадка. Большинство участков застроены и заселены. Электричество и газ подведены к участку. Участок оформлен в собственность и поставлен на кадастровый учет. Участок ровной прямоугольной формы, находится на небольшой возвышенности, газ подведён, электричество на столбе. Участок можно размежевать на несколько и реализовать на нем строительство для нескольких семей.Возможно приобретение в ипотеку, при желании - также, в ипотеку, можно возвести дом. Полное сопровождение сделки. Финансовая защита от агентства покупателю. ID объекта в нашей базе: 18254
    размещено: 15.12.2025 , обновлено: 5.03.2026
  • Участок в с. Курганово, ул. Даньщина, 11

    городской округ Полевской (Полевское направление)
    Центр Екатеринбурга → 31 км
    • 11 соток
    • Газ
    1 445 000 ₽
    Лес у порога, газ и свет — 25 км от Екатеринбурга. Ваш идеальный участок в КургановоПредставьте: вы выходите из дома, делаете несколько шагов — и вы уже в лесу. Тишина, пение птиц, запах хвои. При этом до города — всего 25 километров. Это не мечта, это реальность — земельный участок в поселке Курганово, где природа и городской комфорт сливаются в идеальной гармонии.Почему этот участок создан для жизни?· Лес сразу за забором: Никаких соседей за спиной — только вековые сосны. Ваши утренние прогулки, сбор грибов и ягод, чистый воздух — всё это станет частью вашей повседневности. Участок примыкает к лесу, даря ощущение уединения и единения с природой.· Газ и электричество на участке: Тёплый дом без лишних хлопот. Вам не нужно думать, как проводить коммуникации и сколько это будет стоить — они уже здесь. Можно начинать строительство сразу после покупки.· Посёлок, где хочется жить: Курганово — это не просто точка на карте. Здесь есть всё для комфортной загородной жизни: магазины, спортивный клуб для активного отдыха, красивый водоём, где можно купаться и рыбачить летом, а зимой — гулять по льду. Детские сады и школы — в шаговой доступности.· Доброжелательные соседи: Здесь живут люди, которые ценят покой и уют. Никаких конфликтов, только дружелюбное сообщество, где каждый знает друг друга и готов прийти на помощь. Это место, где ваши дети будут расти в безопасности.· Чистая сделка без сюрпризов: Один собственник, никаких обременений. Быстрый выход на сделку — вы сможете стать владельцем участка в кратчайшие сроки, без лишних ожиданий и бюрократических проволочек.Что вы получаете?Всего 25 км от Екатеринбурга — ровно столько, чтобы уехать от городской суеты, но оставаться в центре событий. Газ, свет, лес, вода, инфраструктура — всё это уже ждёт вас. Осталось только приехать и влюбиться.Позвоните прямо сейчас — приезжайте смотреть и дышать полной грудью. Я покажу вам место, где ваша новая жизнь начнётся завтра.И главное — один собственник, без обременений. Сделку оформим быстро.Цена? Узнайте по телефону, она приятно удивит. Звоните, договоримся о просмотре! ???????? ID объекта в нашей базе: 18181
    размещено: 26.11.2025 , обновлено: 17.03.2026
  • Участок в с. Курганово, ул. Старателей

    городской округ Полевской (Полевское направление)
    Центр Екатеринбурга → 31 км
    • 7 соток
    • Вода
    1 999 000 ₽
    В продаже земельный участок. в очень живописном месте! Свет подключен, можно строиться!!Расположение:- с. Курганово. Участок:- земельный участок ровный, прямоугольной формы,- категория земли: Земли населенных пунктов,- виды разрешенного использования - ИЖС,- электричество 220(все уже подключили и оплатили),- возможно подключение к воде),- участок огорожен забором с одной стороны,- расположение дома удачное есть место для парковки авто и для создания зоны отдыха.- имеются блоки для строительства.Инфраструктура:- до города можно добраться на автобусе, - на автомобиле 19 минут до Екб,- до центра(Гринвич допустим) на авто 45мин,- школы №142 в горном щите,- дороги в зимнее время чистятся, почти все живут круглогодично.Юридическая чистота:- без обременений, залогов, арестов,- один собственник. ID объекта в нашей базе: 4352
    размещено: 07.07.2025 , обновлено: 12.03.2026
  • Участок в с. Курганово, ул. около КП Бажoвкa 2

    городской округ Полевской (Полевское направление)
    Центр Екатеринбурга → 31 км
    • 8 соток
    490 000 ₽
    B пpодaжe размежёванный земельный участок 8 сот. (территория Курганово). По соседству располагается КП Бажoвкa 2. Подъeзд-гpунтoвaя дoрогa.Пo перимeтру пoстaвлены электростoлбы Россетeй. Пpи въездe уcтанoвлена тpaнсформатopнaя будкa. Возможно проведения газа, подстанция в 300 метрах (поселок Бажовка). Газопровод проходит по границе дороги справа от Полевского в Курганово. Вокруг земельного участка активно ведется строительство частных домовладений. Участок граничит с лесным массивом. Грибы, ягоды. В комфортном доступе река Чусовая, Макаровское водохранилище. Катeгoрия земли: Земли населенных пунктов. Кадастровый номер: 66:59:0203002:906 Право собственности: 1 совершеннолетний собственник, в собственности более 10 лет, без обременений. Звоните! Договоримся на показ участка.Ждем Вас на просмотр. ID объекта в нашей базе: 10728
    размещено: 12.08.2025 , обновлено: 17.03.2026
  • Участок в к.п. Солнечный, уч.

    городской округ Полевской (Полевское направление)
    Центр Екатеринбурга → 31 км
    • 25 соток
    • Газ
    8 850 000 ₽
    Продам отличный участок, в полностью благоустроенном КП «СОЛНЕЧНЫЙ».Поздравляю! Ваш поиск завершен, и мы приготовили нечто поистине уникальное!Эксклюзивное предложение для тех, кто любит тишину, свежий воздух и полную инфраструктуру проживая в своем доме.Если вы успешный человек, который ценит индивидуальность, этот участок в КП « СОЛНЕЧНЫЙ» именно то, что вам нужно!-Участок правильной прямоугольной формы, не болотистый СУХОЙ, граничит с лесом. Свой выход в лес. Дорога из центра Екатеринбурга прямо к дому асфальт!!! По забору идёт газ.Возле поселка расположен ритейл "Магнит", ресторан с вкусными ланчами,"OZON","WIELBERRIES".Так же купив данный участок, вы окажетесь на границе Европа-Азия. Да да, мы граничим , данный поселок. "СОЛНЕЧНЫЙ" поселок, ЛУЧШИЙ по Полевскому тракту, в этом вы можете убедиться лично! Для этого вы можете позвонить и приехать. Встречаем тепло ! ID объекта в нашей базе: 11568
    размещено: 02.08.2025 , обновлено: 13.03.2026
  • Участок в с. Курганово, ул. Ленина, 12

    городской округ Полевской (Полевское направление)
    Центр Екатеринбурга → 31 км
    • 32 сотки
    • Газ
    33 000 000 ₽
    В продаже участок в Курганово. Участок 32 сотки, расположен на берегу реки Чусовая.К участку подведен газ, асфальт.Есть возможность взять соседнюю дополнительную площадь земли в официальное пользование. Участок находится на центральной улице Ленина с большим трафиком, подойдет под любой вид коммерции: Озон, WB, магазины, салоны и прочее.1 взрослый собственник, все документы готовы к сделке.Звоните, отвечу на все вопросы ID объекта в нашей базе: 17616
    размещено: 02.07.2025 , обновлено: 17.03.2026
  • Участок в с. Курганово, ул. Школьная, 9

    городской округ Полевской (Полевское направление)
    Центр Екатеринбурга → 31 км
    • 15 соток
    • Эл.
    • Вода
    • Газ
    3 900 000 ₽
    Объект № 192393. Продается земельный участок в 30 км от Екатеринбурга, площадью 15 соток в селе Курганово Полевской тракт. Участок ровный, квадратной формы, в красивейшем месте около леса, возле реки Кунгурка. Рядом расположен фельдшерский пункт, детский сад, среднеобразовательная школа, много магазинов. На участке есть плодовые деревья и кустарники, построен приличный летний домик, баня, бассейн. К участку подведен газ, есть электричество. По периметру установлен забор. Ипотека возможна.
    размещено: 16.06.2025 , обновлено: 5.03.2026
  • Участок в с. Курганово, ул. Советская,

    городской округ Полевской (Полевское направление)
    Центр Екатеринбурга → 31 км
    • 100 соток
    12 000 000 ₽
    Земельный участок 1,17 га!!!!!!❤️Продается земельный участок 1,17 га в экологически чистом районе села Курганово, рядом р.Чусовая и Верхне-Макаровское вдхр, лесной массив.Отдаленность от Екатеринбурга 29 км, до 40 минут на машине.Земля в собственности. 1 взрослый собственник.Категория земель: Земли сельскохозяйственного назначения.На участке возможно строительство, участок расположен в непосредственной близости с трассой, тем самым обеспечивает отличный трафик.Таких вариантов в продаже практически нет.Отличное место для строительства и развития своего бизнеса , конкуренция отсутствует. Рядом строится КП.Есть вопросы, звоните, договоримся на показ участка.Помогу с оформлением земельного участка в ипотеку, бесплатно.Ждем вас на просмотр!!!! ID объекта в нашей базе: 11125
    размещено: 22.04.2025 , обновлено: 15.03.2026
  • Участок в к.п. Белые Росы

    городской округ Полевской (Полевское направление)
    Центр Екатеринбурга → 31 км
    • 12 соток
    3 385 800 ₽
    Продам ЗЕМЕЛЬНЫЙ УЧАСТОК в с. Курганово!Площадь земельного участка: 12,16 соток(ИЖС).Земельный участок не делили.На участке вековые деревья.ЗАБОР по периметру участка: ОТСУТСТВУЕТ. Микрорайон «Белые Росы» — тихий пригород Екатеринбурга на берегу Верхне-Макаровского водохранилища (село Курганово).Общая территория посёлка составляет 49 га и включает в себя 255 участков.Статус земли — индивидуальное жилищное строительство, земли поселений.Участки - от 7 до 30 соток со всеми необходимыми коммуникациями, и с живописным видом на Верхне-Макаровское водохранилище. За порядком в посёлке следит управляющая компания, а безопасность обеспечивает и круглосуточная охрана с системой видеонаблюдения. В непосредственной близости находится спортивный комплекс «Курганово». Просмотр по договорённости в удобное для вас время!Ждём вас на просмотр! ID объекта в нашей базе: 7851
    размещено: 20.04.2025 , обновлено: 12.03.2026
  • Участок в с. Курганово, ул. Еловая, 2

    городской округ Полевской (Полевское направление)
    Центр Екатеринбурга → 31 км
    • 12 соток
    3 526 400 ₽
    Объект №424. ???? Продается земельный участок в селе Курганово, КП «Белые Россы» – ваш идеальный участок для строительства дома мечты! Характеристики участка: ✔ Площадь: 12,16 сотки ✔ Вид разрешенного использования: ИЖС (индивидуальная жилая застройка) Преимущества участка: ???? Тихая и живописная местность – идеальное место для загородной жизни ???? Разрешение на индивидуальную жилую застройку – можно построить дом по собственному проекту ???? Удобный подъезд – лёгкий доступ к основным дорогам и транспортным путям. ???? Записывайтесь на просмотр и создайте свой дом в красивом месте!
    размещено: 09.04.2025 , обновлено: 10.02.2026
  • Участок в с. Курганово, ул. Елизаветинская

    городской округ Полевской (Полевское направление)
    Центр Екатеринбурга → 31 км
    • 21 сотка
    3 780 000 ₽
    Продаётся земельный участок от юридического лица в коттеджном поселке (недалеко от стелы Европа-Азия), при этом нет никаких дополнительных денежных сборов и взносов характерных обычным коттеджным поселкам! Вокруг уже построено много жилых домов, люди проживают круглый год.Площадь участка 21 сотки. Кадастровый номер 66:59:0201002:1792Категория земли: земли населённых пунктов. Разрешенное использование: ИЖС. Межевание проведено, право собственности зарегистрировано. Участок расположен в экологически чистом районе, в живописнейшем уголке рядом с Макаровским водохранилищем.Недалеко село Курганово, магазины, кафе, рынок строительных материалов. На участок можно подвести электричество. Дорога внутри поселка муниципальная. Прописка: село Курганово.Участок возможно приобрести по семейной ипотеке под строительство дома со ставкой 6%Будем рады видеть Вас на просмотре! ID объекта в нашей базе: 25498
    размещено: 26.02.2025 , обновлено: 15.03.2026
  • Участок в с. Курганово, ул. Нагорная

    городской округ Полевской (Полевское направление)
    Центр Екатеринбурга → 31 км
    • 1150 соток
    • Эл.
    • Газ
    14 999 000 ₽
    Объект № 189470. Лучшее предложение в этой локации! Земельный участок 1150 соток в д. Курганово. До участка ведет асфальтированная дорога, электричество и газ подведены. Участок правильной формы, разработан, в самом центре небольшой пролесок. Земли сельскохозяйственного назначения, для сельскохозяйственного использования. Чистая продажа, без залогов и обременений, один взрослый собственник. Не упустите этот уникальный объект по хорошей цене, ждем вас на просмотр.
    размещено: 28.01.2025 , обновлено: 11.03.2026
  • Участок в с. Курганово, ул. поселок Кургановский

    городской округ Полевской (Полевское направление)
    Центр Екатеринбурга → 31 км
    • 10 соток
    1 180 000 ₽
    СРОЧНО Продам участок В Екатеринбурге или ОБМЕНЯЕМ НА КОМНАТУ В ЕКАТЕРИНБУРГЕ !!!! участок прaвильнoй фopмы в посёлке Кургановский. Hа участке вековые деревья, сосны, чтo редкость для коттеджных поселков в пригороде Екатеринбурга. Участок угловой, можно сделать два заезда или разделить на два участка , можно использовать под аренду 66:41:0513054:868 кадастровый номер участка Электричество возле участка. В 200 метрах от остановки общественного транспорта. Дo Гopнoгo Щитa всeго 10 минут на машине, рядом остановка общественного транспорта (автобусы до Автовокзала). Очень перспективное место для проживания. Дopoги отсыпаны. Можно подъехать с двух cтоpoн, oргaнизoвать двa въeздa. Земли населенных пунктов. Прописка Чкаловский район город Екатеринбург. ЗВОНИТЕ ДОГОВОРИМСЯ!!! ID объекта в нашей базе: 16770
    размещено: 22.11.2024 , обновлено: 17.03.2026
  • Участок в с. Курганово, ул. Нагорная, 25

    городской округ Полевской (Полевское направление)
    Центр Екатеринбурга → 31 км
    • 13 соток
    • Эл.
    1 990 000 ₽
    Объект № 188153. Уникальное предложение в живописном районе Курганово для тех, кто ценит уединение с природой и спокойствие! Кадастровый номер: 66:59:0201002:0451 Документы на перевод в ИЖС готовы! Описание земельного участка: Предлагаем вам сухой и непотопляемый земельный участок, расположенный в самом сердце Курганово и окруженный живописным смешанным лесом. Недалеко протекает чистая мелководная речка Курганка, создающая особую атмосферу этого уютного уголка природы. Участок находится вдали от дороги и имеет свой собственный подъездной путь. Дорога к участку в хорошем состоянии и зимой регулярно чистится специальной техникой. Соседей не видно и не слышно — они располагаются на параллельной улице. В этом райском уголке природа подарит вам возможность наблюдать за зайчиками и косулями, которые иногда заглядывают в гости! Характеристики: Площадь: 13,17 соток. Форма: ровная прямоугольная Категория земель: земли населенных пунктов. Разрешенное использование: для индивидуального жилищного строительства (ИЖС). Все документы готовы, проведено межевание, установлены колышки. Электрическая подача - столбы электроэнергии расположены вдоль дороги. В районе Курганово активно строятся современные коттеджные поселки с необходимой инфраструктурой. Также запланировано строительство дороги со стороны ЕКАДа, что сделает доступ к участку еще более удобным и быстрым. Не упустите возможность приобрести этот уникальный земельный участок для застройки вашего будущего дома в окружении природы. Звоните сегодня, чтобы узнать больше!
    размещено: 15.11.2024 , обновлено: 16.03.2026
  • Участок в с. Курганово

    городской округ Полевской (Полевское направление)
    Центр Екатеринбурга → 31 км
    • 100 соток
    5 500 000 ₽
    1га (100 соток) в районе с. Курганово (Бажовка).Идеально подойдет для глэмпинга, кемпинга. Участок крайний, граничит с лесом, полностью заросший молодым сосняком. Отделен лесополосой от основной дороги, можно сделать удобный заезд-выезд до места от асфальтированной трассы. Недалеко от участка р.Чусовая. До ЕКАДа 17 км. ‼Рассмотрю вариант обмена на недвижимость, авто, стройматериалы, на обмен цена + 500 000 р. КН: 66:59:0217004:45 ID объекта в нашей базе: 273
    размещено: 07.10.2024 , обновлено: 7.03.2026
  • Участок в с. Курганово, ул. Ивановская

    городской округ Полевской (Полевское направление)
    Центр Екатеринбурга → 31 км
    • 62 сотки
    18 630 000 ₽
    Продаётся большой земельный участок от юридического лица. Возможно использование под любое коммерческое назначение!Площадь участка 62 сотки. Категория земли: земли населённых пунктов. Разрешенное использование: ИЖС Категория - земли О1Межевание проведено, право собственности зарегистрировано. Участок расположен в экологически чистом районе, в живописнейшем уголке рядом с Макаровским водохранилищем.Рядом село Курганово, магазины, кафе, рынок строительных материалов. На участках - электричество. Прописка: село Курганово. Нет никаких дополнительных сборов! Дорога внутри поселка муниципальная.Будем рады видеть вас на просмотре! ID объекта в нашей базе: 25095
    размещено: 26.09.2024 , обновлено: 15.03.2026

Предложения о продаже садов в с. Курганово

  • Садовый участок в с. Курганово, к/с СНТ Аграрник

    городской округ Полевской (Полевское направление)
    Центр Екатеринбурга → 31 км
    • 60 соток
    5 800 000 ₽
    В продаже шикарный участок площадью 60 соток под глэмпинг, базу отдыхаУчасток подключен к электричествуНаходится в 2 км. от поселка Курганово, за СНТ Аграрник60% участка занимает молодой сосновый лесФотографии непосредственно с участка Категория земель - сельхозназначение, ВРИ- садовые и дачные строение Разрешено строительство домом до 3-х этажей.Кадастровые номера отправлю по запросу ID объекта в нашей базе: 9461
    размещено: 26.05.2025 , обновлено: 15.03.2026

Приоритет

Увеличивает просмотры в 3 раза

Ваше объявление показывается в списке выше обычных объявлений. подключить