Торговая площадь 174 м2 – Заводская, 20
Продается коммерческое помещение свободного назначения на первой линии в Верх-Исетском районе (ВИЗ). Локация с высокой проходимостью и развитой инфраструктурой идеально подходит под магазин, аптеку, товары повседневного спроса, отделение банка или сферу услуг, ориентированную на стабильный клиентопоток.
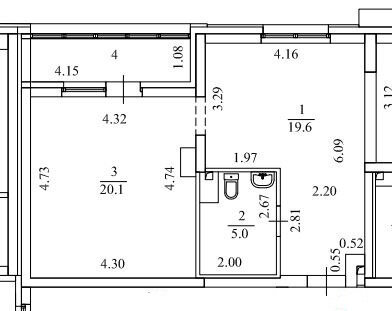
Помещение общей площадью 174 м² расположено на первом этаже в торце жилого дома, что обеспечивает максимальную автономность и узнаваемость. Планировка включает два торговых зала (53,7 м² и 41,7 м²), складские помещения (53,3 м² и 15 м²), два кабинета, санузел и электрощитовую. Помещение имеет три отдельных входа: центральный для посетителей, зону разгрузки и пожарный выход — это удобно для приемки товара и соблюдения нормативов. Со стороны торговых залов расположено шесть окон, помещение светлое и витринное, хорошо привлекает внимание. Состояние удовлетворительное, длительное время помещение занимал сетевой арендатор, что подтверждает его ликвидность. Пожарная и охранная сигнализации находятся в рабочем состоянии, установлено видеонаблюдение.
Ключевое преимущество — рядом с центральным входом расположена бесплатная парковка на 10 машиномест, что критически важно для торгового объекта.
Дом находится по адресу Заводская, 20 в Верх-Исетском районе. Это плотно заселенная часть района с высоким пешеходным и автомобильным трафиком. Остановка общественного транспорта «ВИЗ» находится в 2–3 минутах пешком, удобные выезды на улицу Татищева и в центр города. В шаговой доступности расположены школы, детские сады, МФЦ, крупные сетевые магазины («Кировский», «Магнит», «Яблоко»), что формирует устойчивый покупательский поток. Сам дом кирпичный, 1962 года постройки, исправный, с запланированным капитальным ремонтом фасада и коммуникаций на 2026 год. В доме 5 этажей, 4 подъезда, около 70 квартир, плюс жители соседних домов создают постоянную проходимость.
Помещение подойдет как для собственного бизнеса, так и для сдачи в аренду. Удачная конфигурация, отдельные входы, наличие парковки и рабочая инфраструктура позволяют начать работу без значимых дополнительных вложений.
ID объекта в нашей базе: 5606
размещено: 27.03.2026
, обновлено: 28.03.2026








