Офис 119 м2 – Старых Большевиков, 2ак2
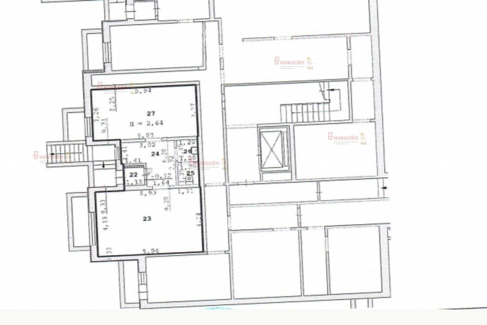
Продажа офисов (3 кабинета) общей площадью 119,2 кв.м, находящихся на 4 этаже бизнес-центра, микрорайон Эльмаш. Высота потолков – 2,7 метра. Мощность - 10 кВт. Общая входная дверь – установлен домофон. Вход общий, с торца здания. Парковка открытая, на улице, на 20 м/мест. В здании находится 34 организации разной направленности, столовая, кофейня самообслуживания. ЛОКАЦИЯ: остановка общественного транспорта – Фронтовых бригадВ шаговой доступности - супермаркет Чижик, гипермаркет Маяк, автосалоны, автосервисы, спорткомплекс Поляна, производственные и складские помещения.ХАРАКТЕРИСТИКА ОБЪЕКТА:4 этаж/5 этажейОбщая площадь 119 кв.м, в том числе:офис 48 м2 (зонирован на 2 кабинета 16,5м2 и 31,5м2); офис 31,5 м2; офис 9,5 м2 (есть возможность установки мокрой точки).Пластиковые окна, кондиционерРемонт: потолки - Армстронг, пол –ламинат, стены – обои под покраску Санузел на этажеДОПОЛНИТЕЛЬНАЯ ИНФОРМАЦИЯ:Коммунальные платежи в месяц – до 10 тыс.рублейСобственник – физическое лицо, объект – без обременений. Быстрый выход на сделку
ID объекта в нашей базе: 9614
размещено: 04.02.2026
, обновлено: 27.02.2026







