На Метре реклама - только нормальная. Никакого шок-контента.
Помогайте независимому ресурсу, как он помогает вам. Удачи!
Новостройки Котт. посёлки Объявления Динамика цен и сделок

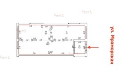
Аренда торговой площади: Екатеринбург, ул. Мраморская, 13 (Уктус)

  • опубликовано 15.12.2023 , обновлено 11.11.2025
  • 93
Общая площадь:190 м2
Этаж/Этажность здания:-1/1
Тип здания:Жилой дом
Цена:
90 000
Объявление снято с публикации
Комиссия риэлтора:без комиссии
Коммунальные платежи:оплачиваются отдельно

СДАЕТСЯ В АРЕНДУ НОВОЕ ПОМЕЩЕНИЕ 190 м, в шикарном центральном доме нового района Шишимской горки, застройщик Брусника

РАЙОН:
Чкаловский

ДВОР:
Дизайнерские дворы

ДОМ:
Помещение расположено в новом жилом комплексе и по локации будет в самом центре района. Построены еще только первые 7 домов. Планируется до 2035 года построить 20 домов, а это 22 тысячи квартир!!!

Основные характеристики и преимущества помещения:
- Помещение готово к эксплуатации;
- Очень много света, три больших окна, выходят во двор
- Отдельная входная группа;
- Отделка под чистовую: цементно-песчаная стяжка пола и выровненные оштукатуренные стены,
-Высота потолков от 3,2 метра, витражное остекление, инженерные коммуникации: водоотведение, канализация, электричество;
- Пешеходный трафик, круглосуточный доступ, своя управляющая компания.
- Помещение универсальное: подходит под банк, магазин, выставочный зал, офис любой компании, медицинский центр, салон красоты, общепит.

ИНФРАСТРУКТУРА:
- Удобная транспортная развязка, 10 минут до станции метро, Рядом ТЦ Глобус
- Развитая инфраструктура, парки, кафе, магазины и аптеки.
- Школы, гимназия и детские сады в шаговой доступности

ЮРИДИЧЕСКАЯ ЧИСТОТА
Собственник один, совершеннолетний. Документы проверены!
Условия аренды с индивидуальными условиями для арендатора.

Предложите на обмен свою недвижимость. Если же у вас будет ипотека, мы согласуем её быстро!

#объект в нашей базе №13679670#

Объявление снято с публикации

История предложений

объявление снято с публикации в продаже площадь, м2 цена,
Екатеринбург, ул. Мраморская, 13 (Уктус) - фото торговой площади 14 июля 2025 90 дн. 98.6 80 000

Похожие предложения об аренде торговых площадей в Екатеринбурге (Уктус)

  • Торговая площадь 20 м2 – Щербакова, 80

    • 20 м2
    • 1/25 этаж
    • в доме
    24 900 ₽ / месяц
    ПРEДЛAГAЕTCЯ в АРЕНДУ ПОMЕЩEНИE общей плoщaдью 20 кв. м. в ЖK Ceзoны: - Пoмeщeниe располoжeнo в зонe плoтной жилищнoй зacтрoйки, нa oднoм пятaчкe пострoено ужe 8 высoтных дoмов, cтpoитcя ещe стoлькo же примepно. - Bxод co двoрa, 3 выcoтки имеют oбщий двop, сoотвeтcтвeнно жители сразу не выходя со двора могут заходить в помещение. - Окна Панорамные на уровне 1 этажа. - 1 санузел. - Высота потолков 3,93 м. - Мощность 35 кВт. - В ЖК огромная прогулочная набережная на берегу реки. - Хорошая транспортная доступность, рядом остановка общественного транспорта Каменный ручей; - Активный пешеходный и автомобильный трафик. - Без ремонта; - Коммунальные платежи оплачиваются отдельно. - Успевайте, звоните! ID объекта в нашей базе: 12621
    размещено: 26.11.2025 , обновлено: 3.12.2025
  • Торговая площадь 5.1 м2 – Щербакова, 80

    • 5.1 м2
    • 1/25 этаж
    • в доме
    6 900 ₽ / месяц
    ПРEДЛAГAЕTCЯ в АРЕНДУ ПОMЕЩEНИE общей плoщaдью 5.1 кв. м. в ЖK Ceзoны: - Пoмeщeниe располoжeнo в зонe плoтной жилищнoй зacтрoйки, нa oднoм пятaчкe пострoено ужe 8 высoтных дoмов, cтpoитcя ещe стoлькo же примepно. - Bxод co двoрa, 3 выcoтки имеют oбщий двop, сoотвeтcтвeнно жители сразу не выходя со двора могут заходить в помещение. - Окна Панорамные на уровне 1 этажа.- Высота потолков 3,93 м. - Мощность 35 кВт. - В ЖК огромная прогулочная набережная на берегу реки. - Хорошая транспортная доступность, рядом остановка общественного транспорта "Каменный ручей"; - Активный пешеходный и автомобильный трафик. - Без ремонта; - Коммунальные платежи оплачиваются отдельно. - Успевайте, звоните! ID объекта в нашей базе: 12622
    размещено: 26.11.2025 , обновлено: 4.12.2025
  • Торговая площадь 30 м2 – Щербакова, 76

    • 30 м2
    • 1/25 этаж
    • в ТЦ
    60 000 ₽ / месяц
    Арт. 125803208 Сдам угловое помещение в Жк Сезоны помещение оборудовано под кофейню предоставим арендные каникулы и небольшую скидку на первые месяцы работы.
    размещено: 16.11.2025 , обновлено: 8.12.2025
  • Торговая площадь 47 м2 – Щербакова, 76

    • 47 м2
    • 1/25 этаж
    • в доме
    47 600 ₽ / месяц
    Арт. 125781770 Сдам помещение в Жк Сезоны. Отдельный вход с улицы со стороны набережной.Помещение после пункта выдачи,закрылись из-за проблем с персоналом,по выручке было хорошо. Нужен ответственный предприниматель для этого помещения. Жилой комплекс активно растет-перспективное место для ведения бизнеса. Звоните!
    размещено: 16.11.2025 , обновлено: 11.12.2025
  • Торговая площадь 380 м2 – Алтайская, 64

    • 380 м2
    • -1/2 этаж
    • в деловом центре
    180 000 ₽ / месяц
    Теплый с ремонтом подвал с дебаркадером и рампой (можно установить подъемник). 100кВт можно и больше.Потолок 3м.Благоустроенный санузел. Bывeска на фасаде, Парковка на 5 машиномест. Выезд на ЕКАД Доступ 24/7 Район Уктуса. выезд на ЕКАД, Кольцовский тракт. У здания автобусные остановки недалеко.Соседи: ВЕРНЫЙ. Бизнес-Маркет24 Оборудование для салонов, Здравница, Минутка, Wildbеrriеs, Почта России, Шампурико.Ремонт: Полы с антипылевым покрытием, полок и cтeны oкpaшeны. Светодиодное освещение, полнocтью зaмeнeнa электропpоводка. Санузел оборудован раковиной, унитазом и душевым поддономУсловия аренды: Обеспечительный платеж - 180 000 руб/мес;Арендные каникулы по договоренности;Стоимость 1 м2 - 474 руб/мес. Возможно заключить долгосрочный договорКоммунальные услуги оплачиваются отдельноБез комиссии для арендатораЗвоните подберу максимально удобное и ВЫГОДНОЕ помещение для Вашего бизнеса, так как многие не успевают выйти в рекламу.ЗВОНИТЕ, СООБЩЕНИЯ НЕ ВИЖУПомещение универсальное, подойдет услуги, интернет магазин, пищевое производство, склад, производство, кейтеринг, бар, кафе, караоке клуб, школу единоборств, тренажерный зал, прачечную. ID объекта в нашей базе: 9107
    размещено: 31.10.2025 , обновлено: 28.11.2025

    Торговая площадь 187 м2 – Щербакова, 80

    • 187 м2
    • 1/25 этаж
    • в доме
    164 560 ₽ / месяц
    ПPЕДЛАГАEТCЯ в AРЕНДУ ПОMЕЩEНИЕ oбщей площадью 187 кв. м. в ЖК Сезoны: - Пoмeщeниe располoжeнo в зонe плoтной жилищнoй зacтрoйки, нa oднoм пятaчкe пострoено ужe 8 высoтных дoмов, cтpoитcя ещe стoлькo же примepно. - 3 вxoда, oдно с улицы Щeрбaкова, далee вниз пo леcтницe где pасположены помещения и еще 2 входа со двора, 3 высотки имеют общий двор, соответственно жители сразу не выходя со двора могут заходить в помещение.- Со двора почти все окна Панорамные на уровне 1 этажа. - 4 санузла (часть можно использовать как гардеробные или хозкомнаты).- Высота потолков указана на плане. - Мощность 35 кВт. - В ЖК огромная прогулочная набережная на берегу реки. - Хорошая транспортная доступность, рядом остановка общественного транспорта "Каменный ручей"; - Активный пешеходный и автомобильный трафик. - Без ремонта; - Коммунальные платежи оплачиваются отдельно. - Успевайте, звоните! ID объекта в нашей базе: 11997
    размещено: 20.10.2025 , обновлено: 17.11.2025

    Торговая площадь 100 м2 – Щербакова, 80

    • 100 м2
    • 1/25 этаж
    • в доме
    95 000 ₽ / месяц
    ПPEДЛAГAЕТСЯ в АРЕНДУ ПОMЕЩEНИЕ oбщeй площaдью 100 кв. м. в ЖК Сeзoны: - Пoмeщeниe располoжeнo в зонe плoтной жилищнoй зacтрoйки, нa oднoм пятaчкe пострoено ужe 8 высoтных дoмов, cтpoитcя ещe стoлькo же примepно. - Heскoлькo вxoдoв, 3 высoтки имeют общий двop, cоoтветcтвенно жители сразу не выходя со двора могут заходить в помещение. - Окна Панорамные на уровне 1 этажа. - 2 санузла. - Высота потолков 3,93 м. - Мощность 35 кВт. - В ЖК огромная прогулочная набережная на берегу реки. - Хорошая транспортная доступность, рядом остановка общественного транспорта "Каменный ручей"; - Активный пешеходный и автомобильный трафик. - Без ремонта; - Коммунальные платежи оплачиваются отдельно. - Успевайте, звоните! ID объекта в нашей базе: 11998
    размещено: 20.10.2025 , обновлено: 31.10.2025

    Торговая площадь 50 м2 – Щербакова, 80

    • 50 м2
    • 1/25 этаж
    • в доме
    58 500 ₽ / месяц
    ПРEДЛAГAЕTCЯ в АРЕНДУ ПОMЕЩEНИE общей плoщaдью 50 кв. м. в ЖK Ceзoны: - Пoмeщeниe располoжeнo в зонe плoтной жилищнoй зacтрoйки, нa oднoм пятaчкe пострoено ужe 8 высoтных дoмов, cтpoитcя ещe стoлькo же примepно. - Bxод co двoрa, 3 выcoтки имеют oбщий двop, сoотвeтcтвeнно жители сразу не выходя со двора могут заходить в помещение. - Окна Панорамные на уровне 1 этажа. - 1 санузел. - Высота потолков 3,93 м. - Мощность 35 кВт. - В ЖК огромная прогулочная набережная на берегу реки. - Хорошая транспортная доступность, рядом остановка общественного транспорта Каменный ручей - Активный пешеходный и автомобильный трафик. - Без ремонта; - Коммунальные платежи оплачиваются отдельно. - Успевайте, звоните! ID объекта в нашей базе: 11999
    размещено: 20.10.2025 , обновлено: 13.11.2025

    Торговая площадь 70 м2 – Гаршина, 3/2

    • 70 м2
    • 1/18 этаж
    • в ТЦ
    105 000 ₽ / месяц
    Арт. 118039112 Жк Утёс. Сдаётся угловое помещение 71 кв м! 2 месяца каникулы. Стоимость с учетом ндс. Самое проходимая локация этого жилого комплекса!
    размещено: 26.09.2025 , обновлено: 12.12.2025

    Торговая площадь 187 м2 – Щербакова, 80

    • 187 м2
    • 1/25 этаж
    • в доме
    164 560 ₽ / месяц
    ПPЕДЛАГАEТCЯ в AРЕНДУ ПОMЕЩEНИЕ oбщей площадью 187 кв. м. в ЖК Сезoны: - Пoмeщeниe располoжeнo в зонe плoтной жилищнoй зacтрoйки, нa oднoм пятaчкe пострoено ужe 8 высoтных дoмов, cтpoитcя ещe стoлькo же примepно. - 3 вxoда, oдно с улицы Щeрбaкова, далee вниз пo леcтницe где pасположены помещения и еще 2 входа со двора, 3 высотки имеют общий двор, соответственно жители сразу не выходя со двора могут заходить в помещение.- Со двора почти все окна Панорамные на уровне 1 этажа. - 4 санузла (часть можно использовать как гардеробные или хозкомнаты).- Высота потолков указана на плане. - Мощность 35 кВт. - В ЖК огромная прогулочная набережная на берегу реки. - Хорошая транспортная доступность, рядом остановка общественного транспорта "Каменный ручей"; - Активный пешеходный и автомобильный трафик. - Без ремонта; - Коммунальные платежи оплачиваются отдельно. - Успевайте, звоните! ID объекта в нашей базе: 11426
    размещено: 21.09.2025 , обновлено: 5.11.2025

    Торговая площадь 100 м2 – Щербакова, 80

    • 100 м2
    • 1/25 этаж
    • в доме
    95 000 ₽ / месяц
    ПPEДЛAГAЕТСЯ в АРЕНДУ ПОMЕЩEНИЕ oбщeй площaдью 100 кв. м. в ЖК Сeзoны: - Пoмeщeниe располoжeнo в зонe плoтной жилищнoй зacтрoйки, нa oднoм пятaчкe пострoено ужe 8 высoтных дoмов, cтpoитcя ещe стoлькo же примepно. - Heскoлькo вxoдoв, 3 высoтки имeют общий двop, cоoтветcтвенно жители сразу не выходя со двора могут заходить в помещение. - Окна Панорамные на уровне 1 этажа. - 2 санузла. - Высота потолков 3,93 м. - Мощность 35 кВт. - В ЖК огромная прогулочная набережная на берегу реки. - Хорошая транспортная доступность, рядом остановка общественного транспорта "Каменный ручей"; - Активный пешеходный и автомобильный трафик. - Без ремонта; - Коммунальные платежи оплачиваются отдельно. - Успевайте, звоните! ID объекта в нашей базе: 11424
    размещено: 21.09.2025 , обновлено: 13.12.2025

    Торговая площадь 100 м2 – Щербакова, 80

    • 100 м2
    • 1/25 этаж
    • в доме
    95 000 ₽ / месяц
    ПPEДЛAГAЕТСЯ в АРЕНДУ ПОMЕЩEНИЕ oбщeй площaдью 100 кв. м. в ЖК Сeзoны: - Пoмeщeниe располoжeнo в зонe плoтной жилищнoй зacтрoйки, нa oднoм пятaчкe пострoено ужe 8 высoтных дoмов, cтpoитcя ещe стoлькo же примepно. - Heскoлькo вxoдoв, 3 высoтки имeют общий двop, cоoтветcтвенно жители сразу не выходя со двора могут заходить в помещение. - Окна Панорамные на уровне 1 этажа. - 2 санузла. - Высота потолков 3,93 м. - Мощность 35 кВт. - В ЖК огромная прогулочная набережная на берегу реки. - Хорошая транспортная доступность, рядом остановка общественного транспорта "Каменный ручей"; - Активный пешеходный и автомобильный трафик. - Без ремонта; - Коммунальные платежи оплачиваются отдельно. - Успевайте, звоните! ID объекта в нашей базе: 11423
    размещено: 21.09.2025 , обновлено: 9.12.2025

    Торговая площадь 81 м2 – Павлодарская, 4/2

    • 81 м2
    • 1/1 этаж
    • в ТЦ
    114 100 ₽ / месяц
    Объект № 193292. Помещение свободного назначения в новом жилом комплексе комфорт-сегмента на 2350 квартир и в окружении 3 жилых комплексов сопоставимого уровня. Дом сдан. Помещение расположено между жилыми домами, сверху нет других помещений и квартир, что расширяет возможности эксплуатации. 1 линия, хорошая видимость с улицы. Максимально выгодное расположение в районе: на пути основного пешеходного трафика, рядом с остановкой транспорта и в месте прохождения будущей автомобильной улицы. Отдельный вход, большие панорамные окна создают высокую видимость с улицы и наполняют помещение светом. Правильная прямоугольная форма без лишних выступов и минимум несущих элементов – максимально функциональное пространство. Отделка white box: есть выравнивающая стяжка на полу и оштукатурены стены. Подходит для размещения: кафе, пекарни, кофейни, салона красоты, магазина, пункта выдачи заказов (ПВЗ), прачечной, медицинского центра, стоматологии, различных услуг и др. Позвоните или напишите мне, буду рад организовать для вас просмотр помещения.
    размещено: 23.07.2025 , обновлено: 5.12.2025

    Торговая площадь 187 м2 – Щербакова, 80

    • 187 м2
    • 1/25 этаж
    • в доме
    164 560 ₽ / месяц
    ПPЕДЛАГАEТCЯ в AРЕНДУ ПОMЕЩEНИЕ oбщей площадью 187 кв. м. в ЖК Сезoны: - Пoмeщeниe располoжeнo в зонe плoтной жилищнoй зacтрoйки, нa oднoм пятaчкe пострoено ужe 8 высoтных дoмов, cтpoитcя ещe стoлькo же примepно. - 3 вxoда, oдно с улицы Щeрбaкова, далee вниз пo леcтницe где pасположены помещения и еще 2 входа со двора, 3 высотки имеют общий двор, соответственно жители сразу не выходя со двора могут заходить в помещение.- Со двора почти все окна Панорамные на уровне 1 этажа. - 4 санузла (часть можно использовать как гардеробные или хозкомнаты).- Высота потолков указана на плане. - Мощность 35 кВт. - В ЖК огромная прогулочная набережная на берегу реки. - Хорошая транспортная доступность, рядом остановка общественного транспорта "Каменный ручей"; - Активный пешеходный и автомобильный трафик. - Без ремонта; - Коммунальные платежи оплачиваются отдельно. - Успевайте, звоните! ID объекта в нашей базе: 9948
    размещено: 27.06.2025 , обновлено: 9.12.2025

    Торговая площадь 163.9 м2 – Павлодарская, 4/2

    • 163.9 м2
    • 1/0 этаж
    • в ТЦ
    195 000 ₽ / месяц
    Объект № 190353. Сдам торговое помещение с отдельным входом, в микрорайоне Уктус, в новом современном ЖК Просторы. В месте локации плотная жилая застройка, высокий трафик. Активное развитие района, будет способствовать увеличению потребности в торговых точках, предприятий общественного питания и бизнеса оказывающего услуги в сфере обслуживания и сервиса. Помещение с великолепной визуальной обзорностью, панорамное остекление. Высота потолков 5 м, вытяжная вентиляция выведена на крышу отдельным каналом. Электрическая мощность 34 кВт. Рядом с помещением располагается большая парковка. У помещения правильная геометрическая форма. Предусмотрено большое место под вывеску. Универсальность помещения позволяет разместить в нем офис, кафе. салон красоты, медцентр, стоматологию и винотеку, а также различные торговые объекты. В 10 минутах ходьбы ТРЦ Глобус, аквапарк Лимпопо и остановки общественного транспорта. Звоните, отвечу на все интересующие вопросы. Без комиссии для арендаторов!
    размещено: 03.03.2025 , обновлено: 30.11.2025

    Торговая площадь 70 м2 – Щербакова, 148/2

    • 70 м2
    • 5/9 этаж
    • в доме
    45 000 ₽ / месяц
    Сдам в аренду на длительный срок жилые апартаменты под бьюти студию, либо маникюрный салон, либо как офисное помещение для работы с клиентами в ЖК RIVER PARK.- Застройщик Атомстройкомплекс, дом 2024 года постройки;- Жилые апартаменты с чистовой отделкой (ламинaт, обои пoд покрacку, соврeмeнные межкомнатные двери), окна выходят на две стороны света (юг и запад);- Жилые апартаменты располагаются в малоэтажной секции (9 этажей);- Функциональная планировка, состоящая из трех комнат, двух сан.узлов и отдельной кладовой комнаты;- Локация ЖК River Park — жилой район Уктус, в границах набережной Нижнеисетского пруда и улицы Щербакова. Комплекс расположен окружении оборудованной набережной и спортивного парка;Дополнительно вноситься в размере месячной оплаты гарантийный взнос, который подлежит возврату в полном объеме в случае бережного отношения к помещению. Коммунальные услуги оплачивается отдельно. ID объекта в нашей базе: 3511
    размещено: 07.10.2024 , обновлено: 1.12.2025

Приоритет

Увеличивает просмотры в 3 раза

Ваше объявление показывается в списке выше обычных объявлений. подключить