На Метре реклама - только нормальная. Никакого шок-контента.
Помогайте независимому ресурсу, как он помогает вам. Удачи!
Новостройки Котт. посёлки Объявления Динамика цен и сделок

Аренда производственной недвижимости: г. Верхняя Пышма, ул. Феофанова, 43 (городской округ Верхняя Пышма)

  • опубликовано 1.11.2025 , обновлено 2.11.2025
  • 2
  •  
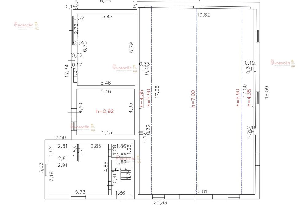
Назначение объекта:производствено - складское помещение
Общая площадь:342.1 м2
Цена:
250 000 в месяц
Комиссия риэлтора:без комиссии

Объект № 195356. Сдаётся готовое производственно - складское помещение для производства, склада или автосервиса.

Общая площадь 342,1 кв.м. Высота потолков 7м, наличие кран-балки — всё для эффективного использования пространства.
Идеально подходит для: Производства, склада, логистического центра, услуг автосервиса, включая шиномонтаж и автосервис.

Готов к работе: Электричество до 150 кВт, отопление газом, автономная канализация, интернет.
По логистике: Подъезд для фур, площадка для маневрирования, Серовский тракт, ЕКАД.

Полная безопасность: Охраняемая территория (ЧОП Росгвардия), видеонаблюдение, забор, но свободный доступ для клиентов. Есть офис и прилегающая парковка: 2-этажное офисное здание и 50 парковочных мест.

Сдаётся только целиком. Коммунальные платежи оплачиваются отдельно.

Актуальные предложения поблизости

    отапливаема производственная площадка

    • 1260 м2
    • 1 этаж
    630 000 ₽ / месяц
    Объект № 193600. Сдам производственную площадку. Цех площадь: 1260 м2, высота потолков 12 м, пролёт 30м. Производственный цех отапливаемый газом. Возможно в счет аренды обеспыливание полов. Хорошие подъездные пути до территории имущественного комплекса, широкие дороги для большегрузного транспорта, близость к транспортным развязкам - Серовский тракт, ЕКАД. Технические характеристики Газоснабжение – 300 куб. м. в час. (собственная газовая котельная). Электроснабжение 300 кВт. (Возможно увеличить до 700 кВт). Центральное водоснабжение собственная скважина и канализация. Круглосуточная охрана, асфальт, освещение, забор по периметру.
    размещено: 07.08.2025 , обновлено: 14.10.2025

Похожие предложения об аренде промышленных объектов в г. Верхняя Пышма

  • отапливаемое производственное помещение

    • 405 м2
    • 1 этаж
    125 500 ₽ / месяц
    Сдается в аренду отапливаемое производственное помещение в г.Верхняя Пышма Локация: ЕКАД всего в 1,5 км— удобный въезд/выезд со всех направлений Хорошая подъездная дорога Огороженная и охраняемая территория Объект: Новое здание (сдача — сентябрь 2025) Площадь: 410 м²(≈17,8×24 м) Высота потолков: 2,2 м Готов к эксплуатации Коммуникации: Электричество (с индивидуальным счетчиком) Холодное и горячее водоснабжение (ХВС/ГВС) Канализация Отопление (собственная котельная) Высокоскоростной интернет Условия: Все коммунальные расходы уже включены в ставку(кроме электроэнергии- оплачивается отдельно) Долгосрочная аренда Индивидуальные условия для надежных арендаторов Не «грязное» производство Успейте арендовать помещение для своего производства в стратегически важном районе — бронь уже открыта! Ждем вас на просмотр. ID объекта в нашей базе: 186
    размещено: 12.09.2025 , обновлено: 2.11.2025

    отапливаема производственная площадка

    • 1260 м2
    • 1 этаж
    630 000 ₽ / месяц
    Объект № 193600. Сдам производственную площадку. Цех площадь: 1260 м2, высота потолков 12 м, пролёт 30м. Производственный цех отапливаемый газом. Возможно в счет аренды обеспыливание полов. Хорошие подъездные пути до территории имущественного комплекса, широкие дороги для большегрузного транспорта, близость к транспортным развязкам - Серовский тракт, ЕКАД. Технические характеристики Газоснабжение – 300 куб. м. в час. (собственная газовая котельная). Электроснабжение 300 кВт. (Возможно увеличить до 700 кВт). Центральное водоснабжение собственная скважина и канализация. Круглосуточная охрана, асфальт, освещение, забор по периметру.
    размещено: 07.08.2025 , обновлено: 14.10.2025

Приоритет

Увеличивает просмотры в 3 раза

Ваше объявление показывается в списке выше обычных объявлений. подключить