На Метре реклама - только нормальная. Никакого шок-контента.
Помогайте независимому ресурсу, как он помогает вам. Удачи!
Новостройки Котт. посёлки Объявления Динамика цен и сделок

Продажа квартиры: Екатеринбург, ул. Червонная, 19 (Старая Сортировка)

  • опубликовано 22.01.2019 , обновлено 12.08.2025
  • 387
Рынок:вторичный
Срок сдачи: 2007 года
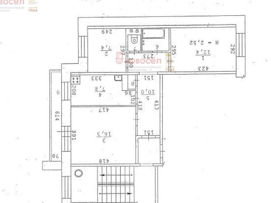
Количество комнат:3
Из них изолированных:1
Общая площадь:58 м2
Жилая площадь:36 м2
Площадь кухни:8 м2
Этаж/Этажность дома:6 / 10
Материал стен:блок
Санузел:раздельный
Отделка:косметический
Год постройки:2007
Состояние:удовлетворительное
Цена:
2 870 000
Объявление снято с публикации
Условия продажи:«чистая» продажа
Ипотека:возможна

Объект № 103701. Продается квартира в хорошем теплом блочном доме в районе Сортировки. Рядом стадион Локомотив, парк 7 ключей. Остановка транспорта в 3 минутах. Рядом есть все для комфортной жизни - универсамы, школа, детский садик.
Закрытый охраняемый двор, выделенные места парковки во дворе, но сам двор без машин. Территория огорожена забором, въезд с пульта. Хорошая детская площадка. Чистый ухоженный подъезд.
Квартира улучшенной планировки, очень теплая. Заехать и жить можно, состояние жилое или можно сделать ремонт на свой вкус, не переплачивая за чужой. На первое время пригодится оставляемый кухонный гарнитур и мебель.
Ипотека возможна, более трех лет в собственности от первых владельцев. Приобреталась у застройщика. ***Гарантийный сертификат «Защита собственности» по данному объекту в подарок***

Объявление снято с публикации

Ипотечный калькулятор

лет
%
Сумма кредита
2870000 ₽
Платеж
22 540 ₽

История предложений в этом доме

объявление снято с публикации в продаже комнат площадь этаж цена,
Екатеринбург, ул. Червонная, 19 (Старая Сортировка) - фото квартиры 10 сентября 2025 90 дн. 2 81.5 2/10 6 400 000
Екатеринбург, ул. Червонная, 19 (Старая Сортировка) - фото квартиры 11 октября 2024 90 дн. 3 58.6 4/10 5 500 000
Екатеринбург, ул. Червонная, 19 (Старая Сортировка) - фото квартиры 21 августа 2025 90 дн. 3 58.7 5/10 5 800 000
Екатеринбург, ул. Червонная, 19 (Старая Сортировка) - фото квартиры 13 ноября 2025 90 дн. 3 58 9/10 5 750 000
Екатеринбург, ул. Червонная, 19 (Старая Сортировка) - фото квартиры 21 мая 2025 90 дн. 2 79 10/10 7 390 000
Екатеринбург, ул. Червонная, 19 (Старая Сортировка) - фото квартиры 26 марта 2025 90 дн. 3 84 12/12 7 500 000
Екатеринбург, ул. Червонная, 19 (Старая Сортировка) - фото квартиры 26 марта 2024 90 дн. 3 86.2 9/10 7 260 000
Екатеринбург, ул. Червонная, 19 (Старая Сортировка) - фото квартиры 11 декабря 2023 90 дн. 2 70.4 6/10 6 370 000
Екатеринбург, ул. Червонная, 19 (Старая Сортировка) - фото квартиры 22 сентября 2023 90 дн. 3 86 9/10 8 000 000
Екатеринбург, ул. Червонная, 19 (Старая Сортировка) - фото квартиры 28 июля 2023 90 дн. 2 71 10/10 6 000 000
Екатеринбург, ул. Червонная, 19 (Старая Сортировка) - фото квартиры 9 февраля 2023 90 дн. 3 61.2 8/10 4 800 000
Екатеринбург, ул. Червонная, 19 (Старая Сортировка) - фото квартиры 14 октября 2022 90 дн. 3 64.8 6/12 5 550 000
Екатеринбург, ул. Червонная, 19 (Старая Сортировка) - фото квартиры 19 января 2022 90 дн. 2 47.8 2/10 4 300 000
Екатеринбург, ул. Червонная, 19 (Старая Сортировка) - фото квартиры 2 августа 2021 60 дн. 2 66 1/10 4 000 000
Екатеринбург, ул. Червонная, 19 (Старая Сортировка) - фото квартиры 7 июня 2021 90 дн. 3 63 6/10 4 200 000
Екатеринбург, ул. Червонная, 19 (Старая Сортировка) - фото квартиры 29 июля 2021 90 дн. 2 81 7/10 5 100 000
Екатеринбург, ул. Червонная, 19 (Старая Сортировка) - фото квартиры 11 сентября 2021 90 дн. 3 58.7 7/10 4 400 000
Екатеринбург, ул. Червонная, 19 (Старая Сортировка) - фото квартиры 2 февраля 2021 90 дн. 2 48 2/9 3 050 000
Екатеринбург, ул. Червонная, 19 (Старая Сортировка) - фото квартиры 24 декабря 2020 90 дн. 2 47 3/10 3 350 000
Екатеринбург, ул. Червонная, 19 (Старая Сортировка) - фото квартиры 24 ноября 2020 90 дн. 3 58 2/10 3 300 000
Екатеринбург, ул. Червонная, 19 (Старая Сортировка) - фото квартиры 5 декабря 2020 90 дн. 3 60.5 10/10 4 450 000
Екатеринбург, ул. Червонная, 19 (Старая Сортировка) - фото квартиры 15 октября 2020 90 дн. 2 48 5/10 2 800 000
Екатеринбург, ул. Червонная, 19 (Старая Сортировка) - фото квартиры 2 февраля 2022 90 дн. 2 48 9/10 3 150 000
Екатеринбург, ул. Червонная, 19 (Старая Сортировка) - фото квартиры 8 ноября 2020 90 дн. 3 58 2/9 3 400 000
Екатеринбург, ул. Червонная, 19 (Старая Сортировка) - фото квартиры 25 августа 2020 90 дн. 3 90.6 6/9 4 300 000
Екатеринбург, ул. Червонная, 19 (Старая Сортировка) - фото квартиры 29 октября 2020 90 дн. 3 58.2 5/9 3 695 000
Екатеринбург, ул. Червонная, 19 (Старая Сортировка) - фото квартиры 30 марта 2020 90 дн. 1 28.5 1/9 1 950 000
Екатеринбург, ул. Червонная, 19 (Старая Сортировка) - фото квартиры 25 ноября 2020 90 дн. 3 90.6 6/10 4 300 000
Екатеринбург, ул. Червонная, 19 (Старая Сортировка) - фото квартиры 22 января 2020 90 дн. 3 91 6/10 5 100 000
Екатеринбург, ул. Червонная, 19 (Старая Сортировка) - фото квартиры 17 ноября 2019 90 дн. 3 58 5/10 3 500 000

Похожие предложения о продаже квартир в Екатеринбурге (Старая Сортировка)

  • 3-к квартира, Техническая, 51

    • 58 м2
    • 5/5 этаж
    • Состояние: плохое
    3 730 000 ₽ (64300 ₽/м2)
    Объект № 176575. Предлагается к продаже трехкомнатная квартира в популярной локации. Квартира под капитальный ремонт - пространство для Вашей фантазии. Есть отдельная кладовая комната, которая может быть переоборудована под гардеробную. Хорошая транспортная доступность, во дворе закрытое футбольное поле, детская площадка. Квартира без обременений и мск, ипотека возможна, документы готовы, прописанных нет, Быстрый выход на сделку. ***Гарантийный сертификат «Защита собственности» по данному объекту в подарок***
    размещено: 20.09.2023 , обновлено: 14.12.2025

Новостройки Екатеринбург, мкр-н. Старая Сортировка

Приоритет

Увеличивает просмотры в 3 раза

Ваше объявление показывается в списке выше обычных объявлений. подключить