На Метре реклама - только нормальная. Никакого шок-контента.
Помогайте независимому ресурсу, как он помогает вам. Удачи!
Новостройки Котт. посёлки Объявления Динамика цен и сделок

Продажа квартиры

  • опубликовано 5.03.2012 , обновлено 6.05.2023
  • 1148
Город:Екатеринбург
Рынок:вторичный
Количество комнат:2
Из них изолированных:2
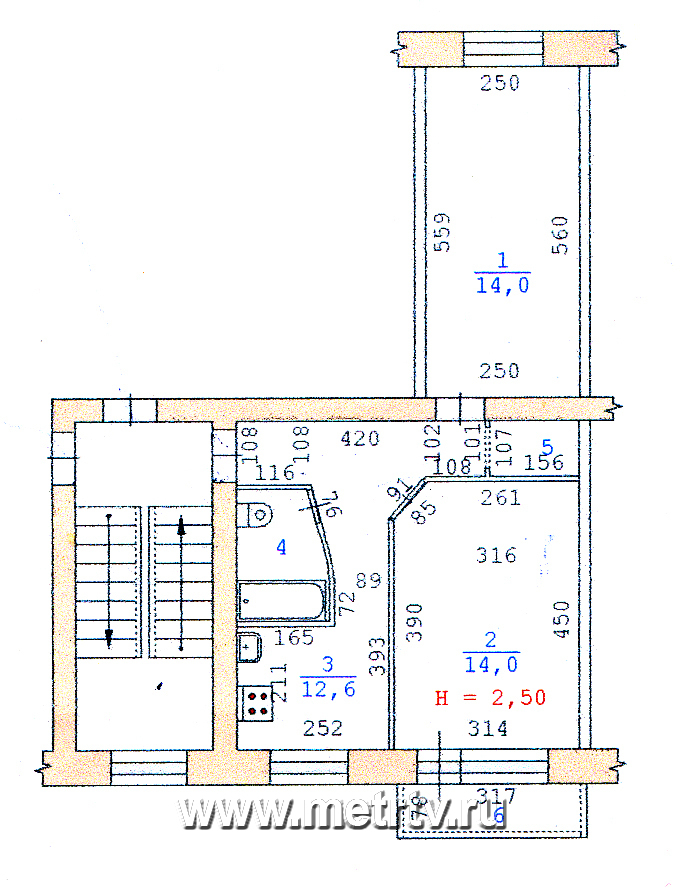
Планировка:«хрущевка»
Общая площадь:45 м2
Жилая площадь:28 м2
Площадь кухни:6 м2
Этаж/Этажность дома:5 / 5
Материал стен:кирпич
Санузел:совмещенный
Перепланировка:узаконена
Балкон/лоджия:балкон
Состояние:хорошее
Цена:
2 835 000
Объявление снято с публикации
Условия продажи:без разницы
Ипотека:возможна

Уютная, теплая квартира в кирпичном доме. Удобная перепланировка, есть вместительная кладовая, все комнаты изолированы. Телефон, интернет.

Удобное расположение от остановок (трамваи, троллейбусы, автобусы). Стоянка в двух минутах ходьбы от дома.

Объявление снято с публикации

Ипотечный калькулятор

лет
%
Сумма кредита
2835000 ₽
Платеж
22 540 ₽

История предложений в этом доме

объявление снято с публикации в продаже комнат площадь этаж цена,
Екатеринбург, ул. Чайковского, 13 (Автовокзал) - фото квартиры 31 мая 2023 90 дн. 3 51.5 1/5 5 150 000
Екатеринбург, ул. Чайковского, 13 (Автовокзал) - фото квартиры 25 января 2022 90 дн. 2 44.5 3/5 4 150 000
Екатеринбург, ул. Чайковского, 13 (Автовокзал) - фото квартиры 2 февраля 2022 90 дн. 3 51 1/5 3 700 000
Екатеринбург, ул. Чайковского, 13 (Автовокзал) - фото квартиры 24 сентября 2020 90 дн. 2 44.3 5/5 2 940 000
Екатеринбург, ул. Чайковского, 13 - фото квартиры 13 апреля 2020 90 дн. 1 30 1/5 2 800 000

Новостройки Екатеринбург, мкр-н. Автовокзал

Приоритет

Увеличивает просмотры в 3 раза

Ваше объявление показывается в списке выше обычных объявлений. подключить