На Метре реклама - только нормальная. Никакого шок-контента.
Помогайте независимому ресурсу, как он помогает вам. Удачи!
Новостройки Котт. посёлки Объявления Динамика цен и сделок

Продажа квартиры: Екатеринбург, ул. Блюхера, 95

  • опубликовано 14.10.2019 , обновлено 28.01.2025
  • 661
Рынок:вторичный
Срок сдачи: 2020 года
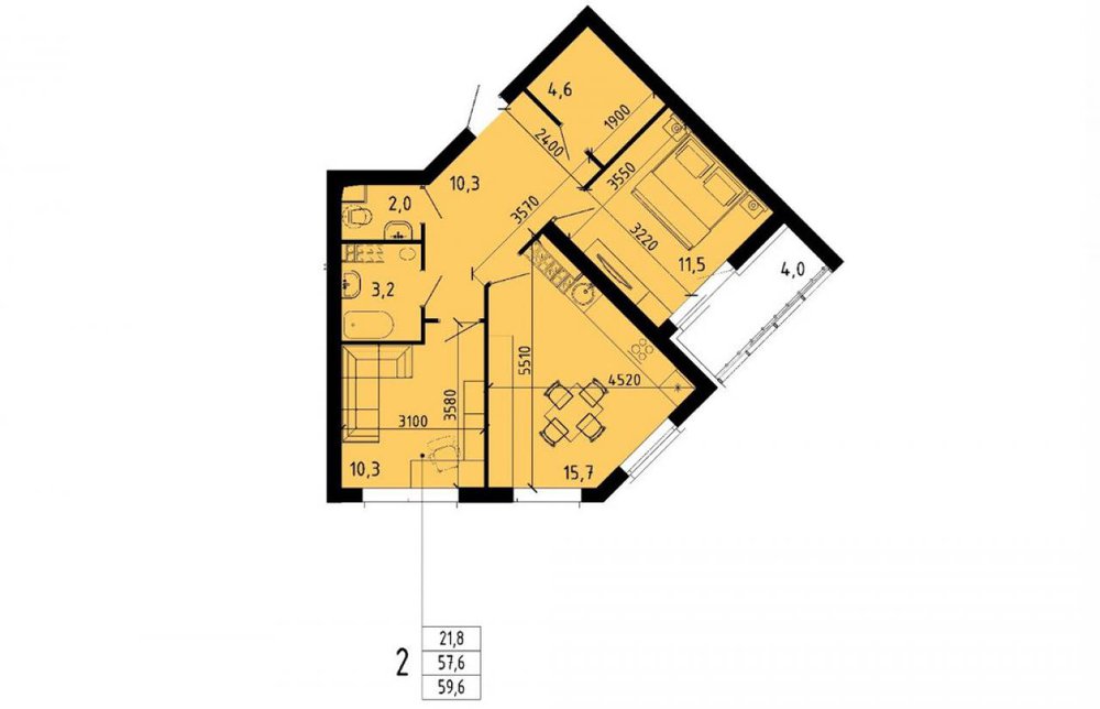
Количество комнат:2
Общая площадь:59.6 м2
Жилая площадь:21.8 м2
Площадь кухни:15.7 м2
Этаж/Этажность дома:7 / 22
Год постройки:2020
Балкон/лоджия:балкон
Цена:
3 534 736
Объявление снято с публикации
Коммунальные платежи:оплачиваются отдельно
Условия продажи:«чистая» продажа

Краткая характеристика объекта: Трехсекционный жилой дом. Материал стен: монолит, твин-блок, утеплитель, декоративная штукатурка; Всего квартир в доме — 441. Подземная одноуровневая автостоянка на 78 машиномест и 13 мотомест. Отделка квартир: 1к и 2к — «под ключ»: Металлические входные сейф-двери. Межкомнатные двери. Обои. Ламинат. Сантехника. Современные алюминиевые радиаторы. Счетчики электроэнергии. Горизонтальная разводка отопления с установкой приборов учета тепла. Застекленная лоджия. Собственная газовая котельная 3к «отделка под чистовую». Благоустройство территории: Автостоянки временного пребывания.. Баскетбольная площадка. Площадка отдыха взрослого населения. Детская игровая площадка (оборудована песочницей, детским городком, горкой, качелью-балансир, качелью, детской каруселью). Мусороконтейнерная площадка с площадкой для крупногабаритного мусора. Хозяйственная площадка. Беговая дорожка. Озеленение предусмотрено вдоль основных пешеходных маршрутов и площадок. Газоны расположены на свободных от застройки и проездов участках.

Информацию о наличии квартир и скидках уточняйте по телефону
ID объекта в нашей базе: 4490

Объявление снято с публикации

Ипотечный калькулятор

лет
%
Сумма кредита
3534736 ₽
Платеж
22 540 ₽

Актуальные предложения в ЖК «Уральский»

  • 1-к квартира, Блюхера, 99

    • 34.5 м2
    • 14/25 этаж
    • Состояние:
    6 490 000 ₽ (188100 ₽/м2)
    Продается однокомнатная квартира в ЖК Уральский. Хорошее месторасположение, развитая инфраструктура, большая отгороженная территория двора, в шаговой доступности магазины, аптеки, остановки общественного транспорта. В подарок покупателю остается кухонный гарнитур со встроенной техникой, встроенный шкаф в коридоре. По договоренности оставить можно почти все. Чистая продажа, один взрослый собственник, ипотека возможна. ID объекта в нашей базе: 434
    размещено: 02.02.2026 , обновлено: 5.02.2026
  • 1-к квартира, Блюхера, 97

    • 55.9 м2
    • 1/26 этаж
    • Состояние:
    8 400 000 ₽ (150300 ₽/м2)
    Квартира в современном жилом квартале "Уральский" со своей внутренней инфраструктурой: торговыми галереями на первых этажах, благоустроенными детскими площадками и спортивными зонами, общественной автопарковкой и тд.Отличная планировка в формате евродвушки: отдельные кухня-гостиная и комната, просторный холл с нишей под гардеробную и хранение вещей. Своя УК. В шаговой доступности разнообразный общественный транспорт, любимое место активного отдыха - лесопарк и пляжная зона озера Шарташ, современная жилая застройка, хорошие образовательные и детские учреждения.Квартира уже освобождена, возможен быстрый выход на сделку!Чистая продажа. 2 взрослых собственника. БЕЗ залогов, обременений, детских долей и прочего. Документы проверены! Просмотры по предварительному согласованию. Более подробная информация по указанному телефону. Звоните) ID объекта в нашей базе: 5118
    размещено: 14.01.2026 , обновлено: 26.01.2026
  • 2-к квартира, Блюхера, 97

    • 48.3 м2
    • 21/22 этаж
    • Состояние:
    6 950 000 ₽ (143900 ₽/м2)
    Видовая евро-двушка в новом жилом комплексе комфорт-класса ЖК «Уральский»Продаётся квартира — евро-двушка (одна спальня + кухня-гостиная+ шикарная лоджия с панорамными видами) в современном жилом комплексе комфорт-класса ЖК «Уральский» с закрытой территорией и круглосуточным видеонаблюдением.Просторная кухня-гостиная, высота потолков 2,80 м, большой балкон с выходом из кухни и спальни -9,8 кв.м.В квартире остаются кухонный гарнитур и встроенный шкаф-купе. Удобная планировка, высокий этаж, панорамный вид на город, который будет радовать каждое утро.Для автомобилей предусмотрены подземный паркинг и наземные парковочные места вокруг дома.Во дворе оборудованы детские игровые площадки для разных возрастов, а также зона Workout, футбольная и баскетбольная площадки для активного отдыха,уникальный лаунж-парк с амфитеатром, мини-гольфом и музыкальными зонами отдыха.Инфраструктура:• До центра города — 18 минут на машине, до пл. 1905г.• Пионерский район, озеро Шарташ и Шарташский лесопарк.• Детские сады: №468 в 500 м, ещё 6 садов в радиусе 1,5 км• Школы: №176, №80, №163• Вузы: СУНЦ УрФУ, УрГЮУ, УрФУ, УГМУ• Медицинские учреждения: поликлиника №1, частные медцентры («Здоровье», «Авиценна», «Юнимед»)• Торговые центры: ТРЦ «Парк Хаус» и ТЦ «Апельсин»• Спорт: СК «Урал» с бассейном — 15 мин пешком• Транспорт: трамвай «Шарташ» (200 м), автобус (400 м)✨Квартира освобожден, ЧИСТАЯ ПРОДАЖА, взрослый собственник, документы готовы, все виды оасчетов/ ипотека! Квартира ждёт своего нового хозяина! Звоните прямо сейчас, чтобы договориться о просмотре и сделать первый шаг к комфортной жизни! ID объекта в нашей базе: 743
    размещено: 02.11.2025 , обновлено: 5.02.2026
  • 3-к квартира, Блюхера, 97

    • 97.5 м2
    • 24/26 этаж
    • Состояние:
    14 000 000 ₽ (143600 ₽/м2)
    Продается видовая просторная квартира с дизайнерским проектом на 24 этаже в ЖК «Уральский» Идеальный вариант для ценителей комфорта и современных решений: в квартире никто не проживал — все новое.Планировка и метраж:- Просторная кухня-гостиная 42 м² — сердце дома для семейных ужинов и приема гостей.- Мастер-спальня 14 м² с отдельной гардеробной 4,4 м² — личная зона комфорта.- Детская 13 м² — продуманное пространство для отдыха и учебы.- Кабинет 4 м² — уютное место для уединения и работы.- Два санузла и прачечная — максимум удобства для повседневной жизни.- На этаже всего 4 квартиры — тишина и приватность.- Панорамные окна на восток: в квартире много естественного света и при этом не жарко; из окон открываются великолепные виды.- Высота потолков 2,7 м — ощущение воздуха и пространства.- Профессиональный дизайнерский проект.- Премиальные светильники согласно дизайн-проекту.- Никто не проживал — чистота и свежесть нового дома.- Закрытая территория под охраной и круглосуточным видеонаблюдением.- Во дворе — детские и спортивные площадки.- В пешей доступности супермаркеты «Магнит» и «Пятёрочка», детские сады и школы № 165, 125, 47, остановки общественного транспорта.- Рядом лесопарк с озером Шарташ — отличное место для прогулок и спорта.- Парковочные решения: гостевая парковка и места вокруг комплекса, удобный доступ к лифтам. Торг возможен. Готовы показать квартиру в удобное для вас время, по предварительной договоренности. Никакой комиссии по данному обьекту. Юридическая чистота. ID объекта в нашей базе: 8481
    размещено: 18.04.2025 , обновлено: 9.01.2026
  • 2-к квартира, Блюхера, 97

    • 58 м2
    • 10/26 этаж
    • Состояние:
    9 000 000 ₽ (155200 ₽/м2)
    Объект № 189103. Продается двухкомнатная квартира в ЖК Уральский в Екатеринбурге! Просторная и светлая двухкомнатная квартира в современном и уютном жилом комплексе Уральский. Удобная планировка, высокий потолок и большие окна создают атмосферу комфорта и уюта. Квартира идеально подходит как для проживания, так и для сдачи в аренду. Видовой 10 этаж, лоджия остеклена панорамными окнами. Развитая инфраструктура: рядом расположены магазины, школы, детские сады, спортивные и развлекательные объекты. Удобный транспорт: хорошая транспортная доступность, остановки общественного транспорта в шаговой доступности. Зеленые зоны для прогулок: поблизости парки, скверы и озеро Шарташ. Возможность оформления ипотеки. Чистая продажа, Один собственник. Подземный паркинг, закрытый двор и видеонаблюдение по всему периметру ЖК. Цена: 9 000 000 рублей. Не упустите возможность приобрести вашу мечту! ***Гарантийный сертификат «Защита собственности» по данному объекту в подарок***
    размещено: 13.01.2025 , обновлено: 5.02.2026

История предложений в этом доме

объявление снято с публикации в продаже комнат площадь этаж цена,
Екатеринбург, ул. Блюхера, 97 (Пионерский) - фото квартиры 4 января 2026 90 дн. 2 53.6 20/22 8 990 000
Екатеринбург, ул. Блюхера, 97 (Пионерский) - фото квартиры 16 декабря 2025 90 дн. 1 35.5 14/26 6 250 000
Екатеринбург, ул. Блюхера, 97 (Пионерский) - фото квартиры 29 января 2026 90 дн. 1 19.9 16/23 5 550 000
Екатеринбург, ул. Блюхера, 97 (Пионерский) - фото квартиры 13 октября 2025 60 дн. 1 48.7 25/26 7 600 000
Екатеринбург, ул. Блюхера, 97 (Пионерский) - фото квартиры 23 сентября 2025 90 дн. 1 37.3 20/27 6 150 000
Екатеринбург, ул. Блюхера, 97 (Пионерский) - фото квартиры 23 октября 2025 90 дн. 1 31.4 4/26 5 100 000
Екатеринбург, ул. Блюхера, 97 (Пионерский) - фото квартиры 16 сентября 2025 90 дн. 1 31.4 4/26 5 100 000
Екатеринбург, ул. Блюхера, 97 (Пионерский) - фото квартиры 3 ноября 2025 90 дн. 2 59.4 21/22 7 000 000
31 октября 2025 90 дн. 2 46.2 5/26 6 750 000
30 июля 2025 90 дн. 2 55.15 13/16 7 970 430
16 июля 2025 90 дн. 2 62.05 8/23 9 066 324
Екатеринбург, ул. Блюхера, 89 (Пионерский) - фото квартиры 16 мая 2025 90 дн. 3 78.5 18/25 13 500 000
18 июня 2025 90 дн. 2 48.37 3/23 7 310 789
19 октября 2025 90 дн. 1 43.2 1/23 6 819 206
28 мая 2025 90 дн. 1 42.5 1/23 6 459 363
22 августа 2025 90 дн. 3 82 6/23 10 975 500
12 ноября 2025 90 дн. 2 62.5 2/16 8 307 360
8 ноября 2025 90 дн. 1 45.6 2/16 7 028 104
19 апреля 2025 90 дн. 2 65.6 4/16 8 411 040
25 июля 2025 90 дн. 2 67.2 4/16 9 209 052
29 июля 2025 90 дн. 2 65.7 3/16 8 424 000
17 октября 2025 90 дн. 2 64.1 5/16 9 209 052
26 июня 2025 90 дн. 2 65.6 8/16 8 411 040
25 июня 2025 90 дн. 2 65.5 10/16 8 398 080
8 августа 2025 90 дн. 2 67.1 11/16 9 266 400
13 января 2026 90 дн. 2 67 2/16 8 520 120
30 апреля 2025 90 дн. 1 48.9 2/16 7 382 207
8 ноября 2025 90 дн. 1 47.8 1/16 7 389 915
16 августа 2025 90 дн. 2 58.1 1/16 8 296 008
25 сентября 2025 90 дн. 2 68.37 6/16 8 669 160

Похожие предложения о продаже квартир в Екатеринбурге (Пионерский)

  • 2-к квартира, Сахалинская, 3

    • 42 м2
    • 1/5 этаж
    • Состояние: хорошее
    4 500 000 ₽ (107100 ₽/м2)
    В чистой продаже двухкомнатная квартира в кирпичном доме на 1 этаже. Общая площадь изолированных комнат 42 кв м. В квартире остается в подарок кухонный гарнитур, шкаф в прихожей, кровать двухспальная и навесной шкаф в ванной. Инфраструктура развита: Ozon и Wildberries, в шаговой доступности детские сады 459, 468, гимназия 47, СОК Урал с бассейном, КЦ УРАЛ, , магазины продуктовые, аптеки, остановки общественного транспорта (около дома расположены трамвайные и автобусные остановки). Чистая продажа. Один взрослый собственник. Была произведена перепланировка, по документам все узаконено. Ключи в день сделки. ID объекта в нашей базе: 26273
    размещено: 02.02.2026 , обновлено: 5.02.2026

Новостройки Екатеринбург, мкр-н. Пионерский

Приоритет

Увеличивает просмотры в 3 раза

Ваше объявление показывается в списке выше обычных объявлений. подключить