На Метре реклама - только нормальная. Никакого шок-контента.
Помогайте независимому ресурсу, как он помогает вам. Удачи!
Новостройки Котт. посёлки Объявления Динамика цен и сделок

Продажа квартиры: Екатеринбург, ул. Дорожная, 11 (Вторчермет)

  • опубликовано 5.03.2020 , обновлено 22.09.2025
  • 94
Рынок:вторичный
Срок сдачи: 2009 года
Количество комнат:1
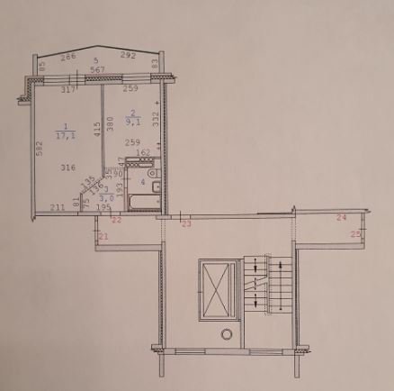
Общая площадь:32.3 м2
Жилая площадь:18 м2
Площадь кухни:11 м2
Этаж/Этажность дома:5 / 16
Санузел:совмещенный
Отделка:косметический
Год постройки:2009
Балкон/лоджия:лоджия
Цена:
2 450 000
Объявление снято с публикации

Продается теплая, уютная, светлая 1 комнатная квартира .

РАЙОН: 
Чкаловский

ДОМ:  2009 года постройки

КВАРТИРА: 
Квартира чистая, теплая уютная. Потолки 265. Кухня правильной квадратной формы 11 кв.м., комната 17, кв.м., из комнаты выход на большую 10 метровую лоджию, откуда открывается прекрасный вид на Уктусские горы, на восток, квартира выходит окнами во двор, поэтому в квартире тихо, транспорт с улицы не слышен.

ИНФРАСТРУКТУРА: 
Напротив дома находится остановка общественного транспорта, рядом в доме находятся магазины «Пятерочка» и «Монетка», а также детский сад 341, 546,Семицветик и школа 84.

ЮРИДИЧЕСКАЯ ЧИСТОТА:  квартира без обременений и арестов, быстрый выход на сделку.


ДОПОЛНИТЕЛЬНАЯ ИНФОРМАЦИЯ:Понравился наш вариант, а на покупку не хватает средств? Мы согласуем ипотеку дешевле, чем в банке. За счет партнерской программы, более 10 банков снижают ставку для наших клиентов. У Вас обмен и своя недвижимость еще не продана? Предложите её, у нас более 100 агентов и чаще всего, покупатель уже есть.Никакой комиссии при покупке данного объекта недвижимости!Звоните и приходите на просмотр!!!

#объект в нашей базе №8877748#

Объявление снято с публикации

Ипотечный калькулятор

лет
%
Сумма кредита
2450000 ₽
Платеж
22 540 ₽

История предложений в этом доме

объявление снято с публикации в продаже комнат площадь этаж цена,
Екатеринбург, ул. Дорожная, 11 (Вторчермет) - фото квартиры 16 апреля 2025 90 дн. 2 59 9/10 6 370 000
Екатеринбург, ул. Дорожная, 11 (Вторчермет) - фото квартиры 26 января 2025 90 дн. 1 32.2 4/10 4 200 000
Екатеринбург, ул. Дорожная, 11 (Вторчермет) - фото квартиры 29 сентября 2024 90 дн. 1 32.3 6/10 4 250 000
Екатеринбург, ул. Дорожная, 11 (Вторчермет) - фото квартиры 11 июня 2024 90 дн. 1 32.3 7/10 4 000 000
Екатеринбург, ул. Дорожная, 11 (Вторчермет) - фото квартиры 22 июня 2023 90 дн. 1 33 5/10 3 450 000
Екатеринбург, ул. Дорожная, 11 (Вторчермет) - фото квартиры 7 февраля 2023 90 дн. 2 59.2 8/10 5 600 000
Екатеринбург, ул. Дорожная, 11 (Вторчермет) - фото квартиры 3 декабря 2022 90 дн. 1 32.3 5/10 3 700 000
Екатеринбург, ул. Дорожная, 11 (Вторчермет) - фото квартиры 5 октября 2022 90 дн. 1 32.3 7/10 3 400 000
Екатеринбург, ул. Дорожная, 11 (Вторчермет) - фото квартиры 26 июля 2022 90 дн. 1 32.3 5/10 3 600 000
Екатеринбург, ул. Дорожная, 11 (Вторчермет) - фото квартиры 17 июня 2022 90 дн. 1 32 10/10 2 250 000
6 мая 2022 90 дн. 1 41 27/33 3 500 000
Екатеринбург, ул. Дорожная, 11 (Вторчермет) - фото квартиры 10 марта 2022 90 дн. 3 59 2/10 5 700 000
Екатеринбург, ул. Дорожная, 11 (Вторчермет) - фото квартиры 4 декабря 2021 90 дн. 2 59.5 3/10 4 690 000
Екатеринбург, ул. Дорожная, 11 (Вторчермет) - фото квартиры 11 января 2022 90 дн. 2 59 2/10 5 100 000
Екатеринбург, ул. Дорожная, 11 (Вторчермет) - фото квартиры 30 октября 2021 90 дн. 2 58.2 1/10 4 700 000
Екатеринбург, ул. Дорожная, 11 (Вторчермет) - фото квартиры 7 октября 2021 90 дн. 2 59 2/10 5 100 000
Екатеринбург, ул. Дорожная, 11 (Вторчермет) - фото квартиры 3 августа 2021 90 дн. 2 59 2/10 4 900 000
Екатеринбург, ул. Дорожная, 11 (Вторчермет) - фото квартиры 24 июля 2021 90 дн. 2 59 2/10 5 100 000
Екатеринбург, ул. Дорожная, 11 (Вторчермет) - фото квартиры 17 августа 2021 90 дн. 2 58.7 2/10 4 200 000
Екатеринбург, ул. Дорожная, 11 (Вторчермет) - фото квартиры 19 июня 2021 90 дн. 2 59.5 7/10 4 250 000
Екатеринбург, ул. Дорожная, 11 (Вторчермет) - фото квартиры 31 марта 2021 90 дн. 1 32 6/10 3 000 000
Екатеринбург, ул. Дорожная, 11 (Вторчермет) - фото квартиры 30 марта 2021 90 дн. 2 59 9/10 4 300 000
Екатеринбург, ул. Дорожная, 11 (Вторчермет) - фото квартиры 29 июня 2021 90 дн. 1 32 10/10 3 020 000
Екатеринбург, ул. Дорожная, 11 (Вторчермет) - фото квартиры 2 февраля 2022 90 дн. 1 32.4 6/10 3 100 000
Екатеринбург, ул. Дорожная, 11 (Вторчермет) - фото квартиры 2 февраля 2022 90 дн. 1 31.7 8/10 2 500 000
Екатеринбург, ул. Дорожная, 11 (Вторчермет) - фото квартиры 17 июня 2020 90 дн. 1 39 5/10 2 400 000
Екатеринбург, ул. Дорожная, 11 (Вторчермет) - фото квартиры 2 февраля 2022 90 дн. 1 32.4 7/10 2 400 000
Екатеринбург, ул. Дорожная, 11 (Вторчермет) - фото квартиры 30 июня 2020 90 дн. 1 32.1 9/10 2 510 000
Екатеринбург, ул. Дорожная, 11 (Вторчермет) - фото квартиры 8 августа 2020 90 дн. 2 60 5/10 3 550 000
Екатеринбург, ул. Дорожная, 11 (Вторчермет) - фото квартиры 23 июня 2020 90 дн. 1 33 5/10 2 690 000

Похожие предложения о продаже квартир в Екатеринбурге (Вторчермет)

  • 1-к квартира, Ферганская, 2

    • 28.6 м2
    • 2/5 этаж
    • Состояние: плохое
    3 150 000 ₽ (110100 ₽/м2)
    Объект № 194685. Однокомнатная квартира на втором этаже, светлая с двумя окнами в комнате. Детская площадка во дворе дома. Развитая инфраструктура: продуктовые супермаркеты, аптеки, школа, детский сад, парк, общественный транспорт в нескольких минутах от дома. ***Гарантийный сертификат «Защита собственности» по данному объекту в подарок***
    размещено: 01.10.2025 , обновлено: 6.11.2025
  • 1-к квартира, Ляпустина, 13

    • 31 м2
    • 2/5 этаж
    • Состояние: хорошее
    2 300 000 ₽ (74200 ₽/м2)
    В продаже уникальное предложение квартира по цене комнаты!Район : Чкаловский, Вторчермет.Дом: 1983 года постройки , кирпич (шумоизоляция отличная) в 2023 произведен капремонт (замена стояков, труб) Две комнаты с хорошей площадью (17.6 кв.м. и 13 кв.м.) Зона кухни оборудована эл.плитой , также есть возможность подключить стиральную машинку или раковину (вода заведена в комнату) В секции всего одни соседи, у Вас есть возможность организовать ведение хозяйства на свое усмотрение. Места общего пользования в чистоте и порядке. Имеется общая большая лоджия. В шаговой доступности общественный транспорт, школы и дет.сады. - обременений нет- долгов нет- собственность более 10 лет- можно приобрести в ипотеку с использованием маткапа.- показ в любое удобное время ( квартира освобождена) ID объекта в нашей базе: 8901
    размещено: 25.09.2025 , обновлено: 9.11.2025
  • 1-к квартира, Симферопольская, 24

    • 34.4 м2
    • 4/5 этаж
    • Состояние: хорошее
    3 000 000 ₽ (87200 ₽/м2)
    К продаже представлена полноценная однокомнатная квартира в одном из спальных районов города Екатеринбурга. У дома удачное расположение и удобная транспортная развязка. Есть выезды как во внутрь района так на объездную и ЕКАД. Сам дом находится в тихом месте. Состояние на фото. Квартира освобождена и готова к продаже, ключи готовы будем передать в день сделки. Звоните, готов ответить на все интересующие вас вопросы. ID объекта в нашей базе: 3465
    размещено: 25.08.2025 , обновлено: 5.11.2025
  • 1-к квартира, Симферопольская, 34

    • 28.5 м2
    • 4/5 этаж
    • Состояние: удовлетворительное
    3 150 000 ₽ (110500 ₽/м2)
    Предлагается к продаже уютная 1- кк квартира , площадью 28, 5 м", в тихом районе.Квартира расположена на 4 этаже , просторный коридор, кладовая, совмещенный санузел. Места общего пользования в хорошем состоянии. В подъезде установлен домофон. Придомовая территория оборудована парковочными местами и детской площадкой. Все необходимое рядом: магазины, супермаркеты, аптеки, школы и дошкольные учреждения, остановки общественного транспорта. Квартира без залогов. Документы в порядке, квартира освобождена, быстрый выход на сделку. Требуется ремонт.Возможен обмен на 2кк квартиру. ID объекта в нашей базе: 11612
    размещено: 12.08.2025 , обновлено: 6.11.2025
  • 1-к квартира, Титова, 27А

    • 21.4 м2
    • 5/5 этаж
    • Состояние: хорошее
    2 600 000 ₽ (121500 ₽/м2)
    Продам 1-ную квартиру в центре Вторчермета! Полноценная однокомнатная квартира, по документам две комнаты. Большая лоджия, вся мебель и бытовая техника остается в квартире. Рядом вся необходимая инфраструктура: детские сады, площадки, парк, пруд. Магазин находится прямо в доме.Остановки общественного транспорта в 5 минутах, до центра 15 минут.Документы готовы, быстрый выход на сделку. Звоните, расскажу более подробно, организую оперативно для Вас просмотр. Покупка новостройки, одобрение ипотеки по ставке 3,5% БЕЗ КОМИССИИ. ID объекта в нашей базе: 10182
    размещено: 08.07.2025 , обновлено: 7.11.2025

    1-к квартира, Титова, 25а

    • 27.9 м2
    • 1/9 этаж
    • Состояние: хорошее
    2 500 000 ₽ (89600 ₽/м2)
    В продаже - эксклюзив: однокомнатная квартира с мастер-спальней и лоджией.Продаём:- как целый объект либо - любое из двух самостоятельных помещений-студий.Использовать можно по-разному: ✅ для собственного проживания (подойдёт студентам, молодой паре как первое "семейное гнездо", самостоятельному молодому человеку, разновозрастной семье, в сложных семейных ситуациях ....), а также✅ для сдачи в аренду (установлены все счётчики учёта энергоносителей, учёт раздельный).Ремонт свежий, с заменой коммуникаций. Фотографии соответствуют действительности.В доме выполнен капремонт систем водоотведения и водоснабжения.Мебель и технику можем оставить.Очень высокий первый этаж девятиэтажного дома.Окна направлены во двор. Двор спокойный закрытый , просторный, с большой стоянкой для автомобилей и видеонаблюдением.Очень удачное расположение дома:до метро 10 минут, до центра менее получаса.Рядом с домом - остановки общественного транспорта (трамвай, автобус):на конечной остановке трамваев 1 и 15 сходятся три улицы — Титова, Санаторная и Селькоровская;через район проходят автобусные маршруты 9, 11, 11 м, 12, 81, 019, 016, 26, 42, 077, 57, 042;с 2005 года работает станция городской электрички.И это центральный Вторчермет. В районе работают: 4 школы и 8 детских садов; парк Камвольного комбината (любимое место жителей Вторчермета для прогулок на свежем воздухе. Здесь можно покормить уток в пруду, поиграть с ребёнком на детской площадке или заняться спортом на оборудованной территории); 2 поликлиники и частные медицинские кабинеты; спортивные площадки и фитнес-центры. торговый центр «Южный» с супермаркетами, салонами красоты, ателье, фотосалоном. Квартира без долгов и обременений.Цена обсуждается - рассмотрим все предложения (указана цена отдельного помещения).Согласуем время просмотра- звоните. ID объекта в нашей базе: 17524
    размещено: 09.06.2025 , обновлено: 4.11.2025

    1-к квартира, Селькоровская, 76/1

    • 24.5 м2
    • 3/5 этаж
    • Состояние: удовлетворительное
    2 969 000 ₽ (121200 ₽/м2)
    Продаётся уютная однокомнатная квартира по доступной цене в микрорайоне Вторчермет! Квартира в отличной локации - удобный выезд на ЕКАД на личном автотранспорте и автобусная остановка прямо у дома, если передвигаетесь на общественном транспорте.Подъезд чистый, соседи спокойные и порядочные. Во дворе дома есть детская площадка. Рядом футбольная площадка и хоккейный корт. В шаговой доступности от дома находятся детский сад № 528, 131; школа № 21; поликлиника № 24; отделение Сбербанка; почтовое отделение; сетевые магазины «Пятёрочка» и «Кировский»; пункты выдачи Ozon и Wildberries; парк имени Чкалова. Автобусная остановка рядом с домом, недалеко трамвайная остановка. Квартира освобождена. Ждем вас на просмотр. ID объекта в нашей базе: 11316
    размещено: 21.05.2025 , обновлено: 4.11.2025

    1-к квартира, Селькоровская, 102/1

    • 29 м2
    • 4/5 этаж
    • Состояние: плохое
    2 900 000 ₽ (100000 ₽/м2)
    Внесен аванс до 30 ноября . Продается квартира кирпичном доме, тепло-шумоизоляция лучше чем в новых домах, окна пластиковые , санузел совмещенный, до станции Керамик 2 мин, будете быстро добираться до центра города и обратно. садик во дворе. Документы проверены , быстрый выход на сделку. Квартира освобождена, требуется капитальный ремонт. Торг возможен. ID объекта в нашей базе: 3874
    размещено: 19.03.2025 , обновлено: 5.11.2025

Новостройки Екатеринбург, мкр-н. Вторчермет

Приоритет

Увеличивает просмотры в 3 раза

Ваше объявление показывается в списке выше обычных объявлений. подключить