На Метре реклама - только нормальная. Никакого шок-контента.
Помогайте независимому ресурсу, как он помогает вам. Удачи!
Новостройки Котт. посёлки Объявления Динамика цен и сделок

Продажа квартиры: Екатеринбург, ул. Билимбаевская, 31/1 (Старая Сортировка)

  • опубликовано 29.05.2020 , обновлено 25.08.2025
  • 83
Кадастровый номер:66:41:0204011:2094
Рынок:вторичный
Срок сдачи: 1990 года
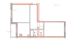
Количество комнат:4
Общая площадь:77 м2
Жилая площадь:41 м2
Площадь кухни:8 м2
Этаж/Этажность дома:1 / 5
Санузел:раздельный
Отделка:евроремонт
Год постройки:1990
Состояние:хорошее
Цена:
3 650 000
Объявление снято с публикации
Коммунальные платежи:оплачиваются отдельно
Ипотека:возможна

Объект № 121726. В продаже эксклюзивная большая квартира в спальном районе Старой Сортировки. Дом находится во дворах, на значительном удалении от проезжей части, благодаря чему не слышно шума от дороги. Материал стен - кирпич.
Идеальная планировка и геометрия квартиры площадью 77 м2, состоящая из четырёх комнат, отлично разместит большую семью, а также даст возможность каждому члену семьи иметь свое личное пространство!

Звоните, записывайтесь на просмотр. ***Гарантийный сертификат «Защита собственности» по данному объекту в подарок***

Объявление снято с публикации

Ипотечный калькулятор

лет
%
Сумма кредита
3650000 ₽
Платеж
22 540 ₽

Актуальные предложения в этом доме

  • 2-к квартира, Билимбаевская, 31/1

    • 50.4 м2
    • 1/5 этаж
    • Состояние:
    3 800 000 ₽ (75400 ₽/м2)
    Объект № 194748. Продам 2-комнатную квартиру на Билимбаевской, 31/1. Продается просторная и невероятно тёплая двухкомнатная квартира в кирпичном доме улучшенной планировки. Ключевые преимущества: высокий первый этаж - никаких проблем с сыростью и недостатком света. Окна на разные стороны. Квартира всегда светлая, хорошо проветривается. Улучшенная планировка- удобное зонирование, нет проходных комнат. Кирпичный дом. Тёплые стены, отличная звукоизоляция. Отличное состояние, готова к проживанию. Дом расположен в развитом районе с всей необходимой инфраструктурой. Звоните, чтобы назначить просмотр! ***Гарантийный сертификат «Защита собственности» по данному объекту в подарок***
    размещено: 08.10.2025 , обновлено: 11.11.2025

История предложений в этом доме

объявление снято с публикации в продаже комнат площадь этаж цена,
Екатеринбург, ул. Билимбаевская, 31/1 (Старая Сортировка) - фото квартиры 4 июля 2025 90 дн. 2 50.4 1/5 4 299 000
Екатеринбург, ул. Билимбаевская, 31/1 (Старая Сортировка) - фото квартиры 20 марта 2025 90 дн. 3 61.6 4/5 5 150 000
Екатеринбург, ул. Билимбаевская, 31/1 (Старая Сортировка) - фото квартиры 8 августа 2023 90 дн. 3 62 3/5 5 700 000
Екатеринбург, ул. Билимбаевская, 31/1 (Старая Сортировка) - фото квартиры 14 декабря 2022 90 дн. 3 61.6 3/5 4 700 000
Екатеринбург, ул. Билимбаевская, 31/1 (Старая Сортировка) - фото квартиры 8 апреля 2021 90 дн. 1 33 2/5 2 720 000
Екатеринбург, ул. Билимбаевская, 31/1 (Старая Сортировка) - фото квартиры 2 февраля 2021 90 дн. 4 77 1/5 3 650 000
Екатеринбург, ул. Билимбаевская, 31/1 (Старая Сортировка) - фото квартиры 3 ноября 2020 90 дн. 1 32 2/5 2 299 000
Екатеринбург, ул. Билимбаевская, 31/1 (Старая Сортировка) - фото квартиры 2 августа 2019 90 дн. 1 33 2/5 2 050 000
28 сентября 2018 92 дн. 4 76 1/5 3 450 000
31 декабря 2015 61 дн. 3 63 5/5 3 350 000

Новостройки Екатеринбург, мкр-н. Старая Сортировка

Приоритет

Увеличивает просмотры в 3 раза

Ваше объявление показывается в списке выше обычных объявлений. подключить