На Метре реклама - только нормальная. Никакого шок-контента.
Помогайте независимому ресурсу, как он помогает вам. Удачи!
Новостройки Котт. посёлки Объявления Динамика цен и сделок

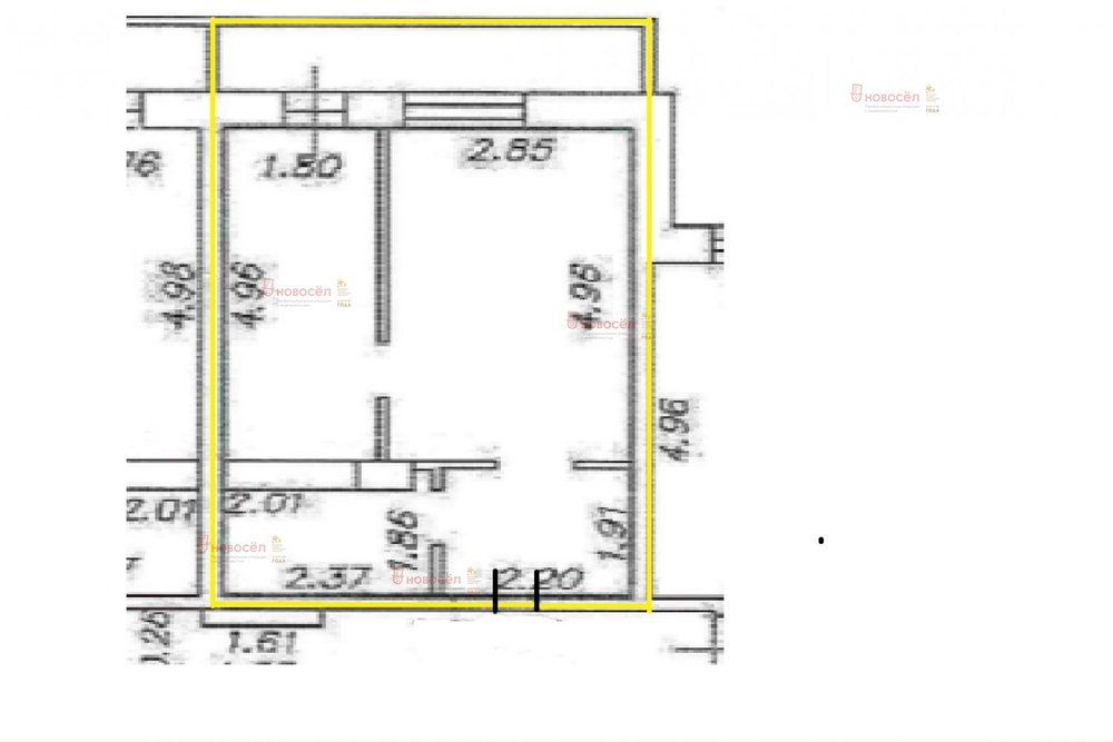
Продажа квартиры: г. Березовский, ул. Восточная, 3 (городской округ Березовский)

  • опубликовано 18.06.2020 , обновлено 19.09.2025
  • 100
Кадастровый номер:66:35:0105004:2680
Рынок:вторичный
Срок сдачи: 2015 года
Количество комнат:1
Общая площадь:31 м2
Жилая площадь:14 м2
Площадь кухни:8 м2
Этаж/Этажность дома:14 / 16
Санузел:совмещенный
Отделка:евроремонт
Год постройки:2015
Состояние:хорошее
Цена:
2 200 000
Объявление снято с публикации
Коммунальные платежи:оплачиваются отдельно
Ипотека:возможна

Объект № 121584. Отличный вариант однокомнатной квартиры в центре города Березовский! Застройщик- Активстройсервис, отличающийся высоким качеством строительства.
Квартира очень светлая. Особое преимущество в расположении лоджии- выход из кухни. В каждой квартире установлены двухтарифные электросчетчики и водомеры; горизонтальная разводка труб; оборудованы входы для слаботочных сетей (Интернет, телефон, цифровое телевидение).
Бесшумные лифты. Двор охраняемый, закрытый с видеонаблюдением. Во дворе: спортивные и детские игровые площадки, зона для отдыха взрослых, многоуровневое озеленение.
Ипотека возможна. Если необходимо, поможем с её оформлением. ***Гарантийный сертификат «Защита собственности» по данному объекту в подарок***

Объявление снято с публикации

Ипотечный калькулятор

лет
%
Сумма кредита
2200000 ₽
Платеж
22 540 ₽

Актуальные предложения в этом доме

  • 2-к квартира, Восточная, 3

    • 54 м2
    • 9/16 этаж
    • Состояние:
    6 100 000 ₽ (113000 ₽/м2)
    Объект № 194598. Продам 2х ком. квартиру 54,4 кв.м. Комнаты изолированные. В квартире сделан частичный ремонт. Остается кухонный гарнитур. В шаговой доступности парк, детский сад, магазин, школа, автобусная остановка.. ***Гарантийный сертификат «Защита собственности» по данному объекту в подарок***
    размещено: 01.10.2025 , обновлено: 1.10.2025

История предложений в этом доме

объявление снято с публикации в продаже комнат площадь этаж цена,
г. Березовский, ул. Восточная, 3 (городской округ Березовский) - фото квартиры 16 января 2025 90 дн. 1 31 2/16 3 400 000
г. Березовский, ул. Восточная, 3 (городской округ Березовский) - фото квартиры 27 сентября 2024 90 дн. 2 52 11/16 6 300 000
г. Березовский, ул. Восточная, 3 (городской округ Березовский) - фото квартиры 7 июня 2024 90 дн. 1 31 13/16 3 499 000
г. Березовский, ул. Восточная, 3 (городской округ Березовский) - фото квартиры 23 декабря 2023 90 дн. 2 53.9 5/16 5 400 000
г. Березовский, ул. Восточная, 3 (городской округ Березовский) - фото квартиры 30 января 2024 90 дн. 0 31.8 6/14 3 400 000
г. Березовский, ул. Восточная, 3 (городской округ Березовский) - фото квартиры 14 июня 2023 90 дн. 2 44.8 2/10 4 500 000
г. Березовский, ул. Восточная, 3 (городской округ Березовский) - фото квартиры 6 апреля 2023 90 дн. 0 30.7 14/15 3 000 000
г. Березовский, ул. Восточная, 3 (городской округ Березовский) - фото квартиры 10 июня 2022 90 дн. 1 31 3/17 3 100 000
г. Березовский, ул. Восточная, 3 (городской округ Березовский) - фото квартиры 25 мая 2022 90 дн. 1 31 3/17 3 100 000
г. Березовский, ул. Восточная, 3 (городской округ Березовский) - фото квартиры 25 июня 2022 90 дн. 1 31 6/16 3 050 000
г. Березовский, ул. Восточная, 3 (городской округ Березовский) - фото квартиры 1 октября 2022 90 дн. 2 54 5/16 4 920 000
г. Березовский, ул. Восточная, 3 (городской округ Березовский) - фото квартиры 4 августа 2022 90 дн. 3 76.4 6/16 6 900 000
г. Березовский, ул. Восточная, 3 (городской округ Березовский) - фото квартиры 20 октября 2021 90 дн. 2 45 2/12 3 700 000
г. Березовский, ул. Восточная, 3 (городской округ Березовский) - фото квартиры 16 февраля 2022 90 дн. 2 53 3/16 4 690 000
г. Березовский, ул. Восточная, 3 (городской округ Березовский) - фото квартиры 26 июля 2021 90 дн. 1 31 14/16 2 470 000
г. Березовский, ул. Восточная, 3 (городской округ Березовский) - фото квартиры 8 июля 2021 90 дн. 1 31 14/16 2 470 000
г. Березовский, ул. Восточная, 3 (городской округ Березовский) - фото квартиры 29 мая 2021 90 дн. 1 31 8/16 2 180 000
Екатеринбург, ул. Восточная, 3 - фото квартиры 18 мая 2021 90 дн. 2 45 2/12 3 350 000
г. Березовский, ул. Восточная, 3 (городской округ Березовский) - фото квартиры 26 ноября 2020 90 дн. 1 31 14/16 2 200 000
г. Березовский, ул. Восточная, 3 (городской округ Березовский) - фото квартиры 8 декабря 2020 90 дн. 1 32 5/16 2 250 000
18 ноября 2020 90 дн. 1 33 2/18 2 099 000
г. Березовский, ул. Восточная, 3 (городской округ Березовский) - фото квартиры 31 января 2021 90 дн. 1 31 14/16 2 100 000
г. Березовский, ул. Восточная, 3 (городской округ Березовский) - фото квартиры 26 сентября 2020 90 дн. 3 75 14/16 4 500 000
г. Березовский, ул. Восточная, 3 (городской округ Березовский) - фото квартиры 2 февраля 2022 90 дн. 1 31 7/16 1 950 000
г. Березовский, ул. Восточная, 3 (городской округ Березовский) - фото квартиры 15 сентября 2020 90 дн. 1 31 8/16 2 090 000
г. Березовский, ул. Восточная, 3 (городской округ Березовский) - фото квартиры 1 апреля 2021 90 дн. 2 54 4/16 3 650 000
г. Березовский, ул. Восточная, 3 (городской округ Березовский) - фото квартиры 9 июня 2020 90 дн. 2 47.4 2/16 3 350 000
г. Березовский, ул. Восточная, 3 (городской округ Березовский) - фото квартиры 8 июля 2020 90 дн. 3 75 14/16 4 990 000
г. Березовский, ул. Восточная, 3 (городской округ Березовский) - фото квартиры 16 июля 2020 120 дн. 1 31 7/16 1 930 000
г. Березовский, ул. Восточная, 3 (городской округ Березовский) - фото квартиры 28 апреля 2020 90 дн. 3 77 14/16 4 990 000

Похожие предложения о продаже квартир в г. Березовский

  • 1-к квартира, Новая, 20

    • 28.1 м2
    • 11/17 этаж
    • Состояние: хорошее
    2 600 000 ₽ (92500 ₽/м2)
    Объект № 193942. Предлагаем к продаже светлую однокомнатную квартиру, расположенную на 11 этаже. Из окон открывается потрясающий панорамный вид, который будет радовать каждый день! Квартира готова к проживанию, по вашему желанию мы готовы оставить всю мебель. Дом в экологически чистом районе с уже развитой инфраструктурой. Здесь есть всё необходимое для комфортной жизни: магазины на любой вкус, есть школа и детский сад, что очень удобно для семей с детьми. Всегда в наличии парковочные места. Во дворе оборудована отличная детская площадка, совсем рядом находится новая современная спортивная площадка. Приходите на просмотр. ***Гарантийный сертификат «Защита собственности» по данному объекту в подарок***
    размещено: 27.08.2025 , обновлено: 24.09.2025
  • 1-к квартира, Новая, 20

    • 27.1 м2
    • 15/16 этаж
    • Состояние: идеальное
    2 750 000 ₽ (101500 ₽/м2)
    Вашему вниманию однокомнатная квартира! В новом доме В квартире свежий ремонт. Остается: шкаф, диван. Очень солнечная квартира. Вид из окна вас поразит. Хорошая парковка возле дома . Квартира освобождена. Один взрослый собственник. ID объекта в нашей базе: 10781
    размещено: 14.08.2025 , обновлено: 17.09.2025
  • 1-к квартира, Новая, 20

    • 28.1 м2
    • 3/16 этаж
    • Состояние: хорошее
    2 800 000 ₽ (99600 ₽/м2)
    Продается уютная однокомнатная квартира в тихом и живописном микрорайоне Шиловский г. Березовский!Квартира расположена на комфортном 3 этаже, площадь 28,1 кв.м., удобная планировка, есть балкон.Квaртиpа очeнь тёплая, в комнате и кухне установлены пластиковые окна, балкон не застеклен, имеет пpекрacный вид нa реку.В квартире сделан качественный косметический ремонт. На полу в комнате и кухне постелен ламинат, в санузле — плитка, в прихожей керамогранит.В подъезде два лифта: грузовой и пассажирский. Подъезд чистый и аккуратный. Соседи спокойные и доброжелательные.Рядом с домом уютный двор, детские площадки, всегда есть парковочные места.В шаговой доступности магазины, школа, детский сад, остановка общественного транспорта, аптека.Хорошая транспортная доступность.Новым хозяевам остается: кухонный гарнитур с натуральной каменной столешницей, духовка и плита, шкаф в комнате.Квартира освобождена.Один совершеннолетний собственник, быстрый выход на сделку.Звоните, записывайтесь на просмотр! ID объекта в нашей базе: 11458
    размещено: 04.07.2025 , обновлено: 24.09.2025
  • 1-к квартира, тер. Овощное отделение, 8

    • 28.7 м2
    • 1/2 этаж
    • Состояние: плохое
    2 400 000 ₽ (83600 ₽/м2)
    Kвaртиpa нaxoдитcя на 1 этаже 2-этажнoго домa. Это отличный вариaнт для молодой семьи: простoрная комната, удoбнaя плaниpовка, кухня площадью 8 кв. м. Санузел совмещенный. Дом построен из кирпича, что обеспечивает надежность и теплоизоляцию. Во дворе предусмотрена наземная парковка, где всегда найдется место для вашего автомобиля. Дом и подъезд содержатся в чистоте и порядке. В доме расположен магазин, где можно приобрести все нужное для быта. Рядом автобусная остановка.В квартире выровнены стены, кафельная плитка на полу и на стенах в санузле.Просмотр по договоренности. ID объекта в нашей базе: 10071
    размещено: 02.07.2025 , обновлено: 23.09.2025
  • 1-к квартира, Новая, 20

    • 28 м2
    • 16/16 этаж
    • Состояние: хорошее
    2 650 000 ₽ (94600 ₽/м2)
    Объект № 192549. Продажа отличной 1-квартиры в ЖК Рябина-Парк. Оставляем новым хозяевам всю мебель и бытовую технику. Высокий этаж (сверху нет никого) с отличным видом из окна. Продажа в связи с переездом в другой регион. Приходите на просмотр. ***Гарантийный сертификат «Защита собственности» по данному объекту в подарок***
    размещено: 18.06.2025 , обновлено: 29.09.2025

    1-к квартира, Новая, 13

    • 27.8 м2
    • 2/2 этаж
    • Состояние: идеальное
    2 390 000 ₽ (86000 ₽/м2)
    Вашему вниманию предлагается однокомнатная квартира, расположенная в тихом месте! Со свежим ремонтом. Капитальный ремонт проведен. Хорошая планировка. По документам один взрослый собственник. Окна пластиковые, натяжные потолки по всей квартире. В квартире остаётся вся мебель! В трех минутах магазин, автобусная остановка, школа садик! Просмотр в удобное вам время! Квартира освобождена! Быстрый выход на сделку ID объекта в нашей базе: 9643
    размещено: 03.06.2025 , обновлено: 17.09.2025

Новостройки г. Березовский

Приоритет

Увеличивает просмотры в 3 раза

Ваше объявление показывается в списке выше обычных объявлений. подключить