На Метре реклама - только нормальная. Никакого шок-контента.
Помогайте независимому ресурсу, как он помогает вам. Удачи!
Новостройки Котт. посёлки Объявления Динамика цен и сделок

Продажа квартиры: г. Артемовский, ул. Дзержинского, 2б (городской округ Артемовский)

  • опубликовано 18.06.2020 , обновлено 4.05.2025
  • 90
Кадастровый номер:66:02:1703017:387
Рынок:вторичный
Срок сдачи: 1983 года
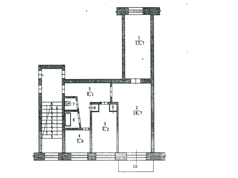
Количество комнат:3
Общая площадь:59 м2
Жилая площадь:41 м2
Площадь кухни:6 м2
Этаж/Этажность дома:5 / 5
Санузел:совмещенный
Отделка:евроремонт
Год постройки:1983
Цена:
1 100 000
Объявление снято с публикации
Коммунальные платежи:оплачиваются отдельно
Ипотека:возможна

Объект № 89604. Просторная 3-комнатная квартира в Артемовском, в отличном состоянии. Сделан ремонт, пластиковые стеклопакеты, в с/у кафель, сделана отделка балкона, установлены счетчики.
Чистый подъезд, хорошие соседи! Садик и школа в шаговой доступности.
В квартире никто не прописан. Документы готовы. Очень приветствуется наличка и ипотека Сбербанка! Помогу с ипотекой, если Вам понравится наша квартира, но средств будет недостаточно. ***Гарантийный сертификат «Защита собственности» по данному объекту в подарок***

Объявление снято с публикации

Ипотечный калькулятор

лет
%
Сумма кредита
1100000 ₽
Платеж
22 540 ₽

История предложений в этом доме

объявление снято с публикации в продаже комнат площадь этаж цена,
г. Артемовский, ул. Дзержинского, 2Б (городской округ Артемовский) - фото квартиры 3 февраля 2025 90 дн. 1 29.6 1/5 650 000
г. Артемовский, ул. Дзержинского, 2б (городской округ Артемовский) - фото квартиры 22 марта 2023 90 дн. 3 59 5/5 950 000
21 декабря 2014 61 дн. 3 59 5/5 1 350 000

Приоритет

Увеличивает просмотры в 3 раза

Ваше объявление показывается в списке выше обычных объявлений. подключить