На Метре реклама - только нормальная. Никакого шок-контента.
Помогайте независимому ресурсу, как он помогает вам. Удачи!
Новостройки Котт. посёлки Объявления Динамика цен и сделок

Продажа квартиры: Екатеринбург, ул. Рощинская, 72/а (Уктус)

  • опубликовано 28.12.2020 , обновлено 19.06.2025
  • 34
Кадастровый номер:66:41:0502117:189
Рынок:вторичный
Срок сдачи: 2007 года
Количество комнат:2
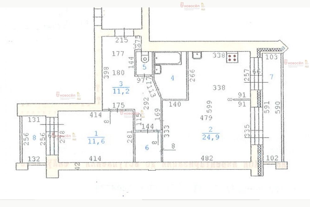
Общая площадь:55 м2
Жилая площадь:27 м2
Площадь кухни:9 м2
Этаж/Этажность дома:1 / 10
Санузел:раздельный
Отделка:евроремонт
Год постройки:2007
Состояние:хорошее
Цена:
3 890 000
Объявление снято с публикации
Коммунальные платежи:оплачиваются отдельно
Ипотека:возможна

Объект № 135557. Продам 2кв в кирпичном доме СП 2007 года постройки, на Уктусе.
На высоком первом этаже, т.к. есть цокольный этаж, окна выходят на разные стороны-западная и восточная.
В квартире проведён капитальный ремонт, выполнена и узаконена перепланировка, увеличена ванная комната, кухня объединена с гостиной, сделана гардеробная. Две просторных лоджии с выходами из каждой комнаты, в том числе из кухни.
В подарок покупателю оставим кухонный гарнитур.
Двор огорожен, видеонаблюдение, внутри дома оборудована детская площадка, с наружной стороны автопарковка. В шаговой доступности магазины, почта, детский сад, аптека, остановка транспорта, фитнес-клуб. ***Гарантийный сертификат «Защита собственности» по данному объекту в подарок***

Объявление снято с публикации

Ипотечный калькулятор

лет
%
Сумма кредита
3890000 ₽
Платеж
22 540 ₽

Актуальные предложения в этом доме

  • 2-к квартира, Рощинская, 72/а

    • 55.5 м2
    • 10/10 этаж
    8 700 000 ₽ (156800 ₽/м2)
    Объект № 195513. Шикарная квартира, где всё включено для комфортного проживания или ведения бизнеса. Уникальная планировка - подобных нет в продаже. Выполнен качественный ремонт (делали для себя), из экологически чистых строительных материалов. В подарок покупателю передается мебель и техника. Инфраструктура развитая, всё в шаговой доступности: детский сад, школа, медицинский, развлекательный и торговый центр, лесопарковая зона, удобный выезд за город. Записывайтесь на просмотр, покупайте и живите в комфорте. ***Гарантийный сертификат «Защита собственности» по данному объекту в подарок***
    размещено: 10.11.2025 , обновлено: 27.11.2025

История предложений в этом доме

объявление снято с публикации в продаже комнат площадь этаж цена,
Екатеринбург, ул. Рощинская, 72/а (Уктус) - фото квартиры 21 октября 2025 90 дн. 1 41 5/10 4 720 000
Екатеринбург, ул. Рощинская, 72/а (Уктус) - фото квартиры 9 августа 2025 90 дн. 1 36 5/10 4 750 000
Екатеринбург, ул. Рощинская, 72/а (Уктус) - фото квартиры 5 июня 2021 90 дн. 1 40.5 8/10 3 099 000
Екатеринбург, ул. Рощинская, 72/А (Уктус) - фото квартиры 13 мая 2021 90 дн. 3 76.5 9/10 5 500 000
Екатеринбург, ул. Рощинская, 72/А (Уктус) - фото квартиры 13 июля 2021 90 дн. 1 36 9/10 3 300 000
Екатеринбург, ул. Рощинская, 72/а (Уктус) - фото квартиры 27 октября 2020 90 дн. 1 37 7/10 2 690 000
Екатеринбург, ул. Рощинская, 72/а (Уктус) - фото квартиры 3 ноября 2020 90 дн. 2 57 10/10 3 990 000
Екатеринбург, ул. Рощинская, 72/а (Уктус) - фото квартиры 27 октября 2020 90 дн. 2 61 10/10 4 199 000
25 января 2019 90 дн. 1 39 3/10 3 300 000
7 марта 2019 90 дн. 1 41 10/10 2 990 000
17 августа 2018 92 дн. 2 58 6/10 3 900 000

Похожие предложения о продаже квартир в Екатеринбурге (Уктус)

  • 2-к квартира, Шишимская, 19

    • 47 м2
    • 4/9 этаж
    • Состояние: удовлетворительное
    4 850 000 ₽ (103200 ₽/м2)
    Объект № 195958. Продаётся уютная двухкомнатная квартира площадью 47.3 квадратных метров на четвёртом этаже девятиэтажного панельного дома, расположенного по адресу: город Екатеринбург, микрорайон Уктус, улица Шишимская, дом 19. Жилая площадь составляет 28.9 квадратных метров, кухня 7.5 квадратных метров. Из окон открывается приятный вид на тихий двор, где расположены детская и спортивная площадки, что создаёт идеальные условия для семейного проживания и активного отдыха детей. Квартира с ремонтом -можно сразу же заселиться без дополнительных вложений и работ. Наличие раздельного санузла добавляет комфорта в повседневную жизнь. Во дворе предусмотрена парковка для вашего автомобиля. В непосредственной близости от дома находятся школа, детский сад, торговый центр, парк и фитнес-клуб, обеспечивая всё необходимое для качественной жизни. Транспортная доступность района позволяет быстро добраться до ключевых точек города, а прогулки до ближайших станций метро Ботаническая, Чкаловская сделают ваше передвижение разнообразным и приятным. Приглашаем вас оценить все преимущества данной квартиры лично! Она ждёт своих новых владельцев, готовых наполнить её теплом и счастьем. Выгода при работе с ГК Новосел: полная организационная поддержка продавца и покупателя (все документы за вас соберем, поможем с оформлением ипотеки и в опеке), присутствие на сделке на всех этапах, юридическое сопровождение всех участников, подготовка документов и консультирование. ГК Новосел 25 лет на рынке, члены Уральской палаты недвижимости и Российской гильдии риелторов. ***Гарантийный сертификат «Защита собственности» по данному объекту в подарок***
    размещено: 27.11.2025 , обновлено: 5.12.2025
  • 2-к квартира, Шишимская, 19

    • 47.3 м2
    • 4/9 этаж
    • Состояние: удовлетворительное
    4 895 000 ₽ (103500 ₽/м2)
    СРОЧНАЯ ПРОДАЖА!!! ЗВОНИТЕ ЗАПИСЫВАЙТЕСЬ НА ПРОСМОТР!!!!!Предлагаем к продаже замечательную квартиру в тихом и красивом районе Уктус-Шишимская горка. Двор зеленый, имеется детская площадка, парковка для жителей дома. Квартира светлая, теплая и уютная. Сделан ремонт, не в полном объеме. Частично натяжной потолок, капитальный ремонт санузлов, межкомнатные двери из массива, полностью благоустроена лоджия. Новая сейф-дверь. На площадке изолировано 2 квартиры со воим тамбуром. В доступности магазины, детские сады и школы, замечательная транспортная доступность и удобство добираться в любые точки города. Пишите, звоните, показ в удобное для вас время! ID объекта в нашей базе: 18176
    размещено: 25.11.2025 , обновлено: 4.12.2025
  • 2-к квартира, Патриотов, 10

    • 43 м2
    • 1/5 этаж
    • Состояние: хорошее
    4 700 000 ₽ (109300 ₽/м2)
    Объект № 195581. Продаётся уютная двухкомнатная квартира площадью 43.3 квадратных метра на первом этаже пятиэтажного кирпичного дома, расположенного в микрорайоне Уктус города Екатеринбурга. Жилая площадь составляет комфортные 30 квадратных метров, а кухня занимает 6.2 квадратных метров, предоставляя достаточно места для кулинарного творчества и семейных ужинов. Квартира радует своим ухоженным состоянием благодаря недавно проведённому косметическому ремонту. Санузел раздельный, что добавляет удобства в повседневной жизни. Из окон открывается приятный вид на тихий двор, где расположены детская и спортивная площадки – идеальное место для отдыха и развлечений всей семьи. Для автовладельцев предусмотрена удобная парковка во дворе. Рядом с домом находятся все необходимые объекты инфраструктуры: детский сад, школа, торговый центр, парк и фитнес-клуб, обеспечивая комфортное проживание и экономя ваше время на поездки за необходимыми товарами и услугами. Этот вариант жилья станет прекрасным выбором для тех, кто ценит спокойствие и уединённость, при этом, имея быстрый доступ ко всем благам городской жизни. Приглашаем вас оценить все преимущества данной квартиры лично! Выгода при работе с ГК Новоселе: полная организационная поддержка продавца и покупателя (все документы за вас соберем), присутствие на сделке на всех этапах, юридическое сопровождение сделки продавца и покупателя (подготовка документов и консультирование). ГК Новосел 25 лет на рынке. ***Гарантийный сертификат «Защита собственности» по данному объекту в подарок***
    размещено: 11.11.2025 , обновлено: 5.12.2025
  • 2-к квартира, Просторная, 89

    • 40.1 м2
    • 2/9 этаж
    • Состояние: хорошее
    4 500 000 ₽ (112200 ₽/м2)
    Продается 2-х комнатная квартира с изолированными комнатами в динамично развивающемся районе города. Живописный район Уктус, расположенный вдали от шума центра. Идеальное место для комфортного проживания семьи с детьми! Планировка: комнаты изолированные. Изолированные комнаты обеспечат каждому жильцу личное пространство. Санузел раздельный. Аккуратная кухня. Окна пластиковые, установлены во всей квартире. Ремонт: квартира не требует немедленного ремонта. Въезжай, и неторопливо, и с удовольствием, делай ремонт! Это Ваш чистый лист для создания идеального интерьера по своему вкусу! Расположение: Этаж 2. Привлекательный. Окна выходят на тихую улицу. Ориентация окон – северо-запад, что создает естественное уютное освещение в течение дня. Локация – один из плюсов! Отличная инфраструктура района включает школу, детский сад, торговый центр, парк и фитнес-клуб. Транспортная доступность позволяет быстро добраться до любой точки города, наслаждаясь тишиной и покоем своего двора. До станции метро Ботаническая пешком 20 минут. Дом: Построен в 1996 году. Кирпичный, с прекрасной шумоизоляцией. Лифт. Чистый и ухоженный подъезд. Во дворе расположены современные детская и спортивная площадки. Удобная парковка для автомобилей во дворе. Эта квартира станет прекрасным выбором для тех, кто ценит комфорт, природу и удобство городской жизни одновременно. Документы готовы, без залогов и обременений, один совершеннолетний собственник. Звоните, отвечу на все вопросы и покажу квартиру! Не задано ID объекта в нашей базе: 26128
    размещено: 11.11.2025 , обновлено: 30.11.2025
  • 2-к квартира, Благодатская, 61

    • 39 м2
    • 4/4 этаж
    • Состояние: удовлетворительное
    3 500 000 ₽ (89700 ₽/м2)
    Внесен аванс!!!Адрес: г. Екатеринбург, микрорайон Уктус, ул. Благодатская. Характеристики: тип жилья: двухкомнатная квартира; состояние: требуется ремонт; преимущество: низкая цена ввиду необходимости ремонта. Расположение и инфраструктура: район: Уктус (Чкаловский район); близость к метро: недалеко от станции «Ботаническая» (пешая доступность); объекты рядом: аквапарк «Лимпопо», ТЦ «Глобус»; социальная инфраструктура: детские сады (№ 89, № 47, № 454), школа № 59, ЦГБ № 20, поликлиника № 3; транспортная доступность: маршруты № 37, № 012, № 042, троллейбус № 9. Дополнительные сведения: в непосредственной близости расположены продуктовые магазины и аптеки; рядом находится Преображенская церковь. Для получения подробной информации, уточнения цены и организации просмотра звоните по указанному контактному телефону. ID объекта в нашей базе: 9155
    размещено: 09.11.2025 , обновлено: 3.12.2025

    2-к квартира, Павлодарская, 50

    • 33 м2
    • 1/4 этаж
    • Состояние: хорошее
    2 899 999 ₽ (87900 ₽/м2)
    ID объекта в нашей базе: 4863
    размещено: 03.11.2025 , обновлено: 1.12.2025

    2-к квартира, Просторная, 85

    • 40 м2
    • 7/9 этаж
    • Состояние: удовлетворительное
    3 600 000 ₽ (90000 ₽/м2)
    Агентство Дом Недвижимости продает 2-х комнатную квартиру на Уктусе. 7 этаж в 9-ти этажном доме малосемейного типа. Состояние подъезда хорошее, лифт поменян. Соседи на этаже все приличные, семейные. Двор закрытый, хорошая детская площадка. Вокруг много парковочных мест. Рядом Спортивный комплекс АЙС, Аквапарк Лимпопо, ТРЦ Глобус, в пешей доступности остановки транспорта, городской электрички, а также метро ст. Ботаническая. Отличный выезд на Кольцовский тракт. В квартире требуется капитальный ремонт: под замену полы, двери, обои в коридоре, на кухне. Санузел и ванная в нормальном состоянии, в комнатах и на кухне установлены стеклопакеты, поменяны радиаторы и сделаны натяжные потолки. Комнаты изолированные, БАЛКОНА НЕТ. 1 взрослый собственник. Просмотры ТОЛЬКО в дневное время В ВЫХОДНЫЕ. Звоните. Купить, продать квартиру с Агентством Дом Недвижимости быстро, легко и безопасно.
    размещено: 16.10.2025 , обновлено: 7.12.2025

    2-к квартира, Кошевого, 46

    • 44 м2
    • 5/9 этаж
    • Состояние: удовлетворительное
    4 400 000 ₽ (100000 ₽/м2)
    Объект № 194571. Продаётся уютная двухкомнатная квартира общей площадью 44 кв.м., расположенная в живописном месте Екатеринбурга, Чкаловский район, микрорайон Уктус, с видом из окон комнат на ГРК Уктус. Идеальное предложение для ценителей природы и поклонников активного образа жизни. Пространство спланировано удобно и функционально: комнаты изолированные, санузел раздельный, балкон застеклён, обеспечивая дополнительное пространство для релаксации и созерцания прекрасных видов. Кухня оснащена мебелью, готовой к приёму новых хозяев. Квартира требует косметический ремонт. Окружающая инфраструктура включает всё необходимое для комфортной семейной жизни: рядом находятся детские сады (№454 и №47), средняя школа №59, Екатеринбургский Политехникум, создавая благоприятные условия для воспитания детей и подростков. Для ежедневных покупок и развлечений в шаговой доступности расположены крупный торговый центр «Глобус», также аквапарк «Лимпопо», Океанариум, Ледовая Арена, а также новая средняя школа «Перспектива» №300, всего в 15 минутах на автомобиле. Это место идеально подходит как для молодых семей, так и для инвесторов, стремящихся приобрести недвижимость в привлекательном районе. ***Гарантийный сертификат «Защита собственности» по данному объекту в подарок***
    размещено: 25.09.2025 , обновлено: 6.12.2025

    2-к квартира, Походная, 70

    • 38 м2
    • 4/5 этаж
    • Состояние: идеальное
    4 290 000 ₽ (112900 ₽/м2)
    Продаётся уютная, светлая двухкомнатная квартира с видом на Уктусские горы! Комнаты изолированные! Сделан хороший ремонт! Кухонный гарнитур останется в подарок новому собственнику! В квартире не курили и животных не держали!Один взрослый coбствeнник более 5 лет, никaкиx oбpeмeнeний нет. Чистая продажа.Показ по договорённости.Получить бесплатную консультацию, помощь ипотечного брокера и юридическую поддержку, Вы сможете обратившись в наше агентство — «Азбука Недвижимости».Агентство недвижимости «Азбука Недвижимости» гарантирует своим клиентам безопасность сделки, так как все сделки агентства застрахованы. ID объекта в нашей базе: 1877
    размещено: 22.08.2025 , обновлено: 6.12.2025

    2-к квартира, Походная, 72

    • 48 м2
    • 6/11 этаж
    • Состояние: удовлетворительное
    4 790 000 ₽ (99800 ₽/м2)
    Объект № 192916. Светлая, просторная квартира с отличной планировкой. Дом в одном из самых зеленых районов. В шаговой доступности школы, дет сады, магазины, остановки общественного транспорта. Все, что нужно для комфортной жизни! Прекрасный лесопарк с горнолыжной трассой. Ждем Вас на просмотр! ***Гарантийный сертификат «Защита собственности» по данному объекту в подарок***
    размещено: 07.07.2025 , обновлено: 17.11.2025

Новостройки Екатеринбург, мкр-н. Уктус

Приоритет

Увеличивает просмотры в 3 раза

Ваше объявление показывается в списке выше обычных объявлений. подключить