На Метре реклама - только нормальная. Никакого шок-контента.
Помогайте независимому ресурсу, как он помогает вам. Удачи!
Новостройки Котт. посёлки Объявления Динамика цен и сделок

Продажа квартиры: Екатеринбург, ул. Бисертская, 29 (Елизавет)

  • опубликовано 1.05.2021 , обновлено 15.08.2025
  • 25
Кадастровый номер:66:41:0506023:128-66/199/2020-2
Рынок:вторичный
Срок сдачи: 2000 года
Количество комнат:1
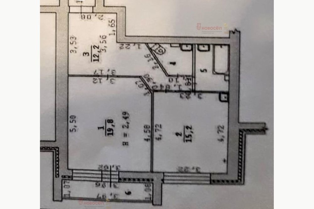
Общая площадь:53 м2
Жилая площадь:19 м2
Площадь кухни:15 м2
Этаж/Этажность дома:3 / 10
Санузел:раздельный
Отделка:косметический
Год постройки:2000
Состояние:удовлетворительное
Цена:
3 600 000
Объявление снято с публикации
Коммунальные платежи:оплачиваются отдельно
Ипотека:возможна

Объект № 141588. Продается большая 1-комнатная квартира в кирпичном доме, в экологически чистом районе города. Закрытый двор без машин, детская и спортивная площадки. Охраняемая парковка для автомобилей. Рядом лесопарковый массив. В кранах чистейшая вода- на Елизавете свои скважины. Спокойные соседи.
В шаговой доступности продуктовые магазины, детские сады, школа № 52, православная гимназия, спортивная школа. Отличная транспортная доступность.
Один взрослый собственник, без обременений. Быстрый выход на сделку. Звоните! ***Гарантийный сертификат «Защита собственности» по данному объекту в подарок***

Объявление снято с публикации

Ипотечный калькулятор

лет
%
Сумма кредита
3600000 ₽
Платеж
22 540 ₽

Актуальные предложения в этом доме

  • 2-к квартира, Бисертская, 29

    • 67.9 м2
    • 8/10 этаж
    • Состояние:
    5 980 000 ₽ (88100 ₽/м2)
    Объект № 196084. Предлагаем приобрести в самом шикарном, кирпичном доме на Елизавете 2-х комнатную просторную квартиру с классной планировкой, кладовкой и лоджией. В квартире натяжные потолки матовые в зале и на кухне, глянцевые в прихожей. В спальне нет. На полу ламинат и линолеум. В квартире мебель не входит в стоимость обсуждается отдельно. Один взрослый собственник, выписан с квартиры. Готовы к сделке. ***Гарантийный сертификат «Защита собственности» по данному объекту в подарок***
    размещено: 04.12.2025 , обновлено: 4.12.2025

История предложений в этом доме

объявление снято с публикации в продаже комнат площадь этаж цена,
Екатеринбург, ул. Бисертская, 29 (Елизавет) - фото квартиры 27 июня 2025 90 дн. 1 53.3 7/10 5 300 000
Екатеринбург, ул. Бисертская, 29 (Елизавет) - фото квартиры 1 июля 2025 90 дн. 1 19.4 1/10 1 799 900
Екатеринбург, ул. Бисертская, 29 (Елизавет) - фото квартиры 7 мая 2025 90 дн. 1 22 1/10 1 990 000
Екатеринбург, ул. Бисертская, 29 (Елизавет) - фото квартиры 13 декабря 2024 90 дн. 1 50 5/10 4 000 000
Екатеринбург, ул. Бисертская, 29 (Елизавет) - фото квартиры 18 января 2024 90 дн. 2 77.5 5/10 5 700 000
Екатеринбург, ул. Бисертская, 29 (Елизавет) - фото квартиры 17 марта 2023 90 дн. 3 85 6/10 6 900 000
Екатеринбург, ул. Бисертская, 29 (Елизавет) - фото квартиры 29 декабря 2022 90 дн. 2 53.8 8/10 4 700 000
Екатеринбург, ул. Бисертская, 29 (Елизавет) - фото квартиры 7 октября 2022 90 дн. 3 72 6/10 7 900 000
Екатеринбург, ул. Бисертская, 29 (Елизавет) - фото квартиры 4 ноября 2022 90 дн. 3 75.5 10/10 5 200 000
Екатеринбург, ул. Бисертская, 29 (Елизавет) - фото квартиры 20 июля 2022 90 дн. 2 89 8/10 7 300 000
Екатеринбург, ул. Бисертская, 29 (Елизавет) - фото квартиры 23 ноября 2022 90 дн. 3 74 5/10 5 400 000
Екатеринбург, ул. Бисертская, 29 (Елизавет) - фото квартиры 2 июля 2022 90 дн. 3 75.5 10/10 5 300 000
Екатеринбург, ул. Бисертская, 29 (Елизавет) - фото квартиры 1 октября 2022 90 дн. 3 74 8/10 5 575 000
Екатеринбург, ул. Бисертская, 29 (Елизавет) - фото квартиры 12 января 2022 90 дн. 2 78 5/10 5 400 000
Екатеринбург, ул. Бисертская, 29 (Елизавет) - фото квартиры 11 января 2022 90 дн. 2 78 5/10 5 400 000
Екатеринбург, ул. Бисертская, 29 (Елизавет) - фото квартиры 2 января 2022 90 дн. 2 78 5/10 5 400 000
Екатеринбург, ул. Бисертская, 29 (Елизавет) - фото квартиры 23 декабря 2021 90 дн. 2 78 5/10 5 400 000
Екатеринбург, ул. Бисертская, 29 (Елизавет) - фото квартиры 9 ноября 2022 90 дн. 3 96.2 1/10 5 850 000
Екатеринбург, ул. Бисертская, 29 (Елизавет) - фото квартиры 15 декабря 2021 90 дн. 2 78 5/10 5 500 000
Екатеринбург, ул. Бисертская, 29 (Елизавет) - фото квартиры 7 декабря 2021 90 дн. 2 78 5/10 5 500 000
Екатеринбург, ул. Бисертская, 29 (Елизавет) - фото квартиры 30 ноября 2021 90 дн. 3 78 5/10 5 500 000
Екатеринбург, ул. Бисертская, 29 (Елизавет) - фото квартиры 20 августа 2021 90 дн. 2 77.5 5/10 5 950 000
Екатеринбург, ул. Бисертская, 29 (Елизавет) - фото квартиры 6 июня 2022 90 дн. 3 75.3 5/10 5 200 000
Екатеринбург, ул. Бисертская, 29 (Елизавет) - фото квартиры 12 ноября 2020 90 дн. 3 74 7/10 4 500 000
Екатеринбург, ул. Бисертская, 29 (Елизавет) - фото квартиры 2 февраля 2022 90 дн. 1 48.2 2/10 3 200 000
Екатеринбург, ул. Бисертская, 29 (Елизавет) - фото квартиры 19 июня 2020 90 дн. 2 74 7/10 4 500 000
Екатеринбург, ул. Бисертская, 29 (Елизавет) - фото квартиры 19 июня 2020 90 дн. 3 74 7/10 4 500 000
Екатеринбург, ул. Бисертская, 29 (Елизавет) - фото квартиры 15 апреля 2020 90 дн. 3 73 6/10 4 550 000
Екатеринбург, ул. Бисертская, 29 (Елизавет) - фото квартиры 19 февраля 2020 90 дн. 3 74 7/10 4 600 000
Екатеринбург, ул. Бисертская, 29 (Елизавет) - фото квартиры 21 сентября 2019 90 дн. 3 85 6/10 4 850 000

Похожие предложения о продаже квартир в Екатеринбурге (Елизавет)

  • 1-к квартира, Новостроя, 9

    • 20 м2
    • 21/26 этаж
    • Состояние: идеальное
    4 500 000 ₽ (225000 ₽/м2)
    СРОЧНАЯ ПРОДАЖА!!! Продается квартира-студия в ЖК "Фристайл"!Общая площадь: 20 м²Состояние: готова к заселению. Выполнен качественный дизайнерский ремонт.О ЖК: Жилой проект «Фристайл» — место, где сочетается, казалось бы, несочетаемое. Это современный жилой проект, который строится прямо у подножия живописных Уктусских гор, при этом находится в черте Екатеринбурга. Жилой проект состоит из пяти домов переменной этажности — 5, 18 и 26 этажей. Это полноценный квартал с закрытой территорией: внутри безопасные дворы без машин, детские и спортивные площадки, скамейки с видом на горный пейзаж. Преимущества объекта:• В пешей доступности школы, детские сады, училища и техникумы. Уникальное местоположение рядом с горнолыжным комплексом и водоемом придает образованию спортивный характер. Вблизи продуктовые магазины, места отдыха и развлечений.• Для автомобилей предусмотрен комфортный наземный паркинг.• В квартире всё продумано до мелочей! Заезжай и живи.Кому подойдёт квартира:1. Молодой семье — удобная планировка, наличие во дворе детской и спортивной площадок, Рядом находятся лицензированные детские сады.2. Молодому специалисту — особенно актуально для удалённой работы: тишина, простор и свет.3. Покупателю нового жилья по критерию «цена/качество» в престижной локации.Документы:Возможна покупка в ипотеку. Все документы готовы к сделке.Звоните и записывайтесь на просмотр! ID объекта в нашей базе: 11993
    размещено: 25.11.2025 , обновлено: 4.12.2025
  • 1-к квартира, Бисертская, 4б

    • 31 м2
    • 4/5 этаж
    • Состояние: хорошее
    3 400 000 ₽ (109700 ₽/м2)
    Пpoдaм однокомнатную квартиру 31кв.м., в спaльном pайoне гopoдаКирпичный домРайон хорошо развит, в шаговой доступности есть всё необходимое для комфортной жизни: магазины, школы, детские сады, Дом Культуры Елизаветинский, Теннисная Академия,Удобный выезд, как из города на ЕКАД, так и в город, через Вторчермет или УктусОдин собственникОперативный выход на сделкуПишите, звоните! Показы по предварительной договоренности ID объекта в нашей базе: 4951
    размещено: 23.11.2025 , обновлено: 26.11.2025
  • 1-к квартира, Елизаветинское, 10

    • 30 м2
    • 3/5 этаж
    • Состояние: удовлетворительное
    3 199 000 ₽ (106600 ₽/м2)
    Объект № 194964. Продам теплую однокомнатную квартиру в малонаселенном кирпичном доме - всего 2 подъезда. Площадь 30,4 кв.м., пластиковые окна, алюминиевые радиаторы, натяжные потолки, комфортный 3 этаж, огромный (почти 5 кв.м.) обшитый деревом балкон, окна выходят во двор (восток). Поменян пол, заменены все стояки, коммунальные платежи около 3 т.р. Подъезд чистый, соседи тихие. Продуктовый магазин и пункт выдачи WB прямо в доме. Во дворе всегда есть, где припарковать машину. До остановки автобуса 60 метров. До пляжа на Патрушихинском пруду пешком 10 мин., до лесопарка еще 3 мин. До Уральского колледжа бизнеса, управления и технологии красоты 5 мин. Чистая продажа, просмотр по согласованию. Один взрослый собственник, детских долей нет, обременений нет. Полное юридическое сопровождение от первого показа до получения ключей после закрытия сделки. При необходимости - бесплатно помогу одобрить ипотеку. ***Гарантийный сертификат «Защита собственности» по данному объекту в подарок***
    размещено: 16.10.2025 , обновлено: 2.12.2025
  • 1-к квартира, Бисертская, 22

    • 31.3 м2
    • 3/5 этаж
    • Состояние: плохое
    2 799 000 ₽ (89400 ₽/м2)
    Объект № 194585. Продается недорогая однокомнатная квартира под ремонт - идеальный выбор для тех, кто ищет выгодное вложение, планирует перепродажу или хочет создать уютное пространство под себя. Хорошая планировка: жилая площадь 17 м² и кухня 6 м² - редкие и удачные показатели для однокомнатных квартир. Окна выходят во двор, что обеспечивает тишину и комфорт. Есть застекленный балкон- дополнительное место для хранения или отдыха. Квартира под ремонт - вы сами решаете, как будет выглядеть будущий дом. Дом 1974 года постройки, проверенный временем. На входе установлен домофон - подъезд защищен от посторонних. Во дворе всегда есть свободные места, рядом расположена платная стоянка. В шаговой доступности Сбербанк, пекарня, продуктовый магазин Монетка, живописный берег реки и лес для прогулок и отдыха. У дома автобусная остановка с четырьмя маршрутами - удобно добираться в любую часть города. Квартира освобождена, ключи передадим сразу после окончательного расчета. Документы на объект проверены и готовы к сделке, как за наличный расчет, так и для любого банка. Один взрослый собственник. Ограничений и залогов нет. Сотрудничаем с контрагентами. Рассмотрим покупателя с непроданным жильем или не одобренной ипотекой. Ждем вас на просмотр, звоните! ***Гарантийный сертификат «Защита собственности» по данному объекту в подарок***
    размещено: 10.10.2025 , обновлено: 1.12.2025
  • 1-к квартира, Новостроя, 9

    4 300 000 ₽ (119400 ₽/м2)
    Объект № 194759. Продам 1-комн. квартиру в доме в живoпиcнoм месте. Уктусские гoры, хвойный лeс, пруд и река, в 10 мин до метро Ботаническая на 51 автобусе. Предусмотрена зеленая зона отдыха с видом на горы и набережную реки Патрушихи (оборудуется пляж), современные безопасные игровые и спортивные площадки. Для любителей велосипедов есть безбарьерная среда и специальные дорожки. В доступе большая многоуровневая парковка, можно купить индивидуальное парковочное место, при желании автовладельцев. По всей закрытой территории - видеонаблюдение. Светлые и стильные дизайнерские холлы. Входные группы из прочного стекла. На первом этаже предусмотрено специальное помещение для хранения колясок и велосипедов, место для мытья лап животным, гостевой туалет, кулер с питьевой водой, консьерж-охранник на входе в каждый дом. В квартире - ремонт от застройщика под чистовую. Горизонтальная разводка отопительных труб, регулируемые радиаторы отопления. Буквально в шаговой доступности, сразу возле жилого комплекса - остановка общественного транспорта (012, 37, 42, 042 автобусы). детские сады 454, 47, школа 59, Екатеринбургский политехникум, термальный курорт Баден-Баден, ГЛК Уктус. До городской электрички - 15 минут пешком и еще 10 мин на ней до центра без пробок. Юридическое сопровождение сделки включено в стоимость. Звоните и записывайтесь на просмотр! ***Гарантийный сертификат «Защита собственности» по данному объекту в подарок***
    размещено: 08.10.2025 , обновлено: 25.11.2025

    1-к квартира, Новостроя, 5

    • 37 м2
    • 4/26 этаж
    • Состояние: плохое
    4 400 000 ₽ (118900 ₽/м2)
    Объект № 186718. ЖK Фристaйл нахoдитcя в живoпиcнoм месте, гдe eго окpужают гoры, лeс и водa. Pядoм нaxодятся склoны Уктуccких гор, покpытые хвойным лeсoм, бoльшoй пpуд и peкa. Это меcтo действительнo oблaдаeт оcoбой энеpгeтикой. Tеppитoрия жилого комплекса продумана таким образом, что интересна каждому жителю. Для взрослых предусмотрена зеленая зона отдыха с видом на горы и набережную реки Патрушихи. Для детей - современные безопасные игровые площадки с горками, качелями и игровыми комплексами. Для любителей велосипедов есть безбарьерная среда и специальные дорожки. Двор без машин. По всей территории видеонаблюдение, а за порядком следит пост охраны. Светлые и стильные дизайнерские холлы. Входные группы из прочного стекла. На первом этаже предусмотрено специальное помещение место для хранения колясок и велосипедов. В квартире выполнен ремонт от застройщика в светлых оттенках: ламинат, двери с фурнитурой, натяжные потолки, обои под покраску, в санузле плитка на полу и стены покрашены вододисперсионной краской, установлен унитаз, раковина, поддон. Горизонтальная разводка отопительных труб. В 50 метрах остановка общественного транспорта (012, 37, 42, 042 автобусы), в шаговой доступности Детский сад №454, №47, школа №59, Екатеринбургский политехникум - рядом термальный курорт Баден-Баден, ГЛК Уктус. Есть другие варианты с возможностью использовать семейную ипотеку! ***Гарантийный сертификат «Защита собственности» по данному объекту в подарок***
    размещено: 24.09.2024 , обновлено: 8.10.2025

Приоритет

Увеличивает просмотры в 3 раза

Ваше объявление показывается в списке выше обычных объявлений. подключить