На Метре реклама - только нормальная. Никакого шок-контента.
Помогайте независимому ресурсу, как он помогает вам. Удачи!
Новостройки Котт. посёлки Объявления Динамика цен и сделок

Продажа квартиры: Екатеринбург, ул. Старых Большевиков, 75 (Эльмаш)

  • опубликовано 14.05.2021 , обновлено 5.08.2025
  • 101
Кадастровый номер:66-66-01/199/2005-866
Рынок:вторичный
Срок сдачи: 1987 года
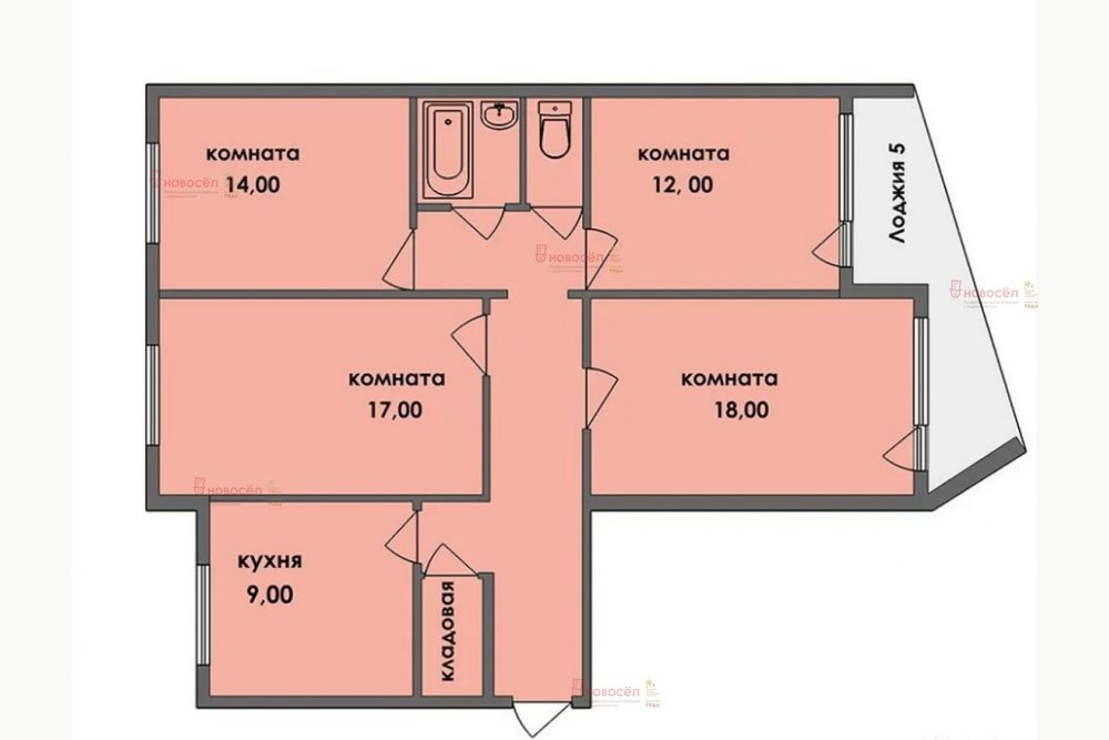
Количество комнат:4
Общая площадь:77 м2
Жилая площадь:50 м2
Площадь кухни:8 м2
Этаж/Этажность дома:9 / 9
Санузел:раздельный
Отделка:евроремонт
Год постройки:1987
Состояние:хорошее
Цена:
5 500 000
Объявление снято с публикации
Коммунальные платежи:оплачиваются отдельно
Ипотека:возможна

Объект № 141547. Продам огромную и светлую 4-комнатную квартиру в самом центре микрорайона Эльмаш рядом с метро Космонавтов. Квартира на две стороны (восток/ запад), очень светлая. Расположена в доме улучшенной планировки, с огромной лоджией.
Рядом вся необходимая инфраструктура: метро (4 минуты пешком), садик (во дворе), школы и гимназии, ТЦ, аптеки, продуктовые магазины, поликлиника. Очень зелёный двор, несколько детских площадок, корт, дружелюбные соседи и цветочки в подъезде.
Более подробная информация по телефону, ждём Вас на просмотр. ***Гарантийный сертификат «Защита собственности» по данному объекту в подарок***

Объявление снято с публикации

Ипотечный калькулятор

лет
%
Сумма кредита
5500000 ₽
Платеж
22 540 ₽

История предложений в этом доме

объявление снято с публикации в продаже комнат площадь этаж цена,
Екатеринбург, ул. Старых Большевиков, 75 (Эльмаш) - фото квартиры 28 мая 2024 90 дн. 2 49 3/9 4 850 000
Екатеринбург, ул. Старых Большевиков, 75 (Эльмаш) - фото квартиры 24 марта 2024 90 дн. 2 49.5 3/9 6 300 000
Екатеринбург, ул. Старых Большевиков, 75 (Эльмаш) - фото квартиры 12 июля 2024 90 дн. 2 49.6 4/9 5 300 000
Екатеринбург, ул. Старых Большевиков, 75 (Эльмаш) - фото квартиры 11 августа 2023 90 дн. 1 35.5 6/9 4 150 000
Екатеринбург, ул. Старых Большевиков, 75 (Эльмаш) - фото квартиры 17 октября 2023 90 дн. 4 78 9/9 7 190 000
Екатеринбург, ул. Старых Большевиков, 75 (Эльмаш) - фото квартиры 28 июня 2023 90 дн. 2 49 8/9 5 650 000
Екатеринбург, ул. Старых Большевиков, 75 (Эльмаш) - фото квартиры 13 мая 2023 90 дн. 2 50 7/9 4 700 000
Екатеринбург, ул. Старых Большевиков, 75 (Эльмаш) - фото квартиры 15 ноября 2022 90 дн. 1 35.9 2/9 3 070 000
Екатеринбург, ул. Старых Большевиков, 75 (Эльмаш) - фото квартиры 29 ноября 2022 90 дн. 2 49 8/9 4 200 000
Екатеринбург, ул. Старых Большевиков, 75 (Эльмаш) - фото квартиры 3 ноября 2022 90 дн. 2 49 8/9 4 200 000
Екатеринбург, ул. Старых Большевиков, 75 (Эльмаш) - фото квартиры 26 октября 2022 90 дн. 2 49 8/9 4 400 000
Екатеринбург, ул. Старых Большевиков, 75 (Эльмаш) - фото квартиры 13 октября 2022 90 дн. 2 49 8/9 4 400 000
Екатеринбург, ул. Старых Большевиков, 75 (Эльмаш) - фото квартиры 4 октября 2022 90 дн. 2 49 8/9 3 900 000
Екатеринбург, ул. Старых Большевиков, 75 (Эльмаш) - фото квартиры 27 сентября 2022 90 дн. 2 49 8/9 3 900 000
Екатеринбург, ул. Старых Большевиков, 75 (Эльмаш) - фото квартиры 10 сентября 2022 90 дн. 2 49 8/9 3 500 000
Екатеринбург, ул. Старых Большевиков, 75 (Эльмаш) - фото квартиры 23 августа 2022 90 дн. 2 49 8/9 4 350 000
Екатеринбург, ул. Старых Большевиков, 75 (Эльмаш) - фото квартиры 27 декабря 2022 90 дн. 3 63 6/9 5 850 000
Екатеринбург, ул. Старых Большевиков, 75 (Эльмаш) - фото квартиры 27 июля 2022 90 дн. 2 49 8/9 4 370 000
Екатеринбург, ул. Старых Большевиков, 75 (Эльмаш) - фото квартиры 14 июля 2022 90 дн. 2 49 8/9 4 380 000
21 сентября 2022 90 дн. 4 77 9/9 5 490 000
Екатеринбург, ул. Старых Большевиков, 75 (Эльмаш) - фото квартиры 6 апреля 2022 90 дн. 4 77 3/9 5 690 000
Екатеринбург, ул. Старых Большевиков, 75 (Эльмаш) - фото квартиры 16 марта 2021 90 дн. 2 49.6 5/9 3 940 000
Екатеринбург, ул. Старых Большевиков, 75 (Эльмаш) - фото квартиры 13 февраля 2021 90 дн. 3 61.8 2/9 4 330 000
Екатеринбург, ул. Старых Большевиков, 75 (Эльмаш) - фото квартиры 10 января 2021 90 дн. 4 77.3 2/9 4 350 000
Екатеринбург, ул. Старых Большевиков, 75 (Эльмаш) - фото квартиры 4 ноября 2020 90 дн. 2 49 4/9 3 500 000
Екатеринбург, ул. Старых Большевиков, 75 (Эльмаш) - фото квартиры 22 августа 2020 90 дн. 3 60.9 7/9 4 350 000
Екатеринбург, ул. Старых Большевиков, 75 (Эльмаш) - фото квартиры 21 апреля 2021 90 дн. 3 62 6/9 4 100 000
Екатеринбург, ул. Старых Большевиков, 75 (Эльмаш) - фото квартиры 2 февраля 2022 90 дн. 3 60 3/9 4 100 000
Екатеринбург, ул. Старых Большевиков, 75 (Эльмаш) - фото квартиры 11 апреля 2020 90 дн. 2 49 5/9 3 850 000
Екатеринбург, ул. Старых Большевиков, 75 (Эльмаш) - фото квартиры 29 февраля 2020 90 дн. 1 36 7/9 2 540 000

Похожие предложения о продаже квартир в Екатеринбурге (Эльмаш)

  • 4-к квартира, Бабушкина, 22

    • 85.8 м2
    • 5/5 этаж
    • Состояние: плохое
    6 995 000 ₽ (81500 ₽/м2)
    СРОЧНО ПРОДАЕМ!Продаётся четырёхкомнатная квартира в жилом спальном районе на Эльмаше в Екатеринбурге, станция Метро Уралмаш. Мечтаете о комфортном и уютном доме в Екатеринбурге, в одном из самых удобных районов города? Тогда наша четырёхкомнатная квартира в жилом комплексе из полнометражных домов по адресу: Екатеринбург, ул. Бабушкина, д. 22 — Баумана 14 - это именно то, что вам нужно! Почему стоит выбрать нашу квартиру? Сталинка 1957 года постройки — это не только классика, но и гарантия качества и долговечности. Удобное расположение - всего 5 минут до метро - станция «Уралмаш», рядом с кинотеатром «Заря» ! Просторная и светлая квартира с общей площадью 85 кв. м. Четыре смежно-изолированные комнаты - 60 квадратных метров жилой площади!! 17+17+13 +14 кв. м), кухню 10 кв. м и большие окна, на обе стороны дома, которые наполняют пространство естественным светом. Квартира под ремонт — с потолком в 2,9 метра вы можете воплотить свои дизайнерские идеи и создать интерьер мечты. Все коммуникации уже проведены: центральное водоснабжение и канализация, газ. Дом после капитального ремонта, что гарантирует высокое качество жизни. Закрытая территория — безопасность и комфорт для вас и вашей семьи. Две квартиры на этаже Развитая инфраструктура для детей рядом с домом: гимназии 99 и 66, школы 67 и «Гелиос», ДЮСШ №19, Федерация спортивной гимнастики, Реальное айкидо, детская больница №15, ГК «Больница №23», детские сады 120, 136 и 384. Преимущества квартиры: Квартира свободна от мебели и зарегистрированных жильцов. Возможность покупки в ипотеку. Более пяти лет в собственности — полная юридическая чистота сделки. Не упустите шанс приобрести уютную и просторную квартиру в одном из лучших спальных районов Екатеринбурга! Звоните по указанному номеру или оставляйте заявку на нашем сайте. Ваша мечта о комфортном жилье может стать реальностью уже сегодня.О компании МФЦ «Недвижимость»: Группа компаний, специализирующаяся на рынке недвижимости.Высокий уровень сервиса и индивидуальный подход к каждому клиенту. Для осмотра квартиры, пожалуйста, звоните, сообщения в чатах не принимаются. ID объекта в нашей базе: 1426
    размещено: 10.03.2025 , обновлено: 5.12.2025
  • 4-к квартира, Парниковая, 1

    • 63.6 м2
    • 3/9 этаж
    • Состояние: хорошее
    6 490 000 ₽ (102000 ₽/м2)
    ID объекта в нашей базе: 1410
    размещено: 24.02.2025 , обновлено: 16.11.2025

Новостройки Екатеринбург, мкр-н. Эльмаш

Приоритет

Увеличивает просмотры в 3 раза

Ваше объявление показывается в списке выше обычных объявлений. подключить