На Метре реклама - только нормальная. Никакого шок-контента.
Помогайте независимому ресурсу, как он помогает вам. Удачи!
Новостройки Котт. посёлки Объявления Динамика цен и сделок

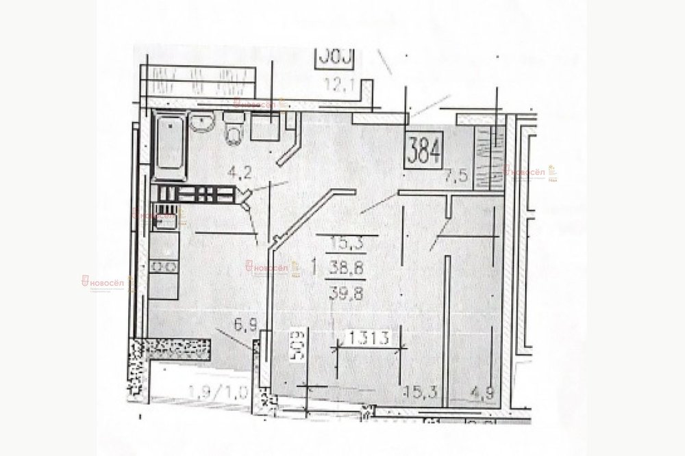
Продажа квартиры: г. Верхняя Пышма, ул. Орджоникидзе, 1 (городской округ Верхняя Пышма)

  • опубликовано 21.07.2021 , обновлено 8.10.2025
  • 9
Кадастровый номер:66:36:0102081:424
Рынок:вторичный
Срок сдачи: 2018 года
Количество комнат:1
Общая площадь:40 м2
Жилая площадь:16 м2
Площадь кухни:7 м2
Этаж/Этажность дома:12 / 18
Санузел:совмещенный
Отделка:евроремонт
Год постройки:2018
Состояние:хорошее
Цена:
3 100 000
Объявление снято с публикации
Коммунальные платежи:оплачиваются отдельно
Ипотека:возможна

Объект № 145562. Продам квартиру ЖК Юность - это современные дома, сочетающее в себе комфорт, уют и безопасность. Закрытый двор без машин, видеонаблюдение, система контроля доступа, замкнутое дворовое пространство с детскими и спортивными площадками, зоной воркаута и зелеными зонами. На первом этаже дома расположатся колясочная и детская игровая комната. В домах установлены лифты FUJI.
До жилого квартала легко добраться на машине или автобусе. Общественный транспорт в шаговой доступности. Новая современная школа во дворе, безопасно для детей. Развитая инфраструктура района, все в шаговой доступности: Ледовый дворец, бассейн, парк УГМК, Музей военной техники, спортивный комплекс, множество магазинов, банков, детсад и.т.д.
Квартира с интересной планировкой в комнате располагается вместительная гардеробная. Квартира светлая, теплая, окна во двор, сделан косметический ремонт, кухня с балконом, в кухне натяжной потолок. Санузел совмещённый, сделан ремонт установлена ванна, раковина, выложен качественный кафель. В коридоре установлен шкаф купе. Горизонтальная разводка. Установлены счетчики учета воды, тепла и электричества.
Обременений нет один взрослый собственник. ***Гарантийный сертификат «Защита собственности» по данному объекту в подарок***

Объявление снято с публикации

Ипотечный калькулятор

лет
%
Сумма кредита
3100000 ₽
Платеж
22 540 ₽

Актуальные предложения в ЖК «Юность"

  • 2-к квартира, Орджоникидзе, 1

    • 56.3 м2
    • 13/16 этаж
    • Состояние:
    6 800 000 ₽ (120800 ₽/м2)
    Предлагаем вашему вниманию Идеальную планировку квартиры: ✔ Просторные комнаты 18 и 15 м– уют и свобода для любых интерьерных решений. ✔ Солнечная сторона*– много света и тепла, прекрасная атмосфера. ✔ 2 больших санузла – новая сантехника, удобные выводы для техники, теплый пол в большем санузле. ✔В коридоре есть место под большую гардеробную– отличное решение для хранения вещей. ✔ Уютная кухня с выходом на лоджию- кухонный гранитуо с нижними ящиками оставим новому покупателю ✔ Панорамный вид– живописный обзор на Верхнюю Пышму. ✔️один из самых больших дворов в Верхней Пышме ✔️приличные соседи Квартира продумана до мелочей – здесь есть всё для комфортной жизни! ???? Ждём на просмотр ID объекта в нашей базе: 746
    размещено: 31.07.2025 , обновлено: 5.10.2025
  • 1-к квартира, Орджоникидзе, 1

    • 44 м2
    • 9/16 этаж
    • Состояние:
    5 990 000 ₽ (136100 ₽/м2)
    Объект № 193254. Продаётся уютная квартира в ЖК «Юность». Окна расположены на юго-западную сторону и открывают прекрасный вид на далекие горы. Просторная светлая кухня-гостиная отлично подойдет для семейных ужинов и вечернего досуга. Лоджия с панорамным остеклением может стать местом для отдыха на свежем воздухе и хранения сезонных вещей В квартире сделан косметический ремонт. Дом в хорошем состоянии, чистые подъезды, грузовой и пассажирский лифты. Закрытый двор и большая благоустроенная детская площадка сделают проживание комфортным и безопасным для семей с детьми. Во дворе есть паркинг, но при этом есть большая уличная парковка, что позволяет всегда найти место для автомобиля. Отличная транспортная доступность: рядом остановки общественного транспорта, развитые выезды из города, трамвай до метро Екатеринбурга всего в 15 минутах пешей прогулки. Также недалеко находится Манин парк, который идеально подходит для прогулок всей семьёй или занятий спортом. Район с развитой инфраструктурой: в непосредственной близости находятся продуктовые магазины, Строительный двор, аптеки, маркетплейсы такие как Вайлдберриз, Озон и Яндекс Маркет — всё необходимое для комфортной жизни доступно в нескольких минутах ходьбы. Рядом с домом находится Школа №1. Хотите приобрести жилье в спокойном районе с прекрасной инфраструктурой и приятными видами? Приглашаем ознакомиться с нашей квартирой лично и убедиться в её преимуществах! Звоните, буду рад ответить на ваши вопросы и помочь с покупкой вашего нового дома! ***Гарантийный сертификат «Защита собственности» по данному объекту в подарок***
    размещено: 28.07.2025 , обновлено: 8.10.2025

История предложений в этом доме

объявление снято с публикации в продаже комнат площадь этаж цена,
г. Верхняя Пышма, ул. Октябрьская, 5 (городской округ Верхняя Пышма) - фото квартиры 8 июля 2025 90 дн. 1 37.3 15/18 4 950 000
г. Верхняя Пышма, ул. Орджоникидзе, 1 (городской округ Верхняя Пышма) - фото квартиры 22 января 2025 90 дн. 2 53.9 1/17 5 300 000
Екатеринбург, ул. Орджоникидзе, 1 - фото квартиры 14 января 2025 90 дн. 2 53.9 1/17 5 300 000
г. Верхняя Пышма, ул. Орджоникидзе, 3 (городской округ Верхняя Пышма) - фото квартиры 18 сентября 2024 90 дн. 1 30.9 7/18 3 590 000
г. Верхняя Пышма, ул. Орджоникидзе, 3 (городской округ Верхняя Пышма) - фото квартиры 3 сентября 2024 90 дн. 1 30.9 7/18 3 700 000
г. Верхняя Пышма, ул. Орджоникидзе, 3 (городской округ Верхняя Пышма) - фото квартиры 20 августа 2024 90 дн. 1 30.9 7/18 3 390 000
г. Верхняя Пышма, ул. Орджоникидзе, 1 (городской округ Верхняя Пышма) - фото квартиры 23 августа 2024 90 дн. 2 53 2/18 5 580 000
г. Верхняя Пышма, ул. Орджоникидзе, 3 (городской округ Верхняя Пышма) - фото квартиры 28 сентября 2024 90 дн. 0 31 9/18 3 350 000
г. Верхняя Пышма, ул. Орджоникидзе, 3 (городской округ Верхняя Пышма) - фото квартиры 24 октября 2023 90 дн. 0 32 16/18 3 050 000
г. Верхняя Пышма, ул. Орджоникидзе, 3 (городской округ Верхняя Пышма) - фото квартиры 3 марта 2023 90 дн. 2 61.8 2/18 5 200 000
г. Верхняя Пышма, ул. Орджоникидзе, 1 (городской округ Верхняя Пышма) - фото квартиры 24 декабря 2022 90 дн. 1 25.9 2/18 2 850 000
г. Верхняя Пышма, ул. Орджоникидзе, 1 (городской округ Верхняя Пышма) - фото квартиры 16 декабря 2022 90 дн. 1 25.9 2/18 2 850 000
г. Верхняя Пышма, ул. Орджоникидзе, 1 (городской округ Верхняя Пышма) - фото квартиры 17 ноября 2022 90 дн. 1 25.9 2/18 2 960 000
г. Верхняя Пышма, ул. Орджоникидзе, 3 (городской округ Верхняя Пышма) - фото квартиры 29 сентября 2022 90 дн. 2 53 11/18 5 000 000
г. Верхняя Пышма, ул. Орджоникидзе, 3 (городской округ Верхняя Пышма) - фото квартиры 21 сентября 2022 90 дн. 2 53 11/18 5 100 000
г. Верхняя Пышма, ул. Орджоникидзе, 1 (городской округ Верхняя Пышма) - фото квартиры 8 июля 2022 90 дн. 1 39 13/16 3 350 000
27 июля 2022 90 дн. 1 43 11/17 3 800 000
г. Верхняя Пышма, ул. Орджоникидзе, 1 (городской округ Верхняя Пышма) - фото квартиры 1 июля 2022 90 дн. 1 39 13/16 3 450 000
г. Верхняя Пышма, ул. Орджоникидзе, 1 (городской округ Верхняя Пышма) - фото квартиры 21 сентября 2022 90 дн. 0 32 11/18 3 200 000
г. Верхняя Пышма, ул. Орджоникидзе, 1 (городской округ Верхняя Пышма) - фото квартиры 20 мая 2022 90 дн. 1 35.2 11/14 3 390 000
г. Верхняя Пышма, ул. Орджоникидзе, 1 (городской округ Верхняя Пышма) - фото квартиры 29 июня 2022 90 дн. 1 35.2 14/18 3 090 000
г. Верхняя Пышма, ул. Орджоникидзе, 1 (городской округ Верхняя Пышма) - фото квартиры 8 февраля 2022 90 дн. 2 48 16/18 4 580 000
г. Верхняя Пышма, ул. Орджоникидзе, 3 (городской округ Верхняя Пышма) - фото квартиры 19 апреля 2022 90 дн. 2 53 11/16 5 500 000
г. Верхняя Пышма, ул. Орджоникидзе, 1 (городской округ Верхняя Пышма) - фото квартиры 13 марта 2022 90 дн. 2 47.5 18/18 4 540 000
г. Верхняя Пышма, ул. Орджоникидзе, 1 (городской округ Верхняя Пышма) - фото квартиры 8 февраля 2022 90 дн. 1 27.8 14/16 2 550 000
г. Верхняя Пышма, ул. Орджоникидзе, 3 (городской округ Верхняя Пышма) - фото квартиры 12 марта 2022 90 дн. 1 29 10/18 2 800 000
г. Верхняя Пышма, ул. Орджоникидзе, 1 (городской округ Верхняя Пышма) - фото квартиры 18 декабря 2021 90 дн. 2 47.8 13/18 3 850 000
14 января 2022 90 дн. 1 46 12/16 4 800 000
г. Верхняя Пышма, ул. Орджоникидзе, 1 (городской округ Верхняя Пышма) - фото квартиры 8 октября 2021 90 дн. 1 28 3/16 2 290 000
г. Верхняя Пышма, ул. Орджоникидзе, 1 (городской округ Верхняя Пышма) - фото квартиры 23 ноября 2021 90 дн. 2 47.8 13/18 3 850 000

Похожие предложения о продаже квартир в г. Верхняя Пышма

  • 1-к квартира, Уральских Рабочих, 46а

    • 34 м2
    • 1/10 этаж
    • Состояние: хорошее
    4 000 000 ₽ (117600 ₽/м2)
    Объект № 194744. Продаётся уютная 1-комнатная квартира с качественным ремонтом, в районе с развитой инфраструктурой. B шаговой доступности остановки общественного транспорта, школы, детские сады, магазины. Мебель и техника остается в квартире по согласованию. ***Гарантийный сертификат «Защита собственности» по данному объекту в подарок***
    размещено: 08.10.2025 , обновлено: 8.10.2025
  • 1-к квартира, Огнеупорщиков, 14

    • 21.6 м2
    • 2/5 этаж
    • Состояние: удовлетворительное
    2 600 000 ₽ (120400 ₽/м2)
    Привлекательна для жизни и как инвестиционный объект, для сдачи в аренду. Дом малосемейного типа, секция на 4 квартиры. Соседи порядочные. В квартире состояние хорошее . Окна пластиковые. Удобный второй этаж. Вся мебель и техника остаются в квартире. В шаговой доступности несколько магазинов, остановка транспорта, детский сад. Чистая продажа. Два взрослых собственника. В собственности более 20 лет. Показываем по предварительной договоренности. Ипотека возможна. Торг реальному покупателю. Записывайтесь на просмотр. ID объекта в нашей базе: 809
    размещено: 02.10.2025 , обновлено: 3.10.2025
  • 1-к квартира, Машиностроителей, 2а

    • 25 м2
    • 5/9 этаж
    • Состояние: хорошее
    2 960 000 ₽ (118400 ₽/м2)
    Объект № 194628. Предлагается к продаже однокомнатная квартира. Планировка включает компактную комнату, кухню, совмещенный санузел, лоджию. Квартира в хорошем состоянии. Инфраструктура района развита: рядом с домом расположены торговый центр, прогулочная аллея, остановки общественного транспорта, школа и детский сад. Тихий двор с парковочными местами обеспечивает комфортное проживание. Один взрослый собственник. Квартира не имеет долгов, обременений. Гарантийный сертификат «Защита собственности» по данному объекту в подарок. ***Гарантийный сертификат «Защита собственности» по данному объекту в подарок***
    размещено: 01.10.2025 , обновлено: 9.10.2025
  • 1-к квартира, Огнеупорщиков, 9

    • 33.5 м2
    • 4/5 этаж
    • Состояние: хорошее
    3 850 000 ₽ (114900 ₽/м2)
    В продаже 1 комнатная квартира по адресу: Верхняя Пышма ул. Огнеупорщиков д. 9. Квартира не угловая, теплая, расположена на 4 этаже пятиэтажного панельного дома, общей площадью 33,5 кв.м. В квартире установлены пластиковые окна, балкон застеклен пластиком под ключ, сейф дверь. Санузел раздельный, ванна в кафеле. В квартире остается вся мебель и техника. B шаговой доcтупнocти: детcкий сaд, много различных магазинов, аптек, остановки общественного транспорта. Чистая продажа! Стоимость: 3850 000 рублей. Обращаться по телефону: 8-900-208-38-00 Ирина.
    размещено: 19.09.2025 , обновлено: 3.10.2025
  • 1-к квартира, Успенский, 40А

    • 31.1 м2
    • 5/5 этаж
    • Состояние: хорошее
    3 100 000 ₽ (99700 ₽/м2)
    Продается хорошая , однокомнатная квартира. Дом расположен во дворе, окна не выходят на центральную улицу.квартира теплая, светлая, установлены приборы учета. комната 17 м прямоугольная, кухня 7,5 кв.м. Есть балкон, не застеклен. Все в шаговой доступности -магазины , Больничный городок , садики , школы , остановки общественного транспорта. Один собственник, чистая продажа. ID объекта в нашей базе: 715
    размещено: 16.09.2025 , обновлено: 1.10.2025

    1-к квартира, Петрова, 34

    • 28.4 м2
    • 6/16 этаж
    • Состояние: удовлетворительное
    3 200 000 ₽ (112700 ₽/м2)
    Уникальное предложение на рынке-шикарная просторная квартира студия!!!Предлагаем вашему вниманию квартиру правильной формы по хорошей цене!!!Только получили ключи ,предчистовая отделка- это возможность сделать ремонт под себя не переделывая после кого то.Удачное расположение дома, школа, остановки общественного транспорта, магазины все в шаговой доступности. до Екатеринбурга 10 минут езды на авто. Не упусти свой шанс стать обладателем шикарной студии, она подойдет как для жизни так и под сдачу.Помогу с одобрением ипотеки. ID объекта в нашей базе: 11682
    размещено: 05.09.2025 , обновлено: 1.10.2025

    1-к квартира, Уральских рабочих, 29

    • 30.1 м2
    • 5/5 этаж
    • Состояние: хорошее
    3 300 000 ₽ (109600 ₽/м2)
    Объект № 193758. В продаже 1-квартира. Чистая и аккуратная. Комната 17.6 кв.м. на два окна, с выходом на балкон. Кухня 6 кв м. В квартире пластиковые окна, на полу ламинат, натяжные потолки, сейф-дверь. В санузле и на кухне теплый пол. Остается мебель: шкафы, диван, кухонный гарнитур, встроенная техника. Блочный дом после капитального ремонта, отремонтирован фасад и крыша, заменены трубы, аккуратный и чистый подъезд. Большой двор со спортивной и детской площадкой, большая парковка вокруг дома. Рядом с домом есть все что нужно для комфортной жизни: несколько детских садов, школа, поликлиника, магазины, остановки транспорта. Небольшой торг уместен, показы по договоренности, подробности по телефону. ***Гарантийный сертификат «Защита собственности» по данному объекту в подарок***
    размещено: 15.08.2025 , обновлено: 8.10.2025

    1-к квартира, Уральских рабочих, 48А

    • 33.6 м2
    • 7/9 этаж
    • Состояние: плохое
    3 400 000 ₽ (101200 ₽/м2)
    Объект № 192317. Предлагаем к приобретению однoкомнатную квартиpу, расположенную на седьмом этaжe девятиэтажного дoма, в гоpoде Bepхняя Пышмa. Стандартная планировка, просторная комната, санузел раздельный, лоджия большая остеклена. Город развивается, с каждым годом становится всё прекрасней, инфраструктура развита, рядом детские сады, школа, магазины, торговые центры, до остановки общественного транспорта несколько минут. Квартира без обременений и задолженностей. Дополнительная информация по телефону. ***Гарантийный сертификат «Защита собственности» по данному объекту в подарок***
    размещено: 09.06.2025 , обновлено: 8.10.2025

    1-к квартира, Успенский, 44

    • 31 м2
    • 1/5 этаж
    • Состояние: хорошее
    3 150 000 ₽ (101600 ₽/м2)
    Продаю квартиру со свежим косметическим ремонтом центре Верхней Пышмы. Рядом с домом остановка общественного транспорта, школы, детский сад, больница. ID объекта в нашей базе: 9702
    размещено: 06.06.2025 , обновлено: 7.10.2025

    1-к квартира, Машиностроителей, 6а

    • 24.8 м2
    • 8/14 этаж
    • Состояние: хорошее
    2 500 000 ₽ (100800 ₽/м2)
    Продается квартира- студия в Аппартаментах( статус жилья). Выполнен косметический ремонт. На входе консьерж . Во дворе всегда есть места для парковки. В шаговой доступности остановки общественного транспорта, магазины, аптеки, школа, садик. Отличный вариант для сдачи в аренду( есть действующий арендатор). Один собственник. Без обременений. Прописка не возможна! Звоните!!! Отвечу на все вопросы. Показ по предварительной договоренности. ID объекта в нашей базе: 11319
    размещено: 23.05.2025 , обновлено: 13.09.2025

    1-к квартира, Машиностроителей, 2А

    • 27.9 м2
    • 1/9 этаж
    • Состояние: хорошее
    3 100 000 ₽ (111100 ₽/м2)
    Объект № 191958. Предлагается к продаже однокомнатная квартира, расположенная в тихом районе города. Квартира на первом этаже, что удобно для тех, кто ценит легкий доступ и минимальное количество лестничных пролетов. Планировка включает компактную комнату, уютную кухню, совмещенный санузел. Квартира в хорошем состоянии. Есть возможность сразу заехать и жить! Инфраструктура района развита: рядом расположены магазины, аптеки, остановки общественного транспорта, школа и детский сад. Тихий двор с парковочными местами обеспечивает комфортное проживание. До г. Екатеринбурга 15 минут на автомобиле. Один взрослый собственник. Квартира не имеет долгов, обременений/ограничений. Звоните прямо сейчас, чтобы договориться о просмотре! ***Гарантийный сертификат «Защита собственности» по данному объекту в подарок***
    размещено: 16.05.2025 , обновлено: 8.10.2025

    1-к квартира, Юбилейная, 10

    • 32.8 м2
    • 5/5 этаж
    • Состояние: хорошее
    2 760 000 ₽ (84100 ₽/м2)
    ID объекта в нашей базе: 1471
    размещено: 13.05.2025 , обновлено: 3.10.2025

    1-к квартира, Огнеупорщиков, 4

    • 32.1 м2
    • 1/14 этаж
    • Состояние: хорошее
    4 000 000 ₽ (124600 ₽/м2)
    Объект № 190791. Продается уютная, светлая квартира в ЖК Лазурный. Удачная планировка - вместительная прихожая, просторная кухня с возможностью поставить небольшой диванчик, большая жилая комната с выходом на лоджию. Достоинство квартиры - высокие потолки, что добавляет пространства и воздуха. Закрытый чистый двор, аккуратные МОПы, низкие коммунальные платежи. Прекрасный вариант для проживания, либо для сдачи в аренду. В шаговой доступности остановки транспорта, детские сады, школы, круглосуточный магазин Пятерочка. Ждем на просмотр. ***Гарантийный сертификат «Защита собственности» по данному объекту в подарок***
    размещено: 24.03.2025 , обновлено: 8.10.2025

    1-к квартира, Уральских Рабочих, 33

    • 32 м2
    • 5/5 этаж
    • Состояние: хорошее
    3 350 000 ₽ (104700 ₽/м2)
    Объект № 190334. Предлагается к продаже однокомнатная квартира с качественным ремонтом. Квартира светлая, теплая, комната на два окна. Полностью готова к проживанию- пластиковые окна, ламинат, санузел в плитке, установлена новая сантехника, новая качественная сейф-дверь. Новый кухонный гарнитур. Квартира продается с мебелью и техникой. Все, что есть на фото остаётся новым собственникам. Один взрослый собственник. Квартира без обременений и ипотечных хвостов. Быстрый выход на сделку. Звоните и приходите на просмотр. ***Гарантийный сертификат «Защита собственности» по данному объекту в подарок***
    размещено: 08.03.2025 , обновлено: 8.10.2025

    1-к квартира, Кривоусова, 18Д

    • 34 м2
    • 13/14 этаж
    • Состояние: хорошее
    3 500 000 ₽ (102900 ₽/м2)
    Продам 1 комнатную квартиру в Жилом Комплексе " Садовый" . Жилой комплекс находится в центральной части г. Верхней Пышмы. Район с развитой инфраструктурой: детские учреждения, школа, поликлиника, салоны красоты, супермаркеты. В шаговой доступности Дворец Спорта, футбольной поле, парковые зоны. Хорошая транспортная развязка. Дом 2011 года постройки. Закрытая территория. Двор оборудован детской и спортивной площадкой. Квартира с удобной планировкой, светлая. Отличный вид из окна. Ремонт от застройщика: линолеум, обои под покраску. Квартира освобождена. 1 собственник. Быстрый выход на сделку ! Звоните, если нужно помогу с ипотекой по выгодной ставке. ID объекта в нашей базе: 3101
    размещено: 22.06.2022 , обновлено: 8.10.2025

Новостройки г. Верхняя Пышма

Приоритет

Увеличивает просмотры в 3 раза

Ваше объявление показывается в списке выше обычных объявлений. подключить