На Метре реклама - только нормальная. Никакого шок-контента.
Помогайте независимому ресурсу, как он помогает вам. Удачи!
Новостройки Котт. посёлки Объявления Динамика цен и сделок

Продажа квартиры: г. Ревда, ул. Советских Космонавтов, 1 (городской округ Ревда)

  • опубликовано 29.11.2021 , обновлено 11.06.2025
  • 5
Кадастровый номер:66:21:0101055:370
Рынок:вторичный
Количество комнат:1
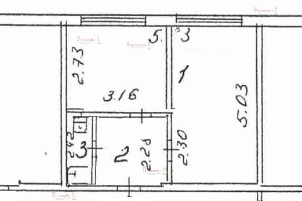
Общая площадь:28 м2
Жилая площадь:21 м2
Площадь кухни:5 м2
Этаж/Этажность дома:5 / 5
Санузел:совмещенный
Отделка:косметический
Состояние:удовлетворительное
Цена:
880 000
Объявление снято с публикации
Коммунальные платежи:оплачиваются отдельно
Условия продажи:«чистая» продажа
Ипотека:возможна

Объект № 151477. Продам уютную 1-к квартиру, расположенную по адресу Советских Космонавтов 1. Вся необходимая инфраструктура в шаговой доступности, а именно школа №10, дет. сады, учреждения средне-специального образования, парки, спорткомплексы, городская больница и т.д.
Один собственник, быстрый выход на сделку. Возможна ипотека, материнский капитал. С оформлением любых документов поможем. ***Гарантийный сертификат «Защита собственности» по данному объекту в подарок***

Объявление снято с публикации

Ипотечный калькулятор

лет
%
Сумма кредита
880000 ₽
Платеж
22 540 ₽

История предложений в этом доме

объявление снято с публикации в продаже комнат площадь этаж цена,
г. Ревда, ул. Советских Космонавтов, 1 (городской округ Ревда) - фото квартиры 20 августа 2024 90 дн. 1 12.9 1/5 1 150 000
г. Ревда, ул. Советских Космонавтов, 1 (городской округ Ревда) - фото квартиры 9 сентября 2023 90 дн. 1 28 3/5 1 200 000
г. Ревда, ул. Советских космонавтов, 1 (городской округ Ревда) - фото квартиры 27 июня 2023 90 дн. 1 28 2/5 1 200 000
г. Ревда, ул. Советских Космонавтов, 1 (городской округ Ревда) - фото квартиры 23 марта 2023 90 дн. 1 29 4/5 1 090 000
г. Ревда, ул. Советских Космонавтов, 1 (городской округ Ревда) - фото квартиры 1 апреля 2023 90 дн. 2 28.4 5/5 1 050 000
г. Ревда, ул. Советских Космонавтов, 1 (городской округ Ревда) - фото квартиры 23 марта 2022 90 дн. 2 28 5/5 970 000
г. Ревда, ул. Советских Космонавтов, 1 (городской округ Ревда) - фото квартиры 19 мая 2022 90 дн. 1 28 4/5 1 050 000
г. Ревда, ул. Советских Космонавтов, 1 (городской округ Ревда) - фото квартиры 18 декабря 2021 90 дн. 2 29 4/5 950 000
г. Ревда, ул. Советских Космонавтов, 1 (городской округ Ревда) - фото квартиры 4 апреля 2021 90 дн. 2 28 5/5 920 000
24 апреля 2021 90 дн. 2 28 3/5 950 000
г. Ревда, ул. Советских Космонавтов, 1 (городской округ Ревда) - фото квартиры 27 января 2021 90 дн. 1 28 4/5 890 000
Ревда, ул. Советских Космонавтов, 1 - фото квартиры 30 ноября 2019 90 дн. 2 29 3/5 800 000
2 августа 2018 92 дн. 2 29 3/5 800 000

Новостройки г. Ревда

Приоритет

Увеличивает просмотры в 3 раза

Ваше объявление показывается в списке выше обычных объявлений. подключить