Top.Mail.Ru
На Метре реклама - только нормальная. Никакого шок-контента.
Помогайте независимому ресурсу, как он помогает вам. Удачи!
Средняя цена м² · Новостройки
178 600 ₽/м²
↑ 6,88% за 12 мес.
Средняя цена м² · Вторичка
141 328 ₽/м²
↑ 11% за 12 мес.
Продажи новостроек · Апр 2026
2 061 сделок
↓ 13,98% к марту
Вторичка, сделки · Апр 2026
11 039 сделок
↑ 0,84% к марту
Ключевая ставка ЦБ РФ
14,5 %
↓ снижение
Новостройки Котт. посёлки Объявления Динамика цен и сделок

Продажа квартиры: Екатеринбург, ул. Колхозников, 78 (Елизавет)

  • опубликовано 9.02.2022 , обновлено 1.05.2026
  • 20
Кадастровый номер:66:41:0506007:1074
Рынок:вторичный
Срок сдачи: 1981 года
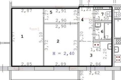
Количество комнат:1
Общая площадь:28 м2
Жилая площадь:15 м2
Площадь кухни:6.2 м2
Этаж/Этажность дома:1 / 9
Санузел:раздельный
Отделка:косметический
Год постройки:1981
Балкон/лоджия:лоджия
Цена:
2 200 000
Объявление снято с публикации
Коммунальные платежи:оплачиваются отдельно
Условия продажи:«чистая» продажа
Ипотека:возможна

Продается уютная 1-комнатная квартира в Чкаловском районе Екатеринбурга. Квартира очень светлая и теплая. Окна выходят на восточную сторону.

Сделан косметический ремонт, установлены натяжные потолки, современные пластиковые стеклопакеты. В квартире удобная и функциональная планировка, санузел раздельный. Идеальный вариант для молодой семьи.

В шаговой доступности вся необходимая инфраструктура, остановки транспорта, парк, несколько школ и детсадов на выбор. Квартира готова к продаже и ждет своего покупателя на просмотр. Подберем специальные выгодные условия по ипотеке с минимальной процентной ставкой.

#объект в нашей базе №12083024#

Объявление снято с публикации

Ипотечный калькулятор

лет
%
Сумма кредита
2200000 ₽
Платеж
22 540 ₽

Актуальные предложения в этом доме

  • Студия, Колхозников, 78

    • 17 м2
    • 4/9 этаж
    • Состояние:
    1 780 000 ₽ (104700 ₽/м2)
    Объект № 199371. Срочно!!! Недорогая студия на Елизавете! Вариант для тех, кто ищет самую доступную студию для себя, или сдачи в аренду. Без лишних метров, за которые приходится переплачивать. Планировка Помещение прямоугольной формы, 17,5 м². Есть зона под кухню, место для стиральной машины, своя душевая и туалет. Состояние косметический ремонт. Заменены окна и батареи. Можно заехать самому или подготовить студию к аренде без больших дополнительных вложений, вся мебель остается. Инфраструктура рядом В шаговой доступности магазины Монетка, Пятерочка, аптеки, пункты выдачи Озон и Вайлдберриз, Сбербанк, отделение почты. Транспорт Рядом с домом остановки автобуса, которые ходят по маршруту каждые 10 минут. Парковка во дворе бесплатная, мест много. Самостоятельная студия - именно такой формат чаще всего ищут, когда нужен недорогой вход в недвижимость без лишней переплаты. Квартира освобождена, ключи передадим сразу после окончательного расчета. Документы на объект проверены. Ограничений и залогов нет. Сотрудничаем с контрагентами. Ждем вас на просмотр, звоните!!! ***Гарантийный сертификат «Защита собственности» по данному объекту в подарок***
    размещено: 21.05.2026

История предложений в этом доме

объявление снято с публикации в продаже комнат площадь этаж цена,
Екатеринбург, ул. Колхозников, 78 (Елизавет) - фото квартиры 30 апреля 2026 90 дн. 0 17 4/9 1 780 000
Екатеринбург, ул. Колхозников, 78 (Елизавет) - фото квартиры 1 апреля 2026 90 дн. 0 17 4/9 1 700 000
Екатеринбург, ул. Колхозников, 78 (Елизавет) - фото квартиры 6 июня 2025 90 дн. 2 42.5 1/9 3 000 000
Екатеринбург, ул. Колхозников, 78 (Елизавет) - фото квартиры 3 декабря 2024 90 дн. 3 57.1 5/9 5 200 000
Екатеринбург, ул. Колхозников, 78 (Елизавет) - фото квартиры 21 августа 2024 90 дн. 3 57.1 5/9 5 250 000
Екатеринбург, ул. Колхозников, 78 (Елизавет) - фото квартиры 3 мая 2024 90 дн. 3 57.1 5/9 5 400 000
Екатеринбург, ул. Колхозников, 78 (Елизавет) - фото квартиры 22 февраля 2023 90 дн. 3 63.5 5/9 3 300 000
Екатеринбург, ул. Колхозников, 78 (Елизавет) - фото квартиры 1 февраля 2023 90 дн. 3 63.5 5/9 2 999 000
Екатеринбург, ул. Колхозников, 78 (Елизавет) - фото квартиры 13 июля 2023 90 дн. 3 57.2 3/9 4 660 000
Екатеринбург, ул. Колхозников, 78 (Елизавет) - фото квартиры 10 января 2023 90 дн. 3 63.5 5/9 3 500 000
Екатеринбург, ул. Колхозников, 78 (Елизавет) - фото квартиры 20 декабря 2022 90 дн. 6 48 5/9 3 200 000
Екатеринбург, ул. Колхозников, 78 (Елизавет) - фото квартиры 7 марта 2023 90 дн. 2 40.4 8/9 3 000 000
Екатеринбург, ул. Колхозников, 78 (Елизавет) - фото квартиры 25 октября 2022 90 дн. 3 63.5 5/9 3 300 000
Екатеринбург, ул. Колхозников, 78 (Елизавет) - фото квартиры 14 сентября 2022 90 дн. 3 63.5 5/9 3 300 000
Екатеринбург, ул. Колхозников, 78 (Елизавет) - фото квартиры 7 сентября 2022 90 дн. 3 63.5 5/9 3 300 000
Екатеринбург, ул. Колхозников, 78 (Елизавет) - фото квартиры 26 августа 2022 90 дн. 6 63.5 5/9 3 300 000
Екатеринбург, ул. Колхозников, 78 (Елизавет) - фото квартиры 10 августа 2022 90 дн. 1 17.5 4/9 1 550 000
Екатеринбург, ул. Колхозников, 78 (Елизавет) - фото квартиры 6 ноября 2022 90 дн. 1 31 3/9 2 250 000
Екатеринбург, ул. Колхозников, 78 (Елизавет) - фото квартиры 26 июля 2022 90 дн. 6 63.5 5/9 3 300 000
Екатеринбург, ул. Колхозников, 78 (Елизавет) - фото квартиры 1 июня 2022 90 дн. 6 63.5 5/9 3 300 000
Екатеринбург, ул. Колхозников, 78 (Елизавет) - фото квартиры 1 июля 2022 90 дн. 1 17.5 4/9 1 550 000
Екатеринбург, ул. Колхозников, 78 (Елизавет) - фото квартиры 22 апреля 2022 90 дн. 0 18 4/9 1 500 000
Екатеринбург, ул. Колхозников, 78 (Елизавет) - фото квартиры 6 мая 2022 90 дн. 1 17.5 4/9 1 550 000
Екатеринбург, ул. Колхозников, 78 (Елизавет) - фото квартиры 23 февраля 2022 90 дн. 1 17.5 4/9 1 550 000
Екатеринбург, ул. Колхозников, 78 (Елизавет) - фото квартиры 10 февраля 2022 90 дн. 1 17.5 4/9 1 550 000
Екатеринбург, ул. Колхозников, 78 (Елизавет) - фото квартиры 10 марта 2022 90 дн. 2 29 3/9 2 350 000
Екатеринбург, ул. Колхозников, 78 (Елизавет) - фото квартиры 13 июля 2021 90 дн. 2 42 8/9 2 750 000
5 июля 2018 122 дн. 2 23 9/9 1 300 000

Приоритет

Увеличивает просмотры в 3 раза

Ваше объявление показывается в списке выше обычных объявлений. подключить