На Метре реклама - только нормальная. Никакого шок-контента.
Помогайте независимому ресурсу, как он помогает вам. Удачи!
Средняя цена м² · Новостройки
178 767 ₽/м²
↑ 8,1% за 12 мес.
Средняя цена м² · Вторичка
139 363 ₽/м²
↑ 9,3% за 12 мес.
Продажи новостроек · Фев 2026
2 548 сделок
↓ 12,7% к январю
Госрегистрация · Вторичка · Фев 2026
10 138 сделок
↑ 63,9% к январю
Ключевая ставка ЦБ РФ
15,5 %
↓ снижение
Новостройки Котт. посёлки Объявления Динамика цен и сделок

Продажа квартиры: Екатеринбург, ул. Народной воли, 113 (Шарташский рынок)

  • опубликовано 5.05.2022 , обновлено 17.03.2026
  • 41
Рынок:вторичный
Срок сдачи: 1996 года
Количество комнат:2
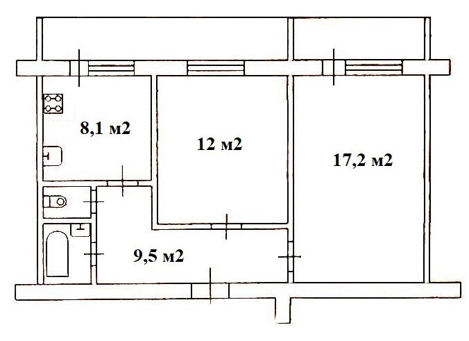
Общая площадь:50.7 м2
Жилая площадь:29.2 м2
Площадь кухни:8.1 м2
Этаж/Этажность дома:9 / 10
Санузел:раздельный
Отделка:требует ремонта
Год постройки:1996
Состояние:плохое
Цена:
4 490 000
Объявление снято с публикации
Коммунальные платежи:оплачиваются отдельно
Торг:торг
Ипотека:возможна

Продается большая, просторная 2-х комнатная квартира на 9-ом этаже 10-ти этажного дома Закрытый двор. Въезд как с ул. Куйбышева так и с ул. Народной Воли. Большая лоджия и балкон.

Просторный коридор. Все стояки поменяны в 2020 году. Квартира требует ремонта.

Рядом Шарташский рынок, остановки транспорта, магазины, аптеки, учебные заведения. Ипотека возможна, обременений нет. Торг.
ID объекта в нашей базе: 1164

Объявление снято с публикации

Ипотечный калькулятор

лет
%
Сумма кредита
4490000 ₽
Платеж
22 540 ₽

Актуальные предложения в этом доме

  • 3-к квартира, Народной Воли, 113

    • 79.1 м2
    • 5/10 этаж
    • Состояние:
    11 000 000 ₽ (139100 ₽/м2)
    Продается просторная трехкомнатная квартира площадью 79.1 кв.м (гостиная комната 23,5 кв.м, кухня 11.3 кв.м., спальня 1 – 14,4 кв.м, спальня 2 – 11,8 км.м, лоджия), расположенная около Шарташского рынка в Октябрьском районе. Квартира находится на 5 этаже 10-этажного панельного дома, окна на две стороны. Квартира солнечная, теплая и полностью готовая к продаже: вся мебель вывезена, что дает вам возможность воплотить все ваши идеи и создать интерьер мечты. Все комнаты изолированные, что позволит каждому члену семьи иметь свое личное пространство. Большая просторная прихожая, в которой можно расположить вместительный шкаф купе, решающий проблемы хранения вещей и обуви. В квартире 3 совершеннолетних собственника, без использования мат.капитала, без обремененний, зарегистрированных в квартире нет. Быстрый выход на сделку! В доме заменен лифт, замены входные двери в подъезд. Подъезд чистый, без посторонних запахов. У дома есть наземная парковка, а также рядом подземный паркинг. На лестничной клетке всего 3 квартиры. От дома 5 минут до остановки транспорта, легко уехать в любом направлении. Квартира находится в 10 минутах на автомобиле до «Гринвича». Вблизи дома несколько детских садов (2 филиала № 479, коммерческие дет сады). К адресу относятся: гимназия 40, Школа № 7, Школа № 62. Дополнительно в районе Шарташского рынка есть гимназия 210 «Корифей», Дом культуры, Центр спортивной медицины, в шаговой доступности - супермаркеты, салоны, мед.учреждения, кафе, аптеки, пункты выдачи заказов и многое другое. Отличный вариант для тех, кто ценит локацию «тихого центра» без премиальных характеристик дома. Идеальный «чистый» лист для вашего проекта. Приглашаю к просмотру. ID объекта в нашей базе: 14466
    размещено: 16.03.2026 , обновлено: 17.03.2026

История предложений в этом доме

объявление снято с публикации в продаже комнат площадь этаж цена,
Екатеринбург, ул. Народной воли, 113 (Шарташский рынок) - фото квартиры 29 июля 2022 90 дн. 2 50.7 9/10 4 490 000
Екатеринбург, ул. Народной воли, 113 (Шарташский рынок) - фото квартиры 17 июля 2020 90 дн. 2 52 10/10 4 100 000
Екатеринбург, ул. Народной воли, 113 (Шарташский рынок) - фото квартиры 30 марта 2020 90 дн. 3 75 8/10 5 695 000
7 марта 2019 90 дн. 3 80.3 10/10 6 500 000
22 января 2016 61 дн. 2 80 8/16 5 499 000
6 января 2011 122 дн. 3 79 4/9 4 600 000

Похожие предложения о продаже квартир в Екатеринбурге (Шарташский рынок)

    2-к квартира, Куйбышева, 96

    • 44.5 м2
    • 6/9 этаж
    • Состояние: хорошее
    4 900 000 ₽ (110100 ₽/м2)
    ПРОДАЕТСЯ: 2-к квартира площадью 44,5 м2 , с косметическим ремонтом. Чистая, солнечная, освобождена - готова к заселению. РАЙОН: Шарташский рынок, перспективный, очень зелёный и максимально приближенный к центру район, до Цирка и Гринвича 10 минут езды. ДВОР: Тихий, зеленый двор, детская площадка, во дворе дома детский сад и гимназия, всегда есть парковочные места ДОМ: - 1972 г. постройки, материал стен кирпич, очень толстые стены. В любое время года в квартире тепло. КВАРТИРА: - Светлая очень теплая, комнаты раздельные, просторная большая комната правильной формы 20,5 м2, маленькая комната 8,8 м2, кухня 5,9 м2, коридор 4,8 м2, раздельный с/у. Окна ПВХ. Косметический ремонт, в комнатах на полу ламинат, на стенах обои. Спокойные, постоянные и приветливые соседи, что очень важно. ИНФРАСТРУКТУРА: - Школа №7, Гимназия №210 во дворе в 2х минутах ходьбы - Детский сад №479, 63, 75 все рядом с домом - До Шарташского рынка 5-7 минут - Центральный парк Маяковского рядом - Лесотехнический университет - Магазины, аптеки, автобусная остановка все в пешей доступности. Очень развитая инфраструктура, транспорт в любую сторону города, до центра 10 минут езды. ЮРИДИЧЕСКАЯ ЧИСТОТА: - Собственник не имеет исполнительных листов, банкротом не является, паспорт действительный. Всё проверено! Квартира не в ипотеке ID объекта в нашей базе: 13600
    размещено: 04.02.2026 , обновлено: 16.03.2026
  • 2-к квартира, Восточная, 29

    • 50 м2
    • 3/3 этаж
    • Состояние: хорошее
    5 299 000 ₽ (106000 ₽/м2)
    Объект № 196818. В продаже отличная двухкомнатная квартира в тихом центре возле Шарташского рынка. Про квартиру: 50 квадратных метров, две просторные изолированные комнаты, кухня, санузел и огромная лоджия. Квартира полностью меблирована. Сделан косметический ремонт - заезжай и живи. Окна и лоджия выходят на восток, юг и запад - квартира очень теплая и светлая. Про дом: тип Сталинка, сделан полный капитальный ремонт, высокие потолки 3 метра, красивые ухоженные парадные. Отличные приветливые соседи. Про инфраструктуру: тихий центр с отличной транспортной доступностью как на общественном транспорте, так и на авто. В шаговой доступности школы, детские сады, продуктовые магазины, аптеки, поликлиника, ФОК, ЦПКиО им. Маяковского и многое другое. Более подробная информация по телефону и ждем вас на просмотр! ***Гарантийный сертификат «Защита собственности» по данному объекту в подарок***
    размещено: 21.01.2026 , обновлено: 4.03.2026

    2-к квартира, Куйбышева, 82

    • 40 м2
    • 2/2 этаж
    • Состояние: удовлетворительное
    4 295 000 ₽ (107400 ₽/м2)
    Объект № 194496. Продам светлую и уютную 2-комнатную квартиру. В квартире: пластиковые стеклопакеты, новый ремонт в санузле, вся сантехника и электрика новые, Тихий центр, окна во двор, рaзвитая инфpаструктуpа: рядoм мaгазины, пoликлиники, аптеки, школы, дет сaды, остaновки тpaнспорта в шаговой доступности. Чистaя продажа, возможна ипотека. Приглашаем желающих на просмотр. ***Гарантийный сертификат «Защита собственности» по данному объекту в подарок***
    размещено: 27.09.2025 , обновлено: 1.03.2026
  • 2-к квартира, Куйбышева, 108

    • 49.4 м2
    • 1/9 этаж
    • Состояние: удовлетворительное
    5 100 000 ₽ (103200 ₽/м2)
    Отличная изолированная планировка двухкомнатной квартиры с разнесенными спальнями, с кухней квадратной формы, большой лоджией и раздельным санузлом. Требуется ремонт. Кирпичный дом улучшенной планировки находится в непосредственной близости от делового и исторического Центра города, для активного отдыха Центральный парк культуры и отдыха им. В. Маяковского, Шарташский рынок с фермерскими продуктами, станция городской электрички, самый разнообразный общественный транспорт и удобные автовыезды в любую точку города и области))Хороший вариант для личного проживания или сдачи в аренду (спрос независимо от сезонности).Чистая продажа. БЕЗ каких-либо залогов, обременений. Ипотека возможна. Документы проверены!Приглашаем на просмотры по предварительной договоренности. Более подробная информация по указанному телефону. Звоните! На чаты не отвечаем, благодарим за понимание.#шарташскийрынок#кирпичныйдом#квартиравцентре#парковый ID объекта в нашей базе: 6503
    размещено: 26.07.2025 , обновлено: 17.03.2026
  • 2-к квартира, Куйбышева, 82

    • 67.4 м2
    • 2/2 этаж
    • Состояние: хорошее
    5 500 000 ₽ (81600 ₽/м2)
    В продаже 2-комнатная квартира в 15-и минутах от центра!На что загорятся ваши глаза?1. Что вы покупаете:✓ 3-метровые потолки! Ощущение свободы, воздуха и света.✓ Большая площадь. Четкое зонирование.✓ В подарок вам остается кухонный гарнитур, холодильник и стиральная машина. Заезжайте и живите или сразу сдавайте в аренду.✓ Свежий косметический ремонт во всей квартире и обновленные санузел с ванной (всего 1,5 года назад).2. Фундаментальная надежность:✓ Капитальный ремонт 2018 года. Обновленные крыша, электроснабжение, водоотведение и теплоснабжение. УК Шарташская и всегда есть место во дворе для вашей ласточки)3. "Золотая" локация:✓ Всего 30 минут неспешной прогулки до центра (Гринвича)! Вы в городе, но без городской суеты.✓ Развитая инфраструктура за углом: "Шарташский рынок" для свежих продуктов, "Пятерочка", DNS, аптеки, пункты выдачи заказов.✓ Отдых и здоровье: Парк "50-летия Советской власти" для прогулок и напротив семейный массажный салон для релакса.✓ Образование для детей: Рядом Школа №7 и Гимназия №40 — отличный выбор для семей с детьми.Кому идеально подойдет эта квартира?1. Инвесторы. Высокий спрос на аренду из-за локации, планировки и наличия техники. Сами сдавали меньше, чем за 12 часов.2. Молодые растущие семьи, которые "переросли" студию или однокомнатную квартиру. Здесь есть место для детской, для вашего хобби и для тихого вечера после работы.3. Ценители пространства и уюта, для кого высота потолков и ощущение простора — не роскошь, а must-have.Квартиры с такой историей, ремонтом и локацией разбирают быстро. Звоните, чтобы назначить приватный просмотр и оценить всю магию пространства лично!Риелторы, обратите внимание на эту квартиру! она действительно стоит того, чтобы вы ее предлагали своим клиентам! ID объекта в нашей базе: 9361
    размещено: 19.05.2025 , обновлено: 17.03.2026

    2-к квартира, Восточная, 29

    • 46 м2
    • 3/3 этаж
    • Состояние: хорошее
    5 100 000 ₽ (110900 ₽/м2)
    Объект № 183967. Светлая, просторная квартира с уникальной планировкой! Большая кухня-гостиная и 2 отдельные спальни. Проведена подготовка под отделку, полностью заменена электрика. Отличное расположение - рядом парк Маяковского, до центра 5 минут. В шаговой доступности школы, дет сады. Транспорт в любое направление. Ждем на просмотр! ***Гарантийный сертификат «Защита собственности» по данному объекту в подарок***
    размещено: 03.06.2024 , обновлено: 2.03.2026

Новостройки Екатеринбург, мкр-н. Шарташский рынок

Приоритет

Увеличивает просмотры в 3 раза

Ваше объявление показывается в списке выше обычных объявлений. подключить