На Метре реклама - только нормальная. Никакого шок-контента.
Помогайте независимому ресурсу, как он помогает вам. Удачи!
Новостройки Котт. посёлки Объявления Динамика цен и сделок

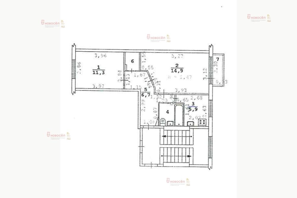
Продажа квартиры: Екатеринбург, ул. Восточная, 88 (Центр)

  • опубликовано 30.08.2022 , обновлено 28.11.2025
  • 91
Кадастровый номер:66:41:0206032:6305
Рынок:вторичный
Срок сдачи: 1976 года
Количество комнат:2
Общая площадь:43 м2
Жилая площадь:26 м2
Площадь кухни:6 м2
Этаж/Этажность дома:4 / 5
Санузел:совмещенный
Отделка:евроремонт
Год постройки:1976
Состояние:хорошее
Цена:
4 290 000
Объявление снято с публикации
Коммунальные платежи:оплачиваются отдельно
Ипотека:возможна

Объект № 163429. Продается уютная, светлая квартира в тихом центре Екатеринбурга. В доме был произведен капитальный ремонт, заменены стояки, в подъезде установлены пластиковые окна. Окна квартиры выходят на разные стороны. Имеется кладовка.
Двор очень зеленый, что в наше время большая редкость. В шаговой доступности школы, детские сады, магазины, аптеки, салоны красоты, остановки общественного транспорта. Приглашаем на просмотр! ***Гарантийный сертификат «Защита собственности» по данному объекту в подарок***

Объявление снято с публикации

Ипотечный калькулятор

лет
%
Сумма кредита
4290000 ₽
Платеж
22 540 ₽

Актуальные предложения в этом доме

    2-к квартира, Восточная, 88

    • 58 м2
    • 1/5 этаж
    • Состояние:
    6 500 000 ₽ (112100 ₽/м2)
    Представляем Вашему вниманию 3 ком квартиру 58 кв в центре города. Готовая квартира с ремонтом готова к проживанию.Вопрос мебели обсуждаемый!Инфраструктура самая желаемая!Остановки транспорта во все стороны. Автобусы, троллейбусы и трамваи в шаговой доступности. До метро 10 мин пешком.Кафе, рестораны, магазины и ТЦ рядом с домом.Дет сады, школы и высшие учебные заведения, включая УРГЭУ, УРФУ, ЛЕС-ТЕХ, УПИ и ЮРЕДИЧЕСКИЙ УНЕВЕРСИТЕТ.Множество парков для развлечения включая парк ИМ. МАЯКОВСКОГО.Больница ЦГБ 1, Полиция и пожарная часть. Это лишь малая часть того, что в этой локации. Есть все что нужно современному человеку.Если вы ищите безопасность и комфортую жизнь, то Вам к сюда!Обременений нет.Помогу с одобрением ипотеки!Звоните и записывайтесь на просмотр в удобное Вам время. ID объекта в нашей базе: 18190
    размещено: 28.11.2025

История предложений в этом доме

объявление снято с публикации в продаже комнат площадь этаж цена,
Екатеринбург, ул. Восточная, 88 (Центр) - фото квартиры 24 августа 2023 90 дн. 1 29 3/5 3 990 000
Екатеринбург, ул. Восточная, 88 (Центр) - фото квартиры 17 августа 2023 90 дн. 2 43.3 1/5 4 300 000
Екатеринбург, ул. Восточная, 88 (Центр) - фото квартиры 23 ноября 2022 90 дн. 1 45.5 3/9 3 800 000
Екатеринбург, ул. Восточная, 88 (Центр) - фото квартиры 29 сентября 2021 90 дн. 3 58 5/5 4 800 000
Екатеринбург, ул. Восточная, 88 (Центр) - фото квартиры 28 июля 2021 90 дн. 3 58 5/5 4 500 000
Екатеринбург, ул. Восточная, 88 (Центр) - фото квартиры 11 октября 2020 90 дн. 1 45.5 6/9 3 600 000
Екатеринбург, ул. Восточная, 88 (Центр) - фото квартиры 11 октября 2020 90 дн. 1 43 6/9 3 400 000
Екатеринбург, ул. Восточная, 88 (Центр) - фото квартиры 2 февраля 2022 90 дн. 1 29.5 1/5 2 350 000
Екатеринбург, ул. Восточная, 88 (Центр) - фото квартиры 6 декабря 2019 90 дн. 1 36 3/9 3 500 000
31 января 2019 92 дн. 1 36 9/9 2 950 000
28 октября 2016 61 дн. 1 29.2 1/5 2 300 000
1 июня 2015 61 дн. 2 44 2/5 3 250 000

Похожие предложения о продаже квартир в Екатеринбурге (Центр)

  • 2-к квартира, Восточная, 166а

    • 42 м2
    • 5/5 этаж
    • Состояние: хорошее
    4 490 000 ₽ (106900 ₽/м2)
    Квартира с удачной планировкой. Комнаты изолированные 17,1 м2 и 12,7 м2 - между которыми расположена кухня и ванная.Дом расположен во дворе. Окна на юг. Светлая квартира.Стеклопакеты.Начата подготовка к ремонту.Квартира освобождена. Прекрасный вариант для сдачи в аренду. Есть мебель, кухонный гарнитур, холодильник, стиральная машина.Ключи на сделке.Во дворе 40 гимназия. Развитая инфраструктура. Один взрослый собственник. Документы готовы. Без обременений. Ипотека возможна. ID объекта в нашей базе: 1082
    размещено: 04.11.2025 , обновлено: 20.11.2025
  • 2-к квартира, Куйбышева, 115

    • 40.9 м2
    • 3/5 этаж
    • Состояние: удовлетворительное
    4 800 000 ₽ (117400 ₽/м2)
    Продаётся уютная 2-комнатная квартира в сердце города! Ваш идеальный старт или выгодное вложение!Друзья, ищущие свой новый дом! Предлагаем вам замечательную возможность приобрести светлую и уютную двухкомнатную квартиру на 3-м этаже в самом разгарной и удобной части города. Это не просто стены, это — потенциал для создания жилья вашей мечты без лишних хлопот!Идеальное расположение, уютный район и всё необходимое прямо под рукой. Квартира ждёт нового хозяина, готового сделать в ней современный косметический ремонт и наслаждаться всеми благами центральной жизни.Почему эта квартира — отличный выбор?· Бесценная локация: Дом находится в ЦЕНТРЕ города, но в удивительно тихом и спокойном районе. Весь город у ваших ног, а за окном — покой.· Всё в шаговой доступности: Вам не нужна машина для бытовых дел! Рядом десятки уютных кофеен, пекарен с ароматным хлебом, аптек, продуктовых магазинов, банков и спортивных секций.· Отличная транспортная развязка: В 2-х шагах остановки трамвая, автобуса и троллейбуса. Всего 10 минут — и вы в самом центре!· Простор и изоляция: Две изолированные комнаты гарантируют приватность и комфорт для всех жильцов.· Уникальный бонус — ваша кладовая-трансформер! В одной из комнат есть кладовая. Вы можете легко её демонтировать, увеличив пространство, или же превратить в удобную гардеробную своей мечты — решать вам!· Чистые документы: Квартира без обременений, всего один собственник. Процесс покупки будет быстрым и прозрачным.· Экономия на старте: В квартире остаётся мебель, а совмещённый санузел уже готов к современной отделке. Вам нужно лишь сделать косметический ремонт по своему вкусу и заехать!Эта квартира — идеальный холст для ваших дизайнерских идей! Здесь вы сможете создать именно то пространство, о котором всегда мечтали, без необходимости делать «черновую» работу.Не упустите шанс поселиться в самом сердце города с развитой инфраструктурой! Звоните, чтобы назначить просмотр, мы будем ждать! ID объекта в нашей базе: 11903
    размещено: 15.10.2025 , обновлено: 26.11.2025
  • 2-к квартира, Шевченко, 25

    • 44 м2
    • 1/5 этаж
    • Состояние: хорошее
    4 999 000 ₽ (113600 ₽/м2)
    Объект № 191461. Отличное расположение дома не у дороги. Возле дома средняя школа №75. В соседнем дворе гимназия №212 и дет.сад №288. Все окна выходят во двор. Квартира в хорошем состоянии. Очень теплая, светлая. В собственности более 6 лет. Без ипотек, опек или иных обременений. Чистая продажа. ***Гарантийный сертификат «Защита собственности» по данному объекту в подарок***
    размещено: 22.04.2025 , обновлено: 28.11.2025

Новостройки Екатеринбург, мкр-н. Центр

Приоритет

Увеличивает просмотры в 3 раза

Ваше объявление показывается в списке выше обычных объявлений. подключить