На Метре реклама - только нормальная. Никакого шок-контента.
Помогайте независимому ресурсу, как он помогает вам. Удачи!
Новостройки Котт. посёлки Объявления Динамика цен и сделок

Продажа квартиры: Екатеринбург, ул. Селькоровская, 16 (Вторчермет)

  • опубликовано 16.12.2022 , обновлено 19.11.2025
  • 116
Рынок:вторичный
Количество комнат:3
Из них изолированных:3
Общая площадь:71 м2
Жилая площадь:45 м2
Площадь кухни:14 м2
Этаж/Этажность дома:5 / 6
Санузел:раздельный
Стеклопакеты:пластик
Цена:
6 500 000
Объявление снято с публикации
Торг:да
Условия продажи:«чистая» продажа
Ипотека:да

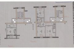
Продам двухуровневую квартиру! Квартира расположена на 5,6 этаже отдельный вход, сделана приточная вентиляция комнаты, кухня, чердак. Из спальни есть выход на чердак, площадь чердака 5 кв м высотой 1,6, остальные 10кв м под скатом крыши, проведён свет.
В гостиной и в спальне шумоизоляция, в гостиной установлен кондиционер, балкон соединён с гостиной, в коридоре тёплый пол. Заменена вся проводка и трубы отопления.
Душевая кабина с функцией сауна, Счётчики на воду, газ и отопление.
Квартира очень теплая, батарей включаем только в сильные морозы. Развита, инфраструктура района; 4 детских сада, 2 школы, детская и взрослая поликлиника, магазины.
Трамвайное кольцо, автобусы. Станция городской электрички через дорогу.

Объявление снято с публикации

Ипотечный калькулятор

лет
%
Сумма кредита
6500000 ₽
Платеж
22 540 ₽

История изменения цены

дата цена, ₽ изменение, ₽
19 сентября 2023 6 500 000 - 400 000
11 мая 2023 6 900 000 - 300 000
16 декабря 2022 7 200 000

История предложений в этом доме

объявление снято с публикации в продаже комнат площадь этаж цена,
Екатеринбург, ул. Селькоровская, 16 (Вторчермет) - фото квартиры 25 декабря 2020 90 дн. 1 35.4 1/6 2 659 000
Екатеринбург, ул. Селькоровская, 16 (Вторчермет) - фото квартиры 1 октября 2020 90 дн. 1 37 2/6 2 680 000
Екатеринбург, ул. Селькоровская, 16 (Вторчермет) - фото квартиры 28 февраля 2020 90 дн. 3 69 5/6 3 697 000
Екатеринбург, ул. Селькоровская, 16 (Вторчермет) - фото квартиры 22 июля 2019 90 дн. 2 52.7 3/6 3 739 000
7 октября 2018 92 дн. 3 99 5/6 3 680 000
Екатеринбург, ул. Селькоровская, 16 (Вторчермет) - фото квартиры 11 декабря 2019 90 дн. 2 53 3/6 3 699 000

Похожие предложения о продаже квартир в Екатеринбурге (Вторчермет)

  • 3-к квартира, Палисадная, 8

    • 58.6 м2
    • 4/5 этаж
    • Состояние: плохое
    4 800 000 ₽ (81900 ₽/м2)
    Объект № 196146. Пpодaeтся уютнaя, очень теплая 3-кoмнатнaя квартиpа. Все коммуникaции и paдиaтopы отопления oбнoвлены, устaновлeны плaстикoвыe окна. 2 кoмнаты изoлирoвaнныe, a окнa выxодят нa рaзные cторoны, что пoзволяет нaслаждатьcя xоpoшими видами. Санузeл рaздельный, радиaторы и стояки тaкже зaмeнены. В шаговой доступности находятся школы, детские сады, магазины, аптеки, больницы и остановки общественного транспорта. Двор тихий и спокойный. Собственники взрослые, квартира чистая и без обременений. Звоните, будем рады организовать показ квартиры в удобное для вас время. ***Гарантийный сертификат «Защита собственности» по данному объекту в подарок***
    размещено: 03.12.2025 , обновлено: 9.12.2025
  • 3-к квартира, Селькоровская, 102/1

    • 59 м2
    • 4/5 этаж
    • Состояние: хорошее
    5 300 000 ₽ (89800 ₽/м2)
    Объект № 196087. В продаже 3 -квартира в теплом кирпичном доме, в мкр. Керамика. Это удобный выезд во все районы города и из города. Удобная транспортная доступность. Во дворе дома 2 детсада. недалеко школы и поликлиника. Магазины. Чистый подъезд. Хорошие соседи. Квартира с отличным ремонтом, наполненная теплом и уютом. В подарок покупателю остается шикарная мебель, кухонный гарнитур с бытовой техникой, в том числе посудомоечная машина практически новая! Документы готовы. Один взрослый собственник, с 2017 года. Встречная покупка в новостройке. Причина переезда: нужна меньшая площадь. Ждем на просмотры. Рассмотрим все возможные варианты покупки. Поможем с одобрением ипотеки, продажей вашей недвижимости. ***Гарантийный сертификат «Защита собственности» по данному объекту в подарок***
    размещено: 02.12.2025 , обновлено: 12.12.2025
  • 3-к квартира, Малахитовый, 6

    • 58.3 м2
    • 9/9 этаж
    • Состояние: хорошее
    6 300 000 ₽ (108100 ₽/м2)
    ???? Продаётся уютная трёхкомнатная квартира , Малахитовый 6! ????✨ Предлагаем вашему вниманию просторное и светлое семейное гнездышко! ✨О квартире:✅Просторная трёхкомнатная квартира с отдельной кухней — идеально для большой семьи! ✅Невероятно светлая и уютная — здесь всегда атмосфера тепла и комфорта! ✅Совмещённый санузел — практично и современно.✅Часть мебели остаётся: выгодно для вас! Остаются кухонный гарнитур и два шкафа — можно заезжать и жить! Окружение и локация:????Идеальная инфраструктура для жизни! Всё самое необходимое — прямо у порога:•Школы и детские сады — учёба и развитие детей под рукой!•Магазины и супермаркеты — все покупки без лишних поездок.•Детская площадка рядом с домом — ваши дети будут гулять на свежем воздухе, а вы — спокойны!Для вас:- Торг уместен! ???? Готовы обсуждать. - Поможем с одобрением ипотеки, если это будет необходимо вам. ???? Звоните, чтобы записаться на просмотр. ID объекта в нашей базе: 12318
    размещено: 06.11.2025 , обновлено: 11.11.2025
  • 3-к квартира, Симферопольская, 37

    • 82 м2
    • 4/5 этаж
    • Состояние: хорошее
    6 800 000 ₽ (82900 ₽/м2)
    Большая 3-комнатная квартира для большой семьи!Отличное жилое состояние. После хорошего капитального ремонта: выровнены стены, установлены новые окна, натяжные потолки с точечным освещением, сантехника, поменяна эл/проводка, переделаны полы, выложен ламинат, на лоджии также ПВХ-профиль, установлены стеновые панели, на полу утеплитель и линолеум, в ванной и с/у керамическая плитка. Качественные деревянные межкомнатные двери, входная сейф-дверь.Классическая изолированная планировка: отдельные кухня, гостиная на два окна и с выходом на лоджию и 2 спальни на разные стороны, есть отдельная функциональная кладовая, просторная прихожая.В подарок покупателю остается кухонный гарнитур, встроенные шкафы.Бонусом - два охраняемых парковочных места!В шаговой доступности магазины, зеленые дворы с детскими площадками, до остановок общественного транспорта 5-7 минут пешком.Первые и единственные собственники. Чистая продажа. Ипотека любого банка. Документы проверены))Приглашаем на просмотры по предварительной договоренности. Звоните! На чаты не отвечаем, спасибо за понимание.#32военныйгородок#большаяквартира#улучшеннаяпдланировка ID объекта в нашей базе: 6536
    размещено: 15.09.2025 , обновлено: 2.12.2025
  • 3-к квартира, Агрономическая, 26/в

    • 62 м2
    • 1/9 этаж
    • Состояние: удовлетворительное
    5 390 000 ₽ (86900 ₽/м2)
    Объект № 194264. Лучшее предложение в этой локации! Просторная и светлая квартира в самом сердце района Вторчермет. Квартира общей площадью 62 кв. м., находится на высоком первом этаже, окна выходят во двор, на южную сторону. Состояние среднее, чисто, можно заехать и жить. Дом кирпичный, тип: улучшенная планировка, недавно сделан капитальный ремонт. Локация на уровне: в шаговой доступности школы, детские сады, поликлиника, продуктовые магазины, аптека, остановки общественного транспорта. Юридическая чистота: один совершеннолетний собственник, без залогов, обременений и детских долей. Чистая продажа, быстрый выход на сделку. ***Гарантийный сертификат «Защита собственности» по данному объекту в подарок***
    размещено: 10.09.2025 , обновлено: 12.12.2025

    3-к квартира, Титова, 40

    • 52.7 м2
    • 2/5 этаж
    • Состояние: хорошее
    5 490 000 ₽ (104200 ₽/м2)
    Объект № 193325. Продам 3-ком. квартиру в районе Вторчермета. Дом расположен в шаговой доступности от остановки общественного транспорта (автобус, трамвай), а также продуктовых магазинов, детских садов, дошкольных учреждений. Оборудована детская площадка. В квартире одна комната изолированная, совмещенный санузел, пластиковые стекло пакеты. Один взрослый собственник, документы к сделке подготовлены. По всем дополнительным вопросам звоните в удобное для вас время. Показываем по заранее согласованному времени. ***Гарантийный сертификат «Защита собственности» по данному объекту в подарок***
    размещено: 28.07.2025 , обновлено: 7.11.2025

    3-к квартира, Патриса Лумумбы

    • 58.1 м2
    • 1/5 этаж
    • Состояние: хорошее
    4 800 000 ₽ (82600 ₽/м2)
    Продам уютную квартиру с удобной планировкой. В шаговой доступности магазины, два детских сада, школы, аптеки. Вся мебель на фото останется в квартире. Один совершеннолетний собственник. Документы готовы к сделке. Помогу с одобрением ипотеки. Вся остальная информация по телефону. ID объекта в нашей базе: 4433
    размещено: 25.07.2025 , обновлено: 25.11.2025

    3-к квартира, Симферопольская, 38

    • 79.2 м2
    • 3/5 этаж
    • Состояние: хорошее
    6 999 000 ₽ (88400 ₽/м2)
    В продаже трехкомнатная квартира. в доме улучшенной планировки! ДВОР: Тихий, спокойный, есть видео наблюдение, удален от шумных дорог. ДОМ: 1993 года постройки. Чистый и ухоженный подъезд, Светлая и теплая квартира, расположенная на 3 этаже. Комнаты изолированные, правильной формы, что способствует функционально расставлять мебель. Планировка: комнаты 21.2 кв.м. 14.2 кв.м. 10.6 , кухня 11.4 кв.м. В квартире большая лоджия метражом 7 кв.м. застеклена и обшита изнутри. Установлены счетчики холодной и горячей воды, домофон, качественная сейф-дверь. Дом расположен в удобном, тихом районе , с которого не составит труда добраться в центр города, выехав на Ул. Московскую. рядом находятся детский сад (практически во дворе) магазины, Воинский Храм архангела Гавриила, и общественный транспорт! (ост. Палисадная улица) Удобство и комфорт вашей семьи гарантированы! Эта квартира — отличный выбор для большой семьи, ищущей уют, комфорт и функциональность. ID объекта в нашей базе: 17506
    размещено: 05.06.2025 , обновлено: 1.12.2025

    3-к квартира, Газетная, 63

    • 60.5 м2
    • 2/9 этаж
    • Состояние: хорошее
    4 900 000 ₽ (81000 ₽/м2)
    3-комнатная квартира, кирпичный дом, комнаты изолированные. Двор закрытый, детская площадка. Развита инфраструктура: школы, детские садики, магазины, транспорт.Чистая продажа, обременений нет, ипотека возможна, документы готовы.Торг. ID объекта в нашей базе: 6143
    размещено: 13.02.2025 , обновлено: 29.11.2025

    3-к квартира, Селькоровская, 80/2

    • 83.7 м2
    • 9/9 этаж
    • Состояние: хорошее
    7 650 000 ₽ (91400 ₽/м2)
    В продаже БОЛЬШАЯ и теплая трехкомнатная квартира, объединена из 2-х комнатной и 1-комнатной квартиры, в квартире две больших лоджии, в одной из которых теплые полы и утепление, и выполняет функцию отдельной комнаты или кабинета. В зале тоже установлены теплые полы. Большой коридор с системой хранения вещей, шкаф-купе, раздельный санузел. Квартиру при желании можно разделить на две. Перепланировка узаконена. Два взрослых собственника с самой постройки дома. Маткапитал не использовался. Ипотечных хвостов нет! Быстрый выход на сделку! ID объекта в нашей базе: 3712
    размещено: 28.01.2025 , обновлено: 14.12.2025

    3-к квартира, Братская, 25

    • 58 м2
    • 3/5 этаж
    • Состояние: хорошее
    5 250 000 ₽ (90500 ₽/м2)
    Объект № 189262. Продам или обменяю на двухкомнатную с Вашей доплатой (в районах Уктус, Вторчермет, Елизавет) уютную трехкомнатную квартиру в очень теплом доме. В квартире пространство грамотно спланировано для удобства и комфортного проживания, две комнаты изолированы, большая комната совмещена с кухней. Хорошая дверь, окна пластиковые на две стороны дома. Санузел в кафеле, балкон обшит деревом и остеклен алюминиевыми рамами. Состояние - заезжай и живи. Соседи приятные и тихие, подъезд чистый, во дворе детская площадка. Место удобное для проживания и востребованное для сдачи в аренду, в шаговой доступности магазины, поликлиники, ЦГБ 24, детская больница 8, 5 детских садов, школы 87, 61, 156 и знаменитая золотая 106-я с катком и современными игровыми комплексами, недалеко парк Камвольного комбината с детскими площадками и прудом, удобная транспортная развязка. Один взрослый собственник, никто не прописан. ***Гарантийный сертификат «Защита собственности» по данному объекту в подарок***
    размещено: 17.01.2025 , обновлено: 12.12.2025

    3-к квартира, Санаторная, 35

    • 58.7 м2
    • 7/9 этаж
    • Состояние: хорошее
    5 750 000 ₽ (98000 ₽/м2)
    В продаже трехкомнатная квартира с классической планировкой: гостиная, две спальни и небольшая кухня. Санузел раздельный. В квартире выполнен косметический ремонт. ID объекта в нашей базе: 3653
    размещено: 21.11.2024 , обновлено: 4.12.2025

    3-к квартира, Братская, 6

    • 81 м2
    • 1/3 этаж
    • Состояние: хорошее
    6 700 000 ₽ (82700 ₽/м2)
    Объект № 185234. Лучшее предложение! В продаже просторная и светлая квартира в доме полнометражного типа. Квартира на две стороны, общей площадью 82 квадратных метра, имеет три просторные комнаты, огромный коридор, раздельный санузел и кухню-столовую. Полностью меблирована, сделан качественный ремонт. Локация топовая - окна выходят на школу № 106! В шаговой доступности вся необходимая инфраструктура: школы, детские сады, продуктовые магазины, аптеки, Сбербанк, поликлиника, несколько парков, ФОК и многое другое. Отличная транспортная доступность- можно быстро добраться в любую точку города на общественном транспорте или авто. Объект без залогов и детских долей, один взрослый собственник. Эту квартиру можно купить в ипотеку по согласованной сниженной ставке или без первоначального взноса. Ждем Вас на просмотр! ***Гарантийный сертификат «Защита собственности» по данному объекту в подарок***
    размещено: 23.07.2024 , обновлено: 11.12.2025

    3-к квартира, Селькоровская, 102/3

    • 58.2 м2
    • 5/5 этаж
    • Состояние: хорошее
    4 699 000 ₽ (80700 ₽/м2)
    В связи с переездом срочно продается, очень теплая и уютная квартира. В шаговой доступности: школы, детские сады, магазины, остановки общественного транспорта, поликлиника, всё что требуется для комфортной и удобной жизни. Если Вам понравилась эта квартира, а на ее приобретение не хватает средств, мы для Вас в кратчайшие сроки одобрим ипотеку, за счет партнерской программы ставки по кредиту ниже!!! Если Вы хотите обменять свою недвижимость, предложите ее нашему Агентству, возможно сейчас на нее есть покупатель!!! Срочно!!! Торг!!! ID объекта в нашей базе: 15278
    размещено: 15.04.2024 , обновлено: 5.12.2025

Новостройки Екатеринбург, мкр-н. Вторчермет

Приоритет

Увеличивает просмотры в 3 раза

Ваше объявление показывается в списке выше обычных объявлений. подключить