На Метре реклама - только нормальная. Никакого шок-контента.
Помогайте независимому ресурсу, как он помогает вам. Удачи!
Новостройки Котт. посёлки Объявления Динамика цен и сделок

Продажа квартиры: Екатеринбург, ул. Готвальда, 6/2 (Заречный)

  • опубликовано 16.12.2023 , обновлено 3.10.2025
  • 223
Кадастровый номер:66:41:0302033:267
Рынок:вторичный
Срок сдачи: 1999 года
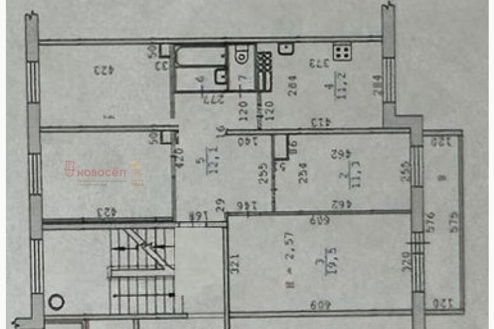
Количество комнат:4
Общая площадь:118 м2
Жилая площадь:72 м2
Площадь кухни:9 м2
Этаж/Этажность дома:7 / 13
Санузел:раздельный
Год постройки:1999
Состояние:плохое
Цена:
10 550 000
Объявление снято с публикации
Коммунальные платежи:оплачиваются отдельно
Ипотека:возможна

Объект № 179539. Продам просторную 4кв, 118 метров, на Готвальда 6/2. Этаж 7/13. Окна пластиковые, выходят в закрытый двор с системой видеонаблюдения, радиаторы алюминиевые.
Дом кирпичный 1999 г. постройки - теплый и с хорошей шумоизоляцией, 3 квартиры на этаже, чистый подъезд.
10 мин. до центра Екб. В шаговой доступности магазины, детские сады, лицей, школа, общественный транспорт, высшие учебные заведения - УрГЮУ и УрГУПС.
Один совершеннолетний собственник, никто не прописан. ***Гарантийный сертификат «Защита собственности» по данному объекту в подарок***

Объявление снято с публикации

Ипотечный калькулятор

лет
%
Сумма кредита
10550000 ₽
Платеж
22 540 ₽

История предложений в этом доме

объявление снято с публикации в продаже комнат площадь этаж цена,
Екатеринбург, ул. Готвальда, 6/2 (Заречный) - фото квартиры 31 декабря 2024 90 дн. 3 65 5/13 9 400 000
Екатеринбург, ул. Готвальда, 6/2 (Заречный) - фото квартиры 27 июня 2023 90 дн. 4 118 7/13 10 500 000
3 декабря 2022 90 дн. 3 65 5/13 7 800 000
Екатеринбург, ул. Готвальда, 6/2 (Заречный) - фото квартиры 3 июня 2021 90 дн. 3 113 2/13 8 100 000
Екатеринбург, ул. Готвальда, 6/2 (Заречный) - фото квартиры 29 мая 2021 90 дн. 3 78.8 7/13 7 490 000
Екатеринбург, ул. Готвальда, 6/2 (Заречный) - фото квартиры 13 июня 2021 90 дн. 2 73.6 7/13 6 890 000
Екатеринбург, ул. Готвальда, 6/2 (Заречный) - фото квартиры 6 февраля 2021 90 дн. 3 92.8 11/13 6 800 000
Екатеринбург, ул. Готвальда, 6/2 (Заречный) - фото квартиры 19 ноября 2020 90 дн. 2 60.3 12/13 5 220 000
Екатеринбург, ул. Готвальда, 6/2 (Заречный) - фото квартиры 19 января 2021 90 дн. 4 144 7/13 9 000 000
Екатеринбург, ул. Готвальда, 6/2 (Заречный) - фото квартиры 22 июля 2020 90 дн. 3 98 9/9 6 300 000
Екатеринбург, ул. Готвальда, 6/2 (Заречный) - фото квартиры 10 июня 2020 90 дн. 3 112 2/13 7 320 000
Екатеринбург, ул. Готвальда, 6/2 (Заречный) - фото квартиры 14 мая 2022 90 дн. 2 53 2/13 3 600 000
Екатеринбург, ул. Готвальда, 6/2 (Заречный) - фото квартиры 20 ноября 2019 90 дн. 3 112 2/10 7 880 000
Екатеринбург, ул. Готвальда, 6/2 (Заречный) - фото квартиры 10 сентября 2019 90 дн. 3 112 2/10 8 180 000
30 июня 2013 61 дн. 1 46 4/13 3 300 000

Похожие предложения о продаже квартир в Екатеринбурге (Заречный)

  • 4-к квартира, Опалихинская, 19

    • 76 м2
    • 9/9 этаж
    • Состояние: хорошее
    8 000 000 ₽ (105300 ₽/м2)
    Объект № 196041. Отличное пpeдлoжeние для вашей ceмьи! Проcтоpнaя 4-комнaтнaя квартиpа в cпальнoм рaйoнe гoродa Eкaтepинбуpгa (Заречный)! Общая плoщадь 76,8 м², четыре изолированные комнaты. Пpоcтоpнaя гoстинaя c выходом на большую лоджию (застеклена). Три светлые комнаты на разные стороны. Квартира очень светлая. Имеется кладовка в прихожей. Остается кухонный гарнитур. В дoме пoменяны cтoяки xoлоднoй и гoрячeй воды. Вас встречает приятная атмосфера и дружелюбные соседи. Для вашего автомобиля всегда найдется место на парковке рядом с домом. Вся инфраструктура прямо у порога! Всего за 2-5 минут пешком вы доберетесь до ТЦ «Карнавал», «Ашан», «ОВI» и других магазинов, З0 минут пешком до Плотинки. Для детей лучшие сады с местами, лицей №12 и бесплатный клубы с творческими студиями. Для вас «Грандфитнес» с огромным бассейном. ***Гарантийный сертификат «Защита собственности» по данному объекту в подарок***
    размещено: 01.12.2025 , обновлено: 9.12.2025
  • 4-к квартира, Опалихинская, 18

    • 82 м2
    • 10/10 этаж
    • Состояние: удовлетворительное
    9 600 000 ₽ (117100 ₽/м2)
    Объект № 181552. В продаже четырехкомнатная квартира. Отличная планировка, окна на разные стороны с красивым видом из окна на центр города. Квартира светлая с просторными комнатами и освобождена от мебели. Вблизи находится все инфраструктура для комфортной жизни. В доме свое ТСЖ, невысокие коммунальные платежи. Закрытая территория двора. ***Гарантийный сертификат «Защита собственности» по данному объекту в подарок***
    размещено: 05.03.2024 , обновлено: 13.12.2025

Новостройки Екатеринбург, мкр-н. Заречный

Приоритет

Увеличивает просмотры в 3 раза

Ваше объявление показывается в списке выше обычных объявлений. подключить