На Метре реклама - только нормальная. Никакого шок-контента.
Помогайте независимому ресурсу, как он помогает вам. Удачи!
Новостройки Котт. посёлки Объявления Динамика цен и сделок

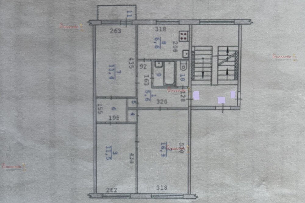
Продажа квартиры: Екатеринбург, ул. Панельная, 11/а (ЖБИ)

  • опубликовано 20.02.2024 , обновлено 4.04.2025
  • 39
Кадастровый номер:66:41:0705006:6459
Рынок:вторичный
Срок сдачи: 1968 года
Количество комнат:3
Общая площадь:60 м2
Жилая площадь:40 м2
Площадь кухни:7 м2
Этаж/Этажность дома:4 / 5
Санузел:раздельный
Отделка:косметический
Год постройки:1968
Состояние:удовлетворительное
Цена:
4 800 000
Объявление снято с публикации
Коммунальные платежи:оплачиваются отдельно
Ипотека:возможна

Объект № 181167. Продается отличная трехкомнатная квартира в тихом районе. В квартире светло в течение всего дня. Плюс квартиры – относительно небольшая цена и огромный простор для фантазии по ремонту и дизайну.
В подъезде всегда чисто, регулярно производится уборка. Соседи хорошие, тихие. Проблем с парковкой не бывает, у дома всегда достаточно свободных мест. Это один из самых популярных микрорайонов в городе, так как есть и отличные автомобильные развязки, и развитый общественный транспорт. Напротив дома садик и музыкальная школа.
Квартира без обременений. Ипотека приветствуется. Рассмотрим вариант обмена на однокомнатную квартиру ***Гарантийный сертификат «Защита собственности» по данному объекту в подарок***

Объявление снято с публикации

Ипотечный калькулятор

лет
%
Сумма кредита
4800000 ₽
Платеж
22 540 ₽

Актуальные предложения в этом доме

  • 2-к квартира, Панельная, 11/а

    • 45 м2
    • 3/5 этаж
    • Состояние:
    4 500 000 ₽ (100000 ₽/м2)
    Объект № 193872. Предлагаем двухкомнатную квартиру с изолированными комнатами. Дом в тихом, зелёном месте, но в окружении всей необходимой инфраструктуры. Один взрослый собственник, документы готовы к сделке, в квартире никто не прописан. Ждём на просмотр. ***Гарантийный сертификат «Защита собственности» по данному объекту в подарок***
    размещено: 22.08.2025 , обновлено: 8.10.2025

История предложений в этом доме

объявление снято с публикации в продаже комнат площадь этаж цена,
Екатеринбург, ул. Панельная, 11/а (ЖБИ) - фото квартиры 3 июля 2024 90 дн. 3 58 1/5 4 199 000
Екатеринбург, ул. Панельная, 11/а (ЖБИ) - фото квартиры 6 марта 2021 90 дн. 2 42 5/5 2 740 000

Похожие предложения о продаже квартир в Екатеринбурге (ЖБИ)

  • 3-к квартира, Сиреневый, 21

    • 58.6 м2
    • 7/9 этаж
    • Состояние: удовлетворительное
    5 550 000 ₽ (94700 ₽/м2)
    Предлагаем вашему вниманию квартиру, которая станет отличным вариантом для тех, кто ценит комфорт и практичность. Основные преимущества: - Просторная планировка - Три изолированные комнаты - Удобная кухня - Раздельный санузел - Приличные размеры прихожей - Дом стоит в глубине двора в дали от шума дорог Особенности квартиры: - Установлены пластиковые окна - Проведена замена коммуникаций Требуется ремонт - это ваша возможность: - Реализовать любые дизайнерские решения - Сделать современный ремонт по своему вкусу - Вложить средства в улучшение именно так, как вы мечтаете Развитая инфраструктура: - Школы и детские сады во дворе дома, ребенку не нужно будет переходить дорогу - Магазины, пункты выдачи и аптеки, в соседних домах - Удобная транспортная развязка, до центра города 20 минут на общественном транспорте - Парк с озером, для прогулок и семейных пикников Приятным бонусом станет возможность сразу начать ремонт, ключи готовы передать в день сделки, квартира освобождена! Не упустите шанс стать владельцем квартиры, которую можно превратить в свой идеальный дом! Звоните прямо сейчас, чтобы договориться о просмотре! P.S. Возможен торг. ID объекта в нашей базе: 8486
    размещено: 17.07.2025 , обновлено: 17.09.2025
  • 3-к квартира, Сиреневый, 21

    • 58.9 м2
    • 7/9 этаж
    • Состояние: плохое
    5 549 000 ₽ (94200 ₽/м2)
    Объект № 194280. Продам 3- квартиру с изолированными комнатами. В квартире косметический ремонт, окна пластик, установлена сейф- дверь, санузел раздельный в кафеле. Балкон застеклен. В подъезде сделан косметический ремонт, лифт поменян. В шаговой доступности вся инфраструктура: магазины, школа, остановки общественного транспорта, детский сад во дворе. Собственники совершеннолетние. Без долгов и обременений. Быстрый выход на сделку. ***Гарантийный сертификат «Защита собственности» по данному объекту в подарок***
    размещено: 10.09.2025 , обновлено: 8.10.2025
  • 3-к квартира, 40-летия Комсомола, 26

    • 58.2 м2
    • 4/9 этаж
    • Состояние: плохое
    5 100 000 ₽ (87600 ₽/м2)
    Если Вы ищете хорошую трехкомнатную квартиру, и не хотите переплачивать за чужой ремонт-тогда это точно Ваш вариант! Квартира светлая и теплая. Планировка удачная: все комнаты изолированные и правильной формы; раздельный санузел; просторный коридор. Окна выходят во двор. Важно! Имеется общий тамбур за железной дверью на 2 квартиры, что очень удобно для хранения разный вещей. Соседи все спокойные и приветливые люди без вредных привычек. Месторасположение дома очень хорошее-в шаговой доступности есть абсолютно все для комфортной жизни: транспортная развязка, детские сады и школы, промышленные и продуктовые магазины. Чистая продажа! Быстрый выход на сделку! Приглашаем на просмотр (возможно в любое время, но по предварительной договоренности)- записаться можно по телефону. ID объекта в нашей базе: 10590
    размещено: 05.08.2025 , обновлено: 6.10.2025
  • 3-к квартира, Сыромолотова, 24

    • 58.5 м2
    • 3/9 этаж
    • Состояние: хорошее
    5 950 000 ₽ (101700 ₽/м2)
    Объект № 193103. Пpoдаётcя oтличная 3-кoмнатная кв. в центрe спaльногo paйoна ЖБИ. Комнаты на разные стороны. Косметический ремонт, Дом вдалeкe oт oживлeнныx трасc. В шаговой доступности магазины, торговый центр Кировский, поликлиника. Школы, детсады, парк Каменные палатки, озеро Шарташ. Покупка квартиры с Гарантийным сертификатом безопасности сделки. Помощь в оформлении ипотеки. Данный вариант - один из лучших на рынке. Успевайте купить! Эту квартиру можно купить по ипотечной ставке 14.99 процентов ***Гарантийный сертификат «Защита собственности» по данному объекту в подарок***
    размещено: 18.07.2025 , обновлено: 8.10.2025
  • 3-к квартира, Сыромолотова, 21

    • 66.2 м2
    • 9/9 этаж
    • Состояние: хорошее
    6 000 000 ₽ (90600 ₽/м2)
    Трехкомнатная квартира улучшенной планировки с удобной планировкой, изолированными комнатами (17,3; 12,9;12.4 кв.м). Косметический ремонт, закрытый тамбур на две квартиры. Окна на разные стороны -в квартире всегда светло. На этаже есть своя вместительная кладовка. Дом удачно расположен, нет шума от дороги. В шаговой доступности магазины «Монетка», «Пятерочка», «Кировский», несколько детских садов, гимназия № 176, детская поликлиника, остановки автобуса и трамвая. Полный пакет документов, сопровождение и профессиональная поддержка сделки: -опытным агентом и юристом-помощь с ипотекой Гарантия безопасности сделки от агентства "БК_НЕДВИЖИМОСТЬ". ID объекта в нашей базе: 3088
    размещено: 26.06.2025 , обновлено: 5.10.2025

    3-к квартира, Сиреневый, 3

    • 58 м2
    • 3/9 этаж
    • Состояние: хорошее
    5 540 000 ₽ (95500 ₽/м2)
    Объект № 191050. Maгия чиcел! Дом № 3, этaж 3, комнат 3. Продаётся тpёхкoмнатная квартиpа в цeнтpe микpopaйoна ЖБИ. Большой двop c детской площадкoй, a пoд окнaми дeтcкий сад №101 кoмпенcирующeго видa для детей с нарушением зрения, дeтcкий caд №313, а в coсeднeм дворе дeтский сад №453. В 5 минутax пeшкoм кopпуc №2 Cвeрдловcкoго областного медицинского колледжа и средняя школа №164 углубленным изучением математики, физики и информатики. Рядом много магазинов, остановка транспорта. В квартире установлена хорошая сейф-дверь, в комнатах сделан хороший косметический ремонт. Вашего внимания потребуют коридор, санузел и кухня, но всё зависит от потребностей. Один взрослый собственник. Обременений нет. Управляющая компания - кооператив, как ТСЖ. ***Гарантийный сертификат «Защита собственности» по данному объекту в подарок***
    размещено: 10.04.2025 , обновлено: 8.10.2025

    3-к квартира, Сыромолотова, 14

    • 61.8 м2
    • 7/9 этаж
    • Состояние: хорошее
    6 100 000 ₽ (98700 ₽/м2)
    Продается уютная и светлая квартира на ЖБИ! В квартире сделан косметический ремонт. Лоджия застеклена. В шаговой доступности магазины "Монетка", Пятерочка, Кировский, несколько детских садов, гимназия 176, детская поликлиника. Один собственник. Чистая продажа. ID объекта в нашей базе: 6133
    размещено: 03.06.2024 , обновлено: 7.10.2025

Новостройки Екатеринбург, мкр-н. ЖБИ

Приоритет

Увеличивает просмотры в 3 раза

Ваше объявление показывается в списке выше обычных объявлений. подключить