На Метре реклама - только нормальная. Никакого шок-контента.
Помогайте независимому ресурсу, как он помогает вам. Удачи!
Новостройки Котт. посёлки Объявления Динамика цен и сделок

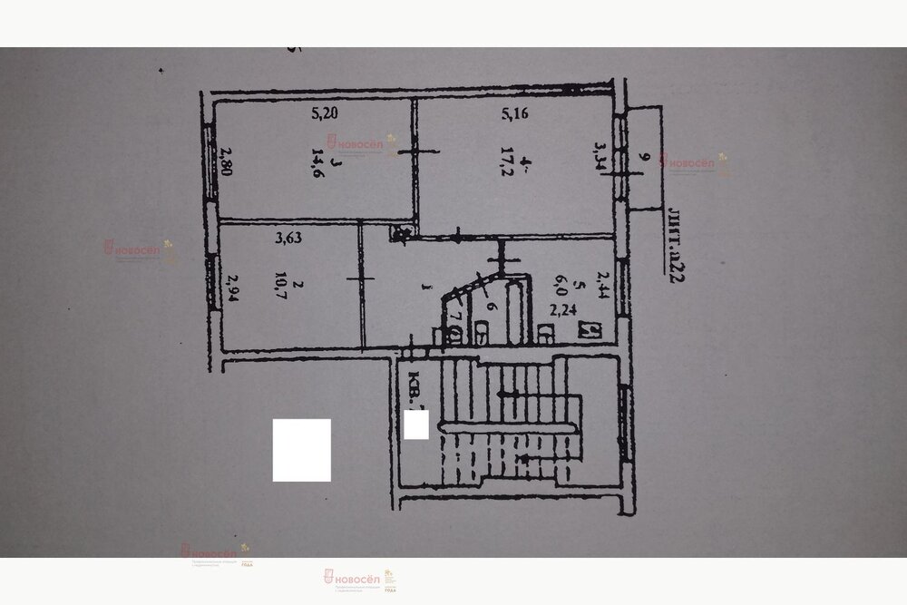
Продажа квартиры: п. Новоуткинск, ул. Партизан, 68 (городской округ Первоуральск)

  • опубликовано 2.07.2024 , обновлено 23.09.2025
  • 19
Рынок:вторичный
Количество комнат:3
Общая площадь:60 м2
Жилая площадь:42 м2
Площадь кухни:6 м2
Этаж/Этажность дома:5 / 5
Санузел:раздельный
Отделка:евроремонт
Состояние:хорошее
Цена:
2 430 000
Объявление снято с публикации
Коммунальные платежи:оплачиваются отдельно
Условия продажи:«чистая» продажа
Ипотека:возможна

Объект № 184790. Продам очень тёплую квартиру с отличным расположением дома в районе с развитой инфраструктурой. В квартире пластиковые окна с видом на разные стороны, натяжные потолки, на полу линолеум, сейф-дверь. Балкон остеклён. Установлен счётчик на газ, воду, электричество.
Остаются вся мебель и техника- всё в рабочем состоянии (холодильник, стиральная машина, телевизор, микроволновка, газ.плита, водонагреватель).
Квартира юридически чистая, никто не зарегистрирован, долгов нет. В реальности квартира лучше, чем на фото. Приглашаем на просмотр, Вам понравится! ***Гарантийный сертификат «Защита собственности» по данному объекту в подарок***

Объявление снято с публикации

Ипотечный калькулятор

лет
%
Сумма кредита
2430000 ₽
Платеж
22 540 ₽

Актуальные предложения в этом доме

  • 1-к квартира, Партизан, 68

    • 33 м2
    • 1/5 этаж
    • Состояние:
    1 150 000 ₽ (34800 ₽/м2)
    РЕАЛЬНОМУ ПОКУПАТЕЛЮ ЗА НАЛИЧНЫЙ РАСЧЕТ - ТОРГ! В продаже отличная однокомнатная квартира, общей площадью - 33,0 кв.м., комната - 19,0кв.м и кухня - 7,0кв.м,на 1-ом этаже 5 этажного панельного дома. Этаж в квартире хоть и первый, но достаточно высокий. В доме проживают дружелюбные и приветливые соседи. На площадке в подьезде, по 3(три)квартиры. Подъезд на домофоне, очень чистенький. Квартира в жилом состоянии,уютненькая,чистенькая,много света и очень тёплая. Заменены трубы,установлены фильтры очистки воды, радиаторы по всей квартире. Расположение дома очень удобное, в глубине жилой застройки, в отдалении от шумных проезжих улиц, в тихом дворе. Дворовая территория озеленена и облагорожена, всегда есть парковка для авто. Оборудованная спортивная площадка, игровая детская площадка у дома и за домом, с зоной отдыха для взрослых. Очень ликвидный объект недвижимости, отлично подходящий для комфортной жизни как для молодой пары,так и для возрастной категории граждан, которые ценят чистый воздух и экологию. Место дома очень живое, центральная часть п. Новоуткинск. Всё что нужно современному жителю, находится в шаговой доступности : общеобразовательная школа №26,детский сад №30,больница,поликлиника, аптеки:"Радуга","Фармленд",аптека№13,продуктовые и промышленные магазины, магазин "Наталья",крупные сетевые супермаркеты:"Пятёрочка", "Магнит", "Красное & Белое", остановки общественного транспорта в 2-х минутах ходьбы от дома,автобусы ездят как внутри посёлка, так и до города Первоуральск и до города Екатеринбург, и.т.д. Квартира имеет отличную локацию, удобная транспортная развязка во все направления. Квартира юридически чистая, детей в долях нет, без арестов, ограничений и обременений. Один взрослый собственник, не имеющий исполнительных производств, банкротом не является. Более подробную информацию по телефону. Показ квартиры возможен в удобное для вас время, по предварительной договоренности. Продажа по ипотеке - возможна! В СВЯЗИ С ТЕМ, ЧТО УХУДШИЛАСЬ ТЕЛЕФОННАЯ СВЯЗЬ И ВСЕМ КТО НЕ СМОГ ДО МНЯ ДОЗВОНИТЬСЯ, ПОЖАЛУЙСТА ПИШИТЕ В СМС СООБЩЕНИЯХ, Я ОБЯЗАТЕЛЬНО ВАМ ПЕРЕЗВОНЮ. ID объекта в нашей базе: 6611
    размещено: 10.09.2025 , обновлено: 17.11.2025

История предложений в этом доме

объявление снято с публикации в продаже комнат площадь этаж цена,
п. Новоуткинск, ул. Партизан, 68 (городской округ Первоуральск) - фото квартиры 6 сентября 2019 90 дн. 2 46 2/6 1 050 000

Приоритет

Увеличивает просмотры в 3 раза

Ваше объявление показывается в списке выше обычных объявлений. подключить