На Метре реклама - только нормальная. Никакого шок-контента.
Помогайте независимому ресурсу, как он помогает вам. Удачи!
Новостройки Котт. посёлки Объявления Динамика цен и сделок

Продажа квартиры: Екатеринбург, ул. Мельникова, 27 (ВИЗ)

  • опубликовано 14.10.2024 , обновлено 23.10.2025
  • 32
Рынок:вторичный
Срок сдачи: 2015 года
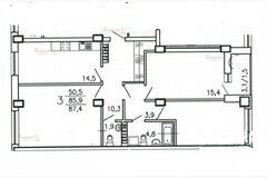
Количество комнат:3
Общая площадь:91 м2
Жилая площадь:33 м2
Площадь кухни:38.5 м2
Этаж/Этажность дома:9 / 25
Отделка:дизайнерский
Год постройки:2015
Мебель:есть мебель
Балкон/лоджия:лоджия
Состояние:идеальное
Цена:
23 800 000
Объявление снято с публикации
Коммунальные платежи:оплачиваются отдельно
Торг:торг
Ипотека:возможна

Продам шикарную светлую квартиру с дизайнерским ремонтом! Планировка: просторная кухня-гостинная 38,5 м.кв., спальня 15,7 м.кв с выходом на лоджию 5 м.кв., вторая спальня 17 м.кв., ванная комната 4,2 м.кв., гостевой санузел 1,35 м.кв., гардеробная 2,7 м.кв.Ремонт выполнен по дизайн проекту с использованием качественных материалов, итальянские керамогранит и обои, бытовая техника Gorenje, Bosh. В ванной комнате, в зоне кухни и коридоре теплый пол. Дом имеет закрытую территорию двора с детской площадкой, охрана, видеонаблюдение. Дом находится в районе с развитой инфраструктурой, до центра города 5-10 минут на автомобиле или 20 минут пешком! В доме есть: продуктовый магазин "Перекресток", химчистка, фитнесс центр, аптека, медицинский центр, кофейня, кулинария, винотека.Новому собственнику останется встроенная мебель и техника, за исключением холодильника. Один взрослый собственник, без долгов и обременений!
ID объекта в нашей базе: 1190

Объявление снято с публикации

Ипотечный калькулятор

лет
%
Сумма кредита
23800000 ₽
Платеж
22 540 ₽

История предложений в этом доме

объявление снято с публикации в продаже комнат площадь этаж цена,
Екатеринбург, ул. Мельникова, 27 (ВИЗ) - фото квартиры 21 мая 2025 90 дн. 3 85 3/25 16 900 000
Екатеринбург, ул. Мельникова, 27 (ВИЗ) - фото квартиры 6 апреля 2024 90 дн. 1 20.97 15/18 3 230 000
Екатеринбург, ул. Мельникова, 27 (ВИЗ) - фото квартиры 11 октября 2023 90 дн. 3 93 16/25 12 890 000
Екатеринбург, ул. Мельникова, 27 (ВИЗ) - фото квартиры 8 октября 2023 90 дн. 3 121.5 21/25 24 300 000
Екатеринбург, ул. Мельникова, 27 (ВИЗ) - фото квартиры 5 октября 2023 90 дн. 1 46 9/18 9 200 000
Екатеринбург, ул. Мельникова, 27 (ВИЗ) - фото квартиры 16 августа 2023 90 дн. 3 91 11/18 17 400 000
Екатеринбург, ул. Мельникова, 27 (ВИЗ) - фото квартиры 14 июня 2023 90 дн. 4 121.5 20/25 20 000 000
Екатеринбург, ул. Мельникова, 27 (ВИЗ) - фото квартиры 7 июня 2023 90 дн. 4 128 7/13 17 300 000
Екатеринбург, ул. Мельникова, 27 (ВИЗ) - фото квартиры 29 декабря 2022 90 дн. 1 30 16/26 5 690 000
Екатеринбург, ул. Мельникова, 27 (ВИЗ) - фото квартиры 10 ноября 2022 90 дн. 1 44.5 9/25 9 950 000
Екатеринбург, ул. Мельникова, 27 (ВИЗ) - фото квартиры 21 декабря 2022 90 дн. 2 63.8 4/26 10 150 000
Екатеринбург, ул. Мельникова, 27 (ВИЗ) - фото квартиры 11 марта 2023 90 дн. 2 66 6/12 9 500 000
Екатеринбург, ул. Мельникова, 27 (ВИЗ) - фото квартиры 15 сентября 2022 90 дн. 2 66 6/112 10 400 000
Екатеринбург, ул. Мельникова, 27 (ВИЗ) - фото квартиры 3 декабря 2022 90 дн. 3 120.3 11/25 23 300 000
Екатеринбург, ул. Мельникова, 27 (ВИЗ) - фото квартиры 20 декабря 2022 90 дн. 4 121.5 20/26 22 500 000
Екатеринбург, ул. Мельникова, 27 (ВИЗ) - фото квартиры 19 августа 2022 90 дн. 3 91 10/11 13 100 000
Екатеринбург, ул. Мельникова, 27 (ВИЗ) - фото квартиры 5 августа 2022 90 дн. 4 121.5 20/26 25 000 000
Екатеринбург, ул. Мельникова, 27 (ВИЗ) - фото квартиры 29 июля 2022 90 дн. 3 91 10/11 13 400 000
Екатеринбург, ул. Мельникова, 27 (ВИЗ) - фото квартиры 2 марта 2023 90 дн. 1 47 3/25 7 950 000
Екатеринбург, ул. Мельникова, 27 (ВИЗ) - фото квартиры 20 июля 2022 90 дн. 3 91 10/19 13 500 000
Екатеринбург, ул. Мельникова, 27 (ВИЗ) - фото квартиры 8 июля 2022 90 дн. 3 91 10/19 14 900 000
Екатеринбург, ул. Мельникова, 27 (ВИЗ) - фото квартиры 29 апреля 2022 90 дн. 1 45.5 5/18 6 270 000
Екатеринбург, ул. Мельникова, 27 (ВИЗ) - фото квартиры 26 апреля 2022 90 дн. 1 45.5 5/18 6 270 000
Екатеринбург, ул. Мельникова, 27 (ВИЗ) - фото квартиры 17 апреля 2022 90 дн. 1 45.5 5/18 7 500 000
Екатеринбург, ул. Мельникова, 27 (ВИЗ) - фото квартиры 13 февраля 2022 90 дн. 3 128.4 3/25 17 000 000
Екатеринбург, ул. Мельникова, 27 (ВИЗ) - фото квартиры 21 октября 2022 90 дн. 3 96 12/26 14 500 000
Екатеринбург, ул. Мельникова, 27 (ВИЗ) - фото квартиры 7 декабря 2021 90 дн. 3 128.4 3/25 20 800 000
Екатеринбург, ул. Мельникова, 27 (ВИЗ) - фото квартиры 16 ноября 2021 90 дн. 1 45.1 3/25 6 290 000
Екатеринбург, ул. Мельникова, 27 - фото квартиры 13 июля 2021 90 дн. 0 30 3/25 4 800 000
Екатеринбург, ул. Мельникова, 27 (ВИЗ) - фото квартиры 7 декабря 2021 90 дн. 3 96 6/25 14 950 000

Похожие предложения о продаже квартир в Екатеринбурге (ВИЗ)

  • 3-к квартира, Московская, 8

    • 94.4 м2
    • 4/4 этаж
    • Состояние: идеальное
    17 000 000 ₽ (180100 ₽/м2)
    Продается замечательная квартира в самом сердце города! Вам не придется ничего докупать или делать ремонт — просто заезжайте и живите. Главные плюсы: ✅ Идеальное расположение: центр, парк и лучшие школы в шаговой доступности. Кирпичный дом, всего 27 квартир ✅ Ремонт «под ключ»: все продумано до мелочей: теплые полы, паркет, кондиционеры Fujitsu, система освещения. Великолепная шумоизоляция в квартире. Высокие потолки. ✅ Вся техника остается: премиальные марки AEG, Liebherr, Gorenje; кухонный гарнитур, оборудованный доводчиками Blum, стол обеденный. Остается мебель: кровать, тумбы — в спальне, гардеробная система; диван и тумба под ТВ — в гостиной; стиральная машина и водонагреватель - в санузле. ✅ Тихий и безопасный двор: закрытая территория, с парковкой. Свой выход в парк. ✅ Чистые документы: один собственник, без обременений. Отличный вариант для комфортной жизни! Фото и планировку прилагаю. На все вопросы с радостью отвечу в сообщениях. Приглашаю на просмотр.
    размещено: 28.11.2025 , обновлено: 6.12.2025
  • 3-к квартира, Юмашева, 15

    • 96 м2
    • 2/25 этаж
    • Состояние: идеальное
    17 000 000 ₽ (177100 ₽/м2)
    СРОЧНО! ТОРГ!Предлагаю Вашему вниманию очень светлую, просторную 3-х комнатную квартиру в ЖК бизнес-класса "Адмирал" в одной из лучших локаций города, в 10 минутах езды от площади 1905 года. Тихий центр. В доме всего один подъезд , и 4 скоростных лифта, что никогда не заставит вас долго ждать. Застройщик Атомстройкомплекс. ✅Удачная планировка: просторный коридор 17,6 кв.м, 2 санузла (гостевой и основной ) 2 изолированные спальни 14 и 15 кв.м , одна из которых с гардеробом и лоджией с панорамным остеклением с видом на реку Исеть и шикарные закаты. Для вашего комфорта есть теплые полы на кухне, в холле и в санузлах. Еще один бонус, что имеется вместительная кладовая. Просторная кухня-гостиная 36 кв.м для большой, дружной семьи и встреч с друзьми, функциональное зонирование очень грамотно разделяет рабочую часть от гостиной. Наличие водонагревателя никогда не оставит вас без горячей воды.Квартира очень теплая. На всё установлены индивидуальные приборы учета.✅Кухонный гарнитур со всей встроенной техникой (духовой шкаф с со встроенной СВЧ, холодильник, посудомоечная машина, варочная поверхность, дополнительный морозильный шкаф, вытяжка) остаётся в подарок покупателям, также как и вся встроенная мебель в квартире.✅Прекрасная шумоизоляция, соседей вы не услышите, что обеспечит спокойный и тихий отдых.✅Ухоженная, закрытая территория дома с видеонаблюдением, консьерж, что обеспечит вашу и безопасность и комфорт. Оборудованные детская и спортивная площадки, футбольный корт. У дома есть парковка, где всегда найдется место для вашего автомобиля.✅Вся инфраструктура в шаговой доступности. Детские сады: № 272, 414, 199 «Созидание», 562.Школы: №1, 69, гимназия №2, центр развития«Дошколенок». ЦГБ № 2, ДГБ № 11. Футбольная школа. Синара-Центр, Дворец молодёжи с прекрасным, благоустроенным парком, фитнес центр с бассейном, находится в соседнем доме. Набережная реки Исеть с пешеходными зонами. В общем есть все, что нужно для комфортного проживания. Соседи очень дружелюбные и отзывчивые.✅Звоните, с удовольствием покажу в любое удобное для Вас время ID объекта в нашей базе: 6273
    размещено: 25.11.2025 , обновлено: 27.11.2025
  • 3-к квартира, Нагорная, 12

    • 100.9 м2
    • 3/16 этаж
    • Состояние: хорошее
    22 000 000 ₽ (218000 ₽/м2)
    Полный пакет документов, сопровождение и профессиональная поддержка сделки: -опытным агентом и юристом-помощь с ипотекой Гарантия безопасности сделки от агентства "БК_НЕДВИЖИМОСТЬ". ID объекта в нашей базе: 3182
    размещено: 17.11.2025 , обновлено: 5.12.2025
  • 3-к квартира, Токарей, 27/2

    • 102.4 м2
    • 3/19 этаж
    • Состояние: идеальное
    20 990 000 ₽ (205000 ₽/м2)
    Внимание !Цена изменилась! По запросу отправлю видео объекта.Уникальный объект ( квартира и два парковочных места - цена машиноместа при покупке квартиры ниже рыночной, согласовывается по факту) в тихом центре Екатеринбурга. ЖК "Булгаков". Видеонаблюдение , закрытый двор, услуги от УК минимизируют расходы по коммунальным платежам.Квартира с дизайнерским ремонтом , с полным наполнением , бытовой техникой, кухонным гарнитуром, встроенной гардеробной, люстры и светильники, кондиционеры - все включено в цену. Пространство квартиры грамотно организовано, зонирование на приватную и гостевую зоны. Теплые полы, кондиционеры.Квартира полностью оборудована для проживания: кухня гостиная со встроенной бытовой техникой, рабочая кухня , два санузла (сантехника Velleroy&Вoch). Вся мебель по индивидуальному заказу , техника производства: Германия, Великобритания, Италия. Показ в любое удобное время по предварительному согласованию. Ключи после полного расчета.При покупке квартиры на ипотечные средства через Дом Клик скидка до 1% на ипотеку. ID объекта в нашей базе: 3601
    размещено: 05.11.2025 , обновлено: 24.11.2025
  • 3-к квартира, Фролова, 31

    • 82.7 м2
    • 2/9 этаж
    • Состояние: идеальное
    16 900 000 ₽ (204400 ₽/м2)
    Продается квартира в ЖК Правобережный – сердце ВИЗА с видом на набережную! Преимущества нашей квартиры: - Большая, эргономичная гостиная, совмещенная с кухней - площадью 28 кв.м. - Балкон-лоджия с заказной мягкой мебелью, для комфортного отдыха с видом на Верх-Исетский пруд. - Большой функциональный шкаф-купе в коридоре, Стены и пол в квартире идеально выровнены (под маяки), Стены окрашены премиум краской Tikurilla. Во всей квартире -пол из португальской премиум пробки Wicanders. Два полноценных санузла. Гостевой санузел со скандинавской душевой IDO. БОНУС - Инфракрасная сауна с излучателями Harvia, дерева из канадского кедра совмещена с гостевым санузлом - Установлен - Водонагреватель Ariston на 80л со скрытым монтажом труб. В санузлах- Итальянская плитка, смеситили Grohe и Hansgrohe. В большом санузле увеличенная ванна 180*90 c гидромассажом и душевой лейкой Hansgrohe, - Санфаянс Ideal Standart и Jakob Delafon. В большом санузле- интеллектуальный горячий пол. Во всей квартире- французские натяжные потолки (глянец в общих зонах, матовый в спальнях). В детской комнате эргономичный встроенный шкаф-купе. В основной спальне- встроенная вместительная гардеробная - В основном санузле- стиральная машина Electrolux с вертикальной загрузкой и скрытым подключением труб - На кухне вся встроенная бытовая техника NEFF -Посудомойка, Духовой шкаф, Варочная поверхность комбинированная IND+Infra) и холодильник AEG (c охлажденной зоной). Межкомнатные качественные двери Sofia. Скрытая закладная провода для домашнего кинотеатра 5.1. Мебель, которая остается: Обеденный гарнитур, Диван-кровать в гостиной, 2-спальная кровать с качественным матрасом Ascona, раскладной диван, детская кровать (второй этаж) с качественным матрасом. Все шкафы купе и гардеробная. Также - В Подарок покупателю оставляем: Кухонный гарнитур 4,5 метра длинной с Итальянским фасадами (доводчиками Blum со встроенным холодильником, вытяжка Elica. В основной спальне сплит-система Panasonic, в гостиной сделана подводка электричества для кондиционера (не ставили- тк северная сторона, нам было не жарко) В квартире от застройщика горизонтальная разводка отопления немецкими трубами Rechau. На радиторах- термостаты индивидуальной регулировки. В квартире прибор- Тэкон- автоматическая передаче показаний счетчиков. Все счетчики (ГВС, ХВС, Тепло)- заменены и/или поверены 1-2 года назад. Электросчетчик- скоро заменит ЕЭНС бесплатно.В отделке предусмотрены съемные скрытые лючки на магнитах для доступа к стояку и под душевую кабину. В обоих санузлах инсталляции Grohe c подвесными унитазами (облегчена уборка) ВАЖНО: В доме ТСЖ (Председатель из жильцов, все делается как для себя. Зимой чистит свой трактор, моют асфальт своей мойкой, пылесосят. Ухаживаю за деревьями и кустарниками, вывозят снег после накопления снега). Дом подключен к поставщику теплоэнергии -Уралметром (тариф в 2 раза ниже чем в других районах) Закрытый двор, охрана ( в ноябре снова закрою ворота), видеонаблюдение по всему периметру и возле каждого подьезда (ч/з 6-12 мес будет на 1 этажах и в лифтах). Круглосуточная диспетчерская служба с кнопкой вызова Росгвардии, мониторингом лифтов, приемом заявок. У ТСЖ свое приложение с личным кабинетом (квитанции в эл. виде). В ТСЖ входит 2 двора ( в нашем футбольное/волейбольное/теннисный корт), на зиму ставят деревянную горку В соседнем дворе (туда есть доступ по нашим ключам)- свой корт (летом баскетбол, зимой каток/хоккей). Во дворе беседки, теннисный стол, зимой по всему двору украшено гирляндами) Во дворе и вокруг дома нет темных зон- за 4 года установлено много доп освещения- для безопасности. Во дворе и за домом закрытая парковка по пультам-всегда места для парковки. Въезд во двор по системе автоматического распознавания номера из базы жильцов. В доме подземный гараж. Парковка бесплатная. Технически исправная и постоянно обслуживается и проверятся пожарная сигнализация, насосные станции, система вентиляции. Квартира очень тихая (снизу офис, всего 1 смежная стена с соседями- изначально выполнена ее доп шумоизоляция (спец материал+гипсокартон). Низкий размер платежей за коммунальную плату - Летом в среднем 5000 р. Зимой в среднем 7500 р.
    размещено: 27.10.2025 , обновлено: 11.12.2025

    3-к квартира, Нагорная, 16

    • 98 м2
    • 2/24 этаж
    • Состояние: идеальное
    27 990 000 ₽ (285600 ₽/м2)
    Продается уютная квартира с уникальным дизайнерским интерьером Хотите жить в красивом и функциональном пространстве? Мы предлагаем вам замечательную квартиру с 2 гардеробными, просторной кухней-гостиной и дополнительными местами для хранения. Квартира выполнена по эксклюзивному дизайн-проекту в природных оттенках: дерево и травертин создают теплую атмосферу, а элементы скандинавского стиля и японского минимализма придают гармонию и стиль. В квартиру входит:⦁ Вся необходимая техника высокого качества⦁ Мебель, изготовленная на заказ⦁ Искусно подобранные картины и декор Вы заметите множество интересных решений в освещении, мебели и организации хранения, которые делают пространство максимально удобным для жизни. Не упустите шанс увидеть все это вживую! Приглашаем на просмотр. ID объекта в нашей базе: 11592
    размещено: 06.08.2025 , обновлено: 5.12.2025

    3-к квартира, Крылова, 27

    • 97.2 м2
    • 7/10 этаж
    • Состояние: идеальное
    20 500 000 ₽ (210900 ₽/м2)
    Спецпредложение для тех, кто любит комфорт, теплоту, изысказанность и оригинальность Заезжайте и живите! В 3-х комнатной квартире «под ключ». Место Исключительно для вас – центральное. *10 минут ходьбы от стадиона «Екатеринбург-Арена» до начало улиц Ленина и Малышева. *Район ВИЗ, ул. Крылова, 27, напротив стадиона «Екатеринбург-Арена». Время продажи Лишь для вас – любое время продажи. *Если вас заинтересует квартира, но нет достаточной суммы денег, можем вас подождать. Преимущества В нашей квартире «под ключ»: Тепло. Кирпичный дом. Даже зимой включаем отопление только на ночь. Полная отделка. Специально для вас – современный изысканный и оригинальный интерьер: плитка, декоративная штукатурка, натяжные потолки. Авторский и современный дизайн. Эксклюзивно для вас – бесплатные путешествия во Францию, Италию, Японию, Египет ждут вас в одной квартире. Полный комплект мебели. Только для вас – богатая роскошная мебель: во всех комнатах, кухни, ванной, двух санузлах. Счетчики отопления и воды. Прекрасный вид. Исключительно для вас – из окон открывается вид во двор, на Ивановскую церковь, центральный стадион. Охрана. Лишь для вас – добрососедская для жильцов, но внимательная для врагов. Дом с охраняемой территорией (охрана в соседнем подъезде). Паркинг. Индивидуально для вас – двухуровневый подземный паркинг. Метраж. Много удовольствия в жизни – 97 кв.м.! Собственное ТСЖ. Инфраструктура Прекрасная транспортная развязка, которая выводит вас в центр города (улицы Малышева, Ленина) через пять минут на авто или 10 минут пешком. Удобный выезд на Московский тракт. В пяти минутах ходьбы: Все магазины: «Перекресток», «Магнит», «Пятёрочка», «Верный». Больницы: «Новая больница», «Семейный доктор», «Шанс». Фитнесс-центры. Парк для прогулок рядом с Дворцом молодежи. Спорткомплекс «Верх-Исетский» с различными направлениями спорта. Государственный садик. Школы. ТЦ Алатырь Для загородных прогулок: «Биатлон» (место для прогулок за городом и катания на лыжах: Московский тракт, 10 минут езды), парк в Академическом (15 минут езды). Ухоженный подъезд и лифтовые холлы. Спокойные интеллигентные соседи. Двор Закрытая территория двора: имеются в виду современная, большая площадка, детская и спортивная площадки. Квартира В квартире (зоны можно переоборудовать): Просторный коридор для путешествия в Египет. Отделка: плитка на полу, декоративная штукатурка, натяжные потолки. Большая библиотека и отдельная, реально безграничная гардеробная минимум на три персоны. «Хлебосольная кухня для путешествия во Францию, оборудованная необходимой встроенной техникой, барной стойкой и зоной для питания. Небольшая комната для путешествия в Италию, сегодня функционально для кабинета, но может подойти для другого предназначения. Два санузла. В первом – туалет, ванна, раковина, душевая кабина с сауной и радиосистемой, во втором – туалет, водонагреватель, стиральная машина, раковина. Комната для путешествия в Японию, сегодня спальня, но может подойти для другого предназначения. Гостиная (сегодня) или для другого предназначения. Две просторные светлые лоджии (на кухне, в пока так называемой спальне). ID объекта в нашей базе: 3094
    размещено: 04.07.2025 , обновлено: 5.12.2025

    3-к квартира, Татищева, 20

    • 105.02 м2
    • 5/28 этаж
    • Состояние: идеальное
    31 900 000 ₽ (303800 ₽/м2)
    Продадим 3-комнтаную квартиру в одном из лучших ЖК г.Екатеринбурга. Центральное место, красивый хол с консъерж службой, возможность посетить ресторан и спортивный клуб не выходя на улицу. Подземный паркинг и оборудованные локеры для хранения вещей. Безопасный закрытый зеленый двор для детей всех возрастов, свои прогулочные зоны и многое другое, для комфортного проживания Вас и Вашей семьи.В квартире выполнен качественный ремонт по дизайн проекту, три отдельные спальни, два сан.узла, две гардеробные и большая кухня-столовая. Материалы использованы современных постельных тонов. Продажа чистая, продается в связи с переездом в другой город. Так же возможна покупка с паркингом (место очень удобное, рядом со входом в лифтовой холл и локером). ID объекта в нашей базе: 1566
    размещено: 01.07.2025 , обновлено: 7.12.2025

    3-к квартира, Юмашева, 9

    • 111.8 м2
    • 21/25 этаж
    • Состояние: идеальное
    18 950 000 ₽ (169500 ₽/м2)
    В продаже светлая просторная 3-комнатная квартира с высотой потолков 3 метра. В квартире две спальни с отличным метражом, просторная гостиная, совмещенная с кухней, два санузла и красивая лоджия площадью 10.27 м² с панорамным остеклением и великолепным видом на город и Верх-Исетский пруд - место, где приятно проводить время.Жилой комплекс расположен вдали от шумных дорог, что создает атмосферу спокойствия и уюта, здесь нешумно и всегда чистый воздух.Планировка:• Гостиная: 40.4 м²• Спальня 1: 36.1 м²• Спальня 2: 13.9 м²• Кухня: 14.1 м²При входе в главный корпус ЖК бизнес класса вас встречает стильная парадная с зоной ресепшн и администратором. Внутри дома также имеется отдельная зона ресепшн, 4 скоростных лифта и закрытый двор без автомобилей. Возможна покупка подземного паркинга площадью 16 м², который можно приобрести вместе с квартирой.Близость к самому центру города! Дом Бизнес-класса "Адмиральский" построен в 2010 году, в отличном состоянии.Развитая инфраструктура:• Множество детских садов• Семейная школа• Культурный центр• Парк 22 Партсъезда• Собственный фитнес-центр• Педагогический колледжСпособы покупки:• Ипотека - возможна сниженная ставка до 14.75%!• Наличные• Материнский капиталПишите, звоните, договоримся о показе! ID объекта в нашей базе: 8272
    размещено: 21.02.2025 , обновлено: 29.11.2025

    3-к квартира, Мельникова, 20

    • 110 м2
    • 8/13 этаж
    • Состояние: идеальное
    17 000 000 ₽ (154500 ₽/м2)
    Большая просторная квартира в кирпичном доме с высокими потолками 2.7м!На площадке ВСЕГО 3 квартиры.Большая просторная кухня гостиная, 3 спальни, 2 санузла и 2 лоджии! В квартире выполнен дорогостоящий ремонт – штучный паркет, декоративная штукатурка, двери из массива. Закрытая территория двора, свое ТСЖ, фитнесс центр с бассейном, магазины, школы, детские сады – все под рукой. Лучший район для проживания. Звоните. Приезжайте на просмотр. ID объекта в нашей базе: 8070
    размещено: 31.01.2025 , обновлено: 10.12.2025

    3-к квартира, Папанина, 18

    • 124 м2
    • 14/22 этаж
    25 470 000 ₽ (205400 ₽/м2)
    Объект № 187218. Продаётся уникальная видовая квартира с захватывающим дух панорамным видом на город! Эта просторная и светлая квартира – идеальное место для тех, кто мечтает наслаждаться красотами города каждый день и жить с комфортом в клубном доме Родина. Широкоформатные окна открывают потрясающий вид на самые знаковые достопримечательности, позволяя Вам ощутить себя частью городской жизни. Утренний кофе с видом на восход солнца над горизонтом станет ежедневным ритуалом, наполняющим душу спокойствием и гармонией. В квартире продуманы все детали для комфортного проживания: современные материалы отделки, качественная мебель и техника, а также продуманное зонирование пространства создают атмосферу уюта и стиля. Огромная кухня-гостиная – отличное место для семейных ужинов и дружеских встреч, мастер-спальня с личным санузлом и гардеробной для комфорта родителей. Так же предусмотрена отдельная кладовая и отведена зона для гардероба в прихожей. Жилой комплекс, в котором расположена квартира, предлагает своим жителям все необходимые удобства: охраняемая территория, подземный паркинг, ресепшн, детская площадка и благоустроенные зоны отдыха. Рядом находятся магазины, кафе, школы и детские сады, что делает эту локацию особенно привлекательной для семей с детьми. Не упустите возможность быть обладателем этой удивительной квартиры! Звоните прямо сейчас, чтобы договориться о просмотре и узнать больше информации. Ваша новая жизнь в городе начинается здесь! ***Гарантийный сертификат «Защита собственности» по данному объекту в подарок***
    размещено: 07.10.2024 , обновлено: 14.12.2025

    3-к квартира, Шевелева, 1

    • 131.2 м2
    • 11/13 этаж
    25 000 000 ₽ (190500 ₽/м2)
    Объект № 181175. Продам 3-комнатную квартиру площадью 131.2 кв.м. с выходом на террасу. Отделка черновая, стены выровнены подготовлены. Высота потолков 2.9м. Два санузла. В комплексе расположен подземный паркинг. Тихий центр города Екатеринбурга на пересечении улиц Юмашева и Хомякова. Рядом находятся две гимназии, несколько детских садиков и парк Дворца молодежи. Готовы рассмотреть встречные условия сделки, возможен обмен. ***Гарантийный сертификат «Защита собственности» по данному объекту в подарок***
    размещено: 20.02.2024 , обновлено: 5.12.2025

Новостройки Екатеринбург, мкр-н. ВИЗ

Приоритет

Увеличивает просмотры в 3 раза

Ваше объявление показывается в списке выше обычных объявлений. подключить